Maison à construire à Chanteloup (35150)
Images
Description
Maison de 3 pièces (86 m²) à vendre à Chanteloup
IDÉALEMENT SITUÉE - MAISON 3 PIÈCES NEUVE
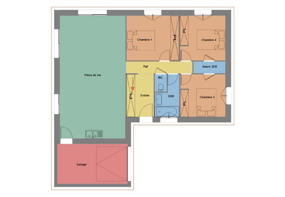
En vente : à 18 km de Rennes, Maisons de l'Avenir Cesson-Sévigné vous propose, idéalement située dans Chanteloup (35150), cette maison de 3 pièces de plain-pied de 86 m².
Son intérieur inclut trois chambres, une cuisine et une salle de bains. La maison est neuve.
Le terrain du bien est de 261 m².
Cette maison se situe dans un secteur convoité. L'École Primaire Publique Lucie Aubrac se trouve à moins de 10 minutes à pied, tout comme une structure d'accueil pour les enfants en bas âge. Niveau transports en commun, il y a quatre gares à moins de 10 minutes en voiture. Il y a un accès à la nationale N137 à 6 km. On trouve une boulangerie dans les environs.
Elle est proposée à l'achat pour 252 800 €.
Contactez Dimitri MESAS ((Numéro supprimé)) pour plus de renseignements sur la maison. Faites de vos projets immobiliers une réalité avec Maisons de l'Avenir Cesson-Sévigné.
Logement susceptibles de vous intéresser
Nous vous proposons de découvrir aussi cette sélection de logements situés à moins de 10km de Chanteloup et qui seraient susceptibles de vous intéresser.
Chanteloup
TERRAIN ET MAISONÀ vendre terrain constructible de 409 m², entièrement viabilisé (eau, électricité, assainissement), situé sur la commune de Chanteloup. Environnement calme et résidentiel, proche des commerces, écoles et transports. Idéal pour la construction d’une maison individuelle. Plongez dans un intérieur où luminosité et espace s'harmonisent parfaitement pour créer un cadre de vie accueillant et chaleureux. Dès l’entrée, la sensation d’ouverture vous invite à découvrir un vaste espace de vie, où la cuisine, moderne et conviviale, se prolonge naturellement vers un salon agréable et une salle à manger propice aux moments de partage. Côté nuit, les chambres offrent un véritable cocon de tranquillité, pensées pour conjuguer intimité et confort. L’agencement soigné garantit une circulation fluide entre les différents espaces, tandis que des rangements astucieux optimisent chaque recoin pour une organisation parfaite. L’extérieur prolonge cet art de vivre avec un espace idéal pour se détendre ou recevoir, à aménager selon vos envies. Une maison où chaque détail a été pensé pour vous offrir un quotidien serein et harmonieux. Pour vous assurer un confort de vie et conformément à la RE2025, nous avons choisi un mode de chauffage par PAC + plancher chauffant, volets roulants électriques. Prix hors peinture, décoration, revêtements de sol dans les chambres, cuisine équipée, frais de notaire, raccordements, dommage ouvrage. // Réf. : 2655-213658-ALT. Prix terrain : 84 000 €, hors frais d'agence à la charge de l'acquéreur. Ce terrain vous est proposé, par nos partenaires fonciers, dans le cadre d'un projet de construction avec nous. Les informations sur les risques auxquels ce bien est exposé sont disponibles sur le site Géorisques (www.georisques.gouv.fr). Prix maison : 176 161 €.
Chanteloup
TERRAINÀ vendre terrain constructible de 409 m², entièrement viabilisé (eau, électricité, assainissement), situé sur la commune de Chanteloup. Environnement calme et résidentiel, proche des commerces, écoles et transports. Idéal pour la construction d’une maison individuelle. // Réf. : T213658. Prix terrain : 84 000 €, hors frais d'agence et de notaire à la charge de l'acquéreur. Ce terrain vous est proposé, par nos partenaires fonciers, dans le cadre d'un projet de construction avec nous. Les informations sur les risques auxquels ce bien est exposé sont disponibles sur le site Géorisques (www.georisques.gouv.fr).
Chanteloup
TERRAINÀ vendre terrain constructible de 409 m², entièrement viabilisé (eau, électricité, assainissement), situé sur la commune de Chanteloup. Environnement calme et résidentiel, proche des commerces, écoles et transports. Idéal pour la construction d’une maison individuelle. // Réf. : T213658. Prix terrain : 84 000 €, hors frais d'agence et de notaire à la charge de l'acquéreur. Ce terrain vous est proposé, par nos partenaires fonciers, dans le cadre d'un projet de construction avec nous. Les informations sur les risques auxquels ce bien est exposé sont disponibles sur le site Géorisques (www.georisques.gouv.fr).
Chanteloup
TERRAIN ET MAISONÀ vendre terrain constructible de 409 m², entièrement viabilisé (eau, électricité, assainissement), situé sur la commune de Chanteloup. Environnement calme et résidentiel, proche des commerces, écoles et transports. Idéal pour la construction d’une maison individuelle. Cette maison allie modernité, fonctionnalité et élégance pour offrir un cadre de vie chaleureux et harmonieux. Son agencement optimisé permet à chaque membre de la famille de profiter d’un espace bien pensé, où confort et praticité se rencontrent. Avec quatre chambres accueillantes, une grande pièce de vie lumineuse, une salle de bain moderne et un cellier pratique, elle répond parfaitement aux besoins du quotidien. Son espace de vie convivial invite aux moments de partage, tandis que ses finitions soignées et son système de chauffage performant assurent un bien-être optimal en toute saison. Son architecture contemporaine et son aménagement astucieux en font un véritable cocon, où il fait bon vivre jour après jour. Pour vous assurer un confort de vie et conformément à la RE2025, nous avons choisi un mode de chauffage par PAC + plancher chauffant, volets roulants électriques. Prix hors peinture, décoration, revêtements de sol dans les chambres, cuisine équipée, frais de notaire, raccordements, dommage ouvrage. // Réf. : 2645-213658-ALT. Prix terrain : 84 000 €, hors frais d'agence à la charge de l'acquéreur. Ce terrain vous est proposé, par nos partenaires fonciers, dans le cadre d'un projet de construction avec nous. Les informations sur les risques auxquels ce bien est exposé sont disponibles sur le site Géorisques (www.georisques.gouv.fr). Prix maison : 171 811 €.
Chanteloup
TERRAIN ET MAISONÀ vendre terrain constructible de 409 m², entièrement viabilisé (eau, électricité, assainissement), situé sur la commune de Chanteloup. Environnement calme et résidentiel, proche des commerces, écoles et transports. Idéal pour la construction d’une maison individuelle. Succombez au charme de cette maison moderne et lumineuse, pensée pour allier confort et optimisation des espaces. Son vaste espace de vie baigné de lumière invite à la convivialité et s’adapte à votre mode de vie. Côté nuit, chacun profite de son intimité avec 3 belles chambres, dont une suite parentale avec dressing et salle d’eau privée. Une salle de bain supplémentaire et un cellier viennent compléter cet agencement idéal pour un quotidien fluide et pratique. Avec son architecture contemporaine et ses finitions soignées, cette maison est entièrement personnalisable pour répondre à toutes vos envies. Pour un confort optimal et conforme à la RE2025, cette maison dispose d’une PAC avec plancher chauffant et volets roulants électriques. À noter : Le prix indiqué exclut les revêtements de sol des chambres, la cuisine aménagée, la peinture, la décoration, les raccordements, les frais de notaire et l’assurance dommages-ouvrage. (Piscine non contractuelle, non comprise dans le prix)). Imaginez votre futur chez-vous, contactez-nous dès aujourd’hui !. // Réf. : 541-213658-ALT. Prix terrain : 84 000 €, hors frais d'agence à la charge de l'acquéreur. Ce terrain vous est proposé, par nos partenaires fonciers, dans le cadre d'un projet de construction avec nous. Les informations sur les risques auxquels ce bien est exposé sont disponibles sur le site Géorisques (www.georisques.gouv.fr). Prix maison : 251 997 €.
Chanteloup
TERRAIN ET MAISONVENTE d’une maison de 5 pièces (110 m²) à ChanteloupIDÉALEMENT SITUÉE – MAISON 5 PIÈCES NEUVEEn vente : localisée à deux pas de Rennes, nous sommes heureux de vous présenter cette maison de 5 pièces de 110 m² idéalement située dans Chanteloup (35150). Elle inclut quatre chambres, une cuisine et deux salles de bains.Le terrain du bien s’étend sur 261 m².Il s’agit d’une maison de 2 niveaux. Elle est neuve.Ce bien se situe dans un secteur prisé. L’École Primaire Publique Lucie Aubrac est implantée à moins de 10 minutes à pied, tout comme une crèche. Niveau transports en commun, on trouve quatre gares à moins de 10 minutes en voiture. La nationale N137 est accessible à 6 km. Il y a une boulangerie à quelques minutes.Il est proposé à l’achat pour 295 000 €.Prenez contact avec notre agence (MESAS Dimitri : (Numéro supprimé)) pour obtenir de plus amples informations sur la maison ou sur les modalités de vente. Maisons de l’Avenir Cesson-Sévigné est là pour vous accompagner dans toutes vos démarches.
Chanteloup
TERRAIN ET MAISONMAISON OSSATURE BOISMaison de 5 pièces (97 m²) à vendre à ChanteloupIDÉALEMENT SITUÉE – MAISON 5 PIÈCES NEUVEEn vente : à deux pas de Rennes, idéalement située dans Chanteloup (35150), nous vous présentons cette maison de 5 pièces de 97 m² et de 261 m² de terrain. Elle se divise en quatre chambres, une cuisine et deux salles de bains.Cette maison possède 2 niveaux. Elle est neuve.Cette maison se situe dans un quartier recherché. L’École Primaire Publique Lucie Aubrac est implantée à moins de 10 minutes à pied, tout comme une structure d’accueil pour les tout-petits. Niveau transports en commun, il y a quatre gares à moins de 10 minutes en voiture. La nationale N137 est accessible à 6 km. On trouve une boulangerie dans les environs.Son prix de vente est de 266 500 €.N’hésitez pas à prendre contact avec Dimitri MESAS (tél : (Numéro supprimé)) pour tout renseignement sur la maison ou sur les modalités de vente. Maisons de l’Avenir Cesson-Sévigné vous accompagne dans tous vos projets immobiliers et dans toutes vos démarches.
Chanteloup
TERRAIN ET MAISONVENTE : maison de 5 pièces (111 m²) à ChanteloupIDÉALEMENT SITUÉE – MAISON 5 PIÈCES NEUVEÀ vendre : à quelques kilomètres de Rennes, nous vous proposons cette maison de 5 pièces de 111 m² idéalement située dans Chanteloup (35150). Elle comporte quatre chambres, une cuisine et deux salles de bains.Le terrain de la propriété est de 261 m².Cette maison possède 2 niveaux. Elle est neuve.La maison se situe dans un secteur recherché. L’École Primaire Publique Lucie Aubrac est implantée à moins de 10 minutes à pied, tout comme une structure d’accueil pour les enfants en bas âge. Côté transports, il y a quatre gares à moins de 10 minutes en voiture. La nationale N137 est accessible à 6 km. On trouve une boulangerie dans les environs.Elle est à vendre pour la somme de 244 500 €.Contactez Dimitri MESAS ((Numéro supprimé)) pour plus d’informations sur la maison.
Chanteloup
TERRAINVENTE : terrain de 261 m² à ChanteloupIDÉALEMENT SITUÉ – PROCHE DE RENNESÀ Chanteloup (35150) à deux pas de Rennes, projetez la maison de vos rêves sur ce terrain de 261 m². Il donne sur un jardin et bénéficie d’une exposition sud. Il se situe dans un secteur prisé. Il y a l’École Primaire Publique Lucie Aubrac à moins de 10 minutes à pied et une structure d’accueil pour les tout-petits. Côté transports, on trouve quatre gares à moins de 10 minutes en voiture. La nationale N137 est accessible à 6 km. Il y a une boulangerie dans les environs.Ce terrain est proposé à l’achat pour 54 500 €. N’hésitez pas à prendre contact avec Dimitri MESAS (tél : (Numéro supprimé)) pour plus de renseignements sur ce terrain, sur les modalités de vente ou sur les démarches à suivre.
L’actualité immobilière à Chanteloup
27/11/2023
02/11/2023
30/10/2023
20/10/2023
16/10/2023
16/10/2023