Maison à construire à Chantepie (35135)
Images
Description
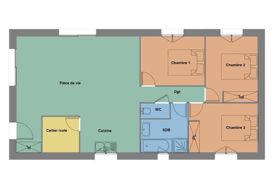
VENTE d'une maison de 4 pièces (80 m²) à Chantepie
PROCHE DE RENNES - MAISON 4 PIÈCES NEUVE
À vendre à 7 km de Rennes, nous sommes ravis de vous proposer à Chantepie (35135), cette maison de 4 pièces de plain-pied de 80 m². Elle inclut trois chambres, une cuisine et une salle de bains.
Le terrain de cette maison est de 459 m².
Son prix de vente est de 391 000 €.
N'hésitez pas à prendre contact avec notre agence (Cyril RENVAZE : (Numéro supprimé)) pour tout renseignement sur cette maison ou sur les modalités de vente. Maisons de l'Avenir Cesson-Sévigné vous accompagne dans tous vos projets immobiliers et à toutes les étapes de l'achat.
Logement susceptibles de vous intéresser
Nous vous proposons de découvrir aussi cette sélection de logements situés à moins de 10km de Chantepie et qui seraient susceptibles de vous intéresser.
Saint-Erblon
TERRAINSitué à seulement cinq minutes du centre-ville de Saint-Erblon, ce terrain à bâtir d’une superficie de 423 m² offre un cadre agréable et recherché. Le terrain est à viabiliser et permet la réalisation d’un projet de construction sur mesure, dans un environnement calme et résidentiel. Proximité immédiate des commerces, écoles et transports. Idéal pour une résidence principale ou un investissement. // Réf. : T210477. Prix terrain : 119 950 €, hors frais d'agence et de notaire à la charge de l'acquéreur. Ce terrain vous est proposé, par nos partenaires fonciers, dans le cadre d'un projet de construction avec nous. Les informations sur les risques auxquels ce bien est exposé sont disponibles sur le site Géorisques (www.georisques.gouv.fr).
Chantepie
TERRAINRare sur le secteur !À vendre, terrain à bâtir viabilisé de 347 m² situé dans un environnement calme et recherché de Chantepie. Vous apprécierez sa situation idéale, à proximité du centre-bourg, des commerces, des écoles et des transports en commun. Ce terrain offre un cadre de vie agréable et un excellent potentiel pour concrétiser votre projet de construction. // Réf. : T210480. Prix terrain : 139 000 €, hors frais d'agence et de notaire à la charge de l'acquéreur. Ce terrain vous est proposé, par nos partenaires fonciers, dans le cadre d'un projet de construction avec nous. Les informations sur les risques auxquels ce bien est exposé sont disponibles sur le site Géorisques (www.georisques.gouv.fr).
Chantepie
TERRAIN ET MAISONRare sur le secteur !À vendre, terrain à bâtir viabilisé de 347 m² situé dans un environnement calme et recherché de Chantepie. Vous apprécierez sa situation idéale, à proximité du centre-bourg, des commerces, des écoles et des transports en commun. Ce terrain offre un cadre de vie agréable et un excellent potentiel pour concrétiser votre projet de construction. Succombez au charme de cette maison moderne et lumineuse, pensée pour allier confort et optimisation des espaces. Son vaste espace de vie baigné de lumière invite à la convivialité et s’adapte à votre mode de vie. Côté nuit, chacun profite de son intimité avec 3 belles chambres, dont une suite parentale avec dressing et salle d’eau privée. Une salle de bain supplémentaire et un cellier viennent compléter cet agencement idéal pour un quotidien fluide et pratique. Avec son architecture contemporaine et ses finitions soignées, cette maison est entièrement personnalisable pour répondre à toutes vos envies. Pour un confort optimal et conforme à la RE2025, cette maison dispose d’une PAC avec plancher chauffant et volets roulants électriques. À noter : Le prix indiqué exclut les revêtements de sol des chambres, la cuisine aménagée, la peinture, la décoration, les raccordements, les frais de notaire et l’assurance dommages-ouvrage. (Piscine non contractuelle, non comprise dans le prix)). Imaginez votre futur chez-vous, contactez-nous dès aujourd’hui !. // Réf. : 541-210480-ALT. Prix terrain : 139 000 €, hors frais d'agence à la charge de l'acquéreur. Ce terrain vous est proposé, par nos partenaires fonciers, dans le cadre d'un projet de construction avec nous. Les informations sur les risques auxquels ce bien est exposé sont disponibles sur le site Géorisques (www.georisques.gouv.fr). Prix maison : 251 997 €.
Chantepie
TERRAIN ET MAISONRare sur le secteur !À vendre, terrain à bâtir viabilisé de 347 m² situé dans un environnement calme et recherché de Chantepie. Vous apprécierez sa situation idéale, à proximité du centre-bourg, des commerces, des écoles et des transports en commun. Ce terrain offre un cadre de vie agréable et un excellent potentiel pour concrétiser votre projet de construction. Laissez-vous séduire par cette maison moderne et lumineuse, pensée pour votre confort et votre bien-être. Avec 3 belles chambres, un espace de vie spacieux et convivial, baigné de lumière grâce à ses larges ouvertures, et un garage attenant, ce modèle offre une parfaite harmonie entre fonctionnalité et esthétisme. Sa conception optimisée vous permet de moduler les volumes selon vos envies : cuisine ouverte ou fermée, aménagement sur-mesure… Imaginez votre intérieur idéal ! Profitez d’une salle d’eau contemporaine et d’un cellier pratique pour un quotidien facilité. Son architecture sobre et élégante s’adapte à tous les styles de vie. Pour un confort optimal et conforme à la RE2025, cette maison dispose d’une PAC avec plancher chauffant et volets roulants électriques. À noter : Le prix indiqué exclut les revêtements de sol des chambres, la cuisine aménagée, la peinture, la décoration, les raccordements, les frais de notaire et l’assurance dommages-ouvrage. Envie d’un intérieur qui vous ressemble ? Contactez-nous et concrétisons ensemble votre projet sur-mesure !. . // Réf. : 1805-210480-ALT. Prix terrain : 139 000 €, hors frais d'agence à la charge de l'acquéreur. Ce terrain vous est proposé, par nos partenaires fonciers, dans le cadre d'un projet de construction avec nous. Les informations sur les risques auxquels ce bien est exposé sont disponibles sur le site Géorisques (www.georisques.gouv.fr). Prix maison : 281 667 €.
Chantepie
TERRAIN ET MAISONRare sur le secteur !À vendre, terrain à bâtir viabilisé de 347 m² situé dans un environnement calme et recherché de Chantepie. Vous apprécierez sa situation idéale, à proximité du centre-bourg, des commerces, des écoles et des transports en commun. Ce terrain offre un cadre de vie agréable et un excellent potentiel pour concrétiser votre projet de construction. Découvrez un projet de maison contemporaine qui allie élégance, confort et fonctionnalité. Conçue pour s’adapter aux besoins d’aujourd’hui, elle offre un intérieur lumineux et chaleureux, idéal pour une vie de famille épanouie. Son architecture moderne maximise les espaces tout en apportant une belle harmonie entre volumes ouverts et coins plus intimistes. Chaque pièce est pensée pour conjuguer praticité et bien-être, avec des finitions soignées qui font toute la différence. Vous y trouverez un vaste espace de vie convivial, une cuisine ouverte propice au partage, des chambres confortables, une salle de bain élégante et des rangements astucieux pour un quotidien organisé. À l’extérieur, profitez d’un espace agréable où vous pourrez créer votre cocon, qu’il s’agisse d’un jardin fleuri, d’une terrasse accueillante ou d’un espace détente selon vos envies. Un lieu de vie conçu pour vous offrir un quotidien fluide et apaisant, où chaque instant devient un plaisir. Pour vous assurer un confort de vie et conformément à la RE2025, nous avons choisi un mode de chauffage par PAC + plancher chauffant, volets roulants électriques. Prix hors peinture, décoration, revêtements de sol dans les chambres, cuisine équipée, frais de notaire, raccordements, dommage ouvrage. // Réf. : 2653-210480-ALT. Prix terrain : 139 000 €, hors frais d'agence à la charge de l'acquéreur. Ce terrain vous est proposé, par nos partenaires fonciers, dans le cadre d'un projet de construction avec nous. Les informations sur les risques auxquels ce bien est exposé sont disponibles sur le site Géorisques (www.georisques.gouv.fr). Prix maison : 179 764 €.
Saint-Erblon
TERRAIN ET MAISONSitué à seulement cinq minutes du centre-ville de Saint-Erblon, ce terrain à bâtir d’une superficie de 423 m² offre un cadre agréable et recherché. Le terrain est à viabiliser et permet la réalisation d’un projet de construction sur mesure, dans un environnement calme et résidentiel. Proximité immédiate des commerces, écoles et transports. Idéal pour une résidence principale ou un investissement. Un cocon familial où il fait bon vivre – Un cadre moderne et accueillant, prêt à accueillir vos plus beaux projets. Laissez-vous séduire par cette maison moderne et chaleureuse, où chaque espace a été pensé pour s’adapter à votre quotidien. Son séjour lumineux de plus de 44 m² vous offre un cadre convivial et ouvert, idéal pour les moments en famille. Avec quatre chambres spacieuses, dont une au rez-de-chaussée, cette maison allie confort et praticité. Son étage parfaitement agencé assure à chacun son espace privé, tout en conservant une belle harmonie de vie. Un garage attenant, une arrière-cuisine fonctionnelle et des espaces optimisés viennent compléter ce bien conçu pour le bien-être de toute la famille. Pour un confort optimal et conforme à la RE2025, cette maison dispose d’une PAC avec plancher chauffant au rez-de-chaussée, radiateurs à l’étage et volets roulants électriques. À noter : Le prix indiqué exclut les revêtements de sol des chambres, la cuisine aménagée, la peinture, la décoration, les raccordements, les frais de notaire et l’assurance dommages-ouvrage. // Réf. : 387-210477-ALT. Prix terrain : 119 950 €, hors frais d'agence à la charge de l'acquéreur. Ce terrain vous est proposé, par nos partenaires fonciers, dans le cadre d'un projet de construction avec nous. Les informations sur les risques auxquels ce bien est exposé sont disponibles sur le site Géorisques (www.georisques.gouv.fr). Prix maison : 245 444 €.
Saint-Erblon
TERRAIN ET MAISONSitué à seulement cinq minutes du centre-ville de Saint-Erblon, ce terrain à bâtir d’une superficie de 423 m² offre un cadre agréable et recherché. Le terrain est à viabiliser et permet la réalisation d’un projet de construction sur mesure, dans un environnement calme et résidentiel. Proximité immédiate des commerces, écoles et transports. Idéal pour une résidence principale ou un investissement. Un équilibre parfait entre élégance et fonctionnalité – Un lieu de vie unique, conçu pour aujourd’hui et demain. Imaginez une maison qui allie beaux volumes, luminosité et confort familial. Son séjour spacieux de plus de 43 m², baigné de lumière, devient le cœur de la maison, un espace idéal pour partager des moments chaleureux. Pensée pour répondre à tous les besoins, elle propose quatre grandes chambres, une mezzanine conviviale, une cuisine fonctionnelle et un garage intégré, garantissant un quotidien fluide et agréable. Ici, chaque détail est conçu pour offrir une qualité de vie incomparable. Pour un confort optimal et conforme à la RE2025, cette maison dispose d’une PAC avec plancher chauffant au rez-de-chaussée, radiateurs à l’étage et volets roulants électriques. À noter : Le prix indiqué exclut les revêtements de sol des chambres, la cuisine aménagée, la peinture, la décoration, les raccordements, les frais de notaire et l’assurance dommages-ouvrage. . . // Réf. : 380-210477-ALT. Prix terrain : 119 950 €, hors frais d'agence à la charge de l'acquéreur. Ce terrain vous est proposé, par nos partenaires fonciers, dans le cadre d'un projet de construction avec nous. Les informations sur les risques auxquels ce bien est exposé sont disponibles sur le site Géorisques (www.georisques.gouv.fr). Prix maison : 306 615 €.
Saint-Erblon
TERRAIN ET MAISONSitué à seulement cinq minutes du centre-ville de Saint-Erblon, ce terrain à bâtir d’une superficie de 423 m² offre un cadre agréable et recherché. Le terrain est à viabiliser et permet la réalisation d’un projet de construction sur mesure, dans un environnement calme et résidentiel. Proximité immédiate des commerces, écoles et transports. Idéal pour une résidence principale ou un investissement. Une maison qui a tout pour plaire !. Laissez-vous séduire par cette maison à l’architecture élégante, où chaque espace est conçu pour répondre à vos envies de lumière, de confort et de modernité. Son espace de vie généreux, baigné de lumière naturelle grâce à de larges ouvertures, invite à la convivialité et au bien-être. L’étage réserve un univers cosy avec deux grandes chambres, un dressing spacieux et une salle d’eau moderne, créant un véritable cocon d’intimité. Pratique et fonctionnelle, cette maison dispose aussi d’un garage intégré et d’un cellier pour un quotidien simplifié. Un cadre de vie unique, où élégance et praticité se rencontrent. Contactez-nous pour en savoir plus !. Pour un confort optimal et conforme à la RE2025, cette maison dispose d’une PAC avec plancher chauffant au rez-de-chaussée, radiateurs à l’étage et volets roulants électriques. À noter : Le prix indiqué exclut les revêtements de sol des chambres, la cuisine aménagée, la peinture, la décoration, les raccordements, les frais de notaire et l’assurance dommages-ouvrage. (Piscine non contractuelle, non comprise dans le prix). // Réf. : 1718-210477-ALT. Prix terrain : 119 950 €, hors frais d'agence à la charge de l'acquéreur. Ce terrain vous est proposé, par nos partenaires fonciers, dans le cadre d'un projet de construction avec nous. Les informations sur les risques auxquels ce bien est exposé sont disponibles sur le site Géorisques (www.georisques.gouv.fr). Prix maison : 272 146 €.
Saint-Erblon
TERRAINSitué à seulement cinq minutes du centre-ville de Saint-Erblon, ce terrain à bâtir d’une superficie de 423 m² offre un cadre agréable et recherché. Le terrain est à viabiliser et permet la réalisation d’un projet de construction sur mesure, dans un environnement calme et résidentiel. Proximité immédiate des commerces, écoles et transports. Idéal pour une résidence principale ou un investissement. // Réf. : T210477. Prix terrain : 119 950 €, hors frais d'agence et de notaire à la charge de l'acquéreur. Ce terrain vous est proposé, par nos partenaires fonciers, dans le cadre d'un projet de construction avec nous. Les informations sur les risques auxquels ce bien est exposé sont disponibles sur le site Géorisques (www.georisques.gouv.fr).
L’actualité immobilière à Chantepie
27/11/2023
02/11/2023
30/10/2023
20/10/2023
16/10/2023
16/10/2023