Maison à construire à Ossé (35410)
Images
Description
Ossé : maison de 6 pièces (119 m²) à vendre
PROCHE DE RENNES - MAISON 6 PIÈCES NEUVE
À vendre : située à 18 km de Rennes, nous vous proposons à Ossé (35410), cette maison de 6 pièces de 119 m².
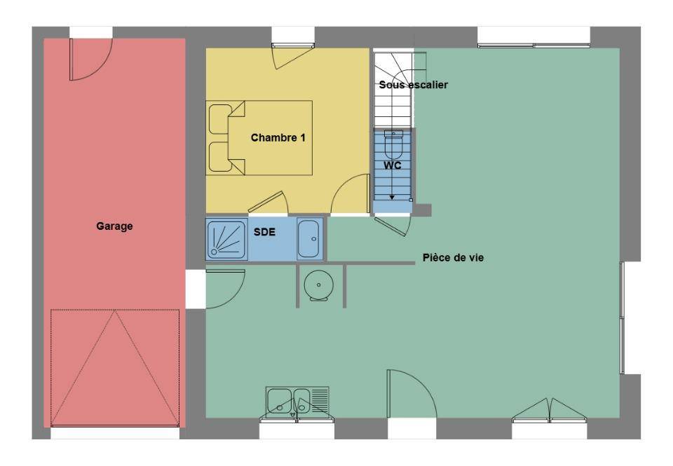
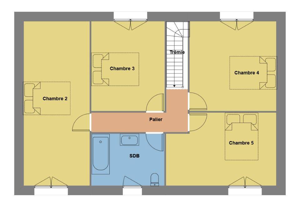
Il s'agit d'une maison de 2 niveaux. Son intérieur offre cinq chambres, une cuisine et deux salles de bains. Cette maison est neuve.
Le terrain du bien est de 275 m².
Il y a l'École Primaire Privée St Pascal à moins de 10 minutes à pied. Niveau transports en commun, on trouve les gares Servon-sur-Vilaine, Châteaubourg et Noyal-Acigné à moins de 10 minutes en voiture. La nationale N157 est accessible à 6 km. Il y a un tennis, une bibliothèque et une boucherie-charcuterie dans les environs.
Elle est proposée à l'achat pour 329 900 €.
N'hésitez pas à prendre contact avec Quentin LEZOUR (tél : (Numéro supprimé)) pour plus de renseignements sur la maison ou sur les modalités de vente. Concrétisez vos projets immobiliers avec Maisons de l'Avenir Saint-Carné.
Logement susceptibles de vous intéresser
Nous vous proposons de découvrir aussi cette sélection de logements situés à moins de 10km de Châteaugiron et qui seraient susceptibles de vous intéresser.
Domloup
TERRAINTerrain à vendre à Domloup, dans un cadre calme et verdoyant proche de Rennes. Les transports permettent un accès rapide aux principaux axes et à la capitale bretonne. Les écoles du secteur offrent un environnement pratique et sécurisé pour les familles. Les commerces et services à proximité facilitent le quotidien. Un emplacement idéal qui combine tranquillité, accessibilité et qualité de vie. // Réf. : T213492. Prix terrain : 133 760 €, hors frais d'agence et de notaire à la charge de l'acquéreur. Ce terrain vous est proposé, par nos partenaires fonciers, dans le cadre d'un projet de construction avec nous. Les informations sur les risques auxquels ce bien est exposé sont disponibles sur le site Géorisques (www.georisques.gouv.fr).
Domloup
TERRAINTerrain à vendre à Domloup, dans un cadre calme et verdoyant proche de Rennes. Les transports permettent un accès rapide aux principaux axes et à la capitale bretonne. Les écoles du secteur offrent un environnement pratique et sécurisé pour les familles. Les commerces et services à proximité facilitent le quotidien. Un emplacement idéal qui combine tranquillité, accessibilité et qualité de vie. // Réf. : T213492. Prix terrain : 133 760 €, hors frais d'agence et de notaire à la charge de l'acquéreur. Ce terrain vous est proposé, par nos partenaires fonciers, dans le cadre d'un projet de construction avec nous. Les informations sur les risques auxquels ce bien est exposé sont disponibles sur le site Géorisques (www.georisques.gouv.fr).
Domloup
TERRAIN ET MAISONTerrain à vendre à Domloup, dans un cadre calme et verdoyant proche de Rennes. Les transports permettent un accès rapide aux principaux axes et à la capitale bretonne. Les écoles du secteur offrent un environnement pratique et sécurisé pour les familles. Les commerces et services à proximité facilitent le quotidien. Un emplacement idéal qui combine tranquillité, accessibilité et qualité de vie. Vous serez séduits par la luminosité qui se dégage de cette maison de plain-pied qui vous propose un espace de vie spacieux de 46 m² environ ouvert sur le jardin avec un coin cuisine aménagée. Trois belles chambres avec rangements, une salle de bains et wc indépendant. Le plus pour cette maison fonctionnelle, un cellier et un garage intégréPour vous assurer un confort de vie et conformément à la RE2025, nous avons choisi un mode de chauffage par PAC + plancher chauffant, volets roulants électriques. Prix hors fourniture et pose : des appareils sanitaires (sauf système de chauffage et d'eau chaude sanitaire), du carrelage et de la faïence, des revêtements de sol dans les chambres. Hors décoration et aménagement intérieur et peinture. Hors raccordements, frais de notaire et dommage ouvrage. // Réf. : 1231-213492-JMD. Prix terrain : 133 760 €, hors frais d'agence à la charge de l'acquéreur. Ce terrain vous est proposé, par nos partenaires fonciers, dans le cadre d'un projet de construction avec nous. Les informations sur les risques auxquels ce bien est exposé sont disponibles sur le site Géorisques (www.georisques.gouv.fr). Prix maison : 148 988 €.
Domloup
TERRAIN ET MAISONTerrain à vendre à Domloup, dans un cadre calme et verdoyant proche de Rennes. Les transports permettent un accès rapide aux principaux axes et à la capitale bretonne. Les écoles du secteur offrent un environnement pratique et sécurisé pour les familles. Les commerces et services à proximité facilitent le quotidien. Un emplacement idéal qui combine tranquillité, accessibilité et qualité de vie. Plongez dans un intérieur où luminosité et espace s'harmonisent parfaitement pour créer un cadre de vie accueillant et chaleureux. Dès l’entrée, la sensation d’ouverture vous invite à découvrir un vaste espace de vie, où la cuisine, moderne et conviviale, se prolonge naturellement vers un salon agréable et une salle à manger propice aux moments de partage. Côté nuit, les chambres offrent un véritable cocon de tranquillité, pensées pour conjuguer intimité et confort. L’agencement soigné garantit une circulation fluide entre les différents espaces, tandis que des rangements astucieux optimisent chaque recoin pour une organisation parfaite. L’extérieur prolonge cet art de vivre avec un espace idéal pour se détendre ou recevoir, à aménager selon vos envies. Une maison où chaque détail a été pensé pour vous offrir un quotidien serein et harmonieux. Pour vous assurer un confort de vie et conformément à la RE2025, nous avons choisi un mode de chauffage par PAC + plancher chauffant, volets roulants électriques. Prix hors peinture, décoration, revêtements de sol dans les chambres, cuisine équipée, frais de notaire, raccordements, dommage ouvrage. // Réf. : 2655-213492-JMD. Prix terrain : 133 760 €, hors frais d'agence à la charge de l'acquéreur. Ce terrain vous est proposé, par nos partenaires fonciers, dans le cadre d'un projet de construction avec nous. Les informations sur les risques auxquels ce bien est exposé sont disponibles sur le site Géorisques (www.georisques.gouv.fr). Prix maison : 176 161 €.
Servon-sur-Vilaine
TERRAIN ET MAISONÀ vendre, terrain constructible de 450 m² idéalement situé sur la commune de Servon-sur-Vilaine. Le terrain est à viabiliser et offre de nombreuses possibilités pour votre future construction. Environnement calme et agréable, à proximité de la gare SNCF, facilitant les déplacements quotidiens vers Rennes et les communes voisines. Succombez au charme de cette maison moderne et lumineuse, pensée pour allier confort et optimisation des espaces. Son vaste espace de vie baigné de lumière invite à la convivialité et s’adapte à votre mode de vie. Côté nuit, chacun profite de son intimité avec 3 belles chambres, dont une suite parentale avec dressing et salle d’eau privée. Une salle de bain supplémentaire et un cellier viennent compléter cet agencement idéal pour un quotidien fluide et pratique. Avec son architecture contemporaine et ses finitions soignées, cette maison est entièrement personnalisable pour répondre à toutes vos envies. Pour un confort optimal et conforme à la RE2025, cette maison dispose d’une PAC avec plancher chauffant et volets roulants électriques. À noter : Le prix indiqué exclut les revêtements de sol des chambres, la cuisine aménagée, la peinture, la décoration, les raccordements, les frais de notaire et l’assurance dommages-ouvrage. (Piscine non contractuelle, non comprise dans le prix)). Imaginez votre futur chez-vous, contactez-nous dès aujourd’hui !. // Réf. : 541-213444-ALT. Prix terrain : 117 500 €, hors frais d'agence à la charge de l'acquéreur. Ce terrain vous est proposé, par nos partenaires fonciers, dans le cadre d'un projet de construction avec nous. Les informations sur les risques auxquels ce bien est exposé sont disponibles sur le site Géorisques (www.georisques.gouv.fr). Prix maison : 251 997 €.
Domloup
TERRAIN ET MAISONTerrain à vendre à Domloup, dans un cadre calme et verdoyant proche de Rennes. Les transports permettent un accès rapide aux principaux axes et à la capitale bretonne. Les écoles du secteur offrent un environnement pratique et sécurisé pour les familles. Les commerces et services à proximité facilitent le quotidien. Un emplacement idéal qui combine tranquillité, accessibilité et qualité de vie. Succombez au charme de cette maison moderne et lumineuse, pensée pour allier confort et optimisation des espaces. Son vaste espace de vie baigné de lumière invite à la convivialité et s’adapte à votre mode de vie. Côté nuit, chacun profite de son intimité avec 3 belles chambres, dont une suite parentale avec dressing et salle d’eau privée. Une salle de bain supplémentaire et un cellier viennent compléter cet agencement idéal pour un quotidien fluide et pratique. Avec son architecture contemporaine et ses finitions soignées, cette maison est entièrement personnalisable pour répondre à toutes vos envies. Pour un confort optimal et conforme à la RE2025, cette maison dispose d’une PAC avec plancher chauffant et volets roulants électriques. À noter : Le prix indiqué exclut les revêtements de sol des chambres, la cuisine aménagée, la peinture, la décoration, les raccordements, les frais de notaire et l’assurance dommages-ouvrage. (Piscine non contractuelle, non comprise dans le prix)). Imaginez votre futur chez-vous, contactez-nous dès aujourd’hui !. // Réf. : 541-213492-JMD. Prix terrain : 133 760 €, hors frais d'agence à la charge de l'acquéreur. Ce terrain vous est proposé, par nos partenaires fonciers, dans le cadre d'un projet de construction avec nous. Les informations sur les risques auxquels ce bien est exposé sont disponibles sur le site Géorisques (www.georisques.gouv.fr). Prix maison : 251 997 €.
Domloup
TERRAIN ET MAISONTerrain à vendre à Domloup, dans un cadre calme et verdoyant proche de Rennes. Les transports permettent un accès rapide aux principaux axes et à la capitale bretonne. Les écoles du secteur offrent un environnement pratique et sécurisé pour les familles. Les commerces et services à proximité facilitent le quotidien. Un emplacement idéal qui combine tranquillité, accessibilité et qualité de vie. Découvrez EVOLIA, votre future maison évolutive ! Bienvenue dans l'avenir de l'habitat avec EVOLIA, une maison évolutive, modulable et transformable. Grâce à ses configurations flexibles et ses nombreuses options de personnalisation, EVOLIA vous offre un confort inégalé et une modernité à un prix abordable. Faites de vos rêves de propriété une réalité et commencez à bâtir votre futur dès aujourd'hui ! Votre avenir commence ici ! Contactez-nous dès maintenant pour plus d'informations. Prix hors fourniture et pose : des appareils sanitaires (sauf système de chauffage et d'eau chaude sanitaire), du carrelage, de la faïence, de la cuisine aménagée, des revêtements de sol dans les chambres. Hors décoration et aménagement intérieur et peinture. Hors raccordements, frais de notaire et dommage ouvrage. // Réf. : 2454-213492-JMD. Prix terrain : 133 760 €, hors frais d'agence à la charge de l'acquéreur. Ce terrain vous est proposé, par nos partenaires fonciers, dans le cadre d'un projet de construction avec nous. Les informations sur les risques auxquels ce bien est exposé sont disponibles sur le site Géorisques (www.georisques.gouv.fr). Prix maison : 79 597 €.
Servon-sur-Vilaine
TERRAINÀ vendre, terrain constructible de 450 m² idéalement situé sur la commune de Servon-sur-Vilaine. Le terrain est à viabiliser et offre de nombreuses possibilités pour votre future construction. Environnement calme et agréable, à proximité de la gare SNCF, facilitant les déplacements quotidiens vers Rennes et les communes voisines. // Réf. : T213444. Prix terrain : 117 500 €, hors frais d'agence et de notaire à la charge de l'acquéreur. Ce terrain vous est proposé, par nos partenaires fonciers, dans le cadre d'un projet de construction avec nous. Les informations sur les risques auxquels ce bien est exposé sont disponibles sur le site Géorisques (www.georisques.gouv.fr).
Servon-sur-Vilaine
TERRAINÀ vendre, terrain constructible de 450 m² idéalement situé sur la commune de Servon-sur-Vilaine. Le terrain est à viabiliser et offre de nombreuses possibilités pour votre future construction. Environnement calme et agréable, à proximité de la gare SNCF, facilitant les déplacements quotidiens vers Rennes et les communes voisines. // Réf. : T213444. Prix terrain : 117 500 €, hors frais d'agence et de notaire à la charge de l'acquéreur. Ce terrain vous est proposé, par nos partenaires fonciers, dans le cadre d'un projet de construction avec nous. Les informations sur les risques auxquels ce bien est exposé sont disponibles sur le site Géorisques (www.georisques.gouv.fr).
L’actualité immobilière à Châteaugiron
27/11/2023
02/11/2023
30/10/2023
20/10/2023
16/10/2023
16/10/2023