Maison à construire à Dinard (35800)
Images
Description
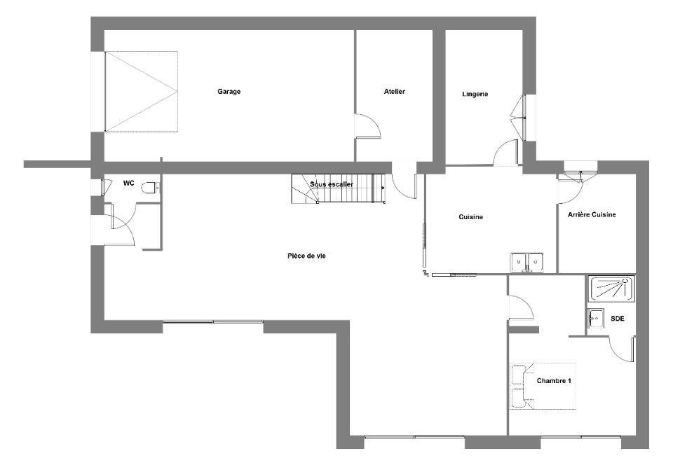
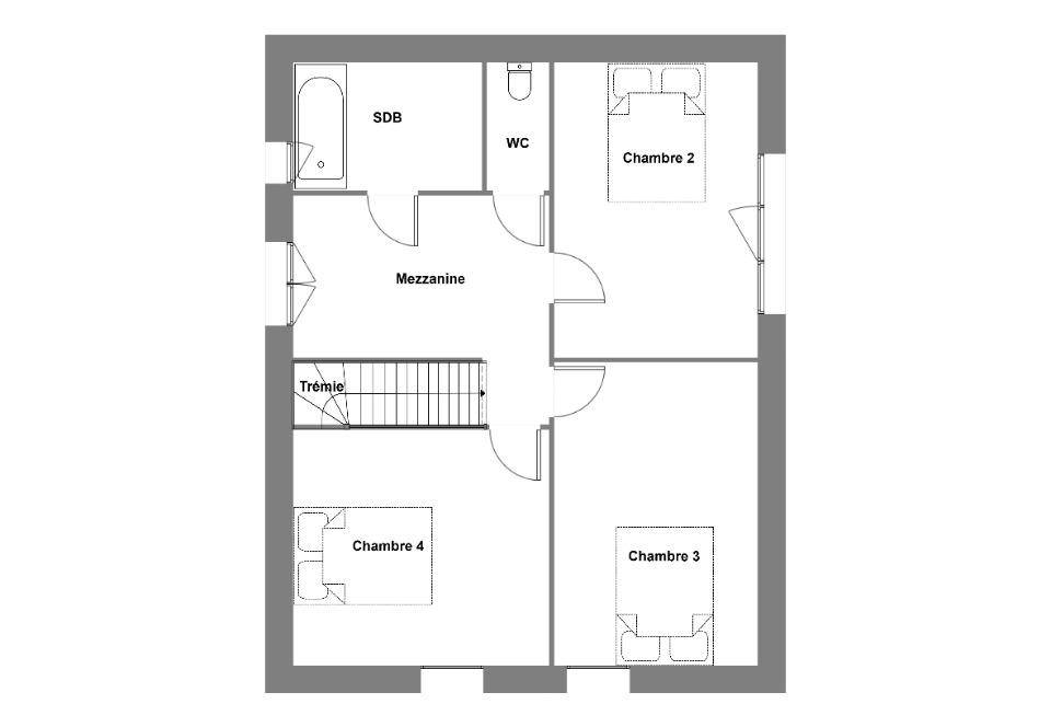
Dinard : maison F6 (150 m²) en vente
EMPLACEMENT PRIVILÉGIÉ - A moins de 2km de la plage du Port Blanc, de la Plage du Prieuré ou encore de la zone commerciale Cap Emeraude', vous profiterez pleinement du cadre de vie dynamique de ce quartier.
MAISON 6 PIÈCES NEUVE
À vendre à 4 km de la Manche et à quelques kilomètres de Saint-Malo, venez découvrir cette maison de 6 pièces de 150 m² et de 578 m² de terrain bénéficiant d'un emplacement d'exception dans Dinard (35800).
Cette maison compte 2 niveaux. Son intérieur est composé de quatre chambres, d'une cuisine et de deux salles de bains. La maison est neuve.
Cette maison est située dans un secteur prisé. Il y a l'École Maternelle Publique Jules Verne, l'École Élémentaire Publique Claude Debussy et l'École Primaire Privée Notre Dame de la Mer à moins de 10 minutes à pied. Niveau transports en commun, on trouve la gare Saint-Malo à moins de 10 minutes en voiture. On trouve un accès à la nationale N176 à 12 km. Il y a un bassin de natation, des commerces, des boulangeries, un supermarché, des boucheries-charcuteries et un bureau de poste dans les environs. Le marché Place Crolard anime les environs.
Elle est à vendre pour la somme de 648 180 €.
Contactez Laetitia AMIRI (tél : (Numéro supprimé)) pour tout renseignement sur la propriété, sur les démarches à suivre ou sur les modalités de vente. Donnez vie à vos projets immobiliers avec Maisons de l'Avenir Saint-Carné.
Logement susceptibles de vous intéresser
Nous vous proposons de découvrir aussi cette sélection de logements situés à moins de 10km de Dinard et qui seraient susceptibles de vous intéresser.
 
  
 
 La Richardais
TERRAINLa Richardais : terrain de 281 m² en venteEMPLACEMENT PRIVILÉGIÉ – PROCHE DE DINARDTerrain de 281 m² en vente à 1 km de la Manche et à deux pas de Saint-Malo. Ce terrain se situe bénéficiant d’un emplacement d’exception dans La Richardais (35780). Dans un quartier prisé, ce terrain est proche des écoles et des commerces. Il y a l’École Élémentaire Publique Louis Bréhault, l’École Maternelle Publique Antoine Launay, l’École Primaire Privée Ste Anne et le Collège Privé Sainte-Marie à moins de 10 minutes à pied et trois crèches. Niveau transports en commun, on trouve les gares Saint-Malo et La Gouesnière-Cancale-Saint-Méloir-des-Ondes à moins de 10 minutes en voiture. La nationale N176 est accessible à 9 km. Il y a une bibliothèque, un tennis, une boulangerie, des commerces et un bureau de poste à quelques minutes de la propriété.Son prix de vente est de 145 000 €. N’hésitez pas à prendre contact avec notre agence (AMIRI Laetitia : (Numéro supprimé)) pour tout renseignement sur le terrain, sur les démarches à suivre ou sur les modalités de vente.
 
  
 
 La Richardais
TERRAIN ET MAISONLa Richardais : maison de 3 pièces (56 m²) à vendreEMPLACEMENT PRIVILÉGIÉ – PROCHE DE DINARDMAISON 3 PIÈCES NEUVEÀ 1 km de la Manche et à quelques kilomètres de Saint-Malo, votre agence Maisons de l’Avenir Saint-Carné est ravie de vous présenter cette maison de 3 pièces de plain-pied de 56 m² et de 281 m² de terrain en vente, bénéficiant d’un emplacement d’exception dans La Richardais (35780).Conçue de plain-pied, elle dispose de deux chambres, d’une cuisine et d’une salle de bains. Cette maison est neuve.Ce bien se situe dans un quartier convoité. L’École Élémentaire Publique Louis Bréhault, l’École Maternelle Publique Antoine Launay, l’École Primaire Privée Ste Anne et le Collège Privé Sainte-Marie sont implantés à moins de 10 minutes à pied, tout comme trois crèches. Niveau transports, on trouve les gares Saint-Malo et La Gouesnière-Cancale-Saint-Méloir-des-Ondes à moins de 10 minutes en voiture. La nationale N176 est accessible à 9 km. Il y a une bibliothèque, un tennis, une boulangerie, des commerces et un bureau de poste à proximité.Il est proposé à l’achat pour 281 050 €.N’hésitez pas à prendre contact avec Laetitia AMIRI (tél : (Numéro supprimé)) pour toute information sur la maison. Faites de vos projets immobiliers une réalité avec Maisons de l’Avenir Saint-Carné.
 
  
 
 La Richardais
TERRAIN ET MAISONLa Richardais : maison de 4 pièces (88 m²) en venteEMPLACEMENT PRIVILÉGIÉ – PROCHE DE DINARDMAISON 4 PIÈCES NEUVEÀ vendre : à 1 km de la Manche et à deux pas de Saint-Malo, découvrez cette maison de 4 pièces de 88 m² et de 281 m² de terrain bénéficiant d’un emplacement d’exception dans La Richardais (35780).Il s’agit d’une maison de 2 niveaux. Elle offre trois chambres, une cuisine et une salle de bains. Cette maison est neuve.La maison se situe dans un secteur attractif. Il y a l’École Élémentaire Publique Louis Bréhault, l’École Maternelle Publique Antoine Launay, l’École Primaire Privée Ste Anne et le Collège Privé Sainte-Marie à moins de 10 minutes à pied et trois crèches. Côté transports en commun, on trouve les gares Saint-Malo et La Gouesnière-Cancale-Saint-Méloir-des-Ondes à moins de 10 minutes en voiture. On trouve un accès à la nationale N176 à 9 km. Il y a une bibliothèque, un tennis, une boulangerie, des commerces et un bureau de poste à proximité du logement.Son prix de vente est de 297 050 €.Prenez contact avec Laetitia AMIRI ((Numéro supprimé)) pour toute question sur la propriété, sur les modalités de vente ou sur les démarches à suivre. Maisons de l’Avenir Saint-Carné est là pour vous accompagner dans tous vos projets immobiliers.
 
  
 
 La Richardais
TERRAIN ET MAISONVENTE d’une maison T5 (102 m²) à La RichardaisEMPLACEMENT PRIVILÉGIÉ – PROCHE DE DINARDMAISON 5 PIÈCES NEUVEEn vente : à 1 km de la Manche et à quelques kilomètres de Saint-Malo, Maisons de l’Avenir Saint-Carné vous présente, bénéficiant d’un emplacement privilégié dans La Richardais (35780), cette maison de 5 pièces de 102 m².Cette maison possède 2 niveaux. Elle comporte quatre chambres, une cuisine et deux salles de bains. La maison est neuve.Le terrain du bien s’étend sur 281 m².Cette maison est située dans un secteur recherché. On trouve l’École Élémentaire Publique Louis Bréhault, l’École Maternelle Publique Antoine Launay, l’École Primaire Privée Ste Anne et le Collège Privé Sainte-Marie à moins de 10 minutes à pied et trois crèches. Côté transports en commun, il y a deux gares (Saint-Malo et La Gouesnière-Cancale-Saint-Méloir-des-Ondes) à moins de 10 minutes en voiture. On trouve un accès à la nationale N176 à 9 km. On trouve une bibliothèque, un tennis, une boulangerie, des commerces et un bureau de poste dans les environs.Elle est à vendre pour la somme de 326 550 €.Contactez Laetitia AMIRI (tél : (Numéro supprimé)) pour tout renseignement sur la maison, sur les modalités de vente ou sur les démarches à suivre. Faites de vos projets immobiliers une réalité avec Maisons de l’Avenir Saint-Carné.
 
  
 
 La Richardais
TERRAIN ET MAISONLa Richardais : maison de 4 pièces (110 m²) à vendreEMPLACEMENT PRIVILÉGIÉ – PROCHE DE DINARDMAISON 4 PIÈCES NEUVEEn vente : à 1 km de la Manche et à quelques kilomètres de Saint-Malo, Maisons de l’Avenir Saint-Carné vous présente cette maison de 4 pièces de 110 m² bénéficiant d’un emplacement privilégié dans La Richardais (35780).Cette maison possède 2 niveaux. Elle est composée de trois chambres, d’une cuisine et de deux salles de bains. Cette maison est neuve.Le terrain du bien est de 281 m².La maison se situe dans un quartier recherché. L’École Élémentaire Publique Louis Bréhault, l’École Maternelle Publique Antoine Launay, l’École Primaire Privée Ste Anne et le Collège Privé Sainte-Marie sont implantés à moins de 10 minutes à pied, tout comme trois structures d’accueil pour les tout-petits. Côté transports en commun, on trouve les gares Saint-Malo et La Gouesnière-Cancale-Saint-Méloir-des-Ondes à moins de 10 minutes en voiture. On trouve un accès à la nationale N176 à 9 km. Il y a une bibliothèque, un tennis, une boulangerie, des commerces et un bureau de poste dans les environs.Elle est à vendre pour la somme de 372 850 €.Contactez notre agence (Laetitia AMIRI : (Numéro supprimé)) pour plus d’informations sur le bien ou sur les modalités de vente. Concrétisez vos projets immobiliers avec Maisons de l’Avenir Saint-Carné.
 
  
 
 La Richardais
TERRAIN ET MAISONVENTE d’une maison F4 (105 m²) à La RichardaisEMPLACEMENT PRIVILÉGIÉ – PROCHE DE DINARDMAISON 4 PIÈCES NEUVEEn vente : localisée à 1 km de la Manche et à 5 km de Saint-Malo, Maisons de l’Avenir Saint-Carné vous présente cette maison de 4 pièces de 105 m² bénéficiant d’un emplacement privilégié dans La Richardais (35780). Son intérieur est composé de quatre chambres, d’une cuisine et de deux salles de bains.Le terrain du bien s’étend sur 281 m².Cette maison compte 2 niveaux. Elle est neuve.La maison se trouve dans un quartier prisé. Il y a l’École Élémentaire Publique Louis Bréhault, l’École Maternelle Publique Antoine Launay, l’École Primaire Privée Ste Anne et le Collège Privé Sainte-Marie à moins de 10 minutes à pied et trois crèches. Niveau transports en commun, on trouve deux gares (Saint-Malo et La Gouesnière-Cancale-Saint-Méloir-des-Ondes) à moins de 10 minutes en voiture. Il y a un accès à la nationale N176 à 9 km. Il y a une bibliothèque, un tennis, une boulangerie, des commerces et un bureau de poste à quelques minutes de la maison.Elle est proposée à l’achat pour 377 650 €.Prenez contact avec notre agence (AMIRI Laetitia : (Numéro supprimé)) pour tout renseignement sur la maison ou sur les démarches à suivre. Faites de vos projets immobiliers une réalité avec Maisons de l’Avenir Saint-Carné.
 
  
 
 La Richardais
TERRAIN ET MAISONVENTE d’une maison de 4 pièces (83 m²) à La RichardaisEMPLACEMENT PRIVILÉGIÉ – MAISON BOIS QUALITATIVE, ECONOMIQUE ET DURABLE, 4 PIÈCES NEUVEÀ vendre à 1 km de la Manche et à quelques kilomètres de Saint-Malo, nous sommes heureux de vous proposer cette maison de 4 pièces de plain-pied de 83 m² bénéficiant d’un emplacement privilégié dans La Richardais (35780). Conçue de plain-pied, elle dispose de trois chambres, d’une cuisine et d’une salle de bains.Le terrain de la propriété est de 281 m².La maison est neuve.Cette maison se trouve dans un quartier recherché. Il y a l’École Élémentaire Publique Louis Bréhault, l’École Maternelle Publique Antoine Launay, l’École Primaire Privée Ste Anne et le Collège Privé Sainte-Marie à moins de 10 minutes à pied et trois structures d’accueil pour les tout-petits. Côté transports, on trouve deux gares (Saint-Malo et La Gouesnière-Cancale-Saint-Méloir-des-Ondes) à moins de 10 minutes en voiture. La nationale N176 est accessible à 9 km. Il y a une bibliothèque, un tennis, une boulangerie, des commerces et un bureau de poste à proximité du logement.Elle est proposée à l’achat pour 344 200 €.Prenez contact avec Laetitia AMIRI (tél : (Numéro supprimé)) pour obtenir de plus amples informations sur le bien ou sur les démarches à suivre. Concrétisez vos projets immobiliers avec Maisons de l’Avenir Saint-Carné.
 
  
 
 Pleurtuit
TERRAINPleurtuit : terrain de 753 m² à vendre, hors lotissement dans un environnement très calme.EMPLACEMENT PRIVILÉGIÉ – PROCHE DE SAINT-MALOEn vente à 3 km de la Manche et à quelques kilomètres de Saint-Malo à Pleurtuit (35730), grand terrain. Réalisez-y votre projet immobilier. Dans un secteur convoité, ce terrain bénéficiant d’un emplacement d’exception est proche des commerces et des écoles. Il y a des écoles maternelles et élémentaires à moins de 10 minutes à pied et une structure d’accueil pour les enfants en bas âge. Côté transports en commun, on trouve la gare Saint-Malo à moins de 10 minutes en voiture. La nationale N176 est accessible à 6 km. Il y a une bibliothèque, un tennis, des commerces, un supermarché, trois boulangeries, une boucherie-charcuterie et un bureau de poste à quelques minutes à peine.Il est proposé à l’achat pour 219 450 €. Contactez Laetitia AMIRI (tél : (Numéro supprimé)) pour toute information sur ce terrain. Maisons de l’Avenir Saint-Carné est là pour vous accompagner dans tous vos projets immobiliers.
 
  
 
 Pleurtuit
TERRAIN ET MAISONPleurtuit : maison F6 (118 m²) à vendre, hors lotissement dans un environnement très calme.EMPLACEMENT PRIVILÉGIÉ – MAISON 6 PIÈCES NEUVEEn vente à 3 km de la Manche et à quelques kilomètres de Saint-Malo, Maisons de l’Avenir Saint-Carné vous propose, bénéficiant d’un emplacement privilégié dans Pleurtuit (35730), cette maison de 6 pièces de 118 m² et de 753 m² de terrain.Cette maison comporte 2 niveaux. Son intérieur se divise en cinq chambres, une cuisine et deux salles de bains. Cette maison est neuve.Cette maison se situe dans un secteur convoité. Il y a des écoles maternelles et élémentaires à moins de 10 minutes à pied et une crèche. Côté transports en commun, on trouve la gare Saint-Malo à moins de 10 minutes en voiture. La nationale N176 est accessible à 6 km. Il y a une bibliothèque, un tennis, des commerces, un supermarché, trois boulangeries, une boucherie-charcuterie et un bureau de poste dans les environs.Son prix de vente est de 417 850 €.Prenez contact avec notre agence (AMIRI Laetitia : (Numéro supprimé)) pour toute question sur la maison, sur les modalités de vente ou sur les démarches à suivre.
L’actualité immobilière à Dinard
 27/11/2023
 
 27/11/2023
 
  02/11/2023
 
 02/11/2023
 
  30/10/2023
 
 30/10/2023
 
  20/10/2023
 
 20/10/2023
 
  16/10/2023
 
 16/10/2023
 
  16/10/2023
 
 16/10/2023
 
  
 
 
 
 
 
  
  
  
  
  
  
  
  
  
 