Maison à construire à Fougères (35300)
Images
Description
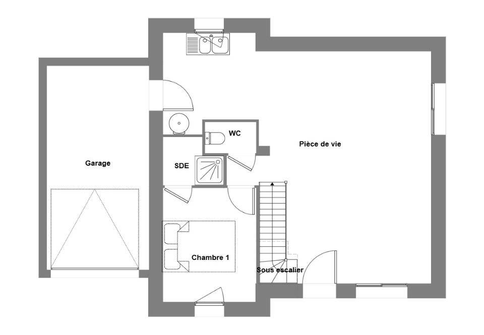
VENTE : maison T5 (89 m²) à Fougères
IDÉALEMENT SITUÉE - MAISON 5 PIÈCES NEUVE
En vente à 38 km de la Manche, nous sommes heureux de vous présenter, idéalement située dans Fougères (35300), cette maison de 5 pièces de 89 m² et de 300 m² de terrain. Son intérieur dispose de quatre chambres, d'une cuisine et de deux salles de bains.
Il s'agit d'une maison de 2 niveaux. Elle est neuve.
Cette maison se trouve dans un secteur attractif. Des établissements scolaires du primaire et du secondaire sont implantés à moins de 10 minutes à pied, tout comme une crèche. L'autoroute A84 est accessible à 8 km. On trouve une bibliothèque, des commerces, deux supermarchés, des boulangeries, des boucheries-charcuteries et deux poissonneries dans les environs. Enfin, le marché Centre-Ville a lieu chaque samedi matin.
Son prix de vente est de 234 000 €.
N'hésitez pas à prendre contact avec Dimitri MESAS (tél : (Numéro supprimé)) pour obtenir de plus amples renseignements sur la maison.
Logement susceptibles de vous intéresser
Nous vous proposons de découvrir aussi cette sélection de logements situés à moins de 10km de Fougères et qui seraient susceptibles de vous intéresser.
Fougères
TERRAINFougères : terrain de 300 m² en venteIDÉALEMENT SITUÉÀ 38 km de la Manche à Fougères (35300), terrain de 300 m². Réalisez-y la maison de vos rêves. Ce terrain, avec vue sur jardin, est orienté au sud. Ce terrain se trouve dans un quartier recherché. Il y a des établissements scolaires de tous niveaux à moins de 10 minutes à pied, tout comme une structure d’accueil pour la petite enfance. Il y a un accès à l’autoroute A84 à 8 km. On trouve une bibliothèque, des commerces, deux supermarchés, des boulangeries, un bureau de poste et des épiceries à proximité du terrain. Ne manquez pas le marché Centre-Ville chaque samedi matin.Il est à vendre pour la somme de 61 500 €. Prenez contact avec notre agence (Dimitri MESAS : (Numéro supprimé)) pour toute question sur le terrain. Concrétisez vos projets immobiliers avec Maisons de l’Avenir Cesson-Sévigné.
Fougères
TERRAIN ET MAISONFougères : maison de 3 pièces (72 m²) en venteIDÉALEMENT SITUÉE – MAISON 3 PIÈCES NEUVEEn vente : à 38 km de la Manche, Maisons de l’Avenir Cesson-Sévigné vous présente cette maison de 3 pièces de 72 m² et de 300 m² de terrain idéalement située dans Fougères (35300).Cette maison compte 2 niveaux. Son intérieur propose deux chambres, une cuisine et une salle de bains. Cette maison est neuve.La maison se trouve dans un quartier prisé. Il y a des écoles du primaire et du secondaire à moins de 10 minutes à pied, tout comme une crèche. On trouve un accès à l’autoroute A84 à 8 km. On trouve une bibliothèque, des commerces, deux supermarchés, des boulangeries, deux poissonneries et des boucheries-charcuteries dans les environs. Ne manquez pas le marché Centre-Ville tous les samedis matin.Son prix de vente est de 214 500 €.N’hésitez pas à prendre contact avec notre agence (Dimitri MESAS : (Numéro supprimé)) pour plus de renseignements sur la maison.
Fougères
TERRAIN ET MAISONVENTE : maison T5 (89 m²) à FougèresIDÉALEMENT SITUÉE – MAISON 5 PIÈCES NEUVEEn vente à 38 km de la Manche, nous sommes heureux de vous présenter, idéalement située dans Fougères (35300), cette maison de 5 pièces de 89 m² et de 300 m² de terrain. Son intérieur dispose de quatre chambres, d’une cuisine et de deux salles de bains.Il s’agit d’une maison de 2 niveaux. Elle est neuve.Cette maison se trouve dans un secteur attractif. Des établissements scolaires du primaire et du secondaire sont implantés à moins de 10 minutes à pied, tout comme une crèche. L’autoroute A84 est accessible à 8 km. On trouve une bibliothèque, des commerces, deux supermarchés, des boulangeries, des boucheries-charcuteries et deux poissonneries dans les environs. Enfin, le marché Centre-Ville a lieu chaque samedi matin.Son prix de vente est de 234 000 €.N’hésitez pas à prendre contact avec Dimitri MESAS (tél : (Numéro supprimé)) pour obtenir de plus amples renseignements sur la maison.
Fougères
TERRAIN ET MAISONFougères : maison T5 (90 m²) en venteIDÉALEMENT SITUÉE – MAISON 5 PIÈCES NEUVEÀ vendre : située à 38 km de la Manche, ayez le coup de coeur pour cette maison de 5 pièces de 90 m² avec vue sur jardin idéalement située dans Fougères (35300).Cette maison compte 2 niveaux. Son intérieur offre quatre chambres, une cuisine et une salle de bains. La maison est neuve.Le terrain de la propriété s’étend sur 300 m².Le bien est situé dans un secteur attractif. Des établissements scolaires de tous niveaux sont implantés à moins de 10 minutes à pied, tout comme une crèche. On trouve un accès à l’autoroute A84 à 8 km. Il y a une bibliothèque, des commerces, deux supermarchés, des boulangeries, deux poissonneries et une supérette dans les environs. Enfin, le marché Centre-Ville a lieu tous les samedis matin.Son prix de vente est de 242 000 €.Contactez Dimitri MESAS ((Numéro supprimé)) pour toute information sur la maison ou sur les modalités de vente. Maisons de l’Avenir Cesson-Sévigné vous accompagne à toutes les étapes de l’achat et dans toutes vos démarches.
Fougères
TERRAIN ET MAISONFougères : maison F4 (95 m²) à vendreIDÉALEMENT SITUÉE – MAISON 4 PIÈCES NEUVEEn vente : à 38 km de la Manche, idéalement située dans Fougères (35300), nous sommes heureux de vous proposer cette maison de 4 pièces de 95 m².Cette maison comporte 2 niveaux. Elle inclut trois chambres, une cuisine et deux salles de bains. Cette maison est neuve.Le terrain du bien s’étend sur 300 m².La maison est située dans un quartier prisé. Des écoles de tous niveaux se trouvent à moins de 10 minutes à pied, tout comme une crèche. On trouve un accès à l’autoroute A84 à 8 km. Il y a une bibliothèque, des commerces, deux supermarchés, des boulangeries, des boucheries-charcuteries et une supérette à proximité. Le marché Centre-Ville a lieu chaque samedi matin.Elle est à vendre pour la somme de 271 500 €.Contactez notre agence (MESAS Dimitri : (Numéro supprimé)) pour plus de renseignements sur la maison ou sur les démarches à suivre.
Fougères
TERRAIN ET MAISONVENTE d’une maison de 5 pièces (97 m²) à FougèresIDÉALEMENT SITUÉE – MAISON 5 PIÈCES NEUVEÀ vendre : à 38 km de la Manche, idéalement située dans Fougères (35300), nous vous proposons cette maison de 5 pièces de 97 m². Son intérieur est composé de quatre chambres, d’une cuisine et de deux salles de bains.Le terrain de cette maison est de 300 m².C’est une maison de 2 niveaux. Elle est neuve.La propriété est située dans un secteur convoité. Il y a des écoles (de la maternelle au lycée) à moins de 10 minutes à pied, tout comme une crèche. L’autoroute A84 est accessible à 8 km. On trouve une bibliothèque, des commerces, deux supermarchés, des boulangeries, une supérette et deux poissonneries à quelques minutes. Ne manquez pas le marché Centre-Ville chaque samedi matin.Elle est à vendre pour la somme de 280 000 €.N’hésitez pas à prendre contact avec notre agence (Dimitri MESAS : (Numéro supprimé)) pour tout renseignement sur la maison. Faites de vos projets immobiliers une réalité avec Maisons de l’Avenir Cesson-Sévigné.
Fougères
TERRAINTerrains viabilisés de 192 m² à 469 m², libres de constructeur sur la commune de Fougères, en Ille-et-Vilaine.Découvrez notre nouvelle opération composée de 23 lots « La Placardière 2 » située rue Florence Arthaud.Idéalement située à proximité de l’autoroute A84. Fougères est à 15 minutes de Saint-Aubin-du-Cormier, 20 minutes de Vitré, 20 minutes de Liffré et 25 minutes de Rennes.La commune allie à la fois le dynamisme d’une «ville moyenne» avec ses commerces et infrastructures importantes et le charme d’une ville médiévale, tout en profitant d’une réelle proximité avec la nature.Retrouvez l’ensemble de nos lots disponibles sur notre site internet.
Beaucé
TERRAIN ET MAISONCadre paisible et verdoyant, vie locale conviviale et accès rapide aux services de Fougères : un environnement serein et familial idéal pour construire un foyer. . Une maison compacte et astucieuse, idéale pour tous les terrains ! Pensée pour optimiser chaque mètre carré, cette maison combine modernité et praticité pour un confort au quotidien. Au rez-de-chaussée, une pièce de vie lumineuse et spacieuse accueille un espace salon et salle à manger convivial, ainsi qu’une cuisine ouverte, parfaite pour le partage et la convivialité. Un cellier discret facilite le rangement, et un WC indépendant vient compléter cet espace fonctionnel. À l’étage, trois chambres bien agencées offrent à chacun son espace personnel. Une salle de bain moderne, un WC supplémentaire et un dégagement optimisé assurent praticité et fluidité dans la vie de tous les jours. Un design intelligent, une optimisation parfaite de l’espace et une adaptabilité idéale aux terrains de toutes tailles ! Pour vous assurer un confort de vie optimal et en conformité avec la RE2025, nous avons opté pour un système de chauffage par pompe à chaleur (PAC) avec plancher chauffant au rez-de-chaussée et radiateurs à l’étage. Le logement est également équipé de volets roulants électriques. Prix hors fourniture et pose : des appareils sanitaires (sauf système de chauffage et d'eau chaude sanitaire), du carrelage et de la faïence, des revêtements de sol dans les chambres. Hors décoration et aménagement intérieur et peinture. Hors raccordements, frais de notaire et dommage ouvrage. // Réf. : 686-213291-NOC. Prix terrain : 35 500 €, hors frais d'agence à la charge de l'acquéreur. Ce terrain vous est proposé, par nos partenaires fonciers, dans le cadre d'un projet de construction avec nous. Les informations sur les risques auxquels ce bien est exposé sont disponibles sur le site Géorisques (www.georisques.gouv.fr). Prix maison : 157 875 €.
Romagné
TERRAINTerrains viabilisés de 312 m² à 751 m², libres de constructeur sur la commune de Romagné, en Ille-et-Vilaine.Découvrez notre opération de lots » Les Jardins de Reine, située à La Croix Noire.Idéalement située à 20 minutes au nord-est de Rennes et à 5 minutes de Fougères, Romagné est une commune en plein développement.Romagné est dotée d’un patrimoine culturel et historique riche et de nombreux sentiers pédestres. Profitez également de la proximité de la ville de Fougères pour y découvrir son histoire, son patrimoine et son célèbre château.Retrouvez l’ensemble de nos lots disponibles sur notre site internet.
L’actualité immobilière à Fougères
27/11/2023
02/11/2023
30/10/2023
20/10/2023
16/10/2023
16/10/2023