Maison à construire à Gosné (35140)
Images
Description
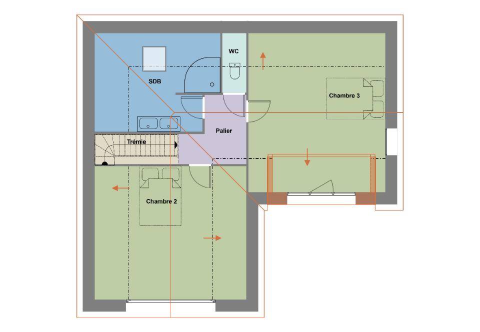
VENTE : maison de 4 pièces (117 m²) à Gosné
IDÉALEMENT SITUÉE - MAISON 4 PIÈCES NEUVE
En vente : à 44 km de la Manche et à 23 km de Rennes, idéalement située dans Gosné (35140), nous vous proposons cette maison de 4 pièces de 117 m² avec vue sur jardin. Son intérieur compte trois chambres, une cuisine et deux salles de bains.
Le terrain de la maison est de 460 m².
Cette maison comporte 2 niveaux. Elle est neuve.
Cette maison se situe dans un quartier prisé. L'École Primaire Publique Nominoë et l'École Primaire Privée Jeanne-Marie Lebossé sont implantées à moins de 10 minutes à pied. On trouve un accès à l'autoroute A84 à 4 km. On trouve une bibliothèque, un tennis, une boulangerie, une boucherie-charcuterie et une épicerie dans les environs.
Son prix de vente est de 341 000 €.
N'hésitez pas à prendre contact avec Dimitri MESAS (tél : (Numéro supprimé)) pour tout renseignement sur la maison. Maisons de l'Avenir Cesson-Sévigné est là pour vous accompagner à toutes les étapes de votre projet.
Logement susceptibles de vous intéresser
Nous vous proposons de découvrir aussi cette sélection de logements situés à moins de 10km de Gosné et qui seraient susceptibles de vous intéresser.
Gosné
TERRAIN ET MAISONGosné : maison T3 (86 m²) en venteIDÉALEMENT SITUÉE – MAISON 3 PIÈCES NEUVEÀ vendre : à 44 km de la Manche et à 23 km de Rennes, idéalement située dans Gosné (35140), découvrez cette maison de 3 pièces de plain-pied de 86 m² et de 460 m² de terrain. Elle comporte trois chambres, une cuisine et une salle de bains.Cette maison est neuve.La propriété est située dans un secteur convoité. L’École Primaire Publique Nominoë et l’École Primaire Privée Jeanne-Marie Lebossé se trouvent à moins de 10 minutes à pied. L’autoroute A84 est accessible à 4 km. Il y a une bibliothèque, un tennis, une boulangerie, une épicerie et une boucherie-charcuterie dans les environs.Elle est à vendre pour la somme de 279 000 €.N’hésitez pas à prendre contact avec Dimitri MESAS ((Numéro supprimé)) pour tout renseignement sur la maison, sur les démarches à suivre ou sur les modalités de vente.
Gosné
TERRAIN ET MAISONVENTE d’une maison de 5 pièces (87 m²) à GosnéIDÉALEMENT SITUÉE – MAISON 5 PIÈCES NEUVEÀ vendre à 44 km de la Manche et à quelques kilomètres de Rennes, ayez le coup de coeur pour, idéalement située dans Gosné (35140), cette maison de 5 pièces de 87 m².C’est une maison de 2 niveaux. Elle se divise en quatre chambres, une cuisine et une salle de bains. Cette maison est neuve.Le terrain du bien s’étend sur 460 m².La maison se situe dans un secteur prisé. Il y a l’École Primaire Publique Nominoë et l’École Primaire Privée Jeanne-Marie Lebossé à moins de 10 minutes à pied. Il y a un accès à l’autoroute A84 à 4 km. On trouve une bibliothèque, un tennis, une boulangerie, une épicerie et une boucherie-charcuterie à quelques minutes à peine.Elle est proposée à l’achat pour 278 000 €.N’hésitez pas à prendre contact avec notre agence (MESAS Dimitri : (Numéro supprimé)) pour toute information sur la maison ou sur les modalités de vente.
Gosné
TERRAINVENTE : terrain de 460 m² à GosnéIDÉALEMENT SITUÉ – PROCHE DE RENNESÀ Gosné (35140) à 44 km de la Manche et à 23 km de Rennes, donnez vie à la maison de vos rêves sur ce terrain de 460 m². Ce terrain, avec vue sur jardin, bénéficie d’une exposition sud. Il se situe dans un quartier prisé. Il y a l’École Primaire Publique Nominoë et l’École Primaire Privée Jeanne-Marie Lebossé à moins de 10 minutes à pied. On trouve un accès à l’autoroute A84 à 4 km. On trouve une bibliothèque, un tennis, une boulangerie, une boucherie-charcuterie et une épicerie à proximité.Son prix de vente est de 82 600 €. Contactez Dimitri MESAS ((Numéro supprimé)) pour tout renseignement sur le terrain, sur les modalités de vente ou sur les démarches à suivre. Maisons de l’Avenir Cesson-Sévigné est là pour vous accompagner dans tous vos projets immobiliers.
Gosné
TERRAIN ET MAISONMAISON OSSATURE BOIS Maison F5 (97 m²) à vendre à GosnéIDÉALEMENT SITUÉE – MAISON 5 PIÈCES NEUVEEn vente à 44 km de la Manche et à deux pas de Rennes, venez découvrir cette maison de 5 pièces de 97 m² et de 460 m² de terrain idéalement située dans Gosné (35140). Son intérieur comporte quatre chambres, une cuisine et deux salles de bains.Cette maison possède 2 niveaux. Elle est neuve.Cette maison se situe dans un secteur recherché. L’École Primaire Publique Nominoë et l’École Primaire Privée Jeanne-Marie Lebossé se trouvent à moins de 10 minutes à pied. Il y a un accès à l’autoroute A84 à 4 km. Il y a une bibliothèque, un tennis, une boulangerie, une boucherie-charcuterie et une épicerie dans les environs.Elle est proposée à l’achat pour 307 900 €.Contactez notre agence (Dimitri MESAS : (Numéro supprimé)) pour obtenir de plus amples renseignements sur la maison. Faites de vos projets immobiliers une réalité avec Maisons de l’Avenir Cesson-Sévigné.
Gosné
TERRAIN ET MAISONGosné : maison T5 (140 m²) à vendreIDÉALEMENT SITUÉE – MAISON 5 PIÈCES NEUVEEn vente à 44 km de la Manche et à 23 km de Rennes, venez découvrir cette maison de 5 pièces de 140 m² idéalement située dans Gosné (35140). Son intérieur offre quatre chambres, une cuisine et deux salles de bains.Le terrain de la propriété est de 460 m².Cette maison comporte 2 niveaux. Elle est neuve.Cette maison se trouve dans un quartier recherché. Il y a l’École Primaire Publique Nominoë et l’École Primaire Privée Jeanne-Marie Lebossé à moins de 10 minutes à pied. Il y a un accès à l’autoroute A84 à 4 km. On trouve une bibliothèque, un tennis, une boulangerie, une épicerie et une boucherie-charcuterie dans les environs.Son prix de vente est de 372 000 €.Contactez notre agence (MESAS Dimitri : (Numéro supprimé)) pour obtenir de plus amples renseignements sur la maison, sur les modalités de vente ou sur les démarches à suivre. Faites de vos projets immobiliers une réalité avec Maisons de l’Avenir Cesson-Sévigné.
Gosné
TERRAIN ET MAISONVENTE : maison de 4 pièces (117 m²) à GosnéIDÉALEMENT SITUÉE – MAISON 4 PIÈCES NEUVEEn vente : à 44 km de la Manche et à 23 km de Rennes, idéalement située dans Gosné (35140), nous vous proposons cette maison de 4 pièces de 117 m² avec vue sur jardin. Son intérieur compte trois chambres, une cuisine et deux salles de bains.Le terrain de la maison est de 460 m².Cette maison comporte 2 niveaux. Elle est neuve.Cette maison se situe dans un quartier prisé. L’École Primaire Publique Nominoë et l’École Primaire Privée Jeanne-Marie Lebossé sont implantées à moins de 10 minutes à pied. On trouve un accès à l’autoroute A84 à 4 km. On trouve une bibliothèque, un tennis, une boulangerie, une boucherie-charcuterie et une épicerie dans les environs.Son prix de vente est de 341 000 €.N’hésitez pas à prendre contact avec Dimitri MESAS (tél : (Numéro supprimé)) pour tout renseignement sur la maison. Maisons de l’Avenir Cesson-Sévigné est là pour vous accompagner à toutes les étapes de votre projet.
Dourdain
TERRAIN ET MAISONDécouvrez un projet d’exception à Dourdain : un terrain situé dans un cadre verdoyant et paisible, idéal pour profiter pleinement de la vie à la campagne tout en restant proche des commodités. Bien desservi, il permet de rejoindre facilement Rennes en moins de 30 minutes et les villes environnantes, alliant sérénité et praticité. Un emplacement privilégié pour concrétiser votre projet dans un environnement naturel et préservé. Maison rectangulaire de plain-pied de plus de 100 m² habitables qui vous séduira par son espace de vie traversant baigné de lumière grâce à ses ouvertures, un cellier et un garage accessible de la cuisine ouverte. Pour l’espace nuit, 4 chambres, une salle de bains avec douche et baignoire, un wc séparé. Pour vous assurer un confort de vie et conformément à la RE2025, nous avons choisi un mode de chauffage par PAC + plancher chauffant, volets roulants électriques. Prix hors fourniture et pose : des appareils sanitaires (sauf système de chauffage et d'eau chaude sanitaire), du carrelage et de la faïence, des revêtements de sol dans les chambres. Hors décoration et aménagement intérieur et peinture. Hors raccordements, frais de notaire et dommage ouvrage. // Réf. : 1449-213389-CLM. Prix terrain : 46 000 €, hors frais d'agence à la charge de l'acquéreur. Ce terrain vous est proposé, par nos partenaires fonciers, dans le cadre d'un projet de construction avec nous. Les informations sur les risques auxquels ce bien est exposé sont disponibles sur le site Géorisques (www.georisques.gouv.fr). Prix maison : 151 609 €.
Dourdain
TERRAIN ET MAISONDécouvrez un projet d’exception à Dourdain : un terrain situé dans un cadre verdoyant et paisible, idéal pour profiter pleinement de la vie à la campagne tout en restant proche des commodités. Bien desservi, il permet de rejoindre facilement Rennes en moins de 30 minutes et les villes environnantes, alliant sérénité et praticité. Un emplacement privilégié pour concrétiser votre projet dans un environnement naturel et préservé. Bien pensée et fonctionnelle. Avec son architecture en L et de plain-pied, la maison CARNEY vous séduira par sa cuisine ouverte sur un bel espace de vie lumineux et ses trois chambresPour vous assurer un confort de vie et conformément à la RE2025, nous avons choisi un mode de chauffage par PAC + plancher chauffant, volets roulants électriques. Prix hors fourniture et pose : des appareils sanitaires (sauf système de chauffage et d'eau chaude sanitaire), du carrelage et de la faïence, des revêtements de sol dans les chambres. Hors décoration et aménagement intérieur et peinture. Hors raccordements, frais de notaire et dommage ouvrage. // Réf. : 716-213389-CLM. Prix terrain : 46 000 €, hors frais d'agence à la charge de l'acquéreur. Ce terrain vous est proposé, par nos partenaires fonciers, dans le cadre d'un projet de construction avec nous. Les informations sur les risques auxquels ce bien est exposé sont disponibles sur le site Géorisques (www.georisques.gouv.fr). Prix maison : 118 845 €.
Dourdain
TERRAINDécouvrez un projet d’exception à Dourdain : un terrain situé dans un cadre verdoyant et paisible, idéal pour profiter pleinement de la vie à la campagne tout en restant proche des commodités. Bien desservi, il permet de rejoindre facilement Rennes en moins de 30 minutes et les villes environnantes, alliant sérénité et praticité. Un emplacement privilégié pour concrétiser votre projet dans un environnement naturel et préservé. // Réf. : T213389. Prix terrain : 46 000 €, hors frais d'agence et de notaire à la charge de l'acquéreur. Ce terrain vous est proposé, par nos partenaires fonciers, dans le cadre d'un projet de construction avec nous. Les informations sur les risques auxquels ce bien est exposé sont disponibles sur le site Géorisques (www.georisques.gouv.fr).
L’actualité immobilière à Gosné
27/11/2023
02/11/2023
30/10/2023
20/10/2023
16/10/2023
16/10/2023