Maison à construire à Guichen (35580)
Images
Description
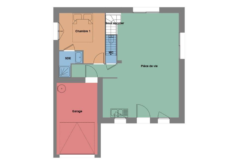
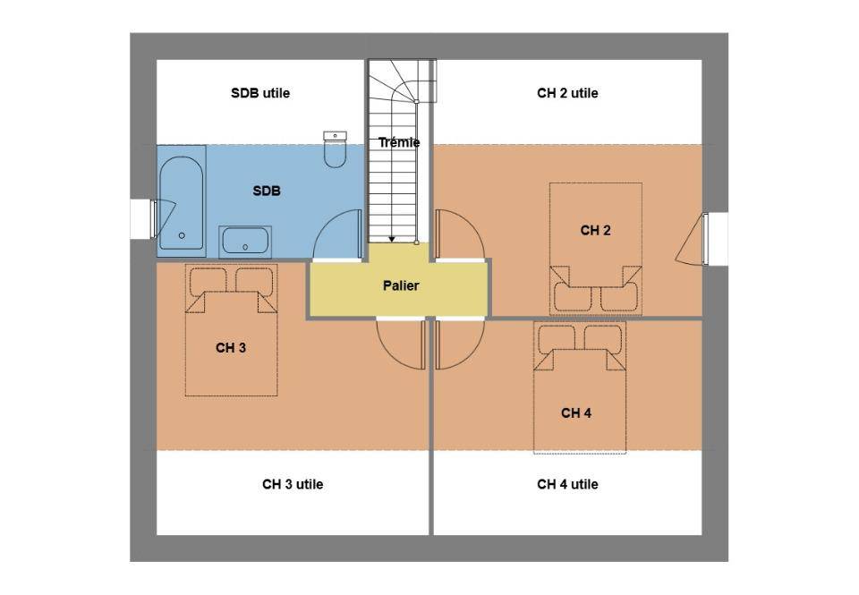
Maison de 5 pièces (102 m²) à vendre à Guichen
IDÉALEMENT SITUÉE - MAISON 5 PIÈCES NEUVE
À vendre : localisée à quelques kilomètres de Rennes, Maisons de l'Avenir Cesson-Sévigné vous présente, idéalement située dans Guichen (35580), cette maison de 5 pièces de 102 m² et de 350 m² de terrain. Elle compte quatre chambres, une cuisine et deux salles de bains.
C'est une maison de 2 niveaux. Elle est neuve.
La maison est située dans un secteur prisé. On trouve quatre établissements scolaires à moins de 10 minutes à pied. Côté transports en commun, il y a cinq gares à moins de 10 minutes en voiture. On trouve un accès à la nationale N137 à 8 km. On trouve une bibliothèque, un tennis, quatre boulangeries, des commerces, une supérette, un bureau de poste et une boucherie-charcuterie à proximité.
Son prix de vente est de 260 000 €.
Contactez notre agence (Dimitri MESAS : (Numéro supprimé)) pour toute question sur la maison. Maisons de l'Avenir Cesson-Sévigné est là pour vous accompagner dans tous vos projets immobiliers.
Logement susceptibles de vous intéresser
Nous vous proposons de découvrir aussi cette sélection de logements situés à moins de 10km de Guichen et qui seraient susceptibles de vous intéresser.
Guignen
TERRAIN ET MAISONGuignen : maison T3 (65 m²) à vendreIDÉALEMENT SITUÉE – MAISON 3 PIÈCES NEUVEÀ vendre : à 24 km de Rennes, idéalement située dans Guignen (35580), nous sommes ravis de vous proposer cette maison de 3 pièces de 65 m² et de 391 m² de terrain avec vue sur jardin.Cette maison est de plain-pied. Elle comporte deux chambres, une cuisine et une salle de bains. Cette maison est neuve.Cette maison se trouve dans un quartier prisé. Il y a le Collège Privé Saint Joseph, l’École Primaire Publique Aimé Bailleul et l’École Primaire Privée Saint Joseph à moins de 10 minutes à pied et une structure d’accueil pour la petite enfance. Niveau transports, on trouve les gares Saint-Senoux-Pléchâtel, Guichen-Bourg-des-Comptes et Pléchâtel à moins de 10 minutes en voiture. Les nationales N137 et N24 sont accessibles à moins de 15 km. Il y a un tennis, une bibliothèque, trois boulangeries, un supermarché et un commerce à proximité.Elle est proposée à l’achat pour 207 500 €.Contactez Dimitri MESAS (tél : (Numéro supprimé)) pour toute information sur la maison, sur les modalités de vente ou sur les démarches à suivre. Maisons de l’Avenir Cesson-Sévigné vous accompagne à toutes les étapes de votre projet et dans tous vos projets immobiliers.
Goven
TERRAINTerrain de 384 m² en vente à GovenIDÉALEMENT SITUÉ – PROCHE DE RENNESEn vente à deux pas de Rennes à Goven (35580), terrain de 384 m². Ce terrain, avec vue sur jardin, est orienté au sud. Il se trouve dans un quartier prisé. L’École Maternelle Publique la Marelle, l’École Élémentaire Publique la Marelle et l’École Primaire Privée St Guénolé sont implantées à moins de 10 minutes à pied. Niveau transports en commun, il y a trois gares (Bruz, Laillé et Ker Lann) à moins de 10 minutes en voiture. Il y a un accès à la nationale N24 à 7 km. On trouve un tennis, une bibliothèque, une boulangerie, un commerce, un supermarché, une boucherie-charcuterie et un bureau de poste dans les environs.Son prix de vente est de 89 625 €. Contactez notre agence (Dimitri MESAS : (Numéro supprimé)) pour obtenir de plus amples informations sur ce terrain ou sur les démarches à suivre. Maisons de l’Avenir Cesson-Sévigné est là pour vous accompagner à toutes les étapes de l’achat.
Guignen
TERRAIN ET MAISONVENTE : maison F5 (88 m²) à GuignenIDÉALEMENT SITUÉE – MAISON 5 PIÈCES NEUVEÀ vendre : à 24 km de Rennes, nous sommes ravis de vous présenter cette maison de 5 pièces de 88 m² idéalement située dans Guignen (35580).C’est une maison de 2 niveaux. Son intérieur dispose de quatre chambres, d’une cuisine et d’une salle de bains. Cette maison est neuve.Le terrain du bien s’étend sur 391 m².Cette maison est située dans un secteur recherché. Le Collège Privé Saint Joseph, l’École Primaire Publique Aimé Bailleul et l’École Primaire Privée Saint Joseph se trouvent à moins de 10 minutes à pied, tout comme une structure d’accueil pour la petite enfance. Niveau transports en commun, il y a les gares Saint-Senoux-Pléchâtel, Guichen-Bourg-des-Comptes et Pléchâtel à moins de 10 minutes en voiture. Les nationales N137 et N24 sont accessibles à moins de 15 km. On trouve un tennis, une bibliothèque, trois boulangeries, un supermarché et un commerce à proximité du logement.Elle est proposée à l’achat pour 249 000 €.Contactez notre agence (Dimitri MESAS : (Numéro supprimé)) pour obtenir de plus amples renseignements sur la maison, sur les démarches à suivre et sur les modalités de vente. Concrétisez vos projets immobiliers avec Maisons de l’Avenir Cesson-Sévigné.
Guichen
TERRAIN ET MAISONMaison de 5 pièces (102 m²) à vendre à GuichenIDÉALEMENT SITUÉE – MAISON 5 PIÈCES NEUVEÀ vendre : localisée à quelques kilomètres de Rennes, Maisons de l’Avenir Cesson-Sévigné vous présente, idéalement située dans Guichen (35580), cette maison de 5 pièces de 102 m² et de 350 m² de terrain. Elle compte quatre chambres, une cuisine et deux salles de bains.C’est une maison de 2 niveaux. Elle est neuve.La maison est située dans un secteur prisé. On trouve quatre établissements scolaires à moins de 10 minutes à pied. Côté transports en commun, il y a cinq gares à moins de 10 minutes en voiture. On trouve un accès à la nationale N137 à 8 km. On trouve une bibliothèque, un tennis, quatre boulangeries, des commerces, une supérette, un bureau de poste et une boucherie-charcuterie à proximité.Son prix de vente est de 260 000 €.Contactez notre agence (Dimitri MESAS : (Numéro supprimé)) pour toute question sur la maison. Maisons de l’Avenir Cesson-Sévigné est là pour vous accompagner dans tous vos projets immobiliers.
Bruz
TERRAIN ET MAISONMAISON OSSATURE BOISVENTE : maison de 5 pièces (97 m²) à BruzIDÉALEMENT SITUÉE – MAISON 5 PIÈCES NEUVEÀ deux pas de Rennes, nous sommes ravis de vous proposer cette maison de 5 pièces de 97 m² et de 252 m² de terrain idéalement située dans Bruz (35170).Il s’agit d’une maison de 2 niveaux. Son intérieur offre quatre chambres, une cuisine et deux salles de bains. Cette maison est neuve.La maison est située dans un quartier recherché. Des écoles de tous niveaux (de la maternelle au lycée) y sont implantées. Côté transports, il y a la gare Ker Lann à moins de 10 minutes à pied. Les nationales N137, N136 et N24 sont accessibles à moins de 6 km. On trouve deux tennis à quelques minutes à peine.Elle est à vendre pour la somme de 362 000 €.Contactez Dimitri MESAS ((Numéro supprimé)) pour tout renseignement sur la maison, sur les modalités de vente ou sur les démarches à suivre.
Guichen
TERRAIN ET MAISONGuichen : maison de 3 pièces (65 m²) à vendreIDÉALEMENT SITUÉE – MAISON 3 PIÈCES NEUVEÀ vendre à 19 km de Rennes, découvrez cette maison de 3 pièces de 65 m² avec vue sur jardin idéalement située dans Guichen (35580). Son intérieur est composé de deux chambres, d’une cuisine et d’une salle de bains.Le terrain de la propriété s’étend sur 350 m².C’est une maison de plain-pied. Elle est neuve.La maison se situe dans un secteur convoité. Quatre établissements scolaires sont implantés à moins de 10 minutes à pied. Côté transports, on trouve cinq gares à moins de 10 minutes en voiture. On trouve un accès à la nationale N137 à 8 km. Il y a une bibliothèque, un tennis, quatre boulangeries, des commerces, une boucherie-charcuterie, un bureau de poste et une supérette dans les environs.Elle est à vendre pour la somme de 216 700 €.Contactez notre agence (Dimitri MESAS : (Numéro supprimé)) pour tout renseignement sur la maison, sur les démarches à suivre et sur les modalités de vente. Maisons de l’Avenir Cesson-Sévigné vous accompagne à toutes les étapes de l’achat et dans tous vos projets immobiliers.
Bruz
TERRAIN ET MAISONMaison de 4 pièces (95 m²) à vendre à BruzIDÉALEMENT SITUÉE – MAISON 4 PIÈCES NEUVEÀ vendre à deux pas de Rennes, Maisons de l’Avenir Cesson-Sévigné vous présente cette maison de 4 pièces de 95 m² et de 252 m² de terrain avec vue sur jardin idéalement située dans Bruz (35170). Elle se divise en trois chambres, une cuisine et deux salles de bains.Cette maison compte 2 niveaux. Elle est neuve.La maison se trouve dans un secteur convoité. Des écoles du primaire et du secondaire y sont implantées. Côté transports, il y a la gare Ker Lann à moins de 10 minutes à pied. Les nationales N137, N136 et N24 sont accessibles à moins de 6 km. On trouve deux tennis à quelques minutes à peine.Elle est à vendre pour la somme de 337 000 €.N’hésitez pas à prendre contact avec notre agence (MESAS Dimitri : (Numéro supprimé)) pour obtenir de plus amples renseignements sur le bien.
Goven
TERRAIN ET MAISONGoven : maison de 5 pièces (145 m²) à vendreIDÉALEMENT SITUÉE – MAISON 5 PIÈCES NEUVEEn vente à 16 km de Rennes, Maisons de l’Avenir Cesson-Sévigné vous présente cette maison de 5 pièces de 145 m² et de 384 m² de terrain idéalement située dans Goven (35580). Elle dispose de quatre chambres, d’une cuisine et de deux salles de bains.C’est une maison de 2 niveaux. Elle est neuve.Le bien se trouve dans un secteur convoité. L’École Maternelle Publique la Marelle, l’École Élémentaire Publique la Marelle et l’École Primaire Privée St Guénolé sont implantées à moins de 10 minutes à pied. Niveau transports, on trouve les gares Bruz, Laillé et Ker Lann à moins de 10 minutes en voiture. Il y a un accès à la nationale N24 à 7 km. Il y a un tennis, une bibliothèque, une boulangerie, un commerce, un supermarché, un bureau de poste et une boucherie-charcuterie à proximité.Il est à vendre pour la somme de 397 500 €.Prenez contact avec notre agence (Dimitri MESAS : (Numéro supprimé)) pour obtenir de plus amples informations sur la maison, sur les démarches à suivre ou sur les modalités de vente. Concrétisez vos projets immobiliers avec Maisons de l’Avenir Cesson-Sévigné.
Guichen
TERRAINTerrain de 350 m² en vente à GuichenIDÉALEMENT SITUÉ – PROCHE DE RENNESÀ vendre à quelques kilomètres de Rennes à Guichen (35580), terrain de 350 m². Il est prêt à accueillir votre projet immobilier pour toute la famille. Ce terrain, avec une exposition sud, donne sur un jardin. Ce terrain se situe dans un quartier recherché. Quatre établissements scolaires se trouvent à moins de 10 minutes à pied. Niveau transports en commun, il y a cinq gares à moins de 10 minutes en voiture. La nationale N137 est accessible à 8 km. On trouve une bibliothèque, un tennis, quatre boulangeries, des commerces, un bureau de poste, une supérette et une boucherie-charcuterie dans les environs.Il est proposé à l’achat pour 77 350 €. Contactez Dimitri MESAS (tél : (Numéro supprimé)) pour obtenir de plus amples informations sur le terrain ou sur les modalités de vente. Concrétisez vos projets immobiliers avec Maisons de l’Avenir Cesson-Sévigné.
L’actualité immobilière à Guichen
27/11/2023
02/11/2023
30/10/2023
20/10/2023
16/10/2023
16/10/2023