Maison à construire à Guipry (35480)
Images
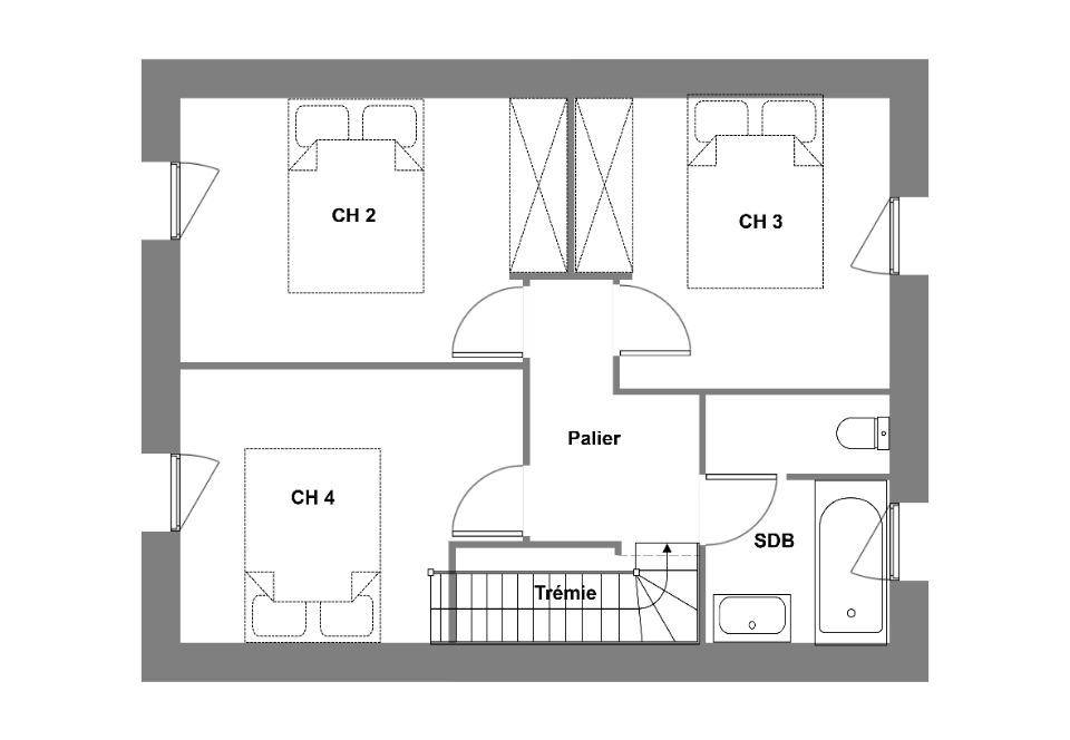
Description
VENTE : maison F5 (87 m²) à Guipry
IDÉALEMENT SITUÉE - MAISON 5 PIÈCES NEUVE
À vendre : localisée en limite de Langon, idéalement située dans Guipry (35480), notre agence Maisons de l'Avenir Cesson-Sévigné est heureuse de vous proposer cette maison de 5 pièces de 87 m² et de 318 m² de terrain avec vue sur jardin.
Cette maison compte 2 niveaux. Elle compte quatre chambres, une cuisine et une salle de bains. La maison est neuve.
La maison se trouve dans un quartier convoité. Il y a l'École Primaire Publique George Sand et l'École Primaire Privée St Michel à moins de 10 minutes à pied et une crèche. Niveau transports en commun, on trouve trois gares (Messac-Guipry, Pléchâtel et Saint-Senoux-Pléchâtel) à moins de 10 minutes en voiture. Il y a un accès à la nationale N137 à 12 km. Il y a une boulangerie, deux supermarchés, trois commerces et une boucherie-charcuterie à quelques minutes.
Elle est proposée à l'achat pour 227 800 €.
Contactez Dimitri MESAS (tél : (Numéro supprimé)) pour tout renseignement sur la maison, sur les démarches à suivre ou sur les modalités de vente.
Logement susceptibles de vous intéresser
Nous vous proposons de découvrir aussi cette sélection de logements situés à moins de 10km de Guipry-Messac et qui seraient susceptibles de vous intéresser.
Pipriac
TERRAIN ET MAISONMagnifique terrain, aux portes de REDON, permettant de construire votre maison de plain-pied ou étage. Les commerces, comme hypermarché, écoles, services sont à proximité de ce beau terrain, entièrement viabilisé . Devenez donc propriétaire de votre maison immédiatement. . Une maison moderne et fonctionnelle, parfaite pour toute la famille ! Avec son design optimisé et ses espaces bien pensés, cette maison offre un cadre de vie agréable et confortable. Au rez-de-chaussée, une spacieuse pièce de vie ouverte baigne de lumière, regroupant le salon, la salle à manger et la cuisine pour une ambiance conviviale. Un espace arrière-cuisine facilite l’organisation, tandis qu’un WC indépendant et une salle d’eau moderne ajoutent un confort supplémentaire. Une chambre en rez-de-chaussée permet un aménagement flexible selon vos besoins. À l’étage, trois chambres bien réparties assurent à chacun un espace personnel agréable. Une grande salle de bain fonctionnelle et un dégagement bien conçu viennent compléter cet étage pour une vie quotidienne fluide et organisée. Un équilibre parfait entre modernité, confort et optimisation des espaces !. ! Pour vous assurer un confort de vie optimal et en conformité avec la RE2025, nous avons opté pour un système de chauffage par pompe à chaleur (PAC) avec plancher chauffant au rez-de-chaussée et radiateurs à l’étage. Le logement est également équipé de volets roulants électriques. Prix hors fourniture et pose : des appareils sanitaires (sauf système de chauffage et d'eau chaude sanitaire), du carrelage et de la faïence, des revêtements de sol dans les chambres. Hors décoration et aménagement intérieur et peinture. Hors raccordements, frais de notaire et dommage ouvrage. // Réf. : 1415-213513-JMD. Prix terrain : 39 800 €, hors frais d'agence à la charge de l'acquéreur. Ce terrain vous est proposé, par nos partenaires fonciers, dans le cadre d'un projet de construction avec nous. Les informations sur les risques auxquels ce bien est exposé sont disponibles sur le site Géorisques (www.georisques.gouv.fr). Prix maison : 165 819 €.
Guipry-Messac
TERRAIN ET MAISONMaison T4 (117 m²) à vendre à GuipryIDÉALEMENT SITUÉE – MAISON 4 PIÈCES NEUVEEn limite de Langon, Maisons de l’Avenir Cesson-Sévigné vous présente cette maison de 4 pièces de 117 m² à vendre idéalement située dans Guipry (35480). Son intérieur compte trois chambres, une cuisine et deux salles de bains.Le terrain de cette maison est de 318 m².C’est une maison de 2 niveaux. Elle est neuve.La maison se situe dans un quartier attractif. Il y a l’École Primaire Publique George Sand et l’École Primaire Privée St Michel à moins de 10 minutes à pied et une structure d’accueil pour les tout-petits. Côté transports en commun, on trouve trois gares (Messac-Guipry, Pléchâtel et Saint-Senoux-Pléchâtel) à moins de 10 minutes en voiture. On trouve un accès à la nationale N137 à 12 km. Il y a une boulangerie, deux supermarchés, trois commerces et une boucherie-charcuterie dans les environs.Son prix de vente est de 310 000 €.N’hésitez pas à prendre contact avec Dimitri MESAS (tél : (Numéro supprimé)) pour plus d’informations sur le bien. Maisons de l’Avenir Cesson-Sévigné est là pour vous accompagner dans tous vos projets immobiliers.
Guipry-Messac
TERRAIN ET MAISONVENTE : maison F5 (87 m²) à GuipryIDÉALEMENT SITUÉE – MAISON 5 PIÈCES NEUVEÀ vendre : localisée en limite de Langon, idéalement située dans Guipry (35480), notre agence Maisons de l’Avenir Cesson-Sévigné est heureuse de vous proposer cette maison de 5 pièces de 87 m² et de 318 m² de terrain avec vue sur jardin.Cette maison compte 2 niveaux. Elle compte quatre chambres, une cuisine et une salle de bains. La maison est neuve.La maison se trouve dans un quartier convoité. Il y a l’École Primaire Publique George Sand et l’École Primaire Privée St Michel à moins de 10 minutes à pied et une crèche. Niveau transports en commun, on trouve trois gares (Messac-Guipry, Pléchâtel et Saint-Senoux-Pléchâtel) à moins de 10 minutes en voiture. Il y a un accès à la nationale N137 à 12 km. Il y a une boulangerie, deux supermarchés, trois commerces et une boucherie-charcuterie à quelques minutes.Elle est proposée à l’achat pour 227 800 €.Contactez Dimitri MESAS (tél : (Numéro supprimé)) pour tout renseignement sur la maison, sur les démarches à suivre ou sur les modalités de vente.
Pipriac
TERRAIN ET MAISONMagnifique terrain, aux portes de REDON, permettant de construire votre maison de plain-pied ou étage. Les commerces, comme hypermarché, écoles, services sont à proximité de ce beau terrain, entièrement viabilisé . Devenez donc propriétaire de votre maison immédiatement. . Vous serez séduits par cette maison contemporaine qui se distingue par son porche en façade et ses enduits bi-ton personnalisable. Elle vous accueille dans un très bel espace de vie de plus de 44 m² très lumineux grâce à ses nombreuses ouvertures. La cuisine ouverte est très fonctionnelle puisqu’à la fois ouverte sur le séjour et accolée au cellier. L’espace nuit est composé de trois chambres avec tous les rangements nécessaires ainsi que d’une salle de bain et des wc séparés. Le plus de cette maison est sans nul doute son garage intégré. Pour vous assurer un confort de vie et conformément à la RE2025, nous avons choisi un mode de chauffage par PAC + plancher chauffant, volets roulants électriques. Prix hors fourniture et pose : des appareils sanitaires (sauf système de chauffage et d'eau chaude sanitaire), du carrelage et de la faïence, des revêtements de sol dans les chambres. Hors décoration et aménagement intérieur et peinture. Hors raccordements, frais de notaire et dommage ouvrage. // Réf. : 635-213513-JMD. Prix terrain : 39 800 €, hors frais d'agence à la charge de l'acquéreur. Ce terrain vous est proposé, par nos partenaires fonciers, dans le cadre d'un projet de construction avec nous. Les informations sur les risques auxquels ce bien est exposé sont disponibles sur le site Géorisques (www.georisques.gouv.fr). Prix maison : 142 302 €.
Guipry-Messac
TERRAIN ET MAISONGuipry : maison de 5 pièces (102 m²) en venteIDÉALEMENT SITUÉE – MAISON 5 PIÈCES NEUVEÀ vendre collé à Langon, nous vous présentons, idéalement située dans Guipry (35480), cette maison de 5 pièces de 102 m². Elle propose quatre chambres, une cuisine et deux salles de bains.Le terrain de cette maison s’étend sur 318 m².Cette maison compte 2 niveaux. Elle est neuve.La maison se trouve dans un quartier prisé. L’École Primaire Publique George Sand et l’École Primaire Privée St Michel sont implantées à moins de 10 minutes à pied, tout comme une crèche. Côté transports en commun, il y a les gares Messac-Guipry, Pléchâtel et Saint-Senoux-Pléchâtel à moins de 10 minutes en voiture. Il y a un accès à la nationale N137 à 12 km. On trouve une boulangerie, deux supermarchés, trois commerces et une boucherie-charcuterie à proximité.Elle est à vendre pour la somme de 235 000 €.Contactez notre agence (Dimitri MESAS : (Numéro supprimé)) pour toute question sur la maison, sur les démarches à suivre et sur les modalités de vente.
Guipry-Messac
TERRAIN ET MAISONGuipry : maison de 4 pièces (95 m²) à vendreIDÉALEMENT SITUÉE – MAISON 4 PIÈCES NEUVEÀ vendre : située en limite de Langon, votre agence Maisons de l’Avenir Cesson-Sévigné est heureuse de vous proposer cette maison de 4 pièces de 95 m² et de 318 m² de terrain idéalement située dans Guipry (35480).C’est une maison de 2 niveaux. Son intérieur se divise en trois chambres, une cuisine et deux salles de bains. Cette maison est neuve.Cette maison se situe dans un quartier recherché. Il y a l’École Primaire Publique George Sand et l’École Primaire Privée St Michel à moins de 10 minutes à pied et une crèche. Côté transports en commun, on trouve les gares Messac-Guipry, Pléchâtel et Saint-Senoux-Pléchâtel à moins de 10 minutes en voiture. Il y a un accès à la nationale N137 à 12 km. Il y a une boulangerie, deux supermarchés, trois commerces et une boucherie-charcuterie dans les environs.Son prix de vente est de 260 000 €.Contactez Dimitri MESAS (tél : (Numéro supprimé)) pour toute question sur la propriété, sur les démarches à suivre ou sur les modalités de vente.
Pipriac
TERRAINPIPRIAC 35550, Terrain de 1300m2 environEN EXCLUSIVITE!Ce terrain à bâtir est situé au calme, en hameau, à 5 minutes des commodités de Pipriac, et 40 minutes de RennesNon viabilisé mais tous les réseaux sont en bordure de terrain dont tout à l’égoût.Il est orienté plein sud et arboré (en bordure de terrain), sans vis-à-vis! Façade de 22 m permettant tout type d’implantation. Les honoraires sont à la charge du vendeur.Les informations sur les risques auxquels ce bien est exposé sont disponibles sur le site Géorisques : www. georisques. gouv. fr.Contactez Claire DEBRAY Entrepreneur Individuel, Agent commercial OptimHome (RSAC N(Numéro supprimé) Greffe de RENNES) (Numéro supprimé) (réf. 598225 )
Guipry-Messac
TERRAIN ET MAISONMAISON OSSATURE BOIS VENTE : maison T4 (94 m²) à GuipryIDÉALEMENT SITUÉE – MAISON 4 PIÈCES NEUVEÀ vendre proche de Langon, ayez le coup de coeur pour cette maison de 4 pièces de plain-pied de 94 m² et de 318 m² de terrain, idéalement située dans Guipry (35480).Son intérieur comporte trois chambres, une cuisine et deux salles de bains. La maison est neuve.Cette maison est située dans un quartier convoité. L’École Primaire Publique George Sand et l’École Primaire Privée St Michel se trouvent à moins de 10 minutes à pied, tout comme une crèche. Niveau transports, il y a les gares Messac-Guipry, Pléchâtel et Saint-Senoux-Pléchâtel à moins de 10 minutes en voiture. La nationale N137 est accessible à 12 km. On trouve une boulangerie, deux supermarchés, trois commerces et une boucherie-charcuterie dans les environs.Elle est à vendre pour la somme de 267 000 €.Contactez notre agence (Dimitri MESAS : (Numéro supprimé)) pour tout renseignement sur la maison. Maisons de l’Avenir Cesson-Sévigné vous accompagne à toutes les étapes de l’achat et dans tous vos projets immobiliers.
Guipry-Messac
TERRAINVENTE d’un terrain de 318 m² à GuipryIDÉALEMENT SITUÉ – PROCHE DE LANGONÀ Guipry (35480) collé à Langon, découvrez ce terrain de 318 m². Ce terrain, avec vue sur jardin, bénéficie d’une exposition sud. Il est situé dans un secteur attractif. L’École Primaire Publique George Sand et l’École Primaire Privée St Michel sont implantées à moins de 10 minutes à pied, tout comme une crèche. Côté transports, il y a les gares Messac-Guipry, Pléchâtel et Saint-Senoux-Pléchâtel à moins de 10 minutes en voiture. La nationale N137 est accessible à 12 km. On trouve une boulangerie, deux supermarchés, trois commerces et une boucherie-charcuterie à proximité.Son prix de vente est de 50 700 €. Contactez notre agence (Dimitri MESAS : (Numéro supprimé)) pour toute question sur ce terrain, sur les modalités de vente ou sur les démarches à suivre.
L’actualité immobilière à Guipry-Messac
27/11/2023
02/11/2023
30/10/2023
20/10/2023
16/10/2023
16/10/2023