Maison à construire à Hirel (35120)
Images
Description
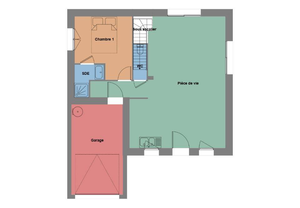
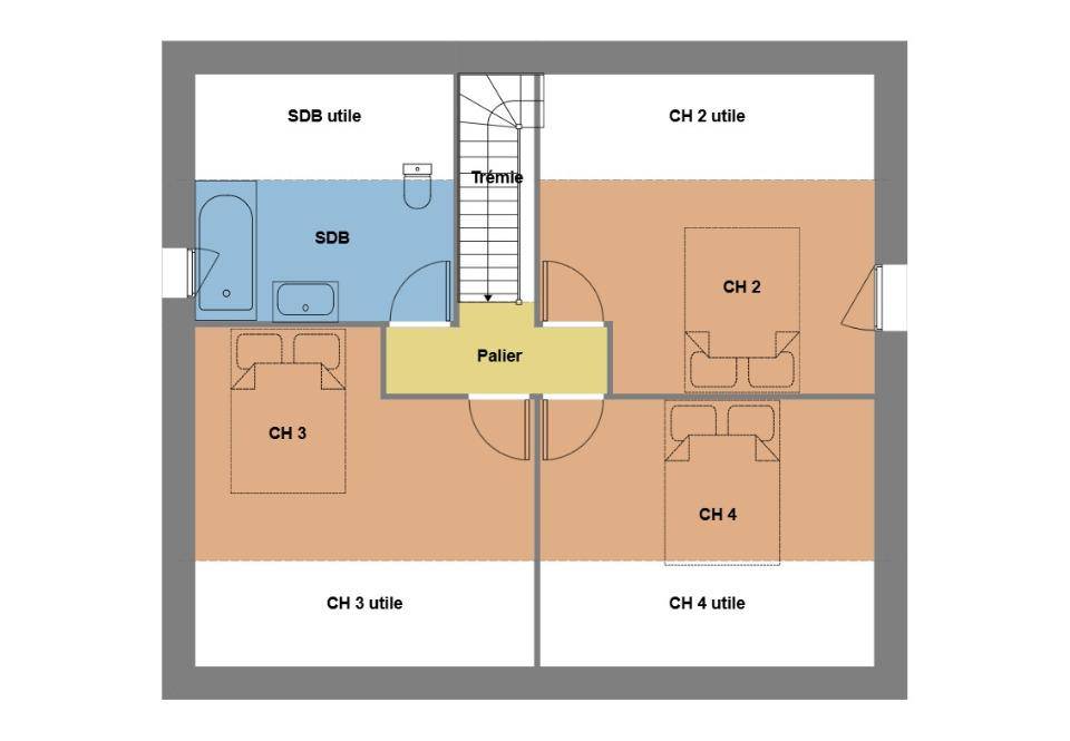
Maison de 5 pièces (102 m²) à vendre à Hirel
EMPLACEMENT PRIVILÉGIÉ - À quelques pas de la magnifique baie du Mont Saint-Michel
MAISON 5 PIÈCES NEUVE
À 1 km de la Manche et à quelques kilomètres de Saint-Malo, votre agence Maisons de l'Avenir Saint-Carné est heureuse de vous proposer cette maison de 5 pièces de 102 m² et de 629 m² de terrain à vendre bénéficiant d'un emplacement privilégié dans Hirel (35120). Elle inclut quatre chambres, une cuisine et deux salles de bains.
C'est une maison de 2 niveaux. Elle est neuve.
La maison se trouve dans un quartier prisé. Il y a l'École Primaire Publique le Long Sillon à moins de 10 minutes à pied. Niveau transports, on trouve quatre gares à moins de 10 minutes en voiture. La nationale N176 est accessible à 7 km. Il y a un tennis, un commerce et une supérette à proximité.
Elle est à vendre pour la somme de 279 000 €.
Contactez Laetitia AMIRI (tél : (Numéro supprimé)) pour toute information sur la maison. Donnez vie à vos projets immobiliers avec Maisons de l'Avenir Saint-Carné.
Logement susceptibles de vous intéresser
Nous vous proposons de découvrir aussi cette sélection de logements situés à moins de 10km de Hirel et qui seraient susceptibles de vous intéresser.
 
  
 
 Plerguer
TERRAIN ET MAISONChatGPT a dit :À Plérguer, ce terrain offre un cadre de vie paisible au cœur d’une commune conviviale et bien située entre Saint-Malo et Dol-de-Bretagne. Les accès routiers et transports permettent de rejoindre facilement les principales villes et zones d’activité de la région. Les commerces, écoles et services de proximité assurent un quotidien pratique et confortable pour toute la famille. La commune séduit par son environnement verdoyant et la qualité de sa vie locale. Une belle opportunité pour construire votre maison dans un secteur attractif et bien desservi. Compacte et fonctionnelle, cette maison de plain-pied vous propose un bel espace de vie lumineux, avec une grande baie vitrée donnant sur le jardin. Sa cuisine est ouverte sur le séjour et dispose d'un accès direct au cellier, et au garage intégré. Son espace nuit est composé de deux chambres avec rangements, d'une salle de bains et de wc séparés. Pour vous assurer un confort de vie et conformément à la RE2025, nous avons choisi un mode de chauffage par PAC + plancher chauffant, volets roulants électriques. Prix hors fourniture et pose : des appareils sanitaires (sauf système de chauffage et d'eau chaude sanitaire), du carrelage et de la faïence, des revêtements de sol dans les chambres. Hors décoration et aménagement intérieur et peinture. Hors raccordements, frais de notaire et dommage ouvrage. // Réf. : 842-210298-JMD. Prix terrain : 68 000 €, hors frais d'agence à la charge de l'acquéreur. Ce terrain vous est proposé, par nos partenaires fonciers, dans le cadre d'un projet de construction avec nous. Les informations sur les risques auxquels ce bien est exposé sont disponibles sur le site Géorisques (www.georisques.gouv.fr). Prix maison : 129 532 €.
 
  
 
 Plerguer
TERRAIN ET MAISONChatGPT a dit :À Plérguer, ce terrain offre un cadre de vie paisible au cœur d’une commune conviviale et bien située entre Saint-Malo et Dol-de-Bretagne. Les accès routiers et transports permettent de rejoindre facilement les principales villes et zones d’activité de la région. Les commerces, écoles et services de proximité assurent un quotidien pratique et confortable pour toute la famille. La commune séduit par son environnement verdoyant et la qualité de sa vie locale. Une belle opportunité pour construire votre maison dans un secteur attractif et bien desservi. Spacieuse et claire, le modèle MADURA va vous séduire et répond aux exigences de la vie contemporaine. Sa façade décalée et ses jeux d’enduits de couleurs différentes offre une architecture moderne. Son séjour traversant, vaste et lumineux avec ses 2 grandes baies vitrées donne un accès direct à la terrasse, les 3 chambres, vous apporteront de l’espace et un confort optimal. Pour vous assurer un confort de vie et conformément à la RE2025, nous avons choisi un mode de chauffage par PAC + plancher chauffant, volets roulants électriques. Prix hors fourniture et pose : des appareils sanitaires (sauf système de chauffage et d'eau chaude sanitaire), du carrelage et de la faïence, des revêtements de sol dans les chambres. Hors décoration et aménagement intérieur et peinture. Hors raccordements, frais de notaire et dommage ouvrage. // Réf. : 979-210298-JMD. Prix terrain : 68 000 €, hors frais d'agence à la charge de l'acquéreur. Ce terrain vous est proposé, par nos partenaires fonciers, dans le cadre d'un projet de construction avec nous. Les informations sur les risques auxquels ce bien est exposé sont disponibles sur le site Géorisques (www.georisques.gouv.fr). Prix maison : 118 609 €.
 
  
 
 Plerguer
TERRAIN ET MAISONChatGPT a dit :À Plérguer, ce terrain offre un cadre de vie paisible au cœur d’une commune conviviale et bien située entre Saint-Malo et Dol-de-Bretagne. Les accès routiers et transports permettent de rejoindre facilement les principales villes et zones d’activité de la région. Les commerces, écoles et services de proximité assurent un quotidien pratique et confortable pour toute la famille. La commune séduit par son environnement verdoyant et la qualité de sa vie locale. Une belle opportunité pour construire votre maison dans un secteur attractif et bien desservi. Découvrez EVOLIA, votre future maison évolutive ! Bienvenue dans l'avenir de l'habitat avec EVOLIA, une maison évolutive, modulable et transformable. Grâce à ses configurations flexibles et ses nombreuses options de personnalisation, EVOLIA vous offre un confort inégalé et une modernité à un prix abordable. Faites de vos rêves de propriété une réalité et commencez à bâtir votre futur dès aujourd'hui ! Votre avenir commence ici ! Contactez-nous dès maintenant pour plus d'informations. Prix hors fourniture et pose : des appareils sanitaires (sauf système de chauffage et d'eau chaude sanitaire), du carrelage, de la faïence, de la cuisine aménagée, des revêtements de sol dans les chambres. Hors décoration et aménagement intérieur et peinture. Hors raccordements, frais de notaire et dommage ouvrage. // Réf. : 2454-210298-JMD. Prix terrain : 68 000 €, hors frais d'agence à la charge de l'acquéreur. Ce terrain vous est proposé, par nos partenaires fonciers, dans le cadre d'un projet de construction avec nous. Les informations sur les risques auxquels ce bien est exposé sont disponibles sur le site Géorisques (www.georisques.gouv.fr). Prix maison : 79 597 €.
 
  
 
 Plerguer
TERRAINChatGPT a dit :À Plérguer, ce terrain offre un cadre de vie paisible au cœur d’une commune conviviale et bien située entre Saint-Malo et Dol-de-Bretagne. Les accès routiers et transports permettent de rejoindre facilement les principales villes et zones d’activité de la région. Les commerces, écoles et services de proximité assurent un quotidien pratique et confortable pour toute la famille. La commune séduit par son environnement verdoyant et la qualité de sa vie locale. Une belle opportunité pour construire votre maison dans un secteur attractif et bien desservi. // Réf. : T210298. Prix terrain : 68 000 €, hors frais d'agence et de notaire à la charge de l'acquéreur. Ce terrain vous est proposé, par nos partenaires fonciers, dans le cadre d'un projet de construction avec nous. Les informations sur les risques auxquels ce bien est exposé sont disponibles sur le site Géorisques (www.georisques.gouv.fr).
 
  
 
 Saint-Guinoux
TERRAINSitué sur la commune recherchée de Saint-Guinoux, ce terrain constructible de 341 m² offre un cadre idéal pour votre futur projet de construction. Vous profiterez d’un environnement calme, à proximité du bourg, des écoles et des commerces. Le terrain est entièrement viabilisé (eau, électricité, tout-à-l’égout, télécom) et prêt à accueillir votre maison. Sa superficie permet de concevoir un projet harmonieux, alliant confort et qualité de vie. // Réf. : T210150. Prix terrain : 76 000 €, hors frais d'agence et de notaire à la charge de l'acquéreur. Ce terrain vous est proposé, par nos partenaires fonciers, dans le cadre d'un projet de construction avec nous. Les informations sur les risques auxquels ce bien est exposé sont disponibles sur le site Géorisques (www.georisques.gouv.fr).
 
  
 
 Saint-Guinoux
TERRAIN ET MAISONSitué sur la commune recherchée de Saint-Guinoux, ce terrain constructible de 341 m² offre un cadre idéal pour votre futur projet de construction. Vous profiterez d’un environnement calme, à proximité du bourg, des écoles et des commerces. Le terrain est entièrement viabilisé (eau, électricité, tout-à-l’égout, télécom) et prêt à accueillir votre maison. Sa superficie permet de concevoir un projet harmonieux, alliant confort et qualité de vie. Une maison adaptable, parfaite pour concilier vie familiale et espace de travail. Une conception moderne et lumineuse avec des espaces bien pensés pour un quotidien agréable. Un vaste séjour ouvert, une suite parentale au rez-de-chaussée et 3 chambres à l’étage, accompagnées d’un bureau, offrent un cadre idéal pour toute la famille. De belles ouvertures sur l’extérieur, un aménagement fluide et des prestations de qualité pour un intérieur chaleureux et fonctionnel. Garage, cellier et nombreux rangements pour plus de praticité. Pour un confort optimal et conforme à la RE2025, cette maison dispose d’une PAC avec plancher chauffant au rez-de-chaussée, radiateurs à l’étage et volets roulants électriques. À noter : Le prix indiqué exclut les revêtements de sol des chambres, la cuisine aménagée, la peinture, la décoration, les raccordements, les frais de notaire et l’assurance dommages-ouvrage. (Piscine non contractuelle, non comprise dans le prix). // Réf. : 1672-210150-ALT. Prix terrain : 76 000 €, hors frais d'agence à la charge de l'acquéreur. Ce terrain vous est proposé, par nos partenaires fonciers, dans le cadre d'un projet de construction avec nous. Les informations sur les risques auxquels ce bien est exposé sont disponibles sur le site Géorisques (www.georisques.gouv.fr). Prix maison : 342 789 €.
 
  
 
 Saint-Guinoux
TERRAIN ET MAISONSitué sur la commune recherchée de Saint-Guinoux, ce terrain constructible de 341 m² offre un cadre idéal pour votre futur projet de construction. Vous profiterez d’un environnement calme, à proximité du bourg, des écoles et des commerces. Le terrain est entièrement viabilisé (eau, électricité, tout-à-l’égout, télécom) et prêt à accueillir votre maison. Sa superficie permet de concevoir un projet harmonieux, alliant confort et qualité de vie. Une maison spacieuse et élégante, conçue pour vous !. Découvrez ce modèle moderne de plus de 140 m², pensé pour allier confort et luminosité. Son vaste salon-séjour de 45 m², baigné de lumière, s’ouvre sur une cuisine conviviale. Une suite parentale au rez-de-chaussée avec dressing et salle d’eau privative, deux chambres et un bureau à l’étage, parfait pour le télétravail ou une chambre d’appoint. Garage et cellier attenant, pour un quotidien pratique et organisé. Pour un confort optimal et conforme à la RE2025, cette maison dispose d’une PAC avec plancher chauffant au rez-de-chaussée, radiateurs à l’étage et volets roulants électriques. À noter : Le prix indiqué exclut les revêtements de sol des chambres, la cuisine aménagée, la peinture, la décoration, les raccordements, les frais de notaire et l’assurance dommages-ouvrage. // Réf. : 538-210150-ALT. Prix terrain : 76 000 €, hors frais d'agence à la charge de l'acquéreur. Ce terrain vous est proposé, par nos partenaires fonciers, dans le cadre d'un projet de construction avec nous. Les informations sur les risques auxquels ce bien est exposé sont disponibles sur le site Géorisques (www.georisques.gouv.fr). Prix maison : 324 945 €.
 
  
 
 Saint-Guinoux
TERRAIN ET MAISONSitué sur la commune recherchée de Saint-Guinoux, ce terrain constructible de 341 m² offre un cadre idéal pour votre futur projet de construction. Vous profiterez d’un environnement calme, à proximité du bourg, des écoles et des commerces. Le terrain est entièrement viabilisé (eau, électricité, tout-à-l’égout, télécom) et prêt à accueillir votre maison. Sa superficie permet de concevoir un projet harmonieux, alliant confort et qualité de vie. Plongez dans un intérieur où luminosité et espace s'harmonisent parfaitement pour créer un cadre de vie accueillant et chaleureux. Dès l’entrée, la sensation d’ouverture vous invite à découvrir un vaste espace de vie, où la cuisine, moderne et conviviale, se prolonge naturellement vers un salon agréable et une salle à manger propice aux moments de partage. Côté nuit, les chambres offrent un véritable cocon de tranquillité, pensées pour conjuguer intimité et confort. L’agencement soigné garantit une circulation fluide entre les différents espaces, tandis que des rangements astucieux optimisent chaque recoin pour une organisation parfaite. L’extérieur prolonge cet art de vivre avec un espace idéal pour se détendre ou recevoir, à aménager selon vos envies. Une maison où chaque détail a été pensé pour vous offrir un quotidien serein et harmonieux. Pour vous assurer un confort de vie et conformément à la RE2025, nous avons choisi un mode de chauffage par PAC + plancher chauffant, volets roulants électriques. Prix hors peinture, décoration, revêtements de sol dans les chambres, cuisine équipée, frais de notaire, raccordements, dommage ouvrage. // Réf. : 2655-210150-ALT. Prix terrain : 76 000 €, hors frais d'agence à la charge de l'acquéreur. Ce terrain vous est proposé, par nos partenaires fonciers, dans le cadre d'un projet de construction avec nous. Les informations sur les risques auxquels ce bien est exposé sont disponibles sur le site Géorisques (www.georisques.gouv.fr). Prix maison : 176 161 €.
 
  
 
 Saint-Guinoux
TERRAINSitué sur la commune recherchée de Saint-Guinoux, ce terrain constructible de 341 m² offre un cadre idéal pour votre futur projet de construction. Vous profiterez d’un environnement calme, à proximité du bourg, des écoles et des commerces. Le terrain est entièrement viabilisé (eau, électricité, tout-à-l’égout, télécom) et prêt à accueillir votre maison. Sa superficie permet de concevoir un projet harmonieux, alliant confort et qualité de vie. // Réf. : T210150. Prix terrain : 76 000 €, hors frais d'agence et de notaire à la charge de l'acquéreur. Ce terrain vous est proposé, par nos partenaires fonciers, dans le cadre d'un projet de construction avec nous. Les informations sur les risques auxquels ce bien est exposé sont disponibles sur le site Géorisques (www.georisques.gouv.fr).
L’actualité immobilière à Hirel
 27/11/2023
 
 27/11/2023
 
  02/11/2023
 
 02/11/2023
 
  30/10/2023
 
 30/10/2023
 
  20/10/2023
 
 20/10/2023
 
  16/10/2023
 
 16/10/2023
 
  16/10/2023
 
 16/10/2023
 
  
 
 
 
 
 
  
  
  
  
  
  
  
  
  
  
 