Maison à construire à L'Hermitage (35590)
Images
Description
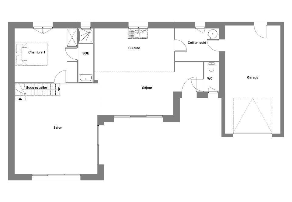
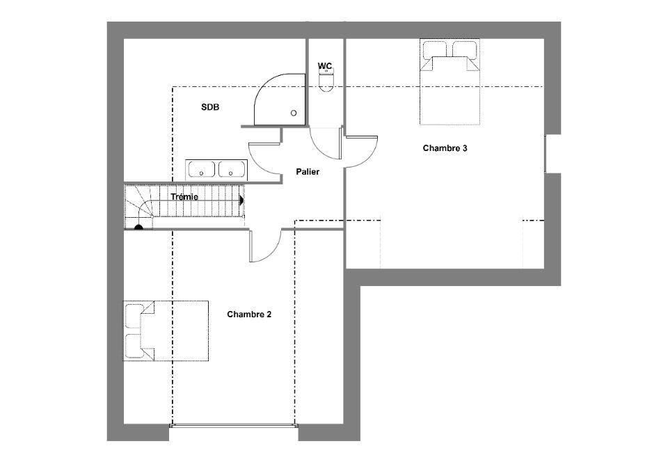
VENTE : maison T4 (125 m²) à L'Hermitage
IDÉALEMENT SITUÉE - MAISON 4 PIÈCES NEUVE
À vendre : localisée à 47 km de la Manche et à 9 km de Rennes, idéalement située dans L'Hermitage (35590), nous vous proposons cette maison de 4 pièces de 125 m² et de 391 m² de terrain. Elle compte trois chambres, une cuisine et deux salles de bains.
Cette maison comporte 2 niveaux. Elle est neuve.
La maison se trouve dans un quartier recherché. Il y a l'École Primaire Privée St Joseph, l'École Maternelle Publique de l'Hermitage et l'École Élémentaire Publique Eugène Allanic à moins de 10 minutes à pied. Côté transports en commun, on trouve la gare L'Hermitage-Mordelles à proximité. Les nationales N12, N24 et N136 sont accessibles à moins de 8 km. Il y a une bibliothèque, un tennis, quatre commerces, trois boulangeries et un bureau de poste dans les environs.
Elle est à vendre pour la somme de 351 000 €.
Contactez notre agence (Dimitri MESAS : (Numéro supprimé)) pour obtenir de plus amples informations sur la maison, sur les modalités de vente ou sur les démarches à suivre. Concrétisez vos projets immobiliers avec Maisons de l'Avenir Cesson-Sévigné.
Logement susceptibles de vous intéresser
Nous vous proposons de découvrir aussi cette sélection de logements situés à moins de 10km de L'Hermitage et qui seraient susceptibles de vous intéresser.
Bréal-sous-Montfort
TERRAIN ET MAISONVENTE d’une maison de 5 pièces (89 m²) à Bréal-sous-MontfortIDÉALEMENT SITUÉE – MAISON 5 PIÈCES NEUVEÀ deux pas de Rennes, nous vous proposons cette maison de 5 pièces de 89 m² et de 308 m² de terrain à vendre idéalement située dans Bréal-sous-Montfort (35310).Il s’agit d’une maison de 2 niveaux. Elle se divise en quatre chambres, une cuisine et deux salles de bains. La maison est neuve.La propriété est située dans un secteur recherché. Il y a cinq établissements scolaires à moins de 10 minutes à pied. Niveau transports en commun, on trouve les gares Bruz, L’Hermitage-Mordelles et Ker Lann à moins de 10 minutes en voiture. On trouve un accès à la nationale N24 à 2 km. Il y a un tennis, une bibliothèque, quatre boulangeries, deux commerces, un bureau de poste et une boucherie-charcuterie à proximité.Elle est proposée à l’achat pour 262 000 €.N’hésitez pas à prendre contact avec Dimitri MESAS ((Numéro supprimé)) pour obtenir de plus amples informations sur la maison. Concrétisez vos projets immobiliers avec Maisons de l’Avenir Cesson-Sévigné.
L'Hermitage
TERRAIN ET MAISONMaison de 4 pièces (90 m²) à vendre à L’HermitageMAISON 4 PIÈCES NEUVE – PROCHE DE RENNESÀ 47 km de la Manche et à deux pas de Rennes, votre agence Maisons de l’Avenir Cesson-Sévigné est ravie de vous proposer cette maison de 4 pièces de 90 m² à L’Hermitage (35590). Son intérieur propose trois chambres, une cuisine et deux salles de bains.Le terrain de cette maison s’étend sur 267 m².Cette maison compte 2 niveaux. Elle est proposée à l’achat pour 298 000 €.N’hésitez pas à prendre contact avec Cyril RENVAZE ((Numéro supprimé)) pour toute question sur la maison ou sur les modalités de vente. Maisons de l’Avenir Cesson-Sévigné vous accompagne dans tous vos projets immobiliers et dans toutes vos démarches.
L'Hermitage
TERRAIN ET MAISONVENTE : maison de 5 pièces (105 m²) à L’HermitagePROCHE DE RENNES – MAISON 5 PIÈCES OSSATURE BOISEn vente : à 47 km de la Manche et à quelques kilomètres de Rennes, nous vous présentons cette maison de 5 pièces de 105 m² et de 267 m² de terrain à L’Hermitage (35590).Cette maison comporte 2 niveaux. Son intérieur comporte quatre chambres, une cuisine et une salle de bains. Son prix de vente est de 331 800 €.Prenez contact avec Cyril RENVAZE ((Numéro supprimé)) pour toute information sur cette maison ou sur les démarches à suivre.
L'Hermitage
TERRAIN ET MAISONL’Hermitage : maison F4 (70 m²) en ventePROCHE DE RENNES – MAISON 4 PIÈCES NEUVEÀ 47 km de la Manche et à 9 km de Rennes, à vendre à L’Hermitage (35590), votre agence Maisons de l’Avenir Cesson-Sévigné est ravie de vous présenter cette maison de 4 pièces de 70 m² et de 267 m² de terrain.Il s’agit d’une maison de 2 niveaux. Elle dispose de trois chambres, d’une cuisine et d’une salle de bains. Elle est proposée à l’achat pour 232 000 €.Prenez contact avec Cyril RENVAZE pour tout renseignement sur cette maison. Concrétisez vos projets immobiliers avec Maisons de l’Avenir Cesson-Sévigné.
Cintré
TERRAIN ET MAISONCintré : maison F3 (60 m²) en venteIDÉALEMENT SITUÉE – MAISON 3 PIÈCES NEUVEÀ vendre : localisée à 47 km de la Manche et à deux pas de Rennes, idéalement située dans Cintré (35310), nous vous proposons cette maison de 3 pièces de plain-pied de 60 m².Elle dispose de deux chambres, d’une cuisine et d’une salle de bains. Cette maison est neuve.Le terrain du bien est de 444 m².Cette maison se trouve dans un quartier attractif. Il y a l’École Primaire Privée St Joseph et l’École Primaire Publique Arc-En-En à moins de 10 minutes à pied et trois structures d’accueil pour les tout-petits. Niveau transports, on trouve trois gares (Breteil, L’Hermitage-Mordelles et Montfort-sur-Meu) à moins de 10 minutes en voiture. Les nationales N24 et N12 sont accessibles à moins de 7 km. Il y a un tennis, une boulangerie et une épicerie à proximité.Elle est proposée à l’achat pour 231 700 €.Prenez contact avec notre agence (MESAS Dimitri : (Numéro supprimé)) pour toute information sur le bien. Maisons de l’Avenir Cesson-Sévigné vous accompagne à toutes les étapes de l’achat et dans toutes vos démarches.
Bréal-sous-Montfort
TERRAINTerrain de 308 m² à vendre à Bréal-sous-MontfortIDÉALEMENT SITUÉ – PROCHE DE RENNESÀ Bréal-sous-Montfort (35310) en vente à quelques kilomètres de Rennes, venez découvrir ce terrain de 308 m². Ce terrain, orienté sud, donne sur un jardin. Il est situé dans un secteur convoité. Cinq établissements scolaires sont implantés à moins de 10 minutes à pied. Côté transports, on trouve trois gares (Bruz, L’Hermitage-Mordelles et Ker Lann) à moins de 10 minutes en voiture. La nationale N24 est accessible à 2 km. Il y a un tennis, une bibliothèque, quatre boulangeries, deux commerces, une boucherie-charcuterie et un bureau de poste à quelques minutes du bien.Ce terrain est à vendre pour la somme de 85 000 €. Contactez notre agence (Dimitri MESAS : (Numéro supprimé)) pour toute information sur ce terrain ou sur les modalités de vente.
L'Hermitage
TERRAIN ET MAISONVENTE : maison de 3 pièces (85 m²) à L’HermitagePROCHE DE RENNES – MAISON 3 PIÈCES NEUVEÀ vendre : à 47 km de la Manche et à 9 km de Rennes, nous sommes ravis de vous proposer cette maison de 3 pièces de plain-pied de 85 m² et de 267 m² de terrain à L’Hermitage (35590). Conçue de plain-pied, elle offre deux chambres, une cuisine et une salle de bains.Elle est à vendre pour la somme de 272 000 €.Prenez contact avec Cyril RENVAZE ((Numéro supprimé)) pour tout renseignement sur ce bien.
Cintré
TERRAINTerrain de 444 m² en vente à CintréIDÉALEMENT SITUÉ – PROCHE DE RENNESÀ Cintré (35310) à 47 km de la Manche et à quelques kilomètres de Rennes, venez découvrir ce terrain de 444 m². Il donne sur un jardin et est orienté au sud. Il est situé dans un secteur attractif. L’École Primaire Privée St Joseph et l’École Primaire Publique Arc-En-En se trouvent à moins de 10 minutes à pied, tout comme trois crèches. Côté transports en commun, il y a les gares Breteil, L’Hermitage-Mordelles et Montfort-sur-Meu à moins de 10 minutes en voiture. Les nationales N24 et N12 sont accessibles à moins de 7 km. On trouve un tennis, une boulangerie et une épicerie à proximité du bien.Ce terrain est à vendre pour la somme de 103 000 €. Contactez notre agence (Dimitri MESAS : (Numéro supprimé)) pour plus d’informations sur ce terrain, sur les démarches à suivre ou sur les modalités de vente. Maisons de l’Avenir Cesson-Sévigné est là pour vous accompagner à toutes les étapes de votre projet.
Cintré
TERRAIN ET MAISONCintré : maison T5 (145 m²) à vendreIDÉALEMENT SITUÉE – MAISON 5 PIÈCES NEUVEÀ vendre à 47 km de la Manche et à deux pas de Rennes, découvrez cette maison de 5 pièces de 145 m² et de 444 m² de terrain idéalement située dans Cintré (35310).Il s’agit d’une maison de 2 niveaux. Son intérieur comporte quatre chambres, une cuisine et deux salles de bains. La maison est neuve.Cette maison se trouve dans un secteur recherché. Il y a l’École Primaire Privée St Joseph et l’École Primaire Publique Arc-En-En à moins de 10 minutes à pied et trois crèches. Côté transports, on trouve les gares Breteil, L’Hermitage-Mordelles et Montfort-sur-Meu à moins de 10 minutes en voiture. Les nationales N24 et N12 sont accessibles à moins de 7 km. Il y a un tennis, une boulangerie et une épicerie à proximité du logement.Elle est proposée à l’achat pour 415 000 €.N’hésitez pas à prendre contact avec Dimitri MESAS (tél : (Numéro supprimé)) pour toute information sur la maison, sur les démarches à suivre ou sur les modalités de vente.
L’actualité immobilière à L'Hermitage
27/11/2023
02/11/2023
30/10/2023
20/10/2023
16/10/2023
16/10/2023