Maison à construire à La Baussaine (35190)
Images
Description
VENTE : maison de 4 pièces (110 m²) à La Baussaine
IDÉALEMENT SITUÉE - MAISON 4 PIÈCES NEUVE
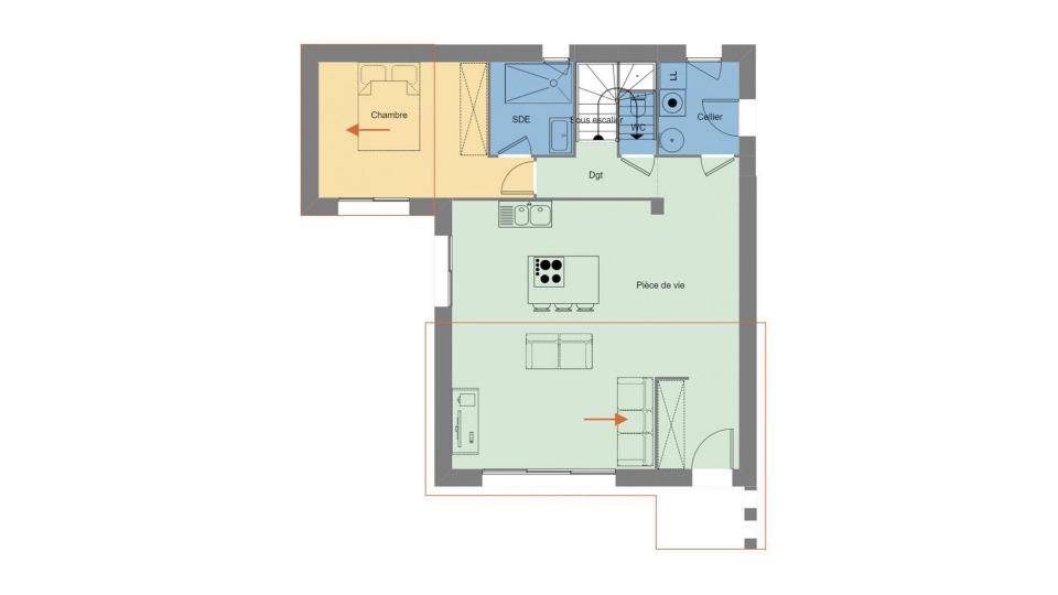
À 24 km de la Manche et à 27 km de Rennes, Maisons de l'Avenir Saint-Carné vous présente cette maison de 4 pièces de 110 m² et de 405 m² de terrain en vente idéalement située dans La Baussaine (35190). Elle comporte trois chambres, une cuisine et deux salles de bains.
Cette maison possède 2 niveaux. Elle est neuve.
La maison est située dans un secteur convoité. Il y a un accès à la nationale N12 à 15 km. Il y a une bibliothèque dans les environs.
Elle est à vendre pour la somme de 280 800 €.
Prenez contact avec Laetitia AMIRI ((Numéro supprimé)) pour plus d'informations sur la maison ou sur les modalités de vente. Concrétisez vos projets immobiliers avec Maisons de l'Avenir Saint-Carné.
Logement susceptibles de vous intéresser
Nous vous proposons de découvrir aussi cette sélection de logements situés à moins de 10km de La Baussaine et qui seraient susceptibles de vous intéresser.
Hédé-Bazouges
TERRAIN ET MAISONMaison + Terrain – Un cadre de vie privilégié aux portes de Rennes. Ne manquez pas le dernier lot disponible dans un environnement agréable à Hédé-Bazouges, commune conviviale offrant toutes les commodités : écoles, commerces, services et accès rapide à Rennes. Votre projet comprend :. Un terrain viabilisé et idéalement situé. Une maison contemporaine, lumineuse et économe en énergie. Des plans personnalisables selon vos envies et votre mode de vie. Profitez d’un cadre verdoyant et paisible, parfait pour accueillir votre famille, tout en restant proche des grands axes et des services du quotidien. Contactez-nous dès maintenant pour découvrir cette dernière opportunité à Hédé-Bazouges et donner vie à votre projet immobilier. Cette charmante maison de plain fonctionnelle vous séduira par le volume et la clarté de sa pièce de vie très lumineuse grâce à ses ouvertures, une cuisine ouverte sur le séjour vous permettra de profiter de bons moments en famille et vous offre un accès direct au cellier et au garage. Du côté de l’espace nuit, une suite parentale avec salle d’eau privative et dressing, deux chambres avec rangements et une salle de bains avec baignoire, wc séparés. Pour vous assurer un confort de vie et conformément à la RE2025, nous avons choisi un mode de chauffage par PAC + plancher chauffant, volets roulants électriques. Pour vous assurer un confort de vie et conformément à la RE2025, nous avons choisi un mode de chauffage par PAC + plancher chauffant, volets roulants électriques. Prix hors fourniture et pose : des appareils sanitaires (sauf système de chauffage et d'eau chaude sanitaire), du carrelage et de la faïence, des revêtements de sol dans les chambres. Hors décoration et aménagement intérieur et peinture. Hors raccordements, frais de notaire et dommage ouvrage. // Réf. : 1401-210924-CLM. Prix terrain : 59 000 €, hors frais d'agence à la charge de l'acquéreur. Ce terrain vous est proposé, par nos partenaires fonciers, dans le cadre d'un projet de construction avec nous. Les informations sur les risques auxquels ce bien est exposé sont disponibles sur le site Géorisques (www.georisques.gouv.fr). Prix maison : 153 789 €.
Hédé-Bazouges
TERRAIN ET MAISONMaison + Terrain – Un cadre de vie privilégié aux portes de Rennes. Ne manquez pas le dernier lot disponible dans un environnement agréable à Hédé-Bazouges, commune conviviale offrant toutes les commodités : écoles, commerces, services et accès rapide à Rennes. Votre projet comprend :. Un terrain viabilisé et idéalement situé. Une maison contemporaine, lumineuse et économe en énergie. Des plans personnalisables selon vos envies et votre mode de vie. Profitez d’un cadre verdoyant et paisible, parfait pour accueillir votre famille, tout en restant proche des grands axes et des services du quotidien. Contactez-nous dès maintenant pour découvrir cette dernière opportunité à Hédé-Bazouges et donner vie à votre projet immobilier. Contemporaine et confortable, le modèle ASINARA se distingue par son porche en façade avant et ses enduits bi-ton qui lui apportent un style très actuel. Cette maison de plain-pied vous propose une très belle pièce de vie très lumineuse grâce à ses nombreuses ouvertures. La cuisine est très fonctionnelle puisqu’à la fois ouverte sur le séjour et accolée au cellier. L’espace nuit est composé de trois chambres avec tous les rangements nécessaires ainsi que d’une salle de bains et des wc séparés. Le plus de cette maison est sans nul doute son garage intégré. Ses jeux d'enduits personnalisables sauront vous séduire. Pour vous assurer un confort de vie et conformément à la RE2025, nous avons choisi un mode de chauffage par PAC + plancher chauffant, volets roulants électriques. Prix hors fourniture et pose : des appareils sanitaires (sauf système de chauffage et d'eau chaude sanitaire), du carrelage et de la faïence, des revêtements de sol dans les chambres. Hors décoration et aménagement intérieur et peinture. Hors raccordements, frais de notaire et dommage ouvrage. // Réf. : 599-210924-CLM. Prix terrain : 59 000 €, hors frais d'agence à la charge de l'acquéreur. Ce terrain vous est proposé, par nos partenaires fonciers, dans le cadre d'un projet de construction avec nous. Les informations sur les risques auxquels ce bien est exposé sont disponibles sur le site Géorisques (www.georisques.gouv.fr). Prix maison : 128 648 €.
Hédé-Bazouges
TERRAIN ET MAISONMaison + Terrain – Un cadre de vie privilégié aux portes de Rennes. Ne manquez pas le dernier lot disponible dans un environnement agréable à Hédé-Bazouges, commune conviviale offrant toutes les commodités : écoles, commerces, services et accès rapide à Rennes. Votre projet comprend :. Un terrain viabilisé et idéalement situé. Une maison contemporaine, lumineuse et économe en énergie. Des plans personnalisables selon vos envies et votre mode de vie. Profitez d’un cadre verdoyant et paisible, parfait pour accueillir votre famille, tout en restant proche des grands axes et des services du quotidien. Contactez-nous dès maintenant pour découvrir cette dernière opportunité à Hédé-Bazouges et donner vie à votre projet immobilier. Découvrez cette maison compacte et bien agencée, idéale sur un petit terrain. Profitez d’un espace de vie optimisé de 40 m² avec une cuisine ouverte, idéale pour les moments en famille ou entre amis. Un cellier attenant vous offre un espace de rangement supplémentaire. Cette maison comprend également 3 chambres confortables, une salle de bains et des wc séparés pour plus de praticité. Pour vous assurer un confort de vie et conformément à la RE2025, nous avons choisi un mode de chauffage par PAC + plancher chauffant, volets roulants électriques. Prix hors fourniture et pose : des appareils sanitaires (sauf système de chauffage et d'eau chaude sanitaire), du carrelage et de la faïence, des revêtements de sol dans les chambres. Hors décoration et aménagement intérieur et peinture. Hors raccordements, frais de notaire et dommage ouvrage. . // Réf. : 2527-210924-CLM. Prix terrain : 59 000 €, hors frais d'agence à la charge de l'acquéreur. Ce terrain vous est proposé, par nos partenaires fonciers, dans le cadre d'un projet de construction avec nous. Les informations sur les risques auxquels ce bien est exposé sont disponibles sur le site Géorisques (www.georisques.gouv.fr). Prix maison : 145 762 €.
Cardroc
TERRAIN ET MAISONCardroc – Construisez votre maison dans un cadre paisible. À seulement 25 minutes de Rennes, Cardroc offre un environnement naturel préservé et une vraie qualité de vie. Terrains disponibles dans un cadre verdoyant. École et services de proximité. Vie de village conviviale et dynamique. L’équilibre parfait entre campagne et accessibilité. Réalisez votre projet de construction dès maintenant à Cardroc. Contactez-nous pour en savoir plus. Une maison moderne et fonctionnelle, parfaite pour toute la famille ! Avec son design optimisé et ses espaces bien pensés, cette maison offre un cadre de vie agréable et confortable. Au rez-de-chaussée, une spacieuse pièce de vie ouverte baigne de lumière, regroupant le salon, la salle à manger et la cuisine pour une ambiance conviviale. Un espace arrière-cuisine facilite l’organisation, tandis qu’un WC indépendant et une salle d’eau moderne ajoutent un confort supplémentaire. Une chambre en rez-de-chaussée permet un aménagement flexible selon vos besoins. À l’étage, trois chambres bien réparties assurent à chacun un espace personnel agréable. Une grande salle de bain fonctionnelle et un dégagement bien conçu viennent compléter cet étage pour une vie quotidienne fluide et organisée. Un équilibre parfait entre modernité, confort et optimisation des espaces !. ! Pour vous assurer un confort de vie optimal et en conformité avec la RE2025, nous avons opté pour un système de chauffage par pompe à chaleur (PAC) avec plancher chauffant au rez-de-chaussée et radiateurs à l’étage. Le logement est également équipé de volets roulants électriques. Prix hors fourniture et pose : des appareils sanitaires (sauf système de chauffage et d'eau chaude sanitaire), du carrelage et de la faïence, des revêtements de sol dans les chambres. Hors décoration et aménagement intérieur et peinture. Hors raccordements, frais de notaire et dommage ouvrage. // Réf. : 1415-210920-CLM. Prix terrain : 52 000 €, hors frais d'agence à la charge de l'acquéreur. Ce terrain vous est proposé, par nos partenaires fonciers, dans le cadre d'un projet de construction avec nous. Les informations sur les risques auxquels ce bien est exposé sont disponibles sur le site Géorisques (www.georisques.gouv.fr). Prix maison : 165 819 €.
Cardroc
TERRAIN ET MAISONCardroc – Construisez votre maison dans un cadre paisible. À seulement 25 minutes de Rennes, Cardroc offre un environnement naturel préservé et une vraie qualité de vie. Terrains disponibles dans un cadre verdoyant. École et services de proximité. Vie de village conviviale et dynamique. L’équilibre parfait entre campagne et accessibilité. Réalisez votre projet de construction dès maintenant à Cardroc. Contactez-nous pour en savoir plus. Une maison spacieuse et fonctionnelle, idéale pour toute la famille ! Avec son design moderne et son agencement optimisé, cette maison offre un cadre de vie agréable et lumineux, parfait pour répondre aux besoins de chacun. Au rez-de-chaussée, vous profitez d’un vaste espace de vie ouvert, alliant salon, salle à manger et cuisine dans une atmosphère chaleureuse et conviviale. Un cellier pratique facilite l’organisation et le rangement du quotidien. La suite parentale avec dressing et salle d’eau privative garantit un confort optimal aux parents, offrant un véritable espace d’intimité. À l’étage, trois belles chambres bien réparties permettent à toute la famille de disposer de son propre cocon. Une grande salle de bain et un WC indépendant complètent cet étage pour plus de praticité. Une maison élégante, confortable et pensée pour s’adapter aux modes de vie modernes !. Pour vous assurer un confort de vie optimal et en conformité avec la RE2025, nous avons opté pour un système de chauffage par pompe à chaleur (PAC) avec plancher chauffant au rez-de-chaussée et radiateurs à l’étage. Le logement est également équipé de volets roulants électriques. Prix hors fourniture et pose : des appareils sanitaires (sauf système de chauffage et d'eau chaude sanitaire), du carrelage et de la faïence, des revêtements de sol dans les chambres. Hors décoration et aménagement intérieur et peinture. Hors raccordements, frais de notaire et dommage ouvrage. // Réf. : 1485-210920-CLM. Prix terrain : 52 000 €, hors frais d'agence à la charge de l'acquéreur. Ce terrain vous est proposé, par nos partenaires fonciers, dans le cadre d'un projet de construction avec nous. Les informations sur les risques auxquels ce bien est exposé sont disponibles sur le site Géorisques (www.georisques.gouv.fr). Prix maison : 181 503 €.
Cardroc
TERRAIN ET MAISONCardroc – Construisez votre maison dans un cadre paisible. À seulement 25 minutes de Rennes, Cardroc offre un environnement naturel préservé et une vraie qualité de vie. Terrains disponibles dans un cadre verdoyant. École et services de proximité. Vie de village conviviale et dynamique. L’équilibre parfait entre campagne et accessibilité. Réalisez votre projet de construction dès maintenant à Cardroc. Contactez-nous pour en savoir plus. Idéale pour une première acquisition, charmante maison de plain-pied d’une surface habitable de 75 m² composée d’un espace de vie avec cuisine ouverte de 40 m² environ, un accès cellier et garage, une salle de bains avec baignoire, un wc séparé et deux chambres avec placards. Pour vous assurer un confort de vie et conformément à la RE2025, nous avons choisi un mode de chauffage par PAC + plancher chauffant, volets roulants électriques. Prix hors fourniture et pose : des appareils sanitaires (sauf système de chauffage et d'eau chaude sanitaire), du carrelage et de la faïence, des revêtements de sol dans les chambres. Hors décoration et aménagement intérieur et peinture. Hors raccordements, frais de notaire et dommage ouvrage. // Réf. : 1469-210920-CLM. Prix terrain : 52 000 €, hors frais d'agence à la charge de l'acquéreur. Ce terrain vous est proposé, par nos partenaires fonciers, dans le cadre d'un projet de construction avec nous. Les informations sur les risques auxquels ce bien est exposé sont disponibles sur le site Géorisques (www.georisques.gouv.fr). Prix maison : 139 091 €.
Hédé-Bazouges
TERRAINMaison + Terrain – Un cadre de vie privilégié aux portes de Rennes. Ne manquez pas le dernier lot disponible dans un environnement agréable à Hédé-Bazouges, commune conviviale offrant toutes les commodités : écoles, commerces, services et accès rapide à Rennes. Votre projet comprend :. Un terrain viabilisé et idéalement situé. Une maison contemporaine, lumineuse et économe en énergie. Des plans personnalisables selon vos envies et votre mode de vie. Profitez d’un cadre verdoyant et paisible, parfait pour accueillir votre famille, tout en restant proche des grands axes et des services du quotidien. Contactez-nous dès maintenant pour découvrir cette dernière opportunité à Hédé-Bazouges et donner vie à votre projet immobilier. // Réf. : T210924. Prix terrain : 59 000 €, hors frais d'agence et de notaire à la charge de l'acquéreur. Ce terrain vous est proposé, par nos partenaires fonciers, dans le cadre d'un projet de construction avec nous. Les informations sur les risques auxquels ce bien est exposé sont disponibles sur le site Géorisques (www.georisques.gouv.fr).
Cardroc
TERRAINCardroc – Construisez votre maison dans un cadre paisible. À seulement 25 minutes de Rennes, Cardroc offre un environnement naturel préservé et une vraie qualité de vie. Terrains disponibles dans un cadre verdoyant. École et services de proximité. Vie de village conviviale et dynamique. L’équilibre parfait entre campagne et accessibilité. Réalisez votre projet de construction dès maintenant à Cardroc. Contactez-nous pour en savoir plus. // Réf. : T210920. Prix terrain : 52 000 €, hors frais d'agence et de notaire à la charge de l'acquéreur. Ce terrain vous est proposé, par nos partenaires fonciers, dans le cadre d'un projet de construction avec nous. Les informations sur les risques auxquels ce bien est exposé sont disponibles sur le site Géorisques (www.georisques.gouv.fr).
La Baussaine
TERRAINTerrain de 405 m² à vendre à La BaussaineIDÉALEMENT SITUÉ – PROCHE DE RENNESÀ 24 km de la Manche et à 27 km de Rennes à La Baussaine (35190), terrain de 405 m². Il est prêt à accueillir votre projet immobilier pour toute la famille. Dans un quartier convoité, ce terrain idéalement situé est proche des écoles et des commerces. La nationale N12 est accessible à 15 km. Il y a une bibliothèque à quelques minutes de la propriété.Ce terrain est proposé à l’achat pour 53 000 €. Prenez contact avec Laetitia AMIRI ((Numéro supprimé)) pour toute information sur le terrain, sur les modalités de vente ou sur les démarches à suivre. Maisons de l’Avenir Saint-Carné est là pour vous accompagner à toutes les étapes de l’achat.
L’actualité immobilière à La Baussaine
27/11/2023
02/11/2023
30/10/2023
20/10/2023
16/10/2023
16/10/2023