Maison à construire à La Chapelle-Chaussée (35630)
Images
Description
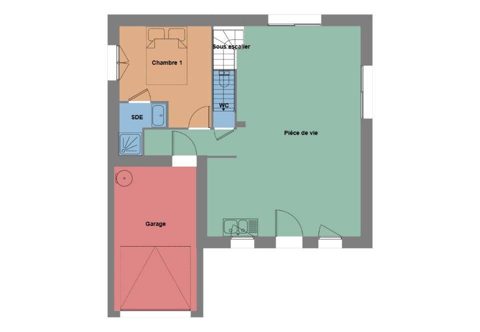
VENTE d'une maison de 5 pièces (111 m²) à La Chapelle-Chaussée
IDÉALEMENT SITUÉE - MAISON 5 PIÈCES NEUVE
À vendre : à 30 km de la Manche et à deux pas de Rennes, nous sommes heureux de vous proposer cette maison de 5 pièces de 111 m² et de 230 m² de terrain idéalement située dans La Chapelle-Chaussée (35630).
Il s'agit d'une maison de 2 niveaux. Son intérieur comporte quatre chambres, une cuisine et deux salles de bains. Cette maison est neuve.
Cette maison est située dans un quartier recherché. L'École Primaire Publique le Chemin Neuf et l'École Primaire Privée la Sagesse sont implantées à moins de 10 minutes à pied. Les nationales N12 et N136 sont accessibles à moins de 18 km. Il y a une bibliothèque, une boulangerie et une épicerie à proximité.
Son prix de vente est de 236 000 €.
Contactez notre agence (Dimitri MESAS : (Numéro supprimé)) pour toute information sur la maison. Donnez vie à vos projets immobiliers avec Maisons de l'Avenir Cesson-Sévigné.
Logement susceptibles de vous intéresser
Nous vous proposons de découvrir aussi cette sélection de logements situés à moins de 10km de La Chapelle-Chaussée et qui seraient susceptibles de vous intéresser.
Irodouër
TERRAINVincent Briand CAPIFRANCE vous propose sur la commune de Irodouër,un terrain à bâtir d’environ 935m2 situé hors lotissement et proche du centre.Terrain non viabilisé, l »eau, l’électricité et le tout à l’égout sont situés au pied du terrain. Les honoraires d’agence sont à la charge de l’acquéreur, soit 5,88% TTC du prix hors honoraires.Les informations sur les risques auxquels ce bien est exposé sont disponibles sur le site Géorisques : www. georisques. gouv. fr.Réseau Immobilier CAPIFRANCE – Votre agent commercial (RSAC N(Numéro supprimé) – Greffe de RENNES) Vincent BRIAND Entrepreneur Individuel à Responsabilité Limitée (Numéro supprimé) – Réf.928541
Irodouër
TERRAINVincent Briand CAPIFRANCE vous propose sur la commune de Irodouër,un terrain à bâtir d’environ 935m2 situé hors lotissement et proche du centre.Terrain non viabilisé, l »eau, l’électricité et le tout à l’égout sont situés au pied du terrain. Les honoraires d’agence sont à la charge de l’acquéreur, soit 6,25% TTC du prix hors honoraires.Les informations sur les risques auxquels ce bien est exposé sont disponibles sur le site Géorisques : www. georisques. gouv. fr.Réseau Immobilier CAPIFRANCE – Votre agent commercial (RSAC N(Numéro supprimé) – Greffe de RENNES) Vincent BRIAND Entrepreneur Individuel à Responsabilité Limitée (Numéro supprimé) – Réf.928514
Tinténiac
TERRAINVENTE d’un terrain de 406 m² à TinténiacPROCHE DE RENNESÀ quelques kilomètres de Rennes à Tinténiac (35190), terrain de 406 m². Il est prêt à accueillir la maison de vos rêves pour toute la famille. Ce terrain est proposé à l’achat pour 82 000 €. Contactez notre agence (RENVAZE Cyril : (Numéro supprimé)) pour toute information sur ce terrain.
Tinténiac
TERRAIN ET MAISONVENTE : maison T3 (65 m²) à TinténiacMAISON 3 PIÈCES NEUVE – PROCHE DE RENNESEn vente : à 25 km de la Manche et à deux pas de Rennes, notre agence Maisons de l’Avenir Cesson-Sévigné est heureuse de vous proposer à Tinténiac (35190), cette maison de 3 pièces de plain-pied de 65 m² et de 406 m² de terrain.Conçue de plain-pied, elle comporte deux chambres, une cuisine et une salle de bains. Elle est proposée à l’achat pour 233 500 €.Contactez notre agence (RENVAZE Cyril : (Numéro supprimé)) pour tout renseignement sur la propriété. Maisons de l’Avenir Cesson-Sévigné est là pour vous accompagner dans tous vos projets immobiliers.
Tinténiac
TERRAIN ET MAISONTinténiac : maison de 4 pièces (90 m²) en ventePROCHE DE RENNES – MAISON 4 PIÈCES NEUVEÀ vendre à 25 km de la Manche et à deux pas de Rennes, nous vous présentons à Tinténiac (35190), cette maison de 4 pièces de 90 m² et de 406 m² de terrain.Il s’agit d’une maison de 2 niveaux. Elle dispose de trois chambres, d’une cuisine et de deux salles de bains. Son prix de vente est de 295 000 €.N’hésitez pas à prendre contact avec Cyril RENVAZE ((Numéro supprimé)) pour obtenir de plus amples renseignements sur cette maison. Donnez vie à vos projets immobiliers avec Maisons de l’Avenir Cesson-Sévigné.
Tinténiac
TERRAIN ET MAISONMaison F4 (105 m²) à vendre à TinténiacPROCHE DE RENNES – MAISON 4 PIÈCES NEUVEEn vente : à 25 km de la Manche et à deux pas de Rennes, Maisons de l’Avenir Cesson-Sévigné vous présente cette maison de 4 pièces de plain-pied de 105 m² et de 406 m² de terrain à Tinténiac (35190). Son intérieur offre trois chambres, une cuisine et une salle de bains.Elle est à vendre pour la somme de 328 000 €.Contactez notre agence (Cyril RENVAZE : (Numéro supprimé)) pour obtenir de plus amples renseignements sur cette maison, sur les démarches à suivre ou sur les modalités de vente. Maisons de l’Avenir Cesson-Sévigné est là pour vous accompagner dans tous vos projets immobiliers.
Tinténiac
TERRAIN ET MAISONTinténiac : maison de 5 pièces (145 m²) en venteMAISON 5 PIÈCES NEUVE – PROCHE DE RENNESÀ 25 km de la Manche et à quelques kilomètres de Rennes, à vendre à Tinténiac (35190), nous vous proposons cette maison de 5 pièces de plain-pied de 145 m² et de 406 m² de terrain. Elle inclut quatre chambres, une cuisine et deux salles de bains.Son prix de vente est de 416 000 €.Contactez Cyril RENVAZE ((Numéro supprimé)) pour toute information sur la maison ou sur les démarches à suivre.
Tinténiac
TERRAIN ET MAISONMaison T6 (115 m²) en vente à TinténiacMAISON 6 PIÈCES OSSATURE BOIS – PROCHE DE RENNESEn vente : à 25 km de la Manche et à deux pas de Rennes, à Tinténiac (35190), nous sommes heureux de vous présenter cette maison de 6 pièces de 115 m² et de 406 m² de terrain.C’est une maison de 2 niveaux. Elle compte cinq chambres, une cuisine et deux salles de bains. Elle est proposée à l’achat pour 367 500 €.N’hésitez pas à prendre contact avec Cyril RENVAZE (tél : (Numéro supprimé)) pour toute question sur la maison, sur les modalités de vente ou sur les démarches à suivre.
Tinténiac
TERRAINVENTE : terrain de 283 m² à TinténiacProche de RennesTerrain de 283 m² à 26 km de Rennes. Ce terrain se situe dans Tinténiac (35190).Son prix de vente est de 59 000 €. Contactez Cyril RENVAZE (tél : (Numéro supprimé)) pour toute information sur ce terrain, sur les démarches à suivre et sur les modalités de vente. Maisons de l’Avenir Cesson-Sévigné est là pour vous accompagner à toutes les étapes de votre projet.
L’actualité immobilière à La Chapelle-Chaussée
27/11/2023
02/11/2023
30/10/2023
20/10/2023
16/10/2023
16/10/2023