Maison à construire à La Fresnais (35111)
Images
Description
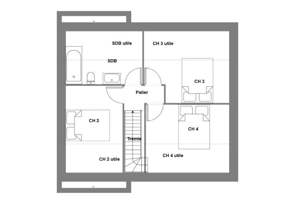
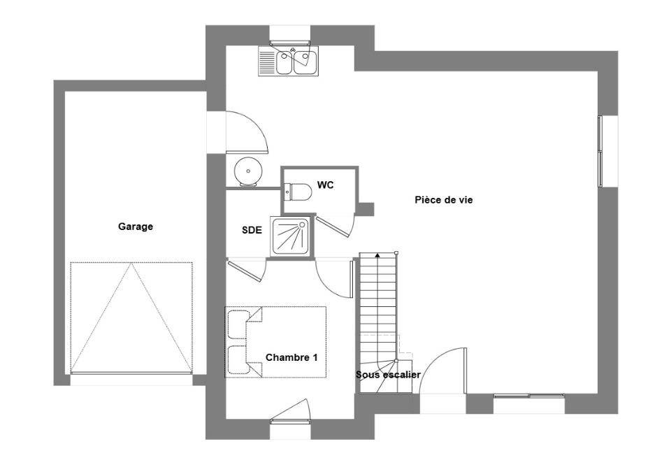
VENTE : maison T5 (89 m²) à La Fresnais
IDÉALEMENT SITUÉE - MAISON 5 PIÈCES NEUVE
En vente : au pied de la gare, idéalement située dans La Fresnais (35111), notre agence Maisons de l'Avenir Saint-Carné est ravie de vous proposer cette maison de 5 pièces de 89 m² et de 301 m² de terrain.
Cette maison compte 2 niveaux. Elle offre quatre chambres, une cuisine et deux salles de bains. Cette maison est neuve.
Cette maison se situe dans un secteur recherché. On trouve l'École Primaire Publique les Frênes et l'École Primaire Privée St Joseph à moins de 10 minutes à pied. Côté transports en commun, il y a la gare La Fresnais à quelques pas du bien. On trouve un accès à la nationale N176 à 6 km et Saint-Malo se trouve à 13 km. Il y a deux boulangeries, un commerce, un bureau de poste et une épicerie dans les environs.
Elle est proposée à l'achat pour 233 150 €.
N'hésitez pas à prendre contact avec notre constructeur (AMIRI Laetitia : (Numéro supprimé)) pour toute question sur la maison ou sur les démarches à suivre. Maisons de l'Avenir Saint-Carné est là pour vous accompagner dans tous vos projets immobiliers.
Logement susceptibles de vous intéresser
Nous vous proposons de découvrir aussi cette sélection de logements situés à moins de 10km de La Fresnais et qui seraient susceptibles de vous intéresser.
La Fresnais
TERRAINLa Fresnais : terrain de 345 m² en ventePROCHE DE SAINT-MALOA La Fresnais (35111), Concrétisez votre projet sur ce terrain de 345 m². Son prix de vente est de 63 000 €. Contactez notre agence (RENVAZE Cyril : (Numéro supprimé)) pour toute information sur le terrain ou sur les démarches à suivre.
La Fresnais
TERRAIN ET MAISONVENTE d’une maison F4 (70 m²) à La FresnaisPROCHE DE SAINT-MALO – MAISON 4 PIÈCES NEUVEEn vente : à côté de la gare, laissez vous charmer par cette maison de 4 pièces de 70 m² à La Fresnais (35111). Son intérieur inclut trois chambres, une cuisine et une salle de bains.Le terrain de la maison s’étend sur 345 m².Elle est proposée à l’achat pour 225 000 €.Contactez notre agence (RENVAZE Cyril : (Numéro supprimé)) pour obtenir de plus amples informations sur cette maison ou sur les démarches à suivre. Maisons de l’Avenir Cesson-Sévigné est là pour vous accompagner à toutes les étapes de votre projet.
La Fresnais
TERRAIN ET MAISONVENTE : maison de 5 pièces (95 m²) à La FresnaisMAISON 5 PIÈCES NEUVE – PROCHE DE SAINT-MALOAu pied de la gare, nous vous présentons en vente à La Fresnais (35111), cette maison de 5 pièces de plain-pied de 95 m².Son intérieur est composé de trois chambres, d’une cuisine et de deux salles de bains.Le terrain du bien est de 345 m².Cette maison est à vendre pour la somme de 287 000 €.Prenez contact avec notre agence (Cyril RENVAZE : (Numéro supprimé)) pour toute information sur cette maison. Concrétisez vos projets immobiliers avec Maisons de l’Avenir Cesson-Sévigné.
La Fresnais
TERRAIN ET MAISONVENTE : maison de 5 pièces (105 m²) à La FresnaisMAISON 5 PIÈCES NEUVE – PROCHE DE SAINT-MALOÀ proximité de la gare, nous vous présentons en vente à La Fresnais (35111), cette maison de 5 pièces de 105 m² et de 345 m² de terrain. Son intérieur inclut quatre chambres, une cuisine et deux salles de bains.C’est une maison de 2 niveaux.Le prix de vente de cette maison est de 309 000 €.N’hésitez pas à prendre contact avec notre agence (RENVAZE Cyril : (Numéro supprimé)) pour tout renseignement sur la maison ou sur les démarches à suivre.
La Fresnais
TERRAIN ET MAISONLa Fresnais : maison de 4 pièces (100 m²) à vendreMAISON 4 PIÈCES NEUVE – PROCHE DE SAINT-MALOÀ vendre : au pied de la gare, nous sommes ravis de vous proposer cette maison de 4 pièces de 100 m² et de 345 m² de terrain à La Fresnais (35111).Cette maison possède 2 niveaux. Elle se divise en quatre chambres, une cuisine et deux salles de bains. LElle est proposée à l’achat pour 298 000 €.Contactez Cyril RENVAZE (tél : (Numéro supprimé)) pour obtenir de plus amples renseignements sur cette maison. Maisons de l’Avenir Cesson-Sévigné est là pour vous accompagner dans tous vos projets immobiliers.
La Fresnais
TERRAIN ET MAISONVENTE d’une maison T4 (85 m²) à La FresnaisMAISON 4 PIÈCES OSSATURE BOIS – PROCHE DE SAINT-MALOEn vente : à 225 m de la gare, découvrez à La Fresnais (35111), cette maison de 4 pièces de plain-pied de 85 m² et de 345 m² de terrain.Son intérieur inclut trois chambres, une cuisine et deux salles de bains. La maison est neuve.La Manche est située à 2,28 km. Il y a l’École Primaire Publique les Frênes et l’École Primaire Privée St Joseph à moins de 10 minutes à pied. Côté transports, on trouve la gare La Fresnais à proximité. Il y a un accès à la nationale N176 à 6 km et Saint-Malo est située à 13 km. Il y a deux boulangeries, un commerce, un bureau de poste et une épicerie dans les environs.Cette maison est proposée à l’achat pour 278 250 €.Contactez notre agence (RENVAZE Cyril : (Numéro supprimé)) pour toute question sur cette maison ou sur les démarches à suivre.
Plerguer
TERRAINTerrain de 418 m² en vente à PlerguerPROCHE DE SAINT-MALOTerrain de 418 m² en vente à 9 km de la Manche et à 16 km de Saint-Malo. Ce terrain se situe dans Plerguer (35540).Il est à vendre pour la somme de 69 500 €. Prenez contact avec notre agence (RENVAZE Cyril : (Numéro supprimé)) pour toute information sur ce terrain, sur les modalités de vente ou sur les démarches à suivre.
Plerguer
TERRAIN ET MAISONMaison F5 (160 m²) à vendre à PlerguerMAISON 5 PIÈCES NEUVE – PROCHE DE SAINT-MALOÀ 9 km de la Manche et à deux pas de Saint-Malo, nous vous proposons cette maison de 5 pièces de 160 m² en vente à Plerguer (35540).Cette maison compte 2 niveaux. Son intérieur inclut quatre chambres, une cuisine et deux salles de bains. Elle est à vendre pour la somme de 452 500 €.Contactez Cyril RENVAZE (tél : (Numéro supprimé)) pour plus de renseignements sur la maison. Maisons de l’Avenir Cesson-Sévigné vous accompagne à toutes les étapes de votre projet et dans toutes vos démarches.
Plerguer
TERRAIN ET MAISONVENTE d’une maison F5 (130 m²) à PlerguerMAISON 5 PIÈCES NEUVE – PROCHE DE SAINT-MALOÀ vendre : à 9 km de la Manche et à 16 km de Saint-Malo, nous sommes ravis de vous présenter à Plerguer (35540), cette maison de 5 pièces de plain-pied de 130 m² et de 418 m² de terrain.Elle comporte quatre chambres, une cuisine et deux salles de bains. Il est proposé à l’achat pour 370 500 €.Contactez notre agence (Cyril RENVAZE : (Numéro supprimé)) pour obtenir de plus amples renseignements sur la maison ou sur les démarches à suivre. Maisons de l’Avenir Cesson-Sévigné est là pour vous accompagner dans tous vos projets immobiliers.
L’actualité immobilière à La Fresnais
27/11/2023
02/11/2023
30/10/2023
20/10/2023
16/10/2023
16/10/2023