Maison à construire à La Fresnais (35111)
Images
Description
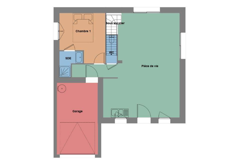
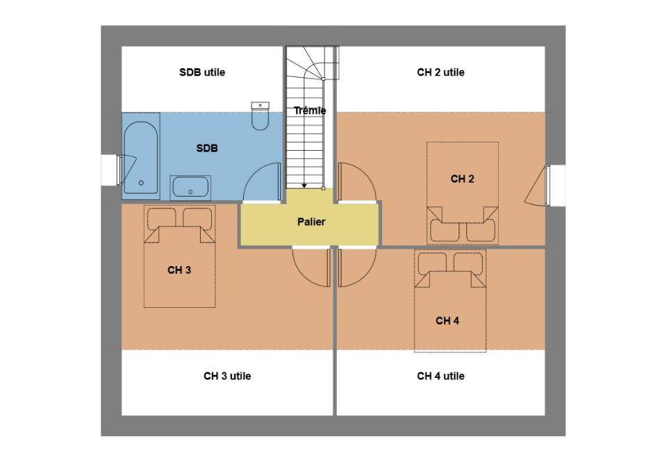
La Fresnais : maison de 5 pièces (102 m²) à vendre
IDÉALEMENT SITUÉE - MAISON 5 PIÈCES NEUVE
À vendre : au pied de la gare, idéalement située dans La Fresnais (35111), ayez le coup de coeur pour cette maison de 5 pièces de 102 m².
Cette maison en bord de mer possède 2 niveaux. Elle propose quatre chambres, une cuisine et deux salles de bains. Cette maison est neuve.
Le terrain de la propriété est de 451 m².
Cette maison est située dans un quartier attractif. L'École Primaire Publique les Frênes et l'École Primaire Privée St Joseph sont implantées à moins de 10 minutes à pied. Côté transports en commun, il y a la gare La Fresnais à quelques pas du bien. Il y a un accès à la nationale N176 à 6 km et Saint-Malo se trouve à 13 km. Il y a deux boulangeries, un commerce, un bureau de poste et une épicerie à quelques minutes.
Elle est proposée à l'achat pour 263 550 €.
N'hésitez pas à prendre contact avec Laetitia AMIRI (tél : (Numéro supprimé)) pour obtenir de plus amples informations sur la maison, sur les modalités de vente ou sur les démarches à suivre. Maisons de l'Avenir Saint-Carné vous accompagne dans tous vos projets immobiliers et à toutes les étapes de l'achat.
Logement susceptibles de vous intéresser
Nous vous proposons de découvrir aussi cette sélection de logements situés à moins de 10km de La Fresnais et qui seraient susceptibles de vous intéresser.
La Fresnais
TERRAINLa Fresnais : terrain de 345 m² en ventePROCHE DE SAINT-MALOA La Fresnais (35111), Concrétisez votre projet sur ce terrain de 345 m². Son prix de vente est de 63 000 €. Contactez notre agence (RENVAZE Cyril : (Numéro supprimé)) pour toute information sur le terrain ou sur les démarches à suivre.
La Fresnais
TERRAIN ET MAISONVENTE d’une maison F4 (70 m²) à La FresnaisPROCHE DE SAINT-MALO – MAISON 4 PIÈCES NEUVEEn vente : à côté de la gare, laissez vous charmer par cette maison de 4 pièces de 70 m² à La Fresnais (35111). Son intérieur inclut trois chambres, une cuisine et une salle de bains.Le terrain de la maison s’étend sur 345 m².Elle est proposée à l’achat pour 225 000 €.Contactez notre agence (RENVAZE Cyril : (Numéro supprimé)) pour obtenir de plus amples informations sur cette maison ou sur les démarches à suivre. Maisons de l’Avenir Cesson-Sévigné est là pour vous accompagner à toutes les étapes de votre projet.
La Fresnais
TERRAIN ET MAISONVENTE : maison de 5 pièces (95 m²) à La FresnaisMAISON 5 PIÈCES NEUVE – PROCHE DE SAINT-MALOAu pied de la gare, nous vous présentons en vente à La Fresnais (35111), cette maison de 5 pièces de plain-pied de 95 m².Son intérieur est composé de trois chambres, d’une cuisine et de deux salles de bains.Le terrain du bien est de 345 m².Cette maison est à vendre pour la somme de 287 000 €.Prenez contact avec notre agence (Cyril RENVAZE : (Numéro supprimé)) pour toute information sur cette maison. Concrétisez vos projets immobiliers avec Maisons de l’Avenir Cesson-Sévigné.
La Fresnais
TERRAIN ET MAISONVENTE : maison de 5 pièces (105 m²) à La FresnaisMAISON 5 PIÈCES NEUVE – PROCHE DE SAINT-MALOÀ proximité de la gare, nous vous présentons en vente à La Fresnais (35111), cette maison de 5 pièces de 105 m² et de 345 m² de terrain. Son intérieur inclut quatre chambres, une cuisine et deux salles de bains.C’est une maison de 2 niveaux.Le prix de vente de cette maison est de 309 000 €.N’hésitez pas à prendre contact avec notre agence (RENVAZE Cyril : (Numéro supprimé)) pour tout renseignement sur la maison ou sur les démarches à suivre.
La Fresnais
TERRAIN ET MAISONLa Fresnais : maison de 4 pièces (100 m²) à vendreMAISON 4 PIÈCES NEUVE – PROCHE DE SAINT-MALOÀ vendre : au pied de la gare, nous sommes ravis de vous proposer cette maison de 4 pièces de 100 m² et de 345 m² de terrain à La Fresnais (35111).Cette maison possède 2 niveaux. Elle se divise en quatre chambres, une cuisine et deux salles de bains. LElle est proposée à l’achat pour 298 000 €.Contactez Cyril RENVAZE (tél : (Numéro supprimé)) pour obtenir de plus amples renseignements sur cette maison. Maisons de l’Avenir Cesson-Sévigné est là pour vous accompagner dans tous vos projets immobiliers.
La Fresnais
TERRAIN ET MAISONVENTE d’une maison T4 (85 m²) à La FresnaisMAISON 4 PIÈCES OSSATURE BOIS – PROCHE DE SAINT-MALOEn vente : à 225 m de la gare, découvrez à La Fresnais (35111), cette maison de 4 pièces de plain-pied de 85 m² et de 345 m² de terrain.Son intérieur inclut trois chambres, une cuisine et deux salles de bains. La maison est neuve.La Manche est située à 2,28 km. Il y a l’École Primaire Publique les Frênes et l’École Primaire Privée St Joseph à moins de 10 minutes à pied. Côté transports, on trouve la gare La Fresnais à proximité. Il y a un accès à la nationale N176 à 6 km et Saint-Malo est située à 13 km. Il y a deux boulangeries, un commerce, un bureau de poste et une épicerie dans les environs.Cette maison est proposée à l’achat pour 278 250 €.Contactez notre agence (RENVAZE Cyril : (Numéro supprimé)) pour toute question sur cette maison ou sur les démarches à suivre.
Plerguer
TERRAINTerrain de 418 m² en vente à PlerguerPROCHE DE SAINT-MALOTerrain de 418 m² en vente à 9 km de la Manche et à 16 km de Saint-Malo. Ce terrain se situe dans Plerguer (35540).Il est à vendre pour la somme de 69 500 €. Prenez contact avec notre agence (RENVAZE Cyril : (Numéro supprimé)) pour toute information sur ce terrain, sur les modalités de vente ou sur les démarches à suivre.
Plerguer
TERRAIN ET MAISONMaison F5 (160 m²) à vendre à PlerguerMAISON 5 PIÈCES NEUVE – PROCHE DE SAINT-MALOÀ 9 km de la Manche et à deux pas de Saint-Malo, nous vous proposons cette maison de 5 pièces de 160 m² en vente à Plerguer (35540).Cette maison compte 2 niveaux. Son intérieur inclut quatre chambres, une cuisine et deux salles de bains. Elle est à vendre pour la somme de 452 500 €.Contactez Cyril RENVAZE (tél : (Numéro supprimé)) pour plus de renseignements sur la maison. Maisons de l’Avenir Cesson-Sévigné vous accompagne à toutes les étapes de votre projet et dans toutes vos démarches.
Plerguer
TERRAIN ET MAISONVENTE d’une maison F5 (130 m²) à PlerguerMAISON 5 PIÈCES NEUVE – PROCHE DE SAINT-MALOÀ vendre : à 9 km de la Manche et à 16 km de Saint-Malo, nous sommes ravis de vous présenter à Plerguer (35540), cette maison de 5 pièces de plain-pied de 130 m² et de 418 m² de terrain.Elle comporte quatre chambres, une cuisine et deux salles de bains. Il est proposé à l’achat pour 370 500 €.Contactez notre agence (Cyril RENVAZE : (Numéro supprimé)) pour obtenir de plus amples renseignements sur la maison ou sur les démarches à suivre. Maisons de l’Avenir Cesson-Sévigné est là pour vous accompagner dans tous vos projets immobiliers.
L’actualité immobilière à La Fresnais
27/11/2023
02/11/2023
30/10/2023
20/10/2023
16/10/2023
16/10/2023