Maison à construire à Miniac-Morvan (35540)
Images
Description
VENTE d'une maison F5 (102 m²) à Miniac-Morvan
IDÉALEMENT SITUÉE - MAISON 5 PIÈCES NEUVE
À vendre : à 5 km de la Manche et à 15 km de Saint-Malo, laissez vous charmer par cette maison de 5 pièces de 102 m² idéalement située dans Miniac-Morvan (35540).
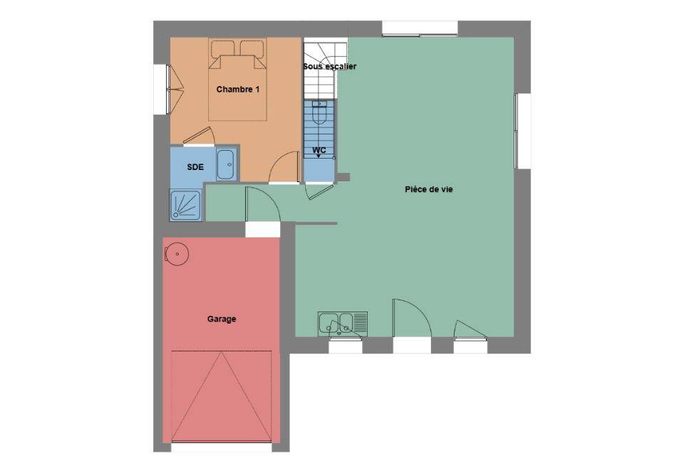
Il s'agit d'une maison de 2 niveaux. Elle propose quatre chambres, une cuisine et deux salles de bains. Cette maison est neuve.
Le terrain de la propriété s'étend sur 488 m².
Cette maison est située dans un secteur recherché. On trouve l'École Primaire Publique le Doris et l'École Primaire Privée St Yves à moins de 10 minutes à pied. Niveau transports, il y a cinq gares à moins de 10 minutes en voiture. La nationale N176 est accessible à 4 km. On trouve un tennis, deux boulangeries, un commerce, un supermarché, une épicerie et une poissonnerie à proximité du logement.
Elle est proposée à l'achat pour 265 350 €.
Prenez contact avec Laetitia AMIRI ((Numéro supprimé)) pour obtenir de plus amples renseignements sur la maison ou sur les démarches à suivre.
Logement susceptibles de vous intéresser
Nous vous proposons de découvrir aussi cette sélection de logements situés à moins de 10km de Miniac-Morvan et qui seraient susceptibles de vous intéresser.
Miniac-Morvan
TERRAIN ET MAISONMaison T5 (89 m²) à vendre à Miniac-MorvanIDÉALEMENT SITUÉE – MAISON 5 PIÈCES NEUVEEn vente : à 5 km de la Manche et à 15 km de Saint-Malo, venez découvrir cette maison de 5 pièces de 89 m² et de 301 m² de terrain idéalement située dans Miniac-Morvan (35540).Il s’agit d’une maison de 2 niveaux. Son intérieur compte quatre chambres, une cuisine et deux salles de bains. La maison est neuve.Ce bien se trouve dans un secteur prisé. L’École Primaire Publique le Doris et l’École Primaire Privée St Yves sont implantées à moins de 10 minutes à pied. Côté transports en commun, on trouve cinq gares à moins de 10 minutes en voiture. La nationale N176 est accessible à 4 km. Il y a un tennis, deux boulangeries, un commerce, un supermarché, une poissonnerie et une épicerie à proximité.Il est proposé à l’achat pour 229 810 €.Contactez notre agence (Laetitia AMIRI : (Numéro supprimé)) pour toute information sur la maison.
La Vicomté-sur-Rance
TERRAIN ET MAISONVENTE : maison de 3 pièces (57 m²) à La Vicomté-sur-RanceEMPLACEMENT PRIVILÉGIÉ – PROCHE DE DINANMAISON 3 PIÈCES NEUVEÀ vendre : à 3 km de la Manche et à deux pas de Saint-Malo, votre agence Maisons de l’Avenir Saint-Carné est heureuse de vous proposer, bénéficiant d’un emplacement d’exception dans La Vicomté-sur-Rance (22690), cette maison de 3 pièces de plain-pied de 57 m². Elle dispose de deux chambres, d’une cuisine et d’une salle de bains.Le terrain de la propriété est de 306 m².Cette maison est neuve.La maison se trouve dans un secteur attractif. Il y a l’École Primaire Publique Tiphaine Raguenel à moins de 10 minutes à pied. Niveau transports, on trouve quatre gares à moins de 10 minutes en voiture. La nationale N176 est accessible à 5 km. Il y a deux commerces et une boulangerie à quelques minutes à peine.Son prix de vente est de 193 250 €.N’hésitez pas à prendre contact avec Laetitia AMIRI ((Numéro supprimé)) pour toute question sur la maison, sur les démarches à suivre ou sur les modalités de vente. Donnez vie à vos projets immobiliers avec Maisons de l’Avenir Saint-Carné.
Miniac-Morvan
TERRAIN ET MAISONMiniac-Morvan : maison de 4 pièces (88 m²) en venteIDÉALEMENT SITUÉE – MAISON 4 PIÈCES NEUVEÀ vendre : à 5 km de la Manche et à deux pas de Saint-Malo, idéalement située dans Miniac-Morvan (35540), notre agence Maisons de l’Avenir Saint-Carné est ravie de vous proposer cette maison de 4 pièces de 88 m².Il s’agit d’une maison de 2 niveaux. Son intérieur offre trois chambres, une cuisine et une salle de bains. Cette maison est neuve.Le terrain du bien s’étend sur 488 m².La maison se trouve dans un secteur recherché. L’École Primaire Publique le Doris et l’École Primaire Privée St Yves sont implantées à moins de 10 minutes à pied. Niveau transports, on trouve cinq gares à moins de 10 minutes en voiture. La nationale N176 est accessible à 4 km. Il y a un tennis, deux boulangeries, un commerce, un supermarché, une poissonnerie et une épicerie à proximité du logement.Son prix de vente est de 232 350 €.Contactez notre constructeur (AMIRI Laetitia : (Numéro supprimé)) pour plus d’informations sur le bien, sur les démarches à suivre ou sur les modalités de vente. Faites de vos projets immobiliers une réalité avec Maisons de l’Avenir Saint-Carné.
Miniac-Morvan
TERRAIN ET MAISONVENTE : maison de 4 pièces (63 m²) à Miniac-MorvanIDÉALEMENT SITUÉE – MAISON 4 PIÈCES NEUVEÀ vendre à 5 km de la Manche et à 15 km de Saint-Malo, nous sommes ravis de vous proposer, idéalement située dans Miniac-Morvan (35540), cette maison de 4 pièces de 63 m² et de 301 m² de terrain. Elle offre trois chambres, une cuisine et une salle de bains.Il s’agit d’une maison de 2 niveaux. Elle est neuve.La maison se trouve dans un secteur attractif. L’École Primaire Publique le Doris et l’École Primaire Privée St Yves sont implantées à moins de 10 minutes à pied. Niveau transports en commun, on trouve cinq gares à moins de 10 minutes en voiture. La nationale N176 est accessible à 4 km. Il y a un tennis, deux boulangeries, un commerce, un supermarché, une poissonnerie et une épicerie à proximité du bien.Elle est proposée à l’achat pour 201 160 €.Prenez contact avec Laetitia AMIRI ((Numéro supprimé)) pour tout renseignement sur la maison ou sur les démarches à suivre. Faites de vos projets immobiliers une réalité avec Maisons de l’Avenir Saint-Carné.
Miniac-Morvan
TERRAIN ET MAISONMaison F4 (75 m²) à vendre à Miniac-MorvanIDÉALEMENT SITUÉE – MAISON BOIS QUALITATIVE, ECONOMIQUE ET DURABLEMAISON 4 PIÈCES NEUVEÀ 5 km de la Manche et à quelques kilomètres de Saint-Malo, votre agence Maisons de l’Avenir Saint-Carné est ravie de vous présenter cette maison de 4 pièces de plain-pied de 75 m² idéalement située dans Miniac-Morvan (35540).Conçue de plain-pied, elle dispose de trois chambres, d’une cuisine et d’une salle de bains. Cette maison est neuve.Le terrain du bien est de 301 m².Cette maison se situe dans un quartier convoité. L’École Primaire Publique le Doris et l’École Primaire Privée St Yves sont implantées à moins de 10 minutes à pied. Niveau transports, il y a cinq gares à moins de 10 minutes en voiture. La nationale N176 est accessible à 4 km. On trouve un tennis, deux boulangeries, un commerce, un supermarché, une épicerie et une poissonnerie dans les environs.Elle est à vendre pour la somme de 229 660 €.Prenez contact avec Laetitia AMIRI (tél : (Numéro supprimé)) pour toute question sur le bien et sur les modalités de vente. Maisons de l’Avenir Saint-Carné vous accompagne à toutes les étapes de l’achat et dans tous vos projets immobiliers.
La Vicomté-sur-Rance
TERRAIN ET MAISONLa Vicomté-sur-Rance : maison F4 (75 m²) à vendreEMPLACEMENT PRIVILÉGIÉ – PROCHE DE DINANMAISON BOIS QUALITATIVE, ECONOMIQUE ET DURABLE 4 PIÈCES NEUVEÀ vendre : située à 3 km de la Manche et à 17 km de Saint-Malo, nous vous proposons cette maison de 4 pièces de plain-pied de 75 m² et de 306 m² de terrain bénéficiant d’un emplacement d’exception dans La Vicomté-sur-Rance (22690). Conçue de plain-pied, elle dispose de trois chambres, d’une cuisine et d’une salle de bains.La maison est neuve.La maison se trouve dans un secteur recherché. Il y a l’École Primaire Publique Tiphaine Raguenel à moins de 10 minutes à pied. Côté transports, on trouve quatre gares à moins de 10 minutes en voiture. On trouve un accès à la nationale N176 à 5 km. Il y a deux commerces et une boulangerie à quelques minutes.Elle est à vendre pour la somme de 241 250 €.Contactez notre agence (AMIRI Laetitia : (Numéro supprimé)) pour obtenir de plus amples informations sur la propriété ou sur les modalités de vente. Concrétisez vos projets immobiliers avec Maisons de l’Avenir Saint-Carné.
La Vicomté-sur-Rance
TERRAIN ET MAISONMaison de 4 pièces (92 m²) à vendre à La Vicomté-sur-RanceEMPLACEMENT PRIVILÉGIÉ – PROCHE DE DINANMAISON 4 PIÈCES NEUVEÀ vendre à 3 km de la Manche et à 17 km de Saint-Malo, bénéficiant d’un emplacement privilégié dans La Vicomté-sur-Rance (22690), découvrez cette maison de 4 pièces de 92 m².Cette maison possède 2 niveaux. Son intérieur inclut trois chambres, une cuisine et une salle de bains. La maison est neuve.Le terrain de la propriété est de 306 m².La maison se trouve dans un secteur convoité. L’École Primaire Publique Tiphaine Raguenel est implantée à moins de 10 minutes à pied. Côté transports, il y a quatre gares à moins de 10 minutes en voiture. La nationale N176 est accessible à 5 km. On trouve deux commerces et une boulangerie à quelques minutes à peine.Elle est à vendre pour la somme de 246 050 €.Contactez Laetitia AMIRI (tél : (Numéro supprimé)) pour toute information sur la maison. Maisons de l’Avenir Saint-Carné vous accompagne dans tous vos projets immobiliers et à toutes les étapes de votre projet.
Miniac-Morvan
TERRAIN ET MAISONMaison F3 (57 m²) en vente à Miniac-MorvanIDÉALEMENT SITUÉE – MAISON 3 PIÈCES NEUVEÀ vendre : à 5 km de la Manche et à deux pas de Saint-Malo, idéalement située dans Miniac-Morvan (35540), nous sommes ravis de vous proposer cette maison de 3 pièces de plain-pied de 57 m² et de 301 m² de terrain.Conçue de plain-pied, elle inclut deux chambres, une cuisine et une salle de bains. La maison est neuve.Cette maison se trouve dans un quartier prisé. L’École Primaire Publique le Doris et l’École Primaire Privée St Yves sont implantées à moins de 10 minutes à pied. Niveau transports, on trouve cinq gares à moins de 10 minutes en voiture. La nationale N176 est accessible à 4 km. Il y a un tennis, deux boulangeries, un commerce, un supermarché, une épicerie et une poissonnerie dans les environs.Son prix de vente est de 181 660 €.N’hésitez pas à prendre contact avec notre agence (AMIRI Laetitia : (Numéro supprimé)) pour toute information sur la maison ou sur les démarches à suivre. Faites de vos projets immobiliers une réalité avec Maisons de l’Avenir Saint-Carné.
La Vicomté-sur-Rance
TERRAINTerrain de 306 m² à vendre à La Vicomté-sur-RanceEMPLACEMENT PRIVILÉGIÉ – PROCHE DE DINANÀ vendre à 3 km de la Manche et à 17 km de Saint-Malo à La Vicomté-sur-Rance (22690), terrain de 306 m². Il est prêt à accueillir votre projet de construction pour toute la famille. Dans un quartier convoité, le terrain bénéficiant d’un emplacement d’exception est proche des écoles et des commerces. Il y a l’École Primaire Publique Tiphaine Raguenel à moins de 10 minutes à pied. Côté transports, on trouve quatre gares à moins de 10 minutes en voiture. Il y a un accès à la nationale N176 à 5 km. Il y a deux commerces et une boulangerie dans les environs.Son prix de vente est de 61 200 €. Contactez Laetitia AMIRI ((Numéro supprimé)) pour plus de renseignements sur le terrain, sur les modalités de vente ou sur les démarches à suivre.
L’actualité immobilière à Miniac-Morvan
27/11/2023
02/11/2023
30/10/2023
20/10/2023
16/10/2023
16/10/2023