Maison à construire à Plerguer (35540)
Images
Description
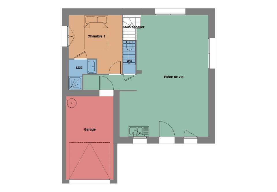
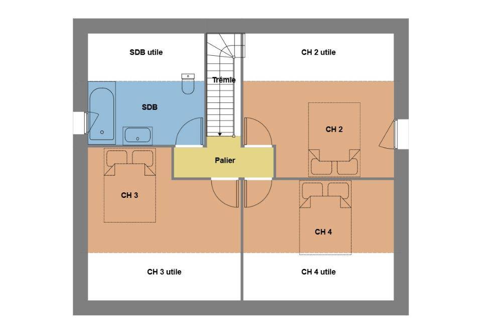
Plerguer : maison F5 (102 m²) à vendre
IDÉALEMENT SITUÉE - Cette commune offre un cadre de vie idéal pour les amoureux de la nature et de l'histoire local. Les habitant peuvent profiter de la campagne verdoyante, des ruelles paisibles et des sentiers de randonnée de cette ville côtière.
MAISON 5 PIÈCES NEUVE
À 9 km de la Manche et à 16 km de Saint-Malo, Maisons de l'Avenir Saint-Carné vous présente cette maison de 5 pièces de 102 m² et de 399 m² de terrain en vente idéalement située dans Plerguer (35540). Son intérieur dispose de quatre chambres, d'une cuisine et de deux salles de bains.
Cette maison possède 2 niveaux. Elle est neuve.
La maison se situe dans un quartier attractif. Il y a l'École Primaire Privée Notre Dame et l'École Primaire Publique les Badious à moins de 10 minutes à pied. Niveau transports, on trouve la gare Plerguer dans les alentours. Il y a un accès à la nationale N176 à 2 km. Il y a une bibliothèque, un supermarché, un commerce, une boulangerie et un bureau de poste à quelques minutes.
Elle est proposée à l'achat pour 251 500 €.
Prenez contact avec Laetitia AMIRI (tél : (Numéro supprimé)) pour obtenir de plus amples renseignements sur la maison ou sur les modalités de vente. Faites de vos projets immobiliers une réalité avec Maisons de l'Avenir Saint-Carné.
Logement susceptibles de vous intéresser
Nous vous proposons de découvrir aussi cette sélection de logements situés à moins de 10km de Plerguer et qui seraient susceptibles de vous intéresser.
 
  
 
 Châteauneuf-d'Ille-et-Vilaine
TERRAINChâteauneuf-d’Ille-et-Vilaine : terrain de 1 070 m² à vendreEMPLACEMENT PRIVILÉGIÉ – PROCHE DE SAINT-MALOGrand terrain à 7 km de la Manche et à deux pas de Saint-Malo. De 1 070 m², ce terrain se situe bénéficiant d’un emplacement privilégié dans Châteauneuf-d’Ille-et-Vilaine (35430). Dans un secteur prisé, le terrain est proche des commerces et des écoles. Des établissements scolaires (de la maternelle au lycée) sont implantés à moins de 10 minutes à pied. Côté transports, il y a la gare Dol-de-Bretagne à proximité. La nationale N176 est accessible à 1 km. On trouve un bassin de natation, des commerces, des boulangeries, un supermarché, deux épiceries et un bureau de poste dans les environs. Le marché Centre-Ville a lieu chaque samedi matin.Ce terrain est proposé à l’achat pour 150 000 €. N’hésitez pas à prendre contact avec Laetitia AMIRI ((Numéro supprimé)) pour tout renseignement sur le terrain.
 
  
 
 Châteauneuf-d'Ille-et-Vilaine
TERRAIN ET MAISONChâteauneuf-d’Ille-et-Vilaine : maison de 5 pièces (102 m²) à vendreEMPLACEMENT PRIVILÉGIÉ – MAISON 5 PIÈCES NEUVEÀ vendre à 7 km de la Manche et à quelques kilomètres de Saint-Malo, nous vous proposons cette maison de 5 pièces de 102 m² bénéficiant d’un emplacement privilégié dans Châteauneuf-d’Ille-et-Vilaine (35430). Son intérieur offre quatre chambres, une cuisine et deux salles de bains.Le terrain de la propriété s’étend sur 1 070 m².C’est une maison de 2 niveaux. Elle est neuve.Cette maison se trouve dans un quartier attractif. Il y a des écoles de tous niveaux (de la maternelle au lycée) à moins de 10 minutes à pied. Niveau transports en commun, on trouve la gare Dol-de-Bretagne à quelques pas de la maison. Il y a un accès à la nationale N176 à 1 km. Il y a un bassin de natation, des commerces, des boulangeries, un supermarché, trois boucheries-charcuteries et deux épiceries dans les environs. Le marché Centre-Ville a lieu chaque samedi matin.Son prix de vente est de 331 500 €.Contactez Laetitia AMIRI ((Numéro supprimé)) pour obtenir de plus amples renseignements sur la maison, sur les modalités de vente ou sur les démarches à suivre.
 
  
 
 Châteauneuf-d'Ille-et-Vilaine
TERRAIN ET MAISONVENTE d’une maison de 6 pièces (118 m²) à Châteauneuf-d’Ille-et-VilaineEMPLACEMENT PRIVILÉGIÉ – MAISON 6 PIÈCES NEUVEÀ vendre : située à 7 km de la Manche et à 10 km de Saint-Malo, bénéficiant d’un emplacement d’exception dans Châteauneuf-d’Ille-et-Vilaine (35430), laissez vous charmer par cette maison de 6 pièces de 118 m². Elle comporte cinq chambres, une cuisine et deux salles de bains.Le terrain du bien est de 1 070 m².C’est une maison de 2 niveaux. Elle est neuve.La maison se situe dans un secteur attractif. Des établissements scolaires (de la maternelle au lycée) sont implantés à moins de 10 minutes à pied. Niveau transports en commun, il y a la gare Dol-de-Bretagne dans les alentours. Il y a un accès à la nationale N176 à 1 km. On trouve un bassin de natation, des commerces, des boulangeries, un supermarché, trois boucheries-charcuteries et un bureau de poste à proximité du logement. Le marché Centre-Ville a lieu tous les samedis matin.Elle est à vendre pour la somme de 348 350 €.Contactez Laetitia AMIRI (tél : (Numéro supprimé)) pour plus de renseignements sur la maison, sur les démarches à suivre ou sur les modalités de vente. Maisons de l’Avenir Saint-Carné vous accompagne à toutes les étapes de l’achat et dans tous vos projets immobiliers.
 
  
 
 Châteauneuf-d'Ille-et-Vilaine
TERRAIN ET MAISONVENTE : maison de 5 pièces (120 m²) à Châteauneuf-d’Ille-et-VilaineEMPLACEMENT PRIVILÉGIÉ – MAISON 5 PIÈCES NEUVEÀ vendre : à 7 km de la Manche et à 10 km de Saint-Malo, bénéficiant d’un emplacement privilégié dans Châteauneuf-d’Ille-et-Vilaine (35430), nous sommes heureux de vous présenter cette maison de 5 pièces de 120 m².C’est une maison de 2 niveaux. Elle compte quatre chambres, une cuisine et deux salles de bains. La maison est neuve.Le terrain du bien est de 1 070 m².La maison se trouve dans un secteur prisé. Il y a des établissements scolaires de tous types (de la maternelle au lycée) à moins de 10 minutes à pied. Niveau transports, on trouve la gare Dol-de-Bretagne dans un rayon de 1 km. On trouve un accès à la nationale N176 à 1 km. Il y a un bassin de natation, des commerces, des boulangeries, un supermarché, trois boucheries-charcuteries et une poissonnerie à proximité du logement. Ne manquez pas le marché Centre-Ville chaque samedi matin.Elle est à vendre pour la somme de 398 550 €.Prenez contact avec Laetitia AMIRI ((Numéro supprimé)) pour toute question sur la maison.
 
  
 
 Châteauneuf-d'Ille-et-Vilaine
TERRAIN ET MAISONMaison T5 (150 m²) à vendre à Châteauneuf-d’Ille-et-VilaineEMPLACEMENT PRIVILÉGIÉ – MAISON 5 PIÈCES NEUVEÀ vendre : à 7 km de la Manche et à deux pas de Saint-Malo, bénéficiant d’un emplacement privilégié dans Châteauneuf-d’Ille-et-Vilaine (35430), Maisons de l’Avenir Saint-Carné vous présente cette maison de 5 pièces de 150 m².Cette maison comporte 2 niveaux. Elle propose quatre chambres, une cuisine et deux salles de bains. La maison est neuve.Le terrain du bien est de 1 070 m².Cette maison se trouve dans un quartier recherché. Il y a tous les types d’établissements scolaires (de la maternelle au lycée) à moins de 10 minutes à pied. Côté transports en commun, on trouve la gare Dol-de-Bretagne dans un rayon de 1 km. On trouve un accès à la nationale N176 à 1 km. Il y a un bassin de natation, des commerces, des boulangeries, un supermarché, un bureau de poste et deux épiceries à proximité du logement. Ne manquez pas le marché Centre-Ville chaque samedi matin.Elle est proposée à l’achat pour 475 850 €.N’hésitez pas à prendre contact avec notre agence (AMIRI Laetitia : (Numéro supprimé)) pour toute information sur le bien ou sur les démarches à suivre. Donnez vie à vos projets immobiliers avec Maisons de l’Avenir Saint-Carné.
 
  
 
 Châteauneuf-d'Ille-et-Vilaine
TERRAIN ET MAISONVENTE : maison T5 (135 m²) à Châteauneuf-d’Ille-et-VilaineEMPLACEMENT PRIVILÉGIÉ – MAISON 5 PIÈCES NEUVEÀ 7 km de la Manche et à quelques kilomètres de Saint-Malo, Maisons de l’Avenir Saint-Carné vous présente cette maison de 5 pièces de 135 m² en vente bénéficiant d’un emplacement d’exception dans Châteauneuf-d’Ille-et-Vilaine (35430). Son intérieur dispose de quatre chambres, d’une cuisine et de deux salles de bains.Le terrain de la maison s’étend sur 1 070 m².C’est une maison de 2 niveaux. Elle est neuve.Cette maison se situe dans un secteur recherché. Il y a des établissements scolaires (de la maternelle au lycée) à moins de 10 minutes à pied. Niveau transports en commun, on trouve la gare Dol-de-Bretagne dans les alentours. La nationale N176 est accessible à 1 km. Il y a un bassin de natation, des commerces, des boulangeries, un supermarché, une poissonnerie et deux épiceries à proximité de la maison. Enfin, le marché Centre-Ville a lieu tous les samedis matin.Elle est proposée à l’achat pour 429 600 €.Prenez contact avec notre agence (Laetitia AMIRI : (Numéro supprimé)) pour toute question sur la maison, sur les modalités de vente ou sur les démarches à suivre. Faites de vos projets immobiliers une réalité avec Maisons de l’Avenir Saint-Carné.
 
  
 
 Châteauneuf-d'Ille-et-Vilaine
TERRAIN ET MAISONVENTE : maison F5 (113 m²) à Châteauneuf-d’Ille-et-VilaineEMPLACEMENT PRIVILÉGIÉ – MAISON BOIS QUALITATIVE, ECONOMIQUE ET DURABLE 5 PIÈCES NEUVEÀ vendre : à 7 km de la Manche et à quelques kilomètres de Saint-Malo, bénéficiant d’un emplacement privilégié dans Châteauneuf-d’Ille-et-Vilaine (35430), ayez le coup de coeur pour cette maison de 5 pièces de plain-pied de 113 m². Son intérieur compte quatre chambres, une cuisine et deux salles de bains.Le terrain de cette maison est de 1 070 m².La maison est neuve.La maison est située dans un quartier convoité. Des établissements scolaires du primaire et du secondaire sont implantés à moins de 10 minutes à pied. Niveau transports, on trouve la gare Dol-de-Bretagne juste à côté. Il y a un accès à la nationale N176 à 1 km. Il y a un bassin de natation, des commerces, des boulangeries, un supermarché, deux épiceries et trois boucheries-charcuteries à proximité. Le marché Centre-Ville a lieu tous les samedis matin.Elle est à vendre pour la somme de 421 200 €.Contactez Laetitia AMIRI (tél : (Numéro supprimé)) pour toute question sur la maison. Maisons de l’Avenir Saint-Carné est là pour vous accompagner dans tous vos projets immobiliers.
 
  
 
 Saint-Guinoux
TERRAINVENTE d’un terrain de 265 m² à Saint-GuinouxEMPLACEMENT PRIVILÉGIÉ – PROCHE DE SAINT-MALOTerrain de 265 m² à 7 km de la Manche et à deux pas de Saint-Malo. Ce terrain se situe bénéficiant d’un emplacement privilégié dans Saint-Guinoux (35430). Dans un secteur attractif, ce terrain est proche des écoles et des commerces. L’École Primaire Publique les Cèdres est implantée à moins de 10 minutes à pied. Côté transports en commun, on trouve quatre gares à moins de 10 minutes en voiture. La nationale N176 est accessible à 4 km. Il y a une bibliothèque et une boulangerie dans les environs.Ce terrain est à vendre pour la somme de 55 600 €. Prenez contact avec notre agence (AMIRI Laetitia : (Numéro supprimé)) pour toute question sur le terrain, sur les modalités de vente ou sur les démarches à suivre.
 
  
 
 Saint-Guinoux
TERRAIN ET MAISONSaint-Guinoux : maison de 3 pièces (57 m²) en venteEMPLACEMENT PRIVILÉGIÉ – MAISON 3 PIÈCES NEUVEÀ 7 km de la Manche et à quelques kilomètres de Saint-Malo, nous vous présentons cette maison de 3 pièces de plain-pied de 57 m² en vente, bénéficiant d’un emplacement privilégié dans Saint-Guinoux (35430).Elle propose deux chambres, une cuisine et une salle de bains. La maison est neuve.Le terrain de la propriété est de 265 m².Cette maison se trouve dans un secteur recherché. L’École Primaire Publique les Cèdres est implantée à moins de 10 minutes à pied. Niveau transports, il y a quatre gares à moins de 10 minutes en voiture. La nationale N176 est accessible à 4 km. On trouve une bibliothèque et une boulangerie à quelques minutes de la maison.Elle est proposée à l’achat pour 187 600 €.Contactez Laetitia AMIRI ((Numéro supprimé)) pour toute question sur la maison et sur les modalités de vente. Maisons de l’Avenir Saint-Carné est là pour vous accompagner dans toutes vos démarches.
L’actualité immobilière à Plerguer
 27/11/2023
 
 27/11/2023
 
  02/11/2023
 
 02/11/2023
 
  30/10/2023
 
 30/10/2023
 
  20/10/2023
 
 20/10/2023
 
  16/10/2023
 
 16/10/2023
 
  16/10/2023
 
 16/10/2023
 
  
 
 
 
 
 
  
  
  
  
  
  
  
  
  
  
 