Maison à construire à Pleugueneuc (35720)
Images
Description
VENTE : maison de 5 pièces (102 m²) à Pleugueneuc
IDÉALEMENT SITUÉE - MAISON 5 PIÈCES NEUVE
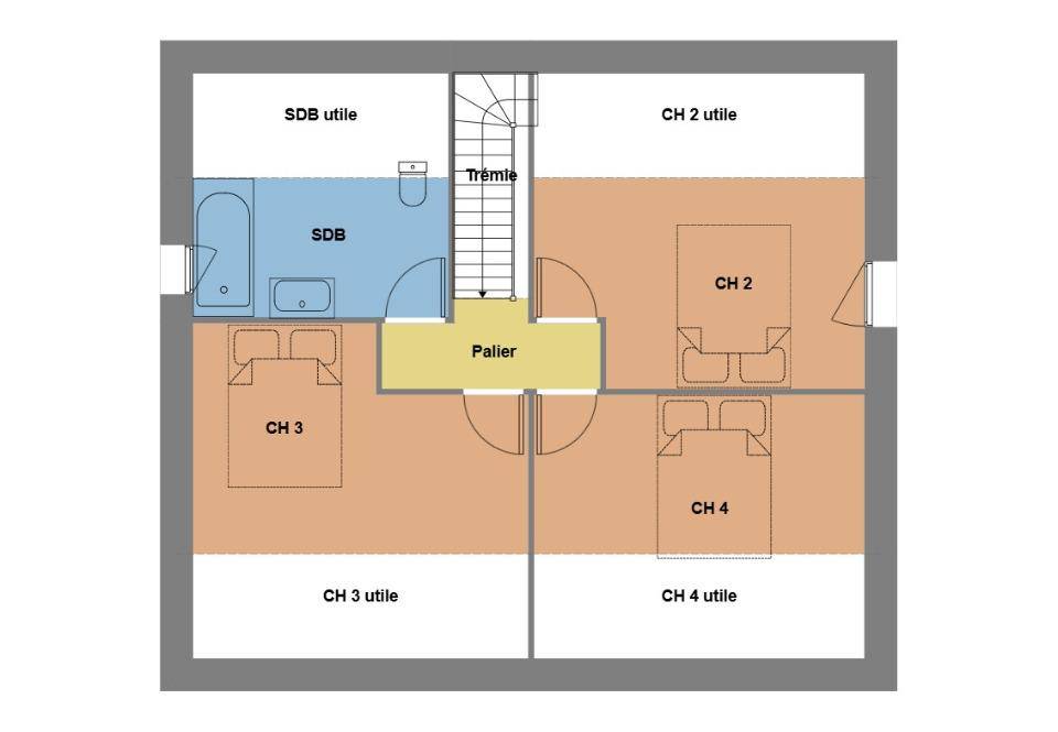
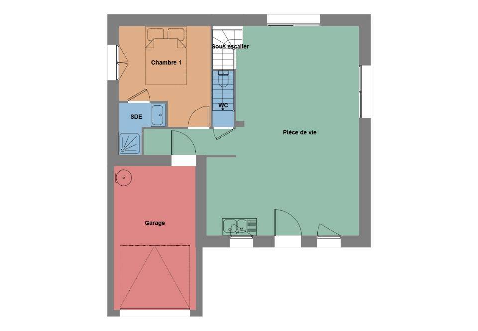
À vendre : localisée à 15 km de la Manche et à quelques kilomètres de Saint-Malo, idéalement située dans Pleugueneuc (35720), nous sommes heureux de vous présenter cette maison de 5 pièces de 102 m². Elle propose quatre chambres, une cuisine et deux salles de bains.
Le terrain du bien s'étend sur 564 m².
C'est une maison de 2 niveaux. Elle est neuve.
La maison se situe dans un quartier convoité. L'École Primaire Publique les Jours Heureux se trouve à moins de 10 minutes à pied. La nationale N176 est accessible à 15 km. Il y a une boulangerie, une boucherie-charcuterie et une épicerie à proximité.
Elle est proposée à l'achat pour 261 400 €.
Contactez Laetitia AMIRI ((Numéro supprimé)) pour toute question sur la maison ou sur les modalités de vente. Maisons de l'Avenir Saint-Carné vous accompagne dans toutes vos démarches et dans tous vos projets immobiliers.
Logement susceptibles de vous intéresser
Nous vous proposons de découvrir aussi cette sélection de logements situés à moins de 10km de Pleugueneuc et qui seraient susceptibles de vous intéresser.
Pleugueneuc
TERRAINVENTE d’un terrain de 564 m² à PleugueneucIDÉALEMENT SITUÉ – PROCHE DE SAINT-MALOÀ Pleugueneuc (35720) à vendre à 15 km de la Manche et à deux pas de Saint-Malo, donnez vie à votre projet immobilier sur ce terrain de 564 m². Dans un quartier attractif, ce terrain idéalement situé est proche des commerces et des écoles. L’École Primaire Publique les Jours Heureux est implantée à moins de 10 minutes à pied. La nationale N176 est accessible à 15 km. On trouve une boulangerie, une épicerie et une boucherie-charcuterie à quelques minutes à peine.Il est à vendre pour la somme de 80 000 €. Prenez contact avec notre agence (Laetitia AMIRI : (Numéro supprimé)) pour toute information sur ce terrain.
Pleugueneuc
TERRAIN ET MAISONPleugueneuc : maison de 3 pièces (57 m²) en venteIDÉALEMENT SITUÉE – MAISON 3 PIÈCES NEUVEÀ vendre : localisée à 15 km de la Manche et à 27 km de Saint-Malo, idéalement située dans Pleugueneuc (35720), nous sommes heureux de vous proposer cette maison de 3 pièces de plain-pied de 57 m².Conçue de plain-pied, elle comporte deux chambres, une cuisine et une salle de bains. Cette maison est neuve.Le terrain de la propriété s’étend sur 564 m².La propriété se situe dans un quartier recherché. L’École Primaire Publique les Jours Heureux se trouve à moins de 10 minutes à pied. La nationale N176 est accessible à 15 km. Il y a une boulangerie, une boucherie-charcuterie et une épicerie à proximité de la maison.Elle est à vendre pour la somme de 212 050 €.Prenez contact avec notre agence (Laetitia AMIRI : (Numéro supprimé)) pour obtenir de plus amples renseignements sur la maison, sur les démarches à suivre ou sur les modalités de vente. Maisons de l’Avenir Saint-Carné vous accompagne à toutes les étapes de l’achat et dans tous vos projets immobiliers.
Pleugueneuc
TERRAIN ET MAISONVENTE : maison de 5 pièces (102 m²) à PleugueneucIDÉALEMENT SITUÉE – MAISON 5 PIÈCES NEUVEÀ vendre : localisée à 15 km de la Manche et à quelques kilomètres de Saint-Malo, idéalement située dans Pleugueneuc (35720), nous sommes heureux de vous présenter cette maison de 5 pièces de 102 m². Elle propose quatre chambres, une cuisine et deux salles de bains.Le terrain du bien s’étend sur 564 m².C’est une maison de 2 niveaux. Elle est neuve.La maison se situe dans un quartier convoité. L’École Primaire Publique les Jours Heureux se trouve à moins de 10 minutes à pied. La nationale N176 est accessible à 15 km. Il y a une boulangerie, une boucherie-charcuterie et une épicerie à proximité.Elle est proposée à l’achat pour 261 400 €.Contactez Laetitia AMIRI ((Numéro supprimé)) pour toute question sur la maison ou sur les modalités de vente. Maisons de l’Avenir Saint-Carné vous accompagne dans toutes vos démarches et dans tous vos projets immobiliers.
Pleugueneuc
TERRAIN ET MAISONVENTE : maison T4 (63 m²) à PleugueneucIDÉALEMENT SITUÉE – MAISON 4 PIÈCES NEUVEÀ vendre : localisée à 15 km de la Manche et à 27 km de Saint-Malo, nous vous présentons, idéalement située dans Pleugueneuc (35720), cette maison de 4 pièces de 63 m² et de 564 m² de terrain.Cette maison compte 2 niveaux. Son intérieur est composé de trois chambres, d’une cuisine et d’une salle de bains. Cette maison est neuve.Cette maison est située dans un quartier prisé. On trouve l’École Primaire Publique les Jours Heureux à moins de 10 minutes à pied. On trouve un accès à la nationale N176 à 15 km. Il y a une boulangerie, une épicerie et une boucherie-charcuterie à quelques minutes.Elle est à vendre pour la somme de 231 550 €.Contactez notre agence (AMIRI Laetitia : (Numéro supprimé)) pour toute question sur la maison, sur les modalités de vente ou sur les démarches à suivre.
Pleugueneuc
TERRAIN ET MAISONVENTE d’une maison de 6 pièces (120 m²) à PleugueneucIDÉALEMENT SITUÉE – MAISON 6 PIÈCES NEUVEEn vente : localisée à 15 km de la Manche et à 27 km de Saint-Malo, nous sommes heureux de vous proposer cette maison de 6 pièces de 120 m² idéalement située dans Pleugueneuc (35720). Elle offre cinq chambres, une cuisine et deux salles de bains.Le terrain du bien est de 564 m².Cette maison compte 2 niveaux. Elle est neuve.La maison est située dans un secteur recherché. L’École Primaire Publique les Jours Heureux se trouve à moins de 10 minutes à pied. La nationale N176 est accessible à 15 km. Il y a une boulangerie, une épicerie et une boucherie-charcuterie dans les environs.Elle est proposée à l’achat pour 343 550 €.N’hésitez pas à prendre contact avec notre agence (AMIRI Laetitia : (Numéro supprimé)) pour toute question sur la maison, sur les modalités de vente ou sur les démarches à suivre. Maisons de l’Avenir Saint-Carné vous accompagne à toutes les étapes de votre projet et dans tous vos projets immobiliers.
Pleugueneuc
TERRAIN ET MAISONPleugueneuc : maison F4 (139 m²) à vendreIDÉALEMENT SITUÉE – MAISON 4 PIÈCES NEUVEÀ 15 km de la Manche et à deux pas de Saint-Malo, découvrez cette maison de 4 pièces de 139 m² et de 564 m² de terrain idéalement située dans Pleugueneuc (35720).Cette maison comporte 2 niveaux. Son intérieur comporte trois chambres, une cuisine et deux salles de bains. La maison est neuve.La maison se situe dans un quartier attractif. On trouve l’École Primaire Publique les Jours Heureux à moins de 10 minutes à pied. La nationale N176 est accessible à 15 km. Il y a une boulangerie, une boucherie-charcuterie et une épicerie à quelques minutes.Elle est proposée à l’achat pour 385 150 €.Prenez contact avec notre agence (Laetitia AMIRI : (Numéro supprimé)) pour toute question sur le bien ou sur les modalités de vente. Maisons de l’Avenir Saint-Carné vous accompagne à toutes les étapes de l’achat et dans tous vos projets immobiliers.
Pleugueneuc
TERRAIN ET MAISONMaison T5 (104 m²) à vendre à PleugueneucIDÉALEMENT SITUÉE – MAISON BOIS QUALITATIVE, ECONOMIQUE ET DURABLE 5 PIÈCES NEUVEEn vente : située à 15 km de la Manche et à deux pas de Saint-Malo, venez découvrir cette maison de 5 pièces de plain-pied de 104 m² et de 564 m² de terrain, idéalement située dans Pleugueneuc (35720). Conçue de plain-pied, elle dispose de quatre chambres, d’une cuisine et de deux salles de bains.La maison est neuve.Cette maison est située dans un secteur prisé. L’École Primaire Publique les Jours Heureux est implantée à moins de 10 minutes à pied. Il y a un accès à la nationale N176 à 15 km. Il y a une boulangerie, une épicerie et une boucherie-charcuterie à quelques minutes à peine.Elle est proposée à l’achat pour 329 600 €.N’hésitez pas à prendre contact avec Laetitia AMIRI ((Numéro supprimé)) pour tout renseignement sur la maison, sur les démarches à suivre ou sur les modalités de vente.
Évran
TERRAINVENTE : terrain de 592 m² à ÉvranEMPLACEMENT PRIVILÉGIÉ – PROCHE DE DINANÀ Évran (22630) à vendre à 15 km de la Manche et à quelques kilomètres de Saint-Malo, découvrez ce terrain de 592 m². Dans un quartier prisé, ce terrain bénéficiant d’un emplacement d’exception est proche des commerces et des écoles. Il y a l’École Primaire Publique Jules Verne, l’École Primaire Privée Sainte Anne et le Collège Privé Sainte-Anne Saint Joachim à moins de 10 minutes à pied. Niveau transports en commun, on trouve la gare Dinan à moins de 10 minutes en voiture. Les nationales N176 et N12 sont accessibles à moins de 18 km. Il y a deux tennis, une bibliothèque, trois commerces, deux boulangeries, un supermarché, un bureau de poste et une boucherie-charcuterie dans les environs.Son prix de vente est de 60 552 €. N’hésitez pas à prendre contact avec Laetitia AMIRI (tél : (Numéro supprimé)) pour tout renseignement sur ce terrain, sur les modalités de vente ou sur les démarches à suivre. Maisons de l’Avenir Saint-Carné est là pour vous accompagner dans tous vos projets immobiliers.
Évran
TERRAIN ET MAISONÉvran : maison T4 (88 m²) en venteEMPLACEMENT PRIVILÉGIÉ – PROCHE DE DINANMAISON 4 PIÈCES NEUVEEn vente : à 15 km de la Manche et à deux pas de Saint-Malo, bénéficiant d’un emplacement privilégié dans Évran (22630), Maisons de l’Avenir Saint-Carné vous présente cette maison de 4 pièces de 88 m² et de 592 m² de terrain.Il s’agit d’une maison de 2 niveaux. Elle comporte trois chambres, une cuisine et une salle de bains. Cette maison est neuve.La maison se trouve dans un quartier convoité. Il y a l’École Primaire Publique Jules Verne, l’École Primaire Privée Sainte Anne et le Collège Privé Sainte-Anne Saint Joachim à moins de 10 minutes à pied. Niveau transports en commun, on trouve la gare Dinan à moins de 10 minutes en voiture. Les nationales N176 et N12 sont accessibles à moins de 18 km. Il y a deux tennis, une bibliothèque, trois commerces, deux boulangeries, un supermarché, une boucherie-charcuterie et un bureau de poste à quelques minutes à peine.Son prix de vente est de 212 550 €.N’hésitez pas à prendre contact avec notre agence (Laetitia AMIRI : (Numéro supprimé)) pour obtenir de plus amples informations sur la maison, sur les modalités de vente ou sur les démarches à suivre.
L’actualité immobilière à Pleugueneuc
27/11/2023
02/11/2023
30/10/2023
20/10/2023
16/10/2023
16/10/2023