Maison à construire à Pocé-les-Bois (35500)
Images
Description
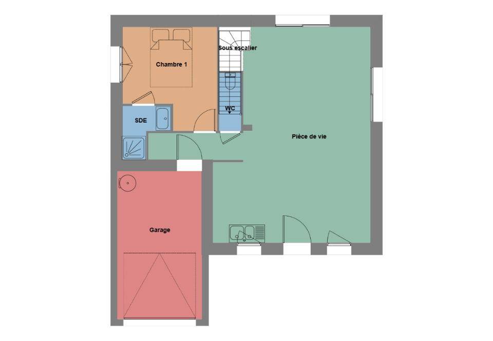
Pocé-les-Bois : maison F5 (100 m²) à vendre
IDÉALEMENT SITUÉE - MAISON 5 PIÈCES NEUVE
En vente : Maisons de l'Avenir Cesson-Sévigné vous présente cette maison de 5 pièces de 100 m² avec vue sur jardin idéalement située dans Pocé-les-Bois (35500).
Cette maison compte 2 niveaux. Son intérieur est composé de quatre chambres, d'une cuisine et de deux salles de bains. La maison est neuve.
Le terrain du bien est de 453 m².
La propriété se trouve dans un secteur convoité. Il y a l'École Primaire Privée St Augustin à moins de 10 minutes à pied. Niveau transports en commun, on trouve deux gares (Vitré et Les Lacs) à moins de 10 minutes en voiture. On trouve un accès à la nationale N157 à 5 km. Il y a une bibliothèque à proximité.
Elle est à vendre pour la somme de 238 000 €.
Prenez contact avec notre agence (MESAS Dimitri : (Numéro supprimé)) pour tout renseignement sur la maison, sur les modalités de vente ou sur les démarches à suivre. Maisons de l'Avenir Cesson-Sévigné vous accompagne dans tous vos projets immobiliers et à toutes les étapes de l'achat.
Logement susceptibles de vous intéresser
Nous vous proposons de découvrir aussi cette sélection de logements situés à moins de 10km de Pocé-les-Bois et qui seraient susceptibles de vous intéresser.
Louvigné-de-Bais
TERRAINVENTE d’un terrain de 540 m² à Louvigné-de-BaisIDÉALEMENT SITUÉ – PROCHE DE RENNESÀ Louvigné-de-Bais (35680) à vendre à 27 km de Rennes, projetez la maison de vos rêves sur ce terrain de 540 m². Il donne sur un jardin et est exposé au sud. Il se trouve dans un secteur prisé. L’École Primaire Privée St Patern et l’École Primaire Publique Charles Perrault sont implantées à moins de 10 minutes à pied. Côté transports en commun, on trouve les gares Les Lacs et Châteaubourg à moins de 10 minutes en voiture. Il y a un accès à la nationale N157 à 6 km. Il y a une bibliothèque, un tennis, une boulangerie, une épicerie et une boucherie-charcuterie dans les environs.Son prix de vente est de 55 000 €. Prenez contact avec notre agence (Dimitri MESAS : (Numéro supprimé)) pour tout renseignement sur ce terrain, sur les démarches à suivre ou sur les modalités de vente. Maisons de l’Avenir Cesson-Sévigné vous accompagne à toutes les étapes de l’achat et dans tous vos projets immobiliers.
Saint-Aubin-des-Landes
TERRAINVENTE : terrain de 353 m² à Saint-Aubin-des-LandesIDÉALEMENT SITUÉ – PROCHE DE RENNESÀ Saint-Aubin-des-Landes (35500) à vendre à 29 km de Rennes, venez découvrir ce terrain de 353 m². Ce terrain, orienté sud, donne sur un jardin. Il se trouve dans un secteur recherché. L’École Primaire Privée St Joseph est implantée à moins de 10 minutes à pied. Côté transports en commun, il y a les gares Les Lacs, Vitré et Châteaubourg à moins de 10 minutes en voiture. La nationale N157 est accessible à 3 km. On trouve une bibliothèque à quelques minutes à peine.Son prix de vente est de 38 000 €. Prenez contact avec notre agence (Dimitri MESAS : (Numéro supprimé)) pour toute information sur ce terrain et sur les démarches à suivre. Maisons de l’Avenir Cesson-Sévigné vous accompagne dans tous vos projets immobiliers et à toutes les étapes de votre projet.
Torcé
TERRAINVENTE : terrain de 350 m² à TorcéIDÉALEMENT SITUÉÀ Torcé (35370), donnez vie à votre résidence principale ou secondaire sur ce terrain de 350 m². Ce terrain, orienté plein sud, donne sur un jardin. Il se situe dans un quartier prisé. L’École Primaire Privée St Joseph est implantée à moins de 10 minutes à pied. Niveau transports en commun, on trouve les gares Les Lacs et Vitré à moins de 10 minutes en voiture. La nationale N157 est accessible à 2 km. Il y a une bibliothèque à quelques minutes.Ce terrain est à vendre pour la somme de 47 500 €. Contactez Dimitri MESAS ((Numéro supprimé)) pour obtenir de plus amples informations sur ce terrain, sur les démarches à suivre et sur les modalités de vente. Faites de vos projets immobiliers une réalité avec Maisons de l’Avenir Cesson-Sévigné.
Cornillé
TERRAINTerrain de 389 m² en vente à CornilléIDÉALEMENT SITUÉ – PROCHE DE RENNESÀ Cornillé (35500) en vente à quelques kilomètres de Rennes, découvrez ce terrain de 389 m². Ce terrain, exposé plein sud, donne sur un jardin. Il est situé dans un secteur convoité. L’École Primaire Privée Ste Anne se trouve à moins de 10 minutes à pied. Niveau transports en commun, il y a trois gares (Les Lacs, Châteaubourg et Vitré) à moins de 10 minutes en voiture. La nationale N157 est accessible à 3 km. On trouve une bibliothèque et un commerce dans les environs.Ce terrain est proposé à l’achat pour 54 000 €. N’hésitez pas à prendre contact avec Dimitri MESAS ((Numéro supprimé)) pour toute information sur ce terrain, sur les démarches à suivre ou sur les modalités de vente. Donnez vie à vos projets immobiliers avec Maisons de l’Avenir Cesson-Sévigné.
Louvigné-de-Bais
TERRAIN ET MAISONVENTE : maison T5 (102 m²) à Louvigné-de-BaisIDÉALEMENT SITUÉE – MAISON 5 PIÈCES NEUVEEn vente à quelques kilomètres de Rennes, nous sommes heureux de vous présenter cette maison de 5 pièces de 102 m² et de 540 m² de terrain avec vue sur jardin idéalement située dans Louvigné-de-Bais (35680). Son intérieur propose quatre chambres, une cuisine et deux salles de bains.C’est une maison de 2 niveaux. Elle est neuve.La maison se trouve dans un secteur attractif. L’École Primaire Privée St Patern et l’École Primaire Publique Charles Perrault sont implantées à moins de 10 minutes à pied. Côté transports, il y a les gares Les Lacs et Châteaubourg à moins de 10 minutes en voiture. La nationale N157 est accessible à 6 km. On trouve une bibliothèque, un tennis, une boulangerie, une boucherie-charcuterie et une épicerie dans les environs.Elle est proposée à l’achat pour 236 000 €.N’hésitez pas à prendre contact avec Dimitri MESAS (tél : (Numéro supprimé)) pour toute information sur la maison, sur les démarches à suivre ou sur les modalités de vente.
Louvigné-de-Bais
TERRAIN ET MAISONLouvigné-de-Bais : maison de 5 pièces (95 m²) à vendreIDÉALEMENT SITUÉE – MAISON 5 PIÈCES NEUVEÀ 27 km de Rennes, Maisons de l’Avenir Cesson-Sévigné vous présente cette maison de 5 pièces de 95 m² et de 540 m² de terrain à vendre idéalement située dans Louvigné-de-Bais (35680).Cette maison comporte 2 niveaux. Elle propose quatre chambres, une cuisine et deux salles de bains. Cette maison est neuve.Cette maison se trouve dans un secteur convoité. L’École Primaire Privée St Patern et l’École Primaire Publique Charles Perrault sont implantées à moins de 10 minutes à pied. Côté transports, on trouve deux gares (Les Lacs et Châteaubourg) à moins de 10 minutes en voiture. La nationale N157 est accessible à 6 km. Il y a une bibliothèque, un tennis, une boulangerie, une épicerie et une boucherie-charcuterie à proximité du bien.Son prix de vente est de 236 300 €.Contactez notre agence (Dimitri MESAS : (Numéro supprimé)) pour plus de renseignements sur la maison, sur les modalités de vente ou sur les démarches à suivre. Concrétisez vos projets immobiliers avec Maisons de l’Avenir Cesson-Sévigné.
Louvigné-de-Bais
TERRAIN ET MAISONVENTE : maison de 3 pièces (86 m²) à Louvigné-de-BaisIDÉALEMENT SITUÉE – MAISON 3 PIÈCES NEUVEÀ 27 km de Rennes, en vente idéalement située dans Louvigné-de-Bais (35680), notre agence Maisons de l’Avenir Cesson-Sévigné est heureuse de vous présenter cette maison de 3 pièces de plain-pied de 86 m².Son intérieur compte trois chambres, une cuisine et une salle de bains. Cette maison est neuve.Le terrain du bien est de 540 m².La maison est située dans un secteur prisé. L’École Primaire Privée St Patern et l’École Primaire Publique Charles Perrault sont implantées à moins de 10 minutes à pied. Côté transports en commun, il y a deux gares (Les Lacs et Châteaubourg) à moins de 10 minutes en voiture. La nationale N157 est accessible à 6 km. On trouve une bibliothèque, un tennis, une boulangerie, une boucherie-charcuterie et une épicerie à quelques minutes à peine.Son prix de vente est de 262 500 €.Prenez contact avec notre agence (MESAS Dimitri : (Numéro supprimé)) pour toute information sur la maison.
Louvigné-de-Bais
TERRAIN ET MAISONVENTE : maison T5 (131 m²) à Louvigné-de-BaisIDÉALEMENT SITUÉE – MAISON 5 PIÈCES NEUVEÀ vendre à 27 km de Rennes, idéalement située dans Louvigné-de-Bais (35680), nous sommes heureux de vous présenter cette maison de 5 pièces de 131 m² et de 540 m² de terrain.Cette maison possède 2 niveaux. Son intérieur est composé de quatre chambres, d’une cuisine et de deux salles de bains. La maison est neuve.Cette maison se situe dans un secteur prisé. L’École Primaire Privée St Patern et l’École Primaire Publique Charles Perrault se trouvent à moins de 10 minutes à pied. Niveau transports, il y a deux gares (Les Lacs et Châteaubourg) à moins de 10 minutes en voiture. Il y a un accès à la nationale N157 à 6 km. On trouve une bibliothèque, un tennis, une boulangerie, une boucherie-charcuterie et une épicerie à proximité du logement.Elle est à vendre pour la somme de 336 000 €.N’hésitez pas à prendre contact avec Dimitri MESAS ((Numéro supprimé)) pour tout renseignement sur le bien, sur les modalités de vente ou sur les démarches à suivre. Maisons de l’Avenir Cesson-Sévigné est là pour vous accompagner dans tous vos projets immobiliers.
Louvigné-de-Bais
TERRAIN ET MAISONMAISON OSSATURE BOISMaison de 6 pièces (114 m²) en vente à Louvigné-de-BaisIDÉALEMENT SITUÉE – MAISON 6 PIÈCES NEUVEÀ vendre à 27 km de Rennes, idéalement située dans Louvigné-de-Bais (35680), notre agence Maisons de l’Avenir Cesson-Sévigné est heureuse de vous présenter cette maison de 6 pièces de 114 m² et de 540 m² de terrain. Son intérieur inclut cinq chambres, une cuisine et deux salles de bains.Il s’agit d’une maison de 2 niveaux. Elle est neuve.La maison se trouve dans un secteur convoité. Il y a l’École Primaire Privée St Patern et l’École Primaire Publique Charles Perrault à moins de 10 minutes à pied. Côté transports en commun, on trouve les gares Les Lacs et Châteaubourg à moins de 10 minutes en voiture. La nationale N157 est accessible à 6 km. Il y a une bibliothèque, un tennis, une boulangerie, une boucherie-charcuterie et une épicerie dans les environs.Elle est à vendre pour la somme de 312 000 €.Contactez Dimitri MESAS ((Numéro supprimé)) pour toute information sur la maison. Maisons de l’Avenir Cesson-Sévigné est là pour vous accompagner dans tous vos projets immobiliers.
L’actualité immobilière à Pocé-les-Bois
27/11/2023
02/11/2023
30/10/2023
20/10/2023
16/10/2023
16/10/2023