Maison à construire à Pocé-les-Bois (35500)
Images
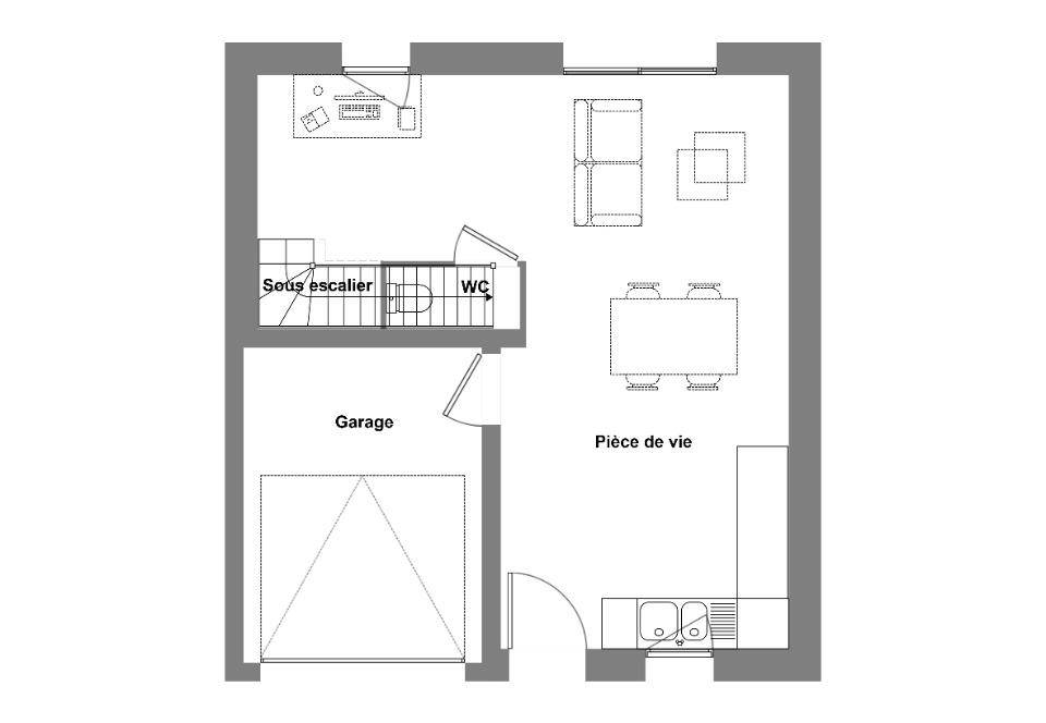
Description
Pocé-les-Bois : maison de 4 pièces (70 m²) à vendre
MAISON 4 PIÈCES NEUVE
En vente : à Pocé-les-Bois (35500), venez découvrir cette maison de 4 pièces de 70 m² et de 364 m² de terrain.
Cette maison comporte 2 niveaux. Son intérieur compte trois chambres, une cuisine et une salle de bains.
Elle est proposée à l'achat pour 223 000 €.
Prenez contact avec notre agence (RENVAZE Cyril : (Numéro supprimé)) pour plus de renseignements sur le bien. Faites de vos projets immobiliers une réalité avec Maisons de l'Avenir Cesson-Sévigné.
Logement susceptibles de vous intéresser
Nous vous proposons de découvrir aussi cette sélection de logements situés à moins de 10km de Pocé-les-Bois et qui seraient susceptibles de vous intéresser.
Saint-Didier
TERRAIN ET MAISONÀ vendre terrain constructible de 358 m², entièrement viabilisé (eau, électricité, assainissement), situé sur la commune de Saint-Didier. Environnement calme et résidentiel, proche des commerces et des écoles. Idéal pour la construction d’une maison individuelle. Découvrez un projet de maison contemporaine qui allie élégance, confort et fonctionnalité. Conçue pour s’adapter aux besoins d’aujourd’hui, elle offre un intérieur lumineux et chaleureux, idéal pour une vie de famille épanouie. Son architecture moderne maximise les espaces tout en apportant une belle harmonie entre volumes ouverts et coins plus intimistes. Chaque pièce est pensée pour conjuguer praticité et bien-être, avec des finitions soignées qui font toute la différence. Vous y trouverez un vaste espace de vie convivial, une cuisine ouverte propice au partage, des chambres confortables, une salle de bain élégante et des rangements astucieux pour un quotidien organisé. À l’extérieur, profitez d’un espace agréable où vous pourrez créer votre cocon, qu’il s’agisse d’un jardin fleuri, d’une terrasse accueillante ou d’un espace détente selon vos envies. Un lieu de vie conçu pour vous offrir un quotidien fluide et apaisant, où chaque instant devient un plaisir. Pour vous assurer un confort de vie et conformément à la RE2025, nous avons choisi un mode de chauffage par PAC + plancher chauffant, volets roulants électriques. Prix hors peinture, décoration, revêtements de sol dans les chambres, cuisine équipée, frais de notaire, raccordements, dommage ouvrage. // Réf. : 2653-213660-ALT. Prix terrain : 60 200 €, hors frais d'agence à la charge de l'acquéreur. Ce terrain vous est proposé, par nos partenaires fonciers, dans le cadre d'un projet de construction avec nous. Les informations sur les risques auxquels ce bien est exposé sont disponibles sur le site Géorisques (www.georisques.gouv.fr). Prix maison : 179 764 €.
Saint-Didier
TERRAIN ET MAISONÀ vendre terrain constructible de 358 m², entièrement viabilisé (eau, électricité, assainissement), situé sur la commune de Saint-Didier. Environnement calme et résidentiel, proche des commerces et des écoles. Idéal pour la construction d’une maison individuelle. Cette maison au design soigné allie modernité et fonctionnalité pour s’adapter à votre mode de vie. Son architecture contemporaine et ses beaux volumes offrent un cadre lumineux et chaleureux, pensé pour le bien-être au quotidien. Avec 4 chambres, dont une suite parentale avec dressing et salle d’eau, elle conjugue espaces privatifs et lieux de partage. Un garage pratique, des rangements optimisés et une conception fluide font de cette maison un projet personnalisable, en parfaite harmonie avec vos envies. Faites le premier pas vers votre futur chez-vous. Contactez-nous !. Pour un confort optimal et conforme à la RE2025, cette maison dispose d’une PAC avec plancher chauffant au rez-de-chaussée, radiateurs à l’étage et volets roulants électriques. À noter : Le prix indiqué exclut les revêtements de sol des chambres, la cuisine aménagée, la peinture, la décoration, les raccordements, les frais de notaire et l’assurance dommages-ouvrage. // Réf. : 2451-213660-ALT. Prix terrain : 60 200 €, hors frais d'agence à la charge de l'acquéreur. Ce terrain vous est proposé, par nos partenaires fonciers, dans le cadre d'un projet de construction avec nous. Les informations sur les risques auxquels ce bien est exposé sont disponibles sur le site Géorisques (www.georisques.gouv.fr). Prix maison : 338 496 €.
Saint-Didier
TERRAINÀ vendre terrain constructible de 358 m², entièrement viabilisé (eau, électricité, assainissement), situé sur la commune de Saint-Didier. Environnement calme et résidentiel, proche des commerces et des écoles. Idéal pour la construction d’une maison individuelle. // Réf. : T213660. Prix terrain : 60 200 €, hors frais d'agence et de notaire à la charge de l'acquéreur. Ce terrain vous est proposé, par nos partenaires fonciers, dans le cadre d'un projet de construction avec nous. Les informations sur les risques auxquels ce bien est exposé sont disponibles sur le site Géorisques (www.georisques.gouv.fr).
Saint-Didier
TERRAINÀ vendre terrain constructible de 358 m², entièrement viabilisé (eau, électricité, assainissement), situé sur la commune de Saint-Didier. Environnement calme et résidentiel, proche des commerces et des écoles. Idéal pour la construction d’une maison individuelle. // Réf. : T213660. Prix terrain : 60 200 €, hors frais d'agence et de notaire à la charge de l'acquéreur. Ce terrain vous est proposé, par nos partenaires fonciers, dans le cadre d'un projet de construction avec nous. Les informations sur les risques auxquels ce bien est exposé sont disponibles sur le site Géorisques (www.georisques.gouv.fr).
Saint-Didier
TERRAIN ET MAISONÀ vendre terrain constructible de 358 m², entièrement viabilisé (eau, électricité, assainissement), situé sur la commune de Saint-Didier. Environnement calme et résidentiel, proche des commerces et des écoles. Idéal pour la construction d’une maison individuelle. Découvrez une maison pensée pour offrir confort et fluidité, avec une architecture en H qui optimise chaque espace. Conçue pour s’adapter à votre mode de vie, elle sépare intelligemment les espaces de vie et de nuit, assurant à la fois convivialité et intimité. Avec ses 3 chambres, dont une avec dressing, cette maison s’adapte aux besoins de toute la famille. Son vaste salon-séjour de 42 m², baigné de lumière, devient le cœur de votre intérieur, un lieu propice aux moments de partage et de détente. Côté pratique, une salle de bain et une salle d’eau offrent un confort quotidien optimal, tandis que le garage et le cellier apportent une fonctionnalité appréciable. Totalement personnalisable, cette maison vous permet de créer un intérieur qui vous ressemble, alliant modernité et bien-être. Pour un confort optimal et conforme à la RE2025, cette maison dispose d’une PAC avec plancher chauffant et volets roulants électriques. À noter : Le prix indiqué exclut les revêtements de sol des chambres, la cuisine aménagée, la peinture, la décoration, les raccordements, les frais de notaire et l’assurance dommages-ouvrage. Contactez-nous dès aujourd’hui pour concrétiser votre projet et façonner votre futur chez-vous !. // Réf. : 1720-213660-ALT. Prix terrain : 60 200 €, hors frais d'agence à la charge de l'acquéreur. Ce terrain vous est proposé, par nos partenaires fonciers, dans le cadre d'un projet de construction avec nous. Les informations sur les risques auxquels ce bien est exposé sont disponibles sur le site Géorisques (www.georisques.gouv.fr). Prix maison : 265 711 €.
Pocé-les-Bois
TERRAIN ET MAISONVENTE d’une maison de 5 pièces (125 m²) à Pocé-les-BoisIDÉALEMENT SITUÉE – MAISON 5 PIÈCES NEUVENous vous présentons cette maison de 5 pièces de 125 m² et de 453 m² de terrain idéalement située dans Pocé-les-Bois (35500).Il s’agit d’une maison de 2 niveaux. Elle est composée de quatre chambres, d’une cuisine et de deux salles de bains. La maison est neuve.La maison se trouve dans un quartier attractif. L’École Primaire Privée St Augustin est implantée à moins de 10 minutes à pied. Côté transports, on trouve deux gares (Vitré et Les Lacs) à moins de 10 minutes en voiture. On trouve un accès à la nationale N157 à 5 km. Il y a une bibliothèque à quelques minutes de la maison.Elle est à vendre pour la somme de 334 000 €.Prenez contact avec Dimitri MESAS ((Numéro supprimé)) pour toute information sur la propriété ou sur les modalités de vente. Maisons de l’Avenir Cesson-Sévigné est là pour vous accompagner dans toutes vos démarches.
Saint-Aubin-des-Landes
TERRAIN ET MAISONSaint-Aubin-des-Landes : maison T5 (111 m²) à vendreIDÉALEMENT SITUÉE – MAISON 5 PIÈCES NEUVEÀ vendre à quelques kilomètres de Rennes, nous vous proposons, idéalement située dans Saint-Aubin-des-Landes (35500), cette maison de 5 pièces de 111 m² avec vue sur jardin.Cette maison possède 2 niveaux. Son intérieur se divise en quatre chambres, une cuisine et deux salles de bains. La maison est neuve.Le terrain du bien s’étend sur 353 m².La maison se trouve dans un quartier convoité. L’École Primaire Privée St Joseph est implantée à moins de 10 minutes à pied. Côté transports en commun, on trouve trois gares (Les Lacs, Vitré et Châteaubourg) à moins de 10 minutes en voiture. La nationale N157 est accessible à 3 km. Il y a une bibliothèque à quelques minutes.Elle est proposée à l’achat pour 228 000 €.Contactez notre agence (Dimitri MESAS : (Numéro supprimé)) pour obtenir de plus amples informations sur la maison, sur les modalités de vente ou sur les démarches à suivre. Maisons de l’Avenir Cesson-Sévigné vous accompagne à toutes les étapes de votre projet et dans tous vos projets immobiliers.
Cornillé
TERRAINTerrain de 389 m² en vente à CornilléIDÉALEMENT SITUÉ – PROCHE DE RENNESÀ Cornillé (35500) à vendre à quelques kilomètres de Rennes, venez découvrir ce terrain de 389 m². Ce terrain, avec une exposition sud, donne sur un jardin. Il se trouve dans un quartier prisé. L’École Primaire Privée Ste Anne est implantée à moins de 10 minutes à pied. Niveau transports, il y a les gares Les Lacs, Châteaubourg et Vitré à moins de 10 minutes en voiture. La nationale N157 est accessible à 3 km. On trouve une bibliothèque et un commerce à proximité de la propriété.Ce terrain est à vendre pour la somme de 54 000 €. Contactez notre agence (Dimitri MESAS : (Numéro supprimé)) pour obtenir de plus amples renseignements sur ce terrain, sur les modalités de vente et sur les démarches à suivre. Concrétisez vos projets immobiliers avec Maisons de l’Avenir Cesson-Sévigné.
Vitré
TERRAIN ET MAISONVENTE d’une maison de 3 pièces (65 m²) à VitréIDÉALEMENT SITUÉE – MAISON 3 PIÈCES NEUVENous vous présentons cette maison de 3 pièces de 65 m² et de 297 m² de terrain avec vue sur jardin en vente idéalement située dans Vitré (35500).C’est une maison de plain-pied. Son intérieur propose deux chambres, une cuisine et une salle de bains. Cette maison est neuve.Cette maison se situe dans un secteur attractif. Tous les types d’établissements scolaires (de la maternelle au lycée) se trouvent à moins de 10 minutes à pied, tout comme deux structures d’accueil pour les enfants en bas âge. Niveau transports, il y a la gare Vitré à proximité. La nationale N157 est accessible à 6 km. On trouve un tennis, des commerces, des boulangeries, des épiceries, trois boucheries-charcuteries et un bureau de poste à quelques minutes du logement. Le marché Centre-Ville anime les environs chaque lundi matin.Elle est à vendre pour la somme de 213 925 €.N’hésitez pas à prendre contact avec notre agence (MESAS Dimitri : (Numéro supprimé)) pour obtenir de plus amples informations sur la maison, sur les démarches à suivre ou sur les modalités de vente. Maisons de l’Avenir Cesson-Sévigné est là pour vous accompagner dans tous vos projets immobiliers.
L’actualité immobilière à Pocé-les-Bois
27/11/2023
02/11/2023
30/10/2023
20/10/2023
16/10/2023
16/10/2023