Maison à construire à Poligné (35320)
Images
Description
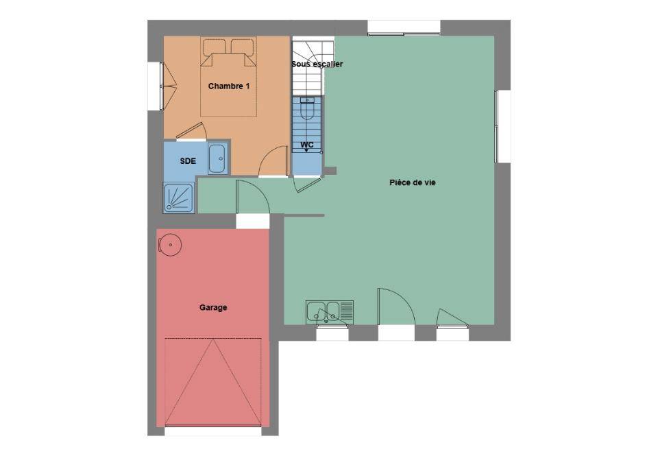
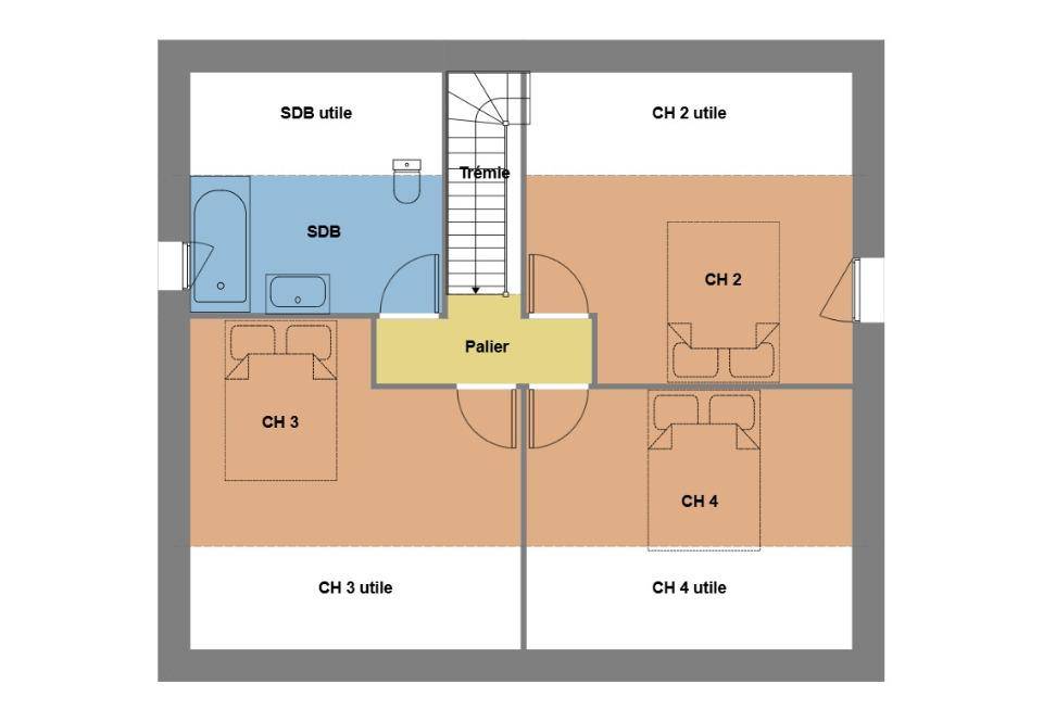
VENTE d'une maison T5 (100 m²) à Poligné
IDÉALEMENT SITUÉE - MAISON 5 PIÈCES NEUVE
À deux pas de Rennes, notre agence Maisons de l'Avenir Cesson-Sévigné est ravie de vous présenter cette maison de 5 pièces de 100 m² et de 364 m² de terrain en vente idéalement située dans Poligné (35320). Elle propose quatre chambres, une cuisine et deux salles de bains.
Il s'agit d'une maison de 2 niveaux. Elle est neuve.
Cette maison est située dans un secteur attractif. Il y a l'École Primaire Publique les Asphodèles à moins de 10 minutes à pied. Niveau transports en commun, on trouve les gares Saint-Senoux-Pléchâtel, Pléchâtel et Guichen-Bourg-des-Comptes à moins de 10 minutes en voiture. Il y a un accès à la nationale N137 à 1 km. Il y a un tennis et une boulangerie à quelques minutes du logement.
Elle est à vendre pour la somme de 222 000 €.
Contactez Dimitri MESAS (tél : (Numéro supprimé)) pour tout renseignement sur la maison, sur les modalités de vente ou sur les démarches à suivre.
Logement susceptibles de vous intéresser
Nous vous proposons de découvrir aussi cette sélection de logements situés à moins de 10km de Poligné et qui seraient susceptibles de vous intéresser.
Crevin
TERRAINTerrain de 300 m² en vente à CrevinPROCHE DE RENNESÀ quelques kilomètres de Rennes à Crevin (35320), terrain de 300 m². Son prix de vente est de 64 450 €. N’hésitez pas à prendre contact avec Cyril RENVAZE (tél : (Numéro supprimé)) pour obtenir de plus amples renseignements sur ce terrain.
Crevin
TERRAIN ET MAISONVENTE d’une maison de 4 pièces (90 m²) à CrevinPROCHE DE RENNES – MAISON 4 PIÈCES NEUVEEn vente : située à deux pas de Rennes, laissez vous charmer par cette maison de 4 pièces de 90 m² et de 300 m² de terrain à Crevin (35320).Cette maison comporte 2 niveaux. Son intérieur se divise en trois chambres, une cuisine et deux salles de bains. Elle est proposée à l’achat pour 277 450 €.Prenez contact avec notre agence (RENVAZE Cyril : (Numéro supprimé)) pour toute information sur cette maison, sur les modalités de vente ou sur les démarches à suivre. Faites de vos projets immobiliers une réalité avec Maisons de l’Avenir Cesson-Sévigné.
Crevin
TERRAIN ET MAISONCrevin : maison T3 (65 m²) à vendrePROCHE DE RENNES – MAISON 3 PIÈCES NEUVEÀ 20 km de Rennes, Maisons de l’Avenir Cesson-Sévigné vous propose en vente à Crevin (35320), cette maison de 3 pièces de plain-pied de 65 m² et de 300 m² de terrain.Elle inclut deux chambres, une cuisine et une salle de bains. Cette maison est neuve.Elle est proposée à l’achat pour 200 950 €.Contactez notre agence (RENVAZE Cyril : (Numéro supprimé)) pour toute information sur cette maison, sur les modalités de vente ou sur les démarches à suivre.
Crevin
TERRAIN ET MAISONMaison de 4 pièces (110 m²) en vente à CrevinPROCHE DE RENNES – MAISON 4 PIÈCES NEUVEÀ vendre : à deux pas de Rennes, nous vous proposons à Crevin (35320), cette maison de 4 pièces de 110 m².Cette maison possède 2 niveaux. Elle comporte quatre chambres, une cuisine et deux salles de bains. Elle est à vendre pour la somme de 312 450 €.N’hésitez pas à prendre contact avec notre agence (RENVAZE Cyril : (Numéro supprimé)) pour tout renseignement sur la maison, sur les modalités de vente ou sur les démarches à suivre.
Crevin
TERRAIN ET MAISONCrevin : maison de 5 pièces (105 m²) en ventePROCHE DE RENNES – MAISON 5 PIÈCES NEUVEEn vente : située à 20 km de Rennes, notre agence Maisons de l’Avenir Cesson-Sévigné est heureuse de vous présenter cette maison de 5 pièces de 105 m² à Crevin (35320).Cette maison compte 2 niveaux. Elle inclut quatre chambres, une cuisine et deux salles de bains. Son prix de vente est de 310 450 €.Contactez Cyril RENVAZE (tél : (Numéro supprimé)) pour toute information sur le bien, sur les démarches à suivre ou sur les modalités de vente. Maisons de l’Avenir Cesson-Sévigné vous accompagne dans tous vos projets immobiliers et à toutes les étapes de votre projet.
Crevin
TERRAIN ET MAISONMaison T4 (95 m²) à vendre à CrevinPROCHE DE RENNES – MAISON 4 PIÈCES OSSATURE BOISÀ vendre à quelques kilomètres de Rennes, venez découvrir à Crevin (35320), cette maison de 4 pièces de plain-pied de 95 m² et de 300 m² de terrain. Son intérieur propose trois chambres, une cuisine et deux salles de bains.Cette maison est neuve.On trouve l’École Primaire Publique l’Arc En Ciel et le Collège Simone Veil à moins de 10 minutes à pied. Niveau transports en commun, il y a quatre gares à moins de 10 minutes en voiture. Il y a un accès à la nationale N137 à 2 km. On trouve une bibliothèque, un tennis, deux boulangeries, deux commerces et une boucherie-charcuterie à proximité.Elle est proposée à l’achat pour 302 800 €.Contactez Cyril RENVAZE ((Numéro supprimé)) pour plus de renseignements sur la maison. Maisons de l’Avenir Cesson-Sévigné est là pour vous accompagner dans toutes vos démarches.
Crevin
TERRAINÀ vendre sur la commune de Crevin, charmante commune située à seulement 20 minutes de Rennes, un terrain à bâtir de 351 m², entièrement viabilisé (eau, électricité, tout-à-l’égout, télécom). Idéalement situé dans un environnement calme et agréable, à proximité immédiate des commerces, écoles et services, ce terrain constitue une belle opportunité pour concrétiser votre projet de construction. // Réf. : T210648. Prix terrain : 71 000 €, hors frais d'agence et de notaire à la charge de l'acquéreur. Ce terrain vous est proposé, par nos partenaires fonciers, dans le cadre d'un projet de construction avec nous. Les informations sur les risques auxquels ce bien est exposé sont disponibles sur le site Géorisques (www.georisques.gouv.fr).
Poligné
TERRAINÀ vendre sur la commune de Poligné, à seulement 25 minutes de Rennes, un terrain à bâtir de 371 m², entièrement viabilisé (eau, électricité, tout-à-l’égout, télécom). Situé dans un environnement paisible et verdoyant, ce terrain offre un cadre idéal pour votre projet de construction, à proximité des écoles, commerces et services de la commune. // Réf. : T210649. Prix terrain : 50 900 €, hors frais d'agence et de notaire à la charge de l'acquéreur. Ce terrain vous est proposé, par nos partenaires fonciers, dans le cadre d'un projet de construction avec nous. Les informations sur les risques auxquels ce bien est exposé sont disponibles sur le site Géorisques (www.georisques.gouv.fr).
Bain-de-Bretagne
TERRAINSitué dans un environnement calme et recherché, ce terrain à bâtir de 460 m², entièrement viabilisé, offre un cadre idéal pour votre futur projet de construction. Proche du centre de Bain-de-Bretagne, des écoles, commerces et services, il bénéficie d’une exposition agréable et d’un accès facile aux grands axes (Rennes à environ 25 minutes). Ce terrain saura répondre à vos envies de maison sur mesure dans un secteur dynamique et convivial. // Réf. : T210646. Prix terrain : 75 000 €, hors frais d'agence et de notaire à la charge de l'acquéreur. Ce terrain vous est proposé, par nos partenaires fonciers, dans le cadre d'un projet de construction avec nous. Les informations sur les risques auxquels ce bien est exposé sont disponibles sur le site Géorisques (www.georisques.gouv.fr).
L’actualité immobilière à Poligné
27/11/2023
02/11/2023
30/10/2023
20/10/2023
16/10/2023
16/10/2023