Maison à construire à Québriac (35190)
Images
Description
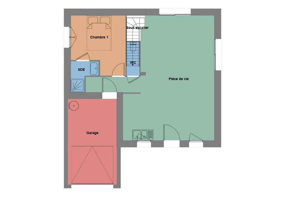
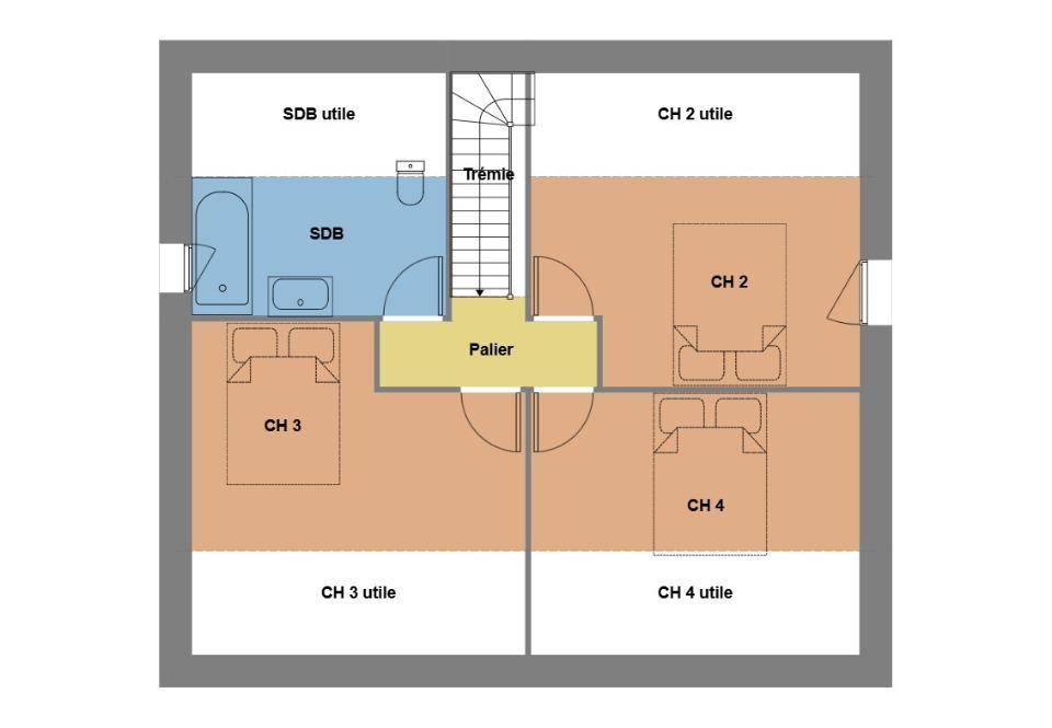
VENTE d'une maison T5 (102 m²) à Québriac
IDÉALEMENT SITUÉE - MAISON 5 PIÈCES NEUVE
En vente : à 24 km de la Manche et à deux pas de Rennes, idéalement située dans Québriac (35190), nous vous proposons cette maison de 5 pièces de 102 m².
Cette maison comporte 2 niveaux. Son intérieur est composé de quatre chambres, d'une cuisine et de deux salles de bains. La maison est neuve.
Le terrain du bien s'étend sur 287 m².
Cette maison est située dans un secteur convoité. On trouve l'École Primaire Publique de la Liberté à moins de 10 minutes à pied. La nationale N12 est accessible à 20 km. Il y a une épicerie dans les environs.
Son prix de vente est de 233 200 €.
Contactez notre agence (AMIRI Laetitia : (Numéro supprimé)) pour obtenir de plus amples informations sur la maison ou sur les modalités de vente.
Logement susceptibles de vous intéresser
Nous vous proposons de découvrir aussi cette sélection de logements situés à moins de 10km de Québriac et qui seraient susceptibles de vous intéresser.
Tinténiac
TERRAIN ET MAISON?? Modèle de maison proposé – 114 m² habitablesCette maison contemporaine à étage séduit par ses volumes généreux et sa conception moderne et fonctionnelle :Grand espace de vie lumineux ouvert sur la cuisine et prolongé par de larges baies vitrées donnant sur le jardin exposé Sud-Ouest,4 chambres, dont une suite parentale au rez-de-chaussée avec dressing et salle de bains privative,Chaque chambre équipée d’un dressing,Deuxième salle de bains à l’étage,Buanderie fonctionnelle,Entrée avec vestiaire,Architecture élégante, finitions soignées et belle performance énergétique (RE2020).?? Un projet personnalisableCe modèle est entièrement personnalisable selon vos envies et vos besoins.Habitat Concept vous propose également de concevoir votre maison sur mesure, adaptée à votre style de vie et à votre budget.?? Les atouts de TinténiacCommune dynamique d’Ille-et-Vilaine, Tinténiac bénéficie d’un emplacement stratégique entre Rennes et Saint-Malo, et séduit par sa qualité de vie, son cadre verdoyant, ses commerces de proximité, son école, son collège et ses associations.Vous profiterez d’un environnement paisible, idéal pour les familles, tout en restant à moins de 30 minutes de Rennes.?? Prix indicatif ?? Projet maison + terrain à partir de : €?? Mentions légales obligatoiresTerrain proposé par notre partenaire foncier, sous réserve de disponibilité. Visuel non contractuel. Prix indiqué hors frais de notaire, raccordements, peintures et aménagements extérieurs. Hors décoration intérieure. Offre non cumulable, dans la limite des stocks disponibles.Habitat Concept, constructeur de maisons individuelles – [Votre agence et coordonnées] – Construction conforme à la RE2020.?? Les + de ce projet? Terrain plat, viabilisé, en impasse? Exposition Sud-Ouest? Grande maison familiale moderne? Suite parentale au rez-de-chaussée? Personnalisation totale possible? Constructeur reconnu pour son accompagnement de A à Z?? Contactez-nous dès aujourd
Québriac
TERRAINQuébriac : terrain de 287 m² à vendreIDÉALEMENT SITUÉ – PROCHE DE RENNESÀ 24 km de la Manche et à quelques kilomètres de Rennes à Québriac (35190), terrain de 287 m². Dans un secteur prisé, le terrain idéalement situé est proche des écoles et des commerces. L’École Primaire Publique de la Liberté est implantée à moins de 10 minutes à pied. On trouve un accès à la nationale N12 à 20 km. Il y a une épicerie à proximité.Son prix de vente est de 51 660 €. N’hésitez pas à prendre contact avec notre agence (AMIRI Laetitia : (Numéro supprimé)) pour tout renseignement sur ce terrain. Donnez vie à vos projets immobiliers avec Maisons de l’Avenir Saint-Carné.
Québriac
TERRAIN ET MAISONMaison T3 (57 m²) en vente à QuébriacIDÉALEMENT SITUÉE – MAISON 3 PIÈCES NEUVEÀ vendre : localisée à 24 km de la Manche et à 29 km de Rennes, laissez vous charmer par, idéalement située dans Québriac (35190), cette maison de 3 pièces de plain-pied de 57 m². Elle comporte deux chambres, une cuisine et une salle de bains.Le terrain du bien s’étend sur 287 m².Cette maison est neuve.La maison se situe dans un quartier prisé. Il y a l’École Primaire Publique de la Liberté à moins de 10 minutes à pied. La nationale N12 est accessible à 20 km. On trouve une épicerie à proximité de la maison.Elle est proposée à l’achat pour 183 750 €.Contactez Laetitia AMIRI (tél : (Numéro supprimé)) pour toute question sur la maison.
Québriac
TERRAIN ET MAISONQuébriac : maison de 4 pièces (63 m²) en venteIDÉALEMENT SITUÉE – MAISON 4 PIÈCES NEUVEEn vente à 24 km de la Manche et à quelques kilomètres de Rennes, idéalement située dans Québriac (35190), nous sommes ravis de vous présenter cette maison de 4 pièces de 63 m² et de 287 m² de terrain.Cette maison compte 2 niveaux. Elle est composée de trois chambres, d’une cuisine et d’une salle de bains. La maison est neuve.Cette propriété se situe dans un quartier attractif. L’École Primaire Publique de la Liberté se trouve à moins de 10 minutes à pied. La nationale N12 est accessible à 20 km. Il y a une épicerie à quelques minutes à peine.Son prix de vente est de 203 250 €.Contactez Laetitia AMIRI (tél : (Numéro supprimé)) pour tout renseignement sur la maison, sur les modalités de vente ou sur les démarches à suivre. Faites de vos projets immobiliers une réalité avec Maisons de l’Avenir Saint-Carné.
Québriac
TERRAIN ET MAISONVENTE d’une maison T5 (102 m²) à QuébriacIDÉALEMENT SITUÉE – MAISON 5 PIÈCES NEUVEEn vente : à 24 km de la Manche et à deux pas de Rennes, idéalement située dans Québriac (35190), nous vous proposons cette maison de 5 pièces de 102 m².Cette maison comporte 2 niveaux. Son intérieur est composé de quatre chambres, d’une cuisine et de deux salles de bains. La maison est neuve.Le terrain du bien s’étend sur 287 m².Cette maison est située dans un secteur convoité. On trouve l’École Primaire Publique de la Liberté à moins de 10 minutes à pied. La nationale N12 est accessible à 20 km. Il y a une épicerie dans les environs.Son prix de vente est de 233 200 €.Contactez notre agence (AMIRI Laetitia : (Numéro supprimé)) pour obtenir de plus amples informations sur la maison ou sur les modalités de vente.
Québriac
TERRAIN ET MAISONVENTE : maison de 4 pièces (94 m²) à QuébriacIDÉALEMENT SITUÉE – MAISON BOIS QUALITATIVE, ECONOMIQUE ET DURABLE 4 PIÈCES NEUVEÀ vendre : située à 24 km de la Manche et à deux pas de Rennes, votre agence Maisons de l’Avenir Saint-Carné est ravie de vous présenter cette maison de 4 pièces de plain-pied de 94 m², idéalement située dans Québriac (35190).Elle inclut trois chambres, une cuisine et deux salles de bains. Cette maison est neuve.Le terrain du bien s’étend sur 287 m².La maison se trouve dans un quartier prisé. Il y a l’École Primaire Publique de la Liberté à moins de 10 minutes à pied. On trouve un accès à la nationale N12 à 20 km. On trouve une épicerie à quelques minutes.Elle est proposée à l’achat pour 277 270 €.Contactez notre constructeur (AMIRI Laetitia : (Numéro supprimé)) pour toute information sur la maison ou sur les démarches à suivre. Maisons de l’Avenir Saint-Carné est là pour vous accompagner dans tous vos projets immobiliers.
Québriac
TERRAINVENTE d’un terrain de 400 m² à QuébriacIDÉALEMENT SITUÉ – PROCHE DE RENNESÀ 24 km de la Manche et à deux pas de Rennes à Québriac (35190), terrain de 400 m². Il est prêt à accueillir la maison de vos rêves pour toute la famille. Dans un quartier convoité, ce terrain idéalement situé est proche des écoles et des commerces. Il y a l’École Primaire Publique de la Liberté à moins de 10 minutes à pied. Il y a un accès à la nationale N12 à 20 km. On trouve une épicerie à proximité.Ce terrain est proposé à l’achat pour 72 000 €. Contactez Laetitia AMIRI ((Numéro supprimé)) pour obtenir de plus amples renseignements sur le terrain. Maisons de l’Avenir Saint-Carné vous accompagne dans tous vos projets immobiliers et à toutes les étapes de l’achat.
Québriac
TERRAIN ET MAISONVENTE : maison de 3 pièces (56 m²) à QuébriacIDÉALEMENT SITUÉE – MAISON 3 PIÈCES NEUVEEn vente : située à 24 km de la Manche et à 29 km de Rennes, venez découvrir, idéalement située dans Québriac (35190), cette maison de 3 pièces de plain-pied de 56 m².Conçue de plain-pied, elle est composée de deux chambres, d’une cuisine et d’une salle de bains. La maison est neuve.Le terrain du bien s’étend sur 400 m².Cette maison se trouve dans un quartier prisé. L’École Primaire Publique de la Liberté est implantée à moins de 10 minutes à pied. La nationale N12 est accessible à 20 km. Il y a une épicerie dans les environs.Son prix de vente est de 208 100 €.N’hésitez pas à prendre contact avec Laetitia AMIRI (tél : (Numéro supprimé)) pour toute information sur la propriété, sur les démarches à suivre ou sur les modalités de vente. Maisons de l’Avenir Saint-Carné vous accompagne dans tous vos projets immobiliers et à toutes les étapes de votre projet.
Québriac
TERRAIN ET MAISONVENTE d’une maison T4 (88 m²) à QuébriacIDÉALEMENT SITUÉE – MAISON 4 PIÈCES NEUVEEn vente : à 24 km de la Manche et à quelques kilomètres de Rennes, notre agence Maisons de l’Avenir Saint-Carné est heureuse de vous présenter, idéalement située dans Québriac (35190), cette maison de 4 pièces de 88 m² et de 400 m² de terrain. Elle se divise en trois chambres, une cuisine et une salle de bains.Il s’agit d’une maison de 2 niveaux. Elle est neuve.Cette maison se trouve dans un quartier prisé. Il y a l’École Primaire Publique de la Liberté à moins de 10 minutes à pied. Il y a un accès à la nationale N12 à 20 km. On trouve une épicerie à quelques minutes.Elle est proposée à l’achat pour 224 100 €.Contactez Laetitia AMIRI ((Numéro supprimé)) pour tout renseignement sur la maison.
L’actualité immobilière à Québriac
27/11/2023
02/11/2023
30/10/2023
20/10/2023
16/10/2023
16/10/2023