Maison à construire à Romagné (35133)
Images
Description
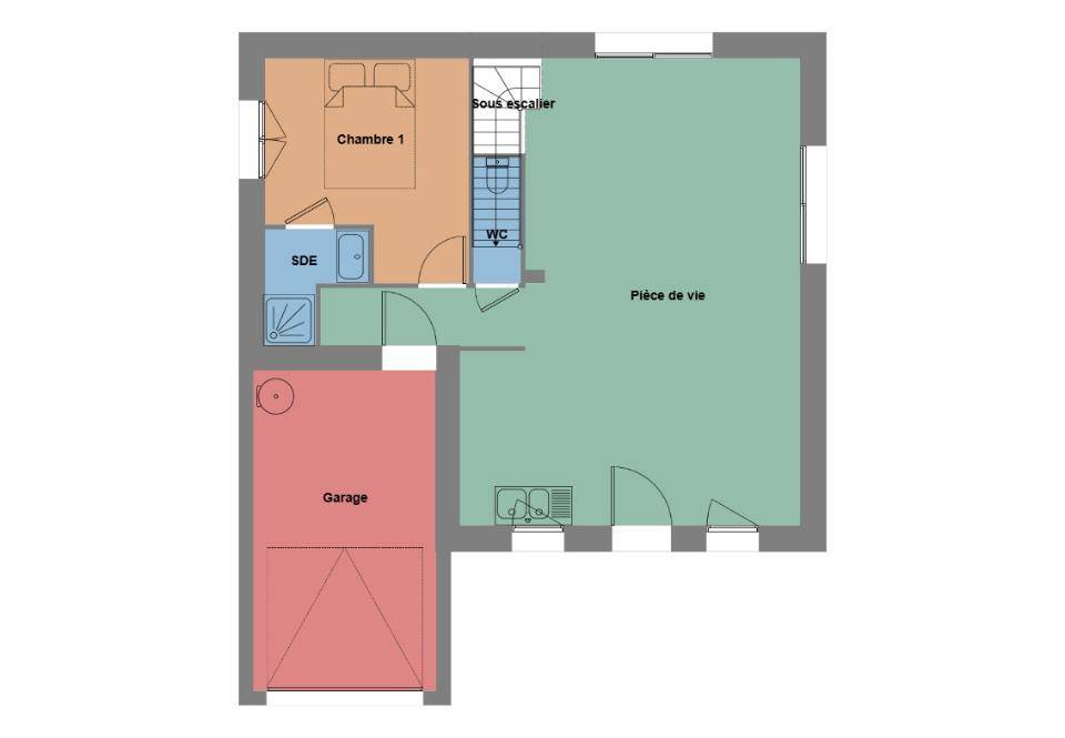
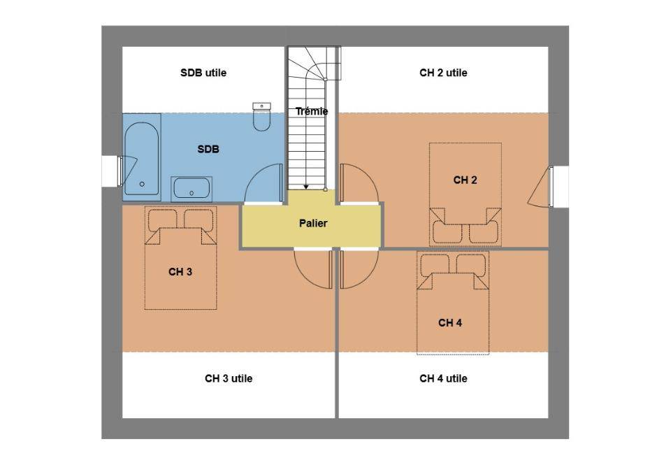
VENTE d'une maison de 5 pièces (111 m²) à Romagné
IDÉALEMENT SITUÉE - MAISON 5 PIÈCES NEUVE
À 35 km de la Manche, nous vous présentons cette maison de 5 pièces de 111 m² et de 350 m² de terrain idéalement située dans Romagné (35133). Elle est composée de quatre chambres, d'une cuisine et de deux salles de bains.
C'est une maison de 2 niveaux. Elle est neuve.
La maison se trouve dans un quartier attractif. L'École Primaire Privée Ste Anne et l'École Primaire Publique Lucie Aubrac sont implantées à moins de 10 minutes à pied. L'autoroute A84 est accessible à 2 km. Il y a un tennis, deux boulangeries, un commerce et une boucherie-charcuterie à proximité du logement.
Elle est proposée à l'achat pour 235 000 €.
Prenez contact avec notre agence (Dimitri MESAS : (Numéro supprimé)) pour toute information sur la propriété. Maisons de l'Avenir Cesson-Sévigné vous accompagne dans tous vos projets immobiliers et à toutes les étapes de votre projet.
Logement susceptibles de vous intéresser
Nous vous proposons de découvrir aussi cette sélection de logements situés à moins de 10km de Romagné et qui seraient susceptibles de vous intéresser.
Romagné
TERRAINEn exclusivité terrain idéalement situé à Romagné, à deux pas de FougèresSitué dans un environnement calme et verdoyant, ce terrain est issu d’une division parcellaire récente sur une belle parcelle paysagère. À seulement quelques minutes du cœur de Fougères tout en étant implanté sur la commune de Romagné, ce terrain bénéficie d’un emplacement rare, alliant tranquillité et praticité.Vous profiterez d’un cadre de vie agréable, proche de toutes les commodités accessibles à pied : commerces, écoles, services, transports… tout est réuni pour faciliter votre quotidien. L’environnement résidentiel, peu passant, offre un cadre propice à la réalisation d’un projet de vie serein.La parcelle est vendue libre de tout constructeur, vous laissant ainsi la liberté d’imaginer et de concrétiser la maison de vos rêves, selon vos envies et votre mode de vie.Ne manquez pas cette opportunité rare de bâtir votre futur chez-vous dans un cadre privilégié. Il ne reste plus qu’à dessiner votre projet. Les honoraires d’agence sont à la charge de l’acquéreur, soit 12,00% TTC du prix hors honoraires.Les informations sur les risques auxquels ce bien est exposé sont disponibles sur le site Géorisques : www. georisques. gouv. fr.Réseau Immobilier CAPIFRANCE – Votre agent commercial (RSAC N(Numéro supprimé) – Greffe de ANGERS) Vincent HANOUT-LEVINDRE Entrepreneur Individuel à Responsabilité Limitée (Numéro supprimé) – Réf.928840
Beaucé
TERRAINÀ vendre sur la commune de Beaucé, à proximité immédiate de Fougères, un terrain à bâtir de 557 m², entièrement viabilisé (eau, électricité, tout-à-l’égout, télécom). Idéalement situé dans un environnement calme et résidentiel, ce terrain offre un cadre de vie agréable tout en restant proche des commerces, écoles et services. // Réf. : T210647. Prix terrain : 55 000 €, hors frais d'agence et de notaire à la charge de l'acquéreur. Ce terrain vous est proposé, par nos partenaires fonciers, dans le cadre d'un projet de construction avec nous. Les informations sur les risques auxquels ce bien est exposé sont disponibles sur le site Géorisques (www.georisques.gouv.fr).
Beaucé
TERRAIN ET MAISONÀ vendre sur la commune de Beaucé, à proximité immédiate de Fougères, un terrain à bâtir de 557 m², entièrement viabilisé (eau, électricité, tout-à-l’égout, télécom). Idéalement situé dans un environnement calme et résidentiel, ce terrain offre un cadre de vie agréable tout en restant proche des commerces, écoles et services. Une maison pensée pour accueillir votre quotidien avec élégance. Vous recherchez un espace généreux où chaque membre de la famille trouve sa place ? Cette maison contemporaine offre un vaste espace de vie baigné de lumière, idéal pour partager des moments conviviaux. Avec six chambres spacieuses, dont une suite parentale avec dressing et salle d’eau, elle s’adapte à tous vos projets. L’étage propose un espace nuit parfaitement agencé, favorisant confort et intimité. Fonctionnelle et moderne, elle dispose également d’une cuisine ouverte avec cellier, de nombreux rangements et d’un garage attenant. Un équilibre parfait entre design et confort, pour une maison qui vous ressemble. Contactez-nous pour en savoir plus !. Pour un confort optimal et conforme à la RE2025, cette maison dispose d’une PAC avec plancher chauffant au rez-de-chaussée, radiateurs à l’étage et volets roulants électriques. À noter : Le prix indiqué exclut les revêtements de sol des chambres, la cuisine aménagée, la peinture, la décoration, les raccordements, les frais de notaire et l’assurance dommages-ouvrage. // Réf. : 2449-210647-ALT. Prix terrain : 55 000 €, hors frais d'agence à la charge de l'acquéreur. Ce terrain vous est proposé, par nos partenaires fonciers, dans le cadre d'un projet de construction avec nous. Les informations sur les risques auxquels ce bien est exposé sont disponibles sur le site Géorisques (www.georisques.gouv.fr). Prix maison : 342 132 €.
Beaucé
TERRAIN ET MAISONÀ vendre sur la commune de Beaucé, à proximité immédiate de Fougères, un terrain à bâtir de 557 m², entièrement viabilisé (eau, électricité, tout-à-l’égout, télécom). Idéalement situé dans un environnement calme et résidentiel, ce terrain offre un cadre de vie agréable tout en restant proche des commerces, écoles et services. Laissez-vous séduire par cette maison moderne et lumineuse, pensée pour votre confort et votre bien-être. Avec 3 belles chambres, un espace de vie spacieux et convivial, baigné de lumière grâce à ses larges ouvertures, et un garage attenant, ce modèle offre une parfaite harmonie entre fonctionnalité et esthétisme. Sa conception optimisée vous permet de moduler les volumes selon vos envies : cuisine ouverte ou fermée, aménagement sur-mesure… Imaginez votre intérieur idéal ! Profitez d’une salle d’eau contemporaine et d’un cellier pratique pour un quotidien facilité. Son architecture sobre et élégante s’adapte à tous les styles de vie. Pour un confort optimal et conforme à la RE2025, cette maison dispose d’une PAC avec plancher chauffant et volets roulants électriques. À noter : Le prix indiqué exclut les revêtements de sol des chambres, la cuisine aménagée, la peinture, la décoration, les raccordements, les frais de notaire et l’assurance dommages-ouvrage. Envie d’un intérieur qui vous ressemble ? Contactez-nous et concrétisons ensemble votre projet sur-mesure !. . // Réf. : 1805-210647-ALT. Prix terrain : 55 000 €, hors frais d'agence à la charge de l'acquéreur. Ce terrain vous est proposé, par nos partenaires fonciers, dans le cadre d'un projet de construction avec nous. Les informations sur les risques auxquels ce bien est exposé sont disponibles sur le site Géorisques (www.georisques.gouv.fr). Prix maison : 281 667 €.
Beaucé
TERRAIN ET MAISONÀ vendre sur la commune de Beaucé, à proximité immédiate de Fougères, un terrain à bâtir de 557 m², entièrement viabilisé (eau, électricité, tout-à-l’égout, télécom). Idéalement situé dans un environnement calme et résidentiel, ce terrain offre un cadre de vie agréable tout en restant proche des commerces, écoles et services. Découvrez un projet de maison contemporaine qui allie élégance, confort et fonctionnalité. Conçue pour s’adapter aux besoins d’aujourd’hui, elle offre un intérieur lumineux et chaleureux, idéal pour une vie de famille épanouie. Son architecture moderne maximise les espaces tout en apportant une belle harmonie entre volumes ouverts et coins plus intimistes. Chaque pièce est pensée pour conjuguer praticité et bien-être, avec des finitions soignées qui font toute la différence. Vous y trouverez un vaste espace de vie convivial, une cuisine ouverte propice au partage, des chambres confortables, une salle de bain élégante et des rangements astucieux pour un quotidien organisé. À l’extérieur, profitez d’un espace agréable où vous pourrez créer votre cocon, qu’il s’agisse d’un jardin fleuri, d’une terrasse accueillante ou d’un espace détente selon vos envies. Un lieu de vie conçu pour vous offrir un quotidien fluide et apaisant, où chaque instant devient un plaisir. Pour vous assurer un confort de vie et conformément à la RE2025, nous avons choisi un mode de chauffage par PAC + plancher chauffant, volets roulants électriques. Prix hors peinture, décoration, revêtements de sol dans les chambres, cuisine équipée, frais de notaire, raccordements, dommage ouvrage. // Réf. : 2653-210647-ALT. Prix terrain : 55 000 €, hors frais d'agence à la charge de l'acquéreur. Ce terrain vous est proposé, par nos partenaires fonciers, dans le cadre d'un projet de construction avec nous. Les informations sur les risques auxquels ce bien est exposé sont disponibles sur le site Géorisques (www.georisques.gouv.fr). Prix maison : 179 764 €.
Beaucé
TERRAINÀ vendre sur la commune de Beaucé, à proximité immédiate de Fougères, un terrain à bâtir de 557 m², entièrement viabilisé (eau, électricité, tout-à-l’égout, télécom). Idéalement situé dans un environnement calme et résidentiel, ce terrain offre un cadre de vie agréable tout en restant proche des commerces, écoles et services. // Réf. : T210647. Prix terrain : 55 000 €, hors frais d'agence et de notaire à la charge de l'acquéreur. Ce terrain vous est proposé, par nos partenaires fonciers, dans le cadre d'un projet de construction avec nous. Les informations sur les risques auxquels ce bien est exposé sont disponibles sur le site Géorisques (www.georisques.gouv.fr).
Fougères
TERRAINVENTE : terrain de 300 m² à FougèresIDÉALEMENT SITUÉÀ Fougères (35300) en vente à 38 km de la Manche, projetez la maison de vos rêves sur ce terrain de 300 m². Ce terrain, avec une exposition sud, donne sur un jardin. Il est situé dans un quartier convoité. Il y a tous les types d’écoles (de la maternelle au lycée) à moins de 10 minutes à pied, tout comme une structure d’accueil pour la petite enfance. L’autoroute A84 est accessible à 8 km. On trouve une bibliothèque, des commerces, deux supermarchés, des boulangeries, une supérette et des épiceries dans les environs. Enfin, le marché Centre-Ville a lieu chaque samedi matin.Ce terrain est proposé à l’achat pour 61 500 €. Contactez Dimitri MESAS (tél : (Numéro supprimé)) pour obtenir de plus amples informations sur ce terrain, sur les démarches à suivre et sur les modalités de vente. Maisons de l’Avenir Cesson-Sévigné vous accompagne à toutes les étapes de votre projet et dans tous vos projets immobiliers.
Fougères
TERRAIN ET MAISONMaison de 4 pièces (90 m²) en vente à FougèresIDÉALEMENT SITUÉE – MAISON 4 PIÈCES NEUVEEn vente : située à 38 km de la Manche, nous vous proposons cette maison de 4 pièces de 90 m² et de 300 m² de terrain avec vue sur jardin idéalement située dans Fougères (35300). Elle dispose de quatre chambres, d’une cuisine et d’une salle de bains.C’est une maison de 2 niveaux. Elle est neuve.La maison est située dans un quartier attractif. On trouve des écoles de tous types (de la maternelle au lycée) à moins de 10 minutes à pied, tout comme une crèche. L’autoroute A84 est accessible à 8 km. Il y a une bibliothèque, des commerces, deux supermarchés, des boulangeries, deux poissonneries et un bureau de poste à proximité. Enfin, le marché Centre-Ville anime les environs tous les samedis matin.Elle est à vendre pour la somme de 242 000 €.Contactez Dimitri MESAS (tél : (Numéro supprimé)) pour plus de renseignements sur la maison, sur les modalités de vente ou sur les démarches à suivre. Concrétisez vos projets immobiliers avec Maisons de l’Avenir Cesson-Sévigné.
Fougères
TERRAIN ET MAISONFougères : maison F5 (89 m²) à vendreIDÉALEMENT SITUÉE – MAISON 5 PIÈCES NEUVEÀ 38 km de la Manche, en vente idéalement située dans Fougères (35300), notre agence Maisons de l’Avenir Cesson-Sévigné est ravie de vous proposer cette maison de 5 pièces de 89 m² et de 300 m² de terrain.C’est une maison de 2 niveaux. Elle se divise en quatre chambres, une cuisine et deux salles de bains. Cette maison est neuve.Cette propriété est située dans un quartier attractif. Des écoles (de la maternelle au lycée) sont implantées à moins de 10 minutes à pied, tout comme une structure d’accueil pour les tout-petits. Il y a un accès à l’autoroute A84 à 8 km. Il y a une bibliothèque, des commerces, deux supermarchés, des boulangeries, deux poissonneries et des boucheries-charcuteries à proximité du logement. Ne manquez pas le marché Centre-Ville chaque samedi matin.Son prix de vente est de 234 000 €.N’hésitez pas à prendre contact avec notre agence (MESAS Dimitri : (Numéro supprimé)) pour obtenir de plus amples renseignements sur la maison.
L’actualité immobilière à Romagné
27/11/2023
02/11/2023
30/10/2023
20/10/2023
16/10/2023
16/10/2023