Maison à construire à Saint-Aubin-d'Aubigné (35250)
Images
Description
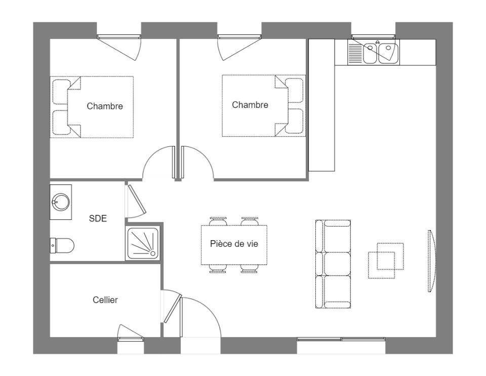
Saint-Aubin-d'Aubigné : maison F3 (60 m²) à vendre
PROCHE DE RENNES - MAISON 3 PIÈCES NEUVE
À 40 km de la Manche et à deux pas de Rennes, votre agence Maisons de l'Avenir Cesson-Sévigné est ravie de vous proposer cette maison de 3 pièces de plain-pied de 60 m² et de 302 m² de terrain à Saint-Aubin-d'Aubigné (35250). Elle offre deux chambres, une cuisine et une salle de bains.
Elle est proposée à l'achat pour 205 000 €.
N'hésitez pas à prendre contact avec Cyril RENVAZE ((Numéro supprimé)) pour toute information sur cette maison. Donnez vie à vos projets immobiliers avec Maisons de l'Avenir Cesson-Sévigné.
Logement susceptibles de vous intéresser
Nous vous proposons de découvrir aussi cette sélection de logements situés à moins de 10km de Saint-Aubin-d'Aubigné et qui seraient susceptibles de vous intéresser.
Melesse
TERRAINVENTE d’un terrain de 584 m² à MelessePROCHE DE RENNESÀ Melesse (35520) à 44 km de la Manche et à 12 km de Rennes, venez découvrir ce terrain de 584 m². Il est proposé à l’achat pour 181 900 €. Contactez notre agence (Cyril RENVAZE : (Numéro supprimé)) pour toute question sur ce terrain, sur les démarches à suivre ou sur les modalités de vente. Maisons de l’Avenir Cesson-Sévigné est là pour vous accompagner dans tous vos projets immobiliers.
Melesse
TERRAIN ET MAISONVENTE d’une maison F5 (140 m²) à MelesseMAISON 5 PIÈCES NEUVE – PROCHE DE RENNESEn vente à 44 km de la Manche et à quelques kilomètres de Rennes, Maisons de l’Avenir Cesson-Sévigné vous présente à Melesse (35520), cette maison de 5 pièces de plain-pied de 140 m² et de 584 m² de terrain. Conçue de plain-pied, elle se divise en quatre chambres, une cuisine et deux salles de bains.Elle est proposée à l’achat pour 504 900 €.Contactez Cyril RENVAZE ((Numéro supprimé)) pour toute question sur la maison. Donnez vie à vos projets immobiliers avec Maisons de l’Avenir Cesson-Sévigné.
Melesse
TERRAIN ET MAISONMelesse : maison T3 (65 m²) à vendreMAISON 3 PIÈCES NEUVE – PROCHE DE RENNESEn vente à 44 km de la Manche et à deux pas de Rennes, à Melesse (35520), Maisons de l’Avenir Cesson-Sévigné vous propose cette maison de 3 pièces de plain-pied de 65 m². Conçue de plain-pied, elle inclut deux chambres, une cuisine et une salle de bains.Le terrain de la propriété s’étend sur 584 m².Il est proposé à l’achat pour 333 400 €.N’hésitez pas à prendre contact avec notre agence (RENVAZE Cyril : (Numéro supprimé)) pour tout renseignement sur cette maison ou sur les modalités de vente. Maisons de l’Avenir Cesson-Sévigné est là pour vous accompagner dans toutes vos démarches.
Melesse
TERRAIN ET MAISONVENTE : maison T4 (105 m²) à MelessePROCHE DE RENNES – MAISON 4 PIÈCES NEUVEEn vente : à 44 km de la Manche et à deux pas de Rennes, notre agence Maisons de l’Avenir Cesson-Sévigné est ravie de vous présenter à Melesse (35520), cette maison de 4 pièces de plain-pied de 105 m² et de 584 m² de terrain.Conçue de plain-pied, elle dispose de trois chambres, d’une cuisine et d’une salle de bains. Son prix de vente est de 427 900 €.Prenez contact avec notre constructeur (RENVAZE Cyril : (Numéro supprimé)) pour toute information sur la maison. Maisons de l’Avenir Cesson-Sévigné est là pour vous accompagner à toutes les étapes de votre projet.
Melesse
TERRAIN ET MAISONVENTE : maison de 4 pièces (155 m²) à MelesseMAISON 4 PIÈCES NEUVE – PROCHE DE RENNESEn vente à 44 km de la Manche et à 12 km de Rennes, à Melesse (35520), Maisons de l’Avenir Cesson-Sévigné vous présente cette maison de 4 pièces de 155 m². Elle dispose de quatre chambres, d’une cuisine et de deux salles de bains.Le terrain du bien s’étend sur 584 m².Cette maison possède 2 niveaux. Elle est proposée à l’achat pour 537 900 €.Contactez Cyril RENVAZE (tél : (Numéro supprimé)) pour tout renseignement sur la maison ou sur les démarches à suivre.
Melesse
TERRAIN ET MAISONMaison de 5 pièces (115 m²) à vendre à MelesseMAISON 5 PIÈCES OSSATURE BOIS – PROCHE DE RENNESÀ vendre : localisée à 44 km de la Manche et à quelques kilomètres de Rennes, à Melesse (35520), Maisons de l’Avenir Cesson-Sévigné vous présente cette maison de 5 pièces de 115 m² et de 584 m² de terrain. Elle dispose de quatre chambres, d’une cuisine et d’une salle de bains.C’est une maison de 2 niveaux. Elle est à vendre pour la somme de 456 600 €.Prenez contact avec Cyril RENVAZE ((Numéro supprimé)) pour plus d’informations sur cette maison, sur les modalités de vente ou sur les démarches à suivre. Maisons de l’Avenir Cesson-Sévigné est là pour vous accompagner dans tous vos projets immobiliers.
Montreuil-sur-Ille
TERRAINMontreuil-sur-Ille : terrain de 299 m² en venteIDÉALEMENT SITUÉ – PROCHE DE RENNESÀ Montreuil-sur-Ille (35440) en vente à 34 km de la Manche et à 21 km de Rennes, découvrez ce terrain de 299 m². Ce terrain, orienté plein sud, donne sur un jardin. Il se trouve dans un secteur attractif. Il y a l’École Primaire Publique Groupe Scolaire du Botrel et l’École Primaire Privée St Michel à moins de 10 minutes à pied et une crèche. Niveau transports, on trouve la gare Montreuil-sur-Ille dans un rayon de 1 km. L’autoroute A84 et les nationales N136 et N12 sont accessibles à moins de 20 km. Il y a une bibliothèque, une boulangerie, un supermarché, un commerce et un bureau de poste à quelques minutes de la propriété.Son prix de vente est de 57 500 €. Contactez notre agence (Dimitri MESAS : (Numéro supprimé)) pour plus de renseignements sur ce terrain. Faites de vos projets immobiliers une réalité avec Maisons de l’Avenir Cesson-Sévigné.
Saint-Aubin-d'Aubigné
TERRAINTerrain de 354 m² en vente à Saint-Aubin-d’AubignéIDÉALEMENT SITUÉ – PROCHE DE RENNESEn vente à 40 km de la Manche et à deux pas de Rennes à Saint-Aubin-d’Aubigné (35250), terrain de 354 m². Ce terrain, avec une exposition sud, donne sur un jardin. Il se trouve dans un secteur attractif. Il y a cinq établissements scolaires à moins de 10 minutes à pied. Niveau transports en commun, on trouve cinq gares à moins de 10 minutes en voiture. L’autoroute A84 est accessible à 9 km. Il y a un tennis, une bibliothèque, des commerces, trois boulangeries, une boucherie-charcuterie, un bureau de poste et une épicerie dans les environs.Ce terrain est proposé à l’achat pour 92 000 €. Prenez contact avec Dimitri MESAS ((Numéro supprimé)) pour toute question sur le terrain.
Saint-Aubin-d'Aubigné
TERRAINSaint-Aubin-d’Aubigné : terrain de 258 m² à vendreIDÉALEMENT SITUÉ – PROCHE DE RENNESÀ Saint-Aubin-d’Aubigné (35250) à 40 km de la Manche et à deux pas de Rennes, projetez la maison de vos rêves sur ce terrain de 258 m². Ce terrain, avec vue sur jardin, est exposé plein sud. Il se situe dans un quartier prisé. Il y a cinq établissements scolaires à moins de 10 minutes à pied. Côté transports en commun, on trouve cinq gares à moins de 10 minutes en voiture. L’autoroute A84 est accessible à 9 km. Il y a un tennis, une bibliothèque, des commerces, trois boulangeries, une boucherie-charcuterie, une épicerie et un bureau de poste dans les environs.Son prix de vente est de 65 500 €. Contactez notre agence (Dimitri MESAS : (Numéro supprimé)) pour toute question sur ce terrain.
L’actualité immobilière à Saint-Aubin-d'Aubigné
27/11/2023
02/11/2023
30/10/2023
20/10/2023
16/10/2023
16/10/2023