Maison à construire à Saint-Briac-sur-Mer (35800)
Images
Description
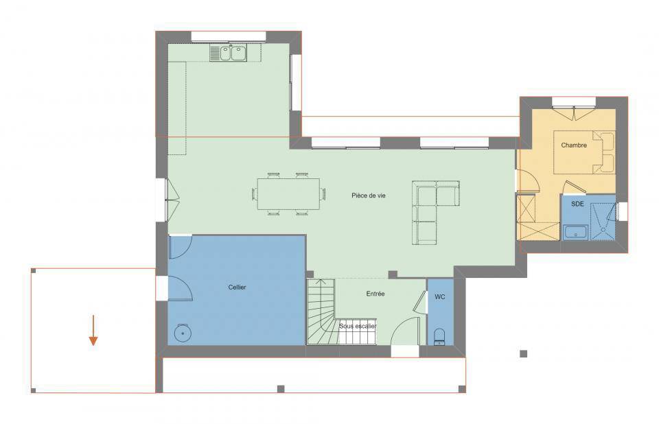
VENTE : maison de 5 pièces (140 m²) à Saint-Briac-sur-Mer
EMPLACEMENT PRIVILÉGIÉ - Situé en bordure d'une zone naturelle préservée, un cadre de vie paisible, idéal pour les amateurs de nature et de tranquillité. Ancien village de marins, Saint-Briac-sur-Mer séduit par son authenticité, son patrimoine riche et son environnement naturel exceptionnel. 
MAISON 5 PIÈCES NEUVE
À vendre : située à 4 km de la Manche et à 11 km de Saint-Malo, notre agence Maisons de l'Avenir Saint-Carné est heureuse de vous proposer cette maison de 5 pièces de 140 m² bénéficiant d'un emplacement privilégié dans Saint-Briac-sur-Mer (35800).
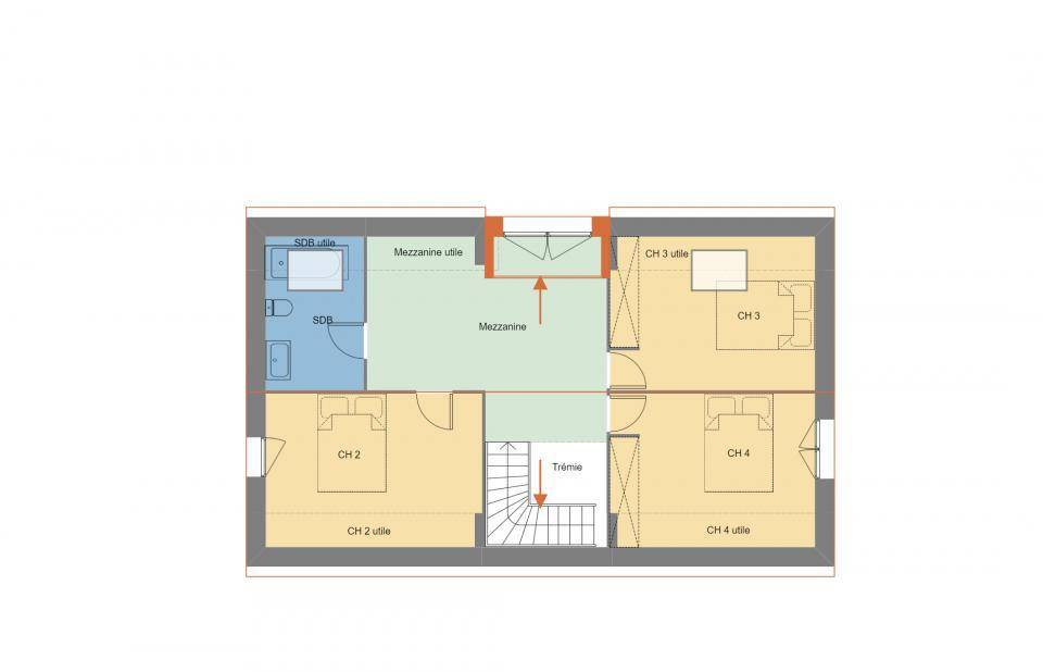
Cette maison comporte 2 niveaux. Son intérieur se divise en quatre chambres, une cuisine et deux salles de bains. La maison est neuve.
Le terrain de la propriété est de 495 m².
Cette maison se situe dans un quartier attractif. On y trouve l'École Primaire Publique les Cap Horniers et l'École Primaire Privée Ste Anne. Niveau transports en commun, on trouve la gare Saint-Malo à moins de 10 minutes en voiture. La nationale N176 est accessible à 12 km. Il y a une bibliothèque et un commerce à proximité de la maison.
Elle est proposée à l'achat pour 600 950 €.
Contactez notre agence (AMIRI Laetitia : (Numéro supprimé)) pour toute information sur la maison et sur les démarches à suivre.
Logement susceptibles de vous intéresser
Nous vous proposons de découvrir aussi cette sélection de logements situés à moins de 10km de Saint-Briac-sur-Mer et qui seraient susceptibles de vous intéresser.
 
  
 
 Le Minihic-sur-Rance
TERRAINÀ vendre, terrain à bâtir viabilisé de 351 m², idéalement situé dans la charmante commune du Minihic-sur-Rance. Vous profiterez d’un environnement paisible, à proximité de la Rance, des commerces, des écoles et des services. Ce terrain offre un cadre de vie privilégié, entre mer et campagne, parfait pour la réalisation de votre projet de construction. // Réf. : T210483. Prix terrain : 145 000 €, hors frais d'agence et de notaire à la charge de l'acquéreur. Ce terrain vous est proposé, par nos partenaires fonciers, dans le cadre d'un projet de construction avec nous. Les informations sur les risques auxquels ce bien est exposé sont disponibles sur le site Géorisques (www.georisques.gouv.fr).
 
  
 
 Le Minihic-sur-Rance
TERRAIN ET MAISONÀ vendre, terrain à bâtir viabilisé de 351 m², idéalement situé dans la charmante commune du Minihic-sur-Rance. Vous profiterez d’un environnement paisible, à proximité de la Rance, des commerces, des écoles et des services. Ce terrain offre un cadre de vie privilégié, entre mer et campagne, parfait pour la réalisation de votre projet de construction. Une maison pensée pour répondre à vos envies et s’adapter à votre mode de vie . Alliance parfaite entre modernité et confort, cette maison spacieuse et lumineuse offre un cadre de vie idéal. Un grand espace de vie convivial, une suite parentale au rez-de-chaussée, et deux chambres à l’étage pour préserver l’intimité de chacun. Des volumes optimisés et baignés de lumière, avec une belle ouverture sur l’extérieur pour profiter pleinement de votre jardin. Un garage et de nombreux rangements, pour un quotidien plus fluide et organisé. Pour un confort optimal et conforme à la RE2025, cette maison dispose d’une PAC avec plancher chauffant au rez-de-chaussée, radiateurs à l’étage et volets roulants électriques. À noter : Le prix indiqué exclut les revêtements de sol des chambres, la cuisine aménagée, la peinture, la décoration, les raccordements, les frais de notaire et l’assurance dommages-ouvrage. (Piscine non contractuelle, non comprise dans le prix). // Réf. : 1307-210483-ALT. Prix terrain : 145 000 €, hors frais d'agence à la charge de l'acquéreur. Ce terrain vous est proposé, par nos partenaires fonciers, dans le cadre d'un projet de construction avec nous. Les informations sur les risques auxquels ce bien est exposé sont disponibles sur le site Géorisques (www.georisques.gouv.fr). Prix maison : 317 943 €.
 
  
 
 Le Minihic-sur-Rance
TERRAIN ET MAISONÀ vendre, terrain à bâtir viabilisé de 351 m², idéalement situé dans la charmante commune du Minihic-sur-Rance. Vous profiterez d’un environnement paisible, à proximité de la Rance, des commerces, des écoles et des services. Ce terrain offre un cadre de vie privilégié, entre mer et campagne, parfait pour la réalisation de votre projet de construction. Une maison qui a tout pour plaire !. Laissez-vous séduire par cette maison à l’architecture élégante, où chaque espace est conçu pour répondre à vos envies de lumière, de confort et de modernité. Son espace de vie généreux, baigné de lumière naturelle grâce à de larges ouvertures, invite à la convivialité et au bien-être. L’étage réserve un univers cosy avec deux grandes chambres, un dressing spacieux et une salle d’eau moderne, créant un véritable cocon d’intimité. Pratique et fonctionnelle, cette maison dispose aussi d’un garage intégré et d’un cellier pour un quotidien simplifié. Un cadre de vie unique, où élégance et praticité se rencontrent. Contactez-nous pour en savoir plus !. Pour un confort optimal et conforme à la RE2025, cette maison dispose d’une PAC avec plancher chauffant au rez-de-chaussée, radiateurs à l’étage et volets roulants électriques. À noter : Le prix indiqué exclut les revêtements de sol des chambres, la cuisine aménagée, la peinture, la décoration, les raccordements, les frais de notaire et l’assurance dommages-ouvrage. (Piscine non contractuelle, non comprise dans le prix). // Réf. : 1718-210483-ALT. Prix terrain : 145 000 €, hors frais d'agence à la charge de l'acquéreur. Ce terrain vous est proposé, par nos partenaires fonciers, dans le cadre d'un projet de construction avec nous. Les informations sur les risques auxquels ce bien est exposé sont disponibles sur le site Géorisques (www.georisques.gouv.fr). Prix maison : 272 146 €.
 
  
 
 Le Minihic-sur-Rance
TERRAIN ET MAISONÀ vendre, terrain à bâtir viabilisé de 351 m², idéalement situé dans la charmante commune du Minihic-sur-Rance. Vous profiterez d’un environnement paisible, à proximité de la Rance, des commerces, des écoles et des services. Ce terrain offre un cadre de vie privilégié, entre mer et campagne, parfait pour la réalisation de votre projet de construction. Un cadre de vie pensé pour toute la famille. Confort, modernité et praticité se rencontrent dans cette maison à l’architecture affirmée. Ici, chaque espace est conçu pour s’adapter aux rythmes du quotidien : un vaste séjour baigné de lumière, une cuisine ouverte propice aux échanges et une belle harmonie entre pièces de vie et espaces privés. Avec 4 chambres, dont une suite parentale avec salle d’eau, cette maison offre à chacun son cocon tout en favorisant les moments de partage. Son aménagement astucieux, intégrant un garage et des rangements bien pensés, simplifie la vie et s’adapte à vos envies. Pour un confort optimal et conforme à la RE2025, cette maison dispose d’une PAC avec plancher chauffant au rez-de-chaussée, radiateurs à l’étage et volets roulants électriques. À noter : Le prix indiqué exclut les revêtements de sol des chambres, la cuisine aménagée, la peinture, la décoration, les raccordements, les frais de notaire et l’assurance dommages-ouvrage. // Réf. : 1309-210483-ALT. Prix terrain : 145 000 €, hors frais d'agence à la charge de l'acquéreur. Ce terrain vous est proposé, par nos partenaires fonciers, dans le cadre d'un projet de construction avec nous. Les informations sur les risques auxquels ce bien est exposé sont disponibles sur le site Géorisques (www.georisques.gouv.fr). Prix maison : 269 730 €.
 
  
 
 Le Minihic-sur-Rance
TERRAINÀ vendre, terrain à bâtir viabilisé de 351 m², idéalement situé dans la charmante commune du Minihic-sur-Rance. Vous profiterez d’un environnement paisible, à proximité de la Rance, des commerces, des écoles et des services. Ce terrain offre un cadre de vie privilégié, entre mer et campagne, parfait pour la réalisation de votre projet de construction. // Réf. : T210483. Prix terrain : 145 000 €, hors frais d'agence et de notaire à la charge de l'acquéreur. Ce terrain vous est proposé, par nos partenaires fonciers, dans le cadre d'un projet de construction avec nous. Les informations sur les risques auxquels ce bien est exposé sont disponibles sur le site Géorisques (www.georisques.gouv.fr).
 
  
 
 Saint-Cast-le-Guildo
TERRAINVENTE d’un terrain de 399 m² à Notre-Dame-du-GuildoÀ 12 km de la Manche à Notre-Dame-du-Guildo (22380), terrain de 399 m². Réalisez-y votre résidence principale ou secondaire. Il y a l’École Primaire Privée Saint Cast le Guildo à moins de 10 minutes à pied. Niveau transports, on trouve la gare Plancoët à moins de 10 minutes en voiture. On trouve un accès à la nationale N176 à 15 km. Il y a deux boulangeries et une épicerie à quelques minutes à peine.Son prix de vente est de 75 000 €. Contactez Quentin LEZOUR ((Numéro supprimé)) pour obtenir de plus amples informations sur le terrain. Maisons de l’Avenir Saint-Carné est là pour vous accompagner dans toutes vos démarches.
 
  
 
 Saint-Cast-le-Guildo
TERRAIN ET MAISONMaison de 3 pièces (86 m²) à vendre à Notre-Dame-du-GuildoMAISON 3 PIÈCES NEUVEÀ vendre à 12 km de la Manche, à Notre-Dame-du-Guildo (22380), venez découvrir cette maison de 3 pièces de plain-pied de 86 m².Son intérieur offre trois chambres, une cuisine et une salle de bains. Cette maison est neuve.Le terrain du bien s’étend sur 399 m².Il y a l’École Primaire Privée Saint Cast le Guildo à moins de 10 minutes à pied. Niveau transports, on trouve la gare Plancoët à moins de 10 minutes en voiture. La nationale N176 est accessible à 15 km. Il y a deux boulangeries et une épicerie dans les environs.Elle est à vendre pour la somme de 255 000 €.N’hésitez pas à prendre contact avec notre agence (LEZOUR Quentin : (Numéro supprimé)) pour toute question sur la maison ou sur les démarches à suivre. Maisons de l’Avenir Saint-Carné est là pour vous accompagner dans tous vos projets immobiliers.
 
  
 
 Saint-Cast-le-Guildo
TERRAIN ET MAISONNotre-Dame-du-Guildo : maison de 4 pièces (100 m²) en venteMAISON 4 PIÈCES NEUVEÀ vendre : localisée à 12 km de la Manche, nous vous présentons cette maison de 4 pièces de 100 m² à Notre-Dame-du-Guildo (22380).Cette maison compte 2 niveaux. Son intérieur inclut quatre chambres, une cuisine et deux salles de bains. La maison est neuve.Le terrain de la propriété est de 399 m².Il y a l’École Primaire Privée Saint Cast le Guildo à moins de 10 minutes à pied. Niveau transports, on trouve la gare Plancoët à moins de 10 minutes en voiture. La nationale N176 est accessible à 15 km. Il y a deux boulangeries et une épicerie dans les environs.Elle est à vendre pour la somme de 275 000 €.Contactez Quentin LEZOUR (tél : (Numéro supprimé)) pour tout renseignement sur la maison ou sur les modalités de vente.
 
  
 
 Saint-Cast-le-Guildo
TERRAIN ET MAISONMaison T3 (80 m²) à vendre à Notre-Dame-du-GuildoMAISON 3 PIÈCES NEUVEEn vente à 12 km de la Manche, nous vous proposons à Notre-Dame-du-Guildo (22380), cette maison de 3 pièces de 80 m² et de 399 m² de terrain. Son intérieur dispose de trois chambres, d’une cuisine et d’une salle de bains.Cette maison possède 2 niveaux. Elle est neuve.L’École Primaire Privée Saint Cast le Guildo est implantée à moins de 10 minutes à pied. Niveau transports en commun, on trouve la gare Plancoët à moins de 10 minutes en voiture. La nationale N176 est accessible à 15 km. Il y a deux boulangeries et une épicerie à proximité.Elle est à vendre pour la somme de 250 000 €.Contactez Quentin LEZOUR (tél : (Numéro supprimé)) pour plus d’informations sur la maison ou sur les démarches à suivre. Maisons de l’Avenir Saint-Carné vous accompagne dans tous vos projets immobiliers et dans toutes vos démarches.
L’actualité immobilière à Saint-Briac-sur-Mer
 27/11/2023
 
 27/11/2023
 
  02/11/2023
 
 02/11/2023
 
  30/10/2023
 
 30/10/2023
 
  20/10/2023
 
 20/10/2023
 
  16/10/2023
 
 16/10/2023
 
  16/10/2023
 
 16/10/2023
 
  
 
 
 
 
 
  
  
  
  
  
  
  
 