Maison à construire à Saint-Briac-sur-Mer (35800)
Images
Description
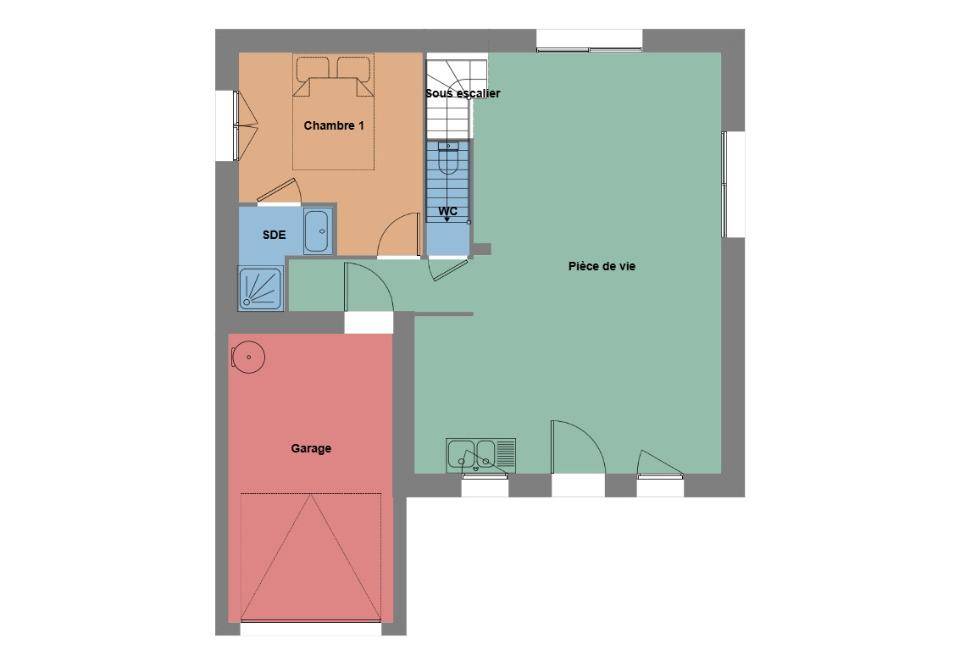
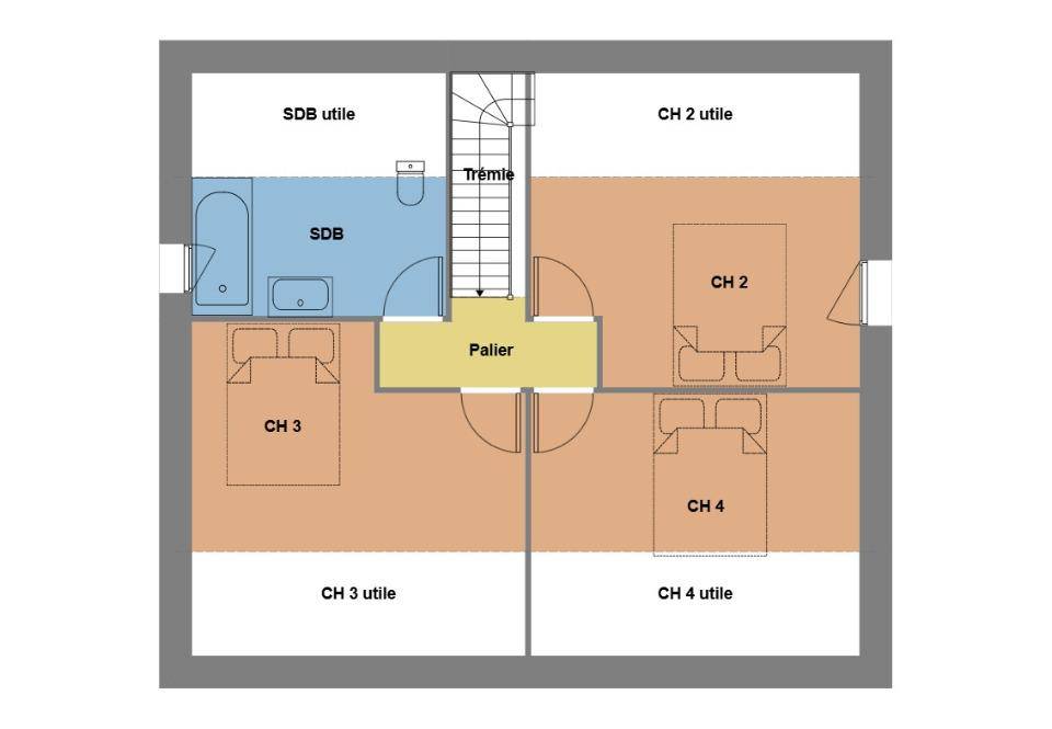
VENTE : maison T5 (102 m²) à Saint-Briac-sur-Mer
EMPLACEMENT PRIVILÉGIÉ - MAISON 5 PIÈCES NEUVE
À vendre à 4 km de la Manche et à quelques kilomètres de Saint-Malo, notre agence Maisons de l'Avenir Saint-Carné est heureuse de vous proposer cette maison de 5 pièces de 102 m² bénéficiant d'un emplacement privilégié dans Saint-Briac-sur-Mer (35800).
Cette maison compte 2 niveaux. Elle se divise en quatre chambres, une cuisine et deux salles de bains. La maison est neuve.
Le terrain du bien est de 343 m².
Cette maison se situe dans un secteur recherché. L'École Primaire Publique les Cap Horniers et l'École Primaire Privée Ste Anne y sont implantées. Niveau transports, il y a la gare Saint-Malo à moins de 10 minutes en voiture. La nationale N176 est accessible à 12 km. On trouve une bibliothèque et un commerce à quelques minutes du logement.
Son prix de vente est de 420 490 €.
Contactez notre agence (Laetitia AMIRI : (Numéro supprimé)) pour toute question sur la maison ou sur les modalités de vente. Faites de vos projets immobiliers une réalité avec Maisons de l'Avenir Saint-Carné.
Logement susceptibles de vous intéresser
Nous vous proposons de découvrir aussi cette sélection de logements situés à moins de 10km de Saint-Briac-sur-Mer et qui seraient susceptibles de vous intéresser.
Pleurtuit
TERRAINPleurtuit : terrain de 340 m² à vendreEMPLACEMENT PRIVILÉGIÉ – PROCHE DE SAINT-MALOTerrain de 340 m² à vendre à 3 km de la Manche et à quelques kilomètres de Saint-Malo. Ce terrain se situe bénéficiant d’un emplacement d’exception dans Pleurtuit (35730). Dans un quartier attractif, le terrain est proche des commerces et des écoles. Des écoles maternelles et élémentaires sont implantées à moins de 10 minutes à pied, tout comme une crèche. Côté transports, il y a la gare Saint-Malo à moins de 10 minutes en voiture. La nationale N176 est accessible à 6 km. On trouve une bibliothèque, un tennis, des commerces, un supermarché, trois boulangeries, une boucherie-charcuterie et un bureau de poste dans les environs.Ce terrain est proposé à l’achat pour 114 000 €. Contactez Laetitia AMIRI (tél : (Numéro supprimé)) pour tout renseignement sur le terrain. Maisons de l’Avenir Saint-Carné est là pour vous accompagner dans tous vos projets immobiliers.
Pleurtuit
TERRAIN ET MAISONVENTE : maison de 3 pièces (57 m²) à PleurtuitEMPLACEMENT PRIVILÉGIÉ – MAISON 3 PIÈCES NEUVEEn vente à 3 km de la Manche et à deux pas de Saint-Malo, laissez vous charmer par cette maison de 3 pièces de plain-pied de 57 m² bénéficiant d’un emplacement privilégié dans Pleurtuit (35730). Conçue de plain-pied, elle inclut deux chambres, une cuisine et une salle de bains.Le terrain du bien s’étend sur 340 m².Cette maison est neuve.Le bien se trouve dans un quartier recherché. Des établissements scolaires primaires sont implantés à moins de 10 minutes à pied, tout comme une crèche. Niveau transports, il y a la gare Saint-Malo à moins de 10 minutes en voiture. Il y a un accès à la nationale N176 à 6 km. On trouve une bibliothèque, un tennis, des commerces, un supermarché, trois boulangeries, un bureau de poste et une boucherie-charcuterie à quelques minutes de la maison.Il est proposé à l’achat pour 246 050 €.Contactez notre agence (Laetitia AMIRI : (Numéro supprimé)) pour tout renseignement sur la maison.
Pleurtuit
TERRAIN ET MAISONVENTE : maison de 4 pièces (63 m²) à PleurtuitEMPLACEMENT PRIVILÉGIÉ – MAISON 4 PIÈCES NEUVEÀ vendre à 3 km de la Manche et à deux pas de Saint-Malo, Maisons de l’Avenir Saint-Carné vous présente, bénéficiant d’un emplacement d’exception dans Pleurtuit (35730), cette maison de 4 pièces de 63 m². Son intérieur inclut trois chambres, une cuisine et une salle de bains.Le terrain de la maison s’étend sur 340 m².C’est une maison de 2 niveaux. Elle est neuve.Cette maison est située dans un quartier convoité. Des écoles primaires se trouvent à moins de 10 minutes à pied, tout comme une structure d’accueil pour les tout-petits. Niveau transports en commun, il y a la gare Saint-Malo à moins de 10 minutes en voiture. La nationale N176 est accessible à 6 km. On trouve une bibliothèque, un tennis, des commerces, un supermarché, trois boulangeries, un bureau de poste et une boucherie-charcuterie dans les environs.Elle est proposée à l’achat pour 265 500 €.Contactez Laetitia AMIRI (tél : (Numéro supprimé)) pour toute question sur la maison.
Pleurtuit
TERRAIN ET MAISONMaison F5 (89 m²) en vente à PleurtuitEMPLACEMENT PRIVILÉGIÉ – MAISON 5 PIÈCES NEUVEEn vente : localisée à 3 km de la Manche et à 9 km de Saint-Malo, venez découvrir, bénéficiant d’un emplacement d’exception dans Pleurtuit (35730), cette maison de 5 pièces de 89 m² et de 340 m² de terrain.C’est une maison de 2 niveaux. Son intérieur se divise en quatre chambres, une cuisine et deux salles de bains. Cette maison est neuve.La maison est située dans un secteur recherché. Des écoles primaires sont implantées à moins de 10 minutes à pied, tout comme une crèche. Niveau transports en commun, on trouve la gare Saint-Malo à moins de 10 minutes en voiture. Il y a un accès à la nationale N176 à 6 km. Il y a une bibliothèque, un tennis, des commerces, un supermarché, trois boulangeries, une boucherie-charcuterie et un bureau de poste à quelques minutes à peine.Elle est à vendre pour la somme de 290 650 €.Prenez contact avec Laetitia AMIRI (tél : (Numéro supprimé)) pour obtenir de plus amples informations sur la propriété ou sur les démarches à suivre. Maisons de l’Avenir Saint-Carné est là pour vous accompagner à toutes les étapes de votre projet.
Pleurtuit
TERRAIN ET MAISONVENTE : maison T5 (120 m²) à PleurtuitEMPLACEMENT PRIVILÉGIÉ – MAISON 5 PIÈCES NEUVEÀ 3 km de la Manche et à deux pas de Saint-Malo, en vente bénéficiant d’un emplacement privilégié dans Pleurtuit (35730), venez découvrir cette maison de 5 pièces de 120 m².Cette maison comporte 2 niveaux. Elle dispose de quatre chambres, d’une cuisine et de deux salles de bains. Cette maison est neuve.Le terrain de la propriété est de 340 m².La maison est située dans un quartier prisé. Il y a des écoles maternelles et élémentaires à moins de 10 minutes à pied et une crèche. Niveau transports en commun, on trouve la gare Saint-Malo à moins de 10 minutes en voiture. On trouve un accès à la nationale N176 à 6 km. Il y a une bibliothèque, un tennis, des commerces, un supermarché, trois boulangeries, une boucherie-charcuterie et un bureau de poste à proximité du bien.Elle est à vendre pour la somme de 362 450 €.Prenez contact avec Laetitia AMIRI (tél : (Numéro supprimé)) pour toute information sur la maison, sur les démarches à suivre ou sur les modalités de vente. Maisons de l’Avenir Saint-Carné vous accompagne à toutes les étapes de votre projet et dans tous vos projets immobiliers.
Pleurtuit
TERRAIN ET MAISONVENTE : maison T4 (95 m²) à PleurtuitEMPLACEMENT PRIVILÉGIÉ – MAISON 4 PIÈCES NEUVEÀ 3 km de la Manche et à deux pas de Saint-Malo, nous sommes heureux de vous proposer cette maison de 4 pièces de 95 m² et de 340 m² de terrain à vendre bénéficiant d’un emplacement d’exception dans Pleurtuit (35730). Elle offre trois chambres, une cuisine et deux salles de bains.Il s’agit d’une maison de 2 niveaux. Elle est neuve.Cette maison se situe dans un secteur prisé. Des écoles maternelles et élémentaires sont implantées à moins de 10 minutes à pied, tout comme une structure d’accueil pour la petite enfance. Côté transports, il y a la gare Saint-Malo à moins de 10 minutes en voiture. La nationale N176 est accessible à 6 km. On trouve une bibliothèque, un tennis, des commerces, un supermarché, trois boulangeries, un bureau de poste et une boucherie-charcuterie dans les environs.Son prix de vente est de 325 890 €.Contactez Laetitia AMIRI (tél : (Numéro supprimé)) pour toute question sur la maison ou sur les modalités de vente. Maisons de l’Avenir Saint-Carné vous accompagne dans toutes vos démarches et dans tous vos projets immobiliers.
Pleurtuit
TERRAIN ET MAISONPleurtuit : maison de 4 pièces (94 m²) à vendreEMPLACEMENT PRIVILÉGIÉ – MAISON BOIS QUALITATIVE, ECONOMIQUE ET DURABLE 4 PIÈCES NEUVEÀ 3 km de la Manche et à deux pas de Saint-Malo, nous vous proposons cette maison de 4 pièces de plain-pied de 94 m² et de 340 m² de terrain bénéficiant d’un emplacement privilégié dans Pleurtuit (35730). Son intérieur comporte trois chambres, une cuisine et deux salles de bains.Cette maison est neuve.La maison se trouve dans un secteur convoité. Il y a des écoles maternelles et élémentaires à moins de 10 minutes à pied et une crèche. Niveau transports, on trouve la gare Saint-Malo à moins de 10 minutes en voiture. Il y a un accès à la nationale N176 à 6 km. Il y a une bibliothèque, un tennis, des commerces, un supermarché, trois boulangeries, une boucherie-charcuterie et un bureau de poste dans les environs.Elle est proposée à l’achat pour 339 600 €.Contactez notre agence (AMIRI Laetitia : (Numéro supprimé)) pour plus de renseignements sur la propriété. Maisons de l’Avenir Saint-Carné vous accompagne à toutes les étapes de votre projet et dans tous vos projets immobiliers.
Pleurtuit
TERRAINVENTE d’un terrain de 424 m² à PleurtuitEMPLACEMENT PRIVILÉGIÉ – PROCHE DE SAINT-MALOÀ Pleurtuit (35730) à 3 km de la Manche et à deux pas de Saint-Malo, venez découvrir ce terrain de 424 m². Dans un quartier convoité, ce terrain bénéficiant d’un emplacement privilégié est proche des écoles et des commerces. Il y a des écoles primaires à moins de 10 minutes à pied et une structure d’accueil pour les tout-petits. Niveau transports en commun, on trouve la gare Saint-Malo à moins de 10 minutes en voiture. La nationale N176 est accessible à 6 km. Il y a une bibliothèque, un tennis, des commerces, un supermarché, trois boulangeries, un bureau de poste et une boucherie-charcuterie dans les environs.Il est proposé à l’achat pour 142 000 €. Contactez Laetitia AMIRI ((Numéro supprimé)) pour tout renseignement sur ce terrain. Faites de vos projets immobiliers une réalité avec Maisons de l’Avenir Saint-Carné.
Pleurtuit
TERRAIN ET MAISONVENTE d’une maison F3 (56 m²) à PleurtuitEMPLACEMENT PRIVILÉGIÉ – MAISON 3 PIÈCES NEUVEEn vente : à 3 km de la Manche et à quelques kilomètres de Saint-Malo, notre agence Maisons de l’Avenir Saint-Carné est heureuse de vous présenter, bénéficiant d’un emplacement privilégié dans Pleurtuit (35730), cette maison de 3 pièces de plain-pied de 56 m² et de 424 m² de terrain.Conçue de plain-pied, elle propose deux chambres, une cuisine et une salle de bains. Cette maison est neuve.Le bien est situé dans un quartier attractif. Des écoles maternelles et élémentaires se trouvent à moins de 10 minutes à pied, tout comme une structure d’accueil pour la petite enfance. Niveau transports, il y a la gare Saint-Malo à moins de 10 minutes en voiture. La nationale N176 est accessible à 6 km. On trouve une bibliothèque, un tennis, des commerces, un supermarché, trois boulangeries, un bureau de poste et une boucherie-charcuterie à proximité de la maison.Son prix de vente est de 278 000 €.Prenez contact avec notre agence (Laetitia AMIRI : (Numéro supprimé)) pour tout renseignement sur la maison, sur les démarches à suivre ou sur les modalités de vente.
L’actualité immobilière à Saint-Briac-sur-Mer
27/11/2023
02/11/2023
30/10/2023
20/10/2023
16/10/2023
16/10/2023