Maison à construire à Saint-Guinoux (35430)
Images
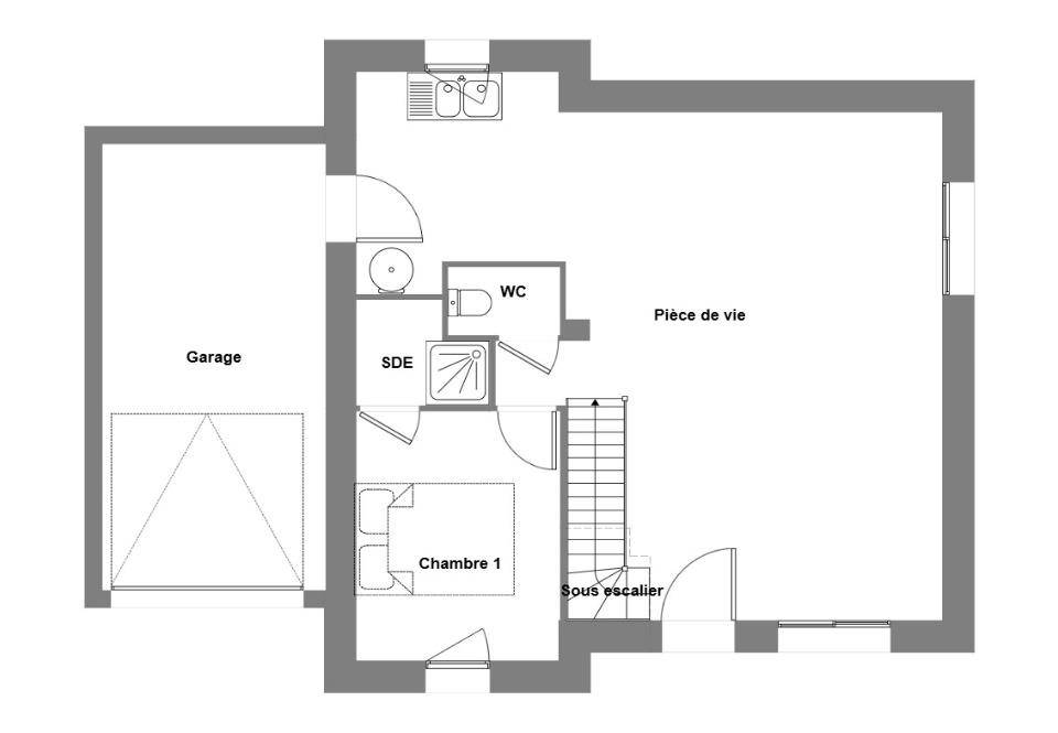
Description
VENTE : maison de 5 pièces (89 m²) à Saint-Guinoux
EMPLACEMENT PRIVILÉGIÉ - MAISON 5 PIÈCES NEUVE
En vente : située à 7 km de la Manche et à deux pas de Saint-Malo, venez découvrir, bénéficiant d'un emplacement d'exception dans Saint-Guinoux (35430), cette maison de 5 pièces de 89 m² et de 265 m² de terrain.
Cette maison comporte 2 niveaux. Elle dispose de quatre chambres, d'une cuisine et de deux salles de bains. La maison est neuve.
Cette maison est située dans un quartier convoité. L'École Primaire Publique les Cèdres est implantée à moins de 10 minutes à pied. Niveau transports en commun, il y a quatre gares à moins de 10 minutes en voiture. La nationale N176 est accessible à 4 km. On trouve une bibliothèque et une boulangerie à quelques minutes à peine.
Son prix de vente est de 232 300 €.
Prenez contact avec Laetitia AMIRI (tél : (Numéro supprimé)) pour plus de renseignements sur la maison, sur les modalités de vente ou sur les démarches à suivre. Concrétisez vos projets immobiliers avec Maisons de l'Avenir Saint-Carné.
Logement susceptibles de vous intéresser
Nous vous proposons de découvrir aussi cette sélection de logements situés à moins de 10km de Saint-Guinoux et qui seraient susceptibles de vous intéresser.
Le Minihic-sur-Rance
TERRAINÀ vendre, terrain à bâtir viabilisé de 351 m², idéalement situé dans la charmante commune du Minihic-sur-Rance. Vous profiterez d’un environnement paisible, à proximité de la Rance, des commerces, des écoles et des services. Ce terrain offre un cadre de vie privilégié, entre mer et campagne, parfait pour la réalisation de votre projet de construction. // Réf. : T210483. Prix terrain : 145 000 €, hors frais d'agence et de notaire à la charge de l'acquéreur. Ce terrain vous est proposé, par nos partenaires fonciers, dans le cadre d'un projet de construction avec nous. Les informations sur les risques auxquels ce bien est exposé sont disponibles sur le site Géorisques (www.georisques.gouv.fr).
Le Minihic-sur-Rance
TERRAIN ET MAISONÀ vendre, terrain à bâtir viabilisé de 351 m², idéalement situé dans la charmante commune du Minihic-sur-Rance. Vous profiterez d’un environnement paisible, à proximité de la Rance, des commerces, des écoles et des services. Ce terrain offre un cadre de vie privilégié, entre mer et campagne, parfait pour la réalisation de votre projet de construction. Une maison pensée pour répondre à vos envies et s’adapter à votre mode de vie . Alliance parfaite entre modernité et confort, cette maison spacieuse et lumineuse offre un cadre de vie idéal. Un grand espace de vie convivial, une suite parentale au rez-de-chaussée, et deux chambres à l’étage pour préserver l’intimité de chacun. Des volumes optimisés et baignés de lumière, avec une belle ouverture sur l’extérieur pour profiter pleinement de votre jardin. Un garage et de nombreux rangements, pour un quotidien plus fluide et organisé. Pour un confort optimal et conforme à la RE2025, cette maison dispose d’une PAC avec plancher chauffant au rez-de-chaussée, radiateurs à l’étage et volets roulants électriques. À noter : Le prix indiqué exclut les revêtements de sol des chambres, la cuisine aménagée, la peinture, la décoration, les raccordements, les frais de notaire et l’assurance dommages-ouvrage. (Piscine non contractuelle, non comprise dans le prix). // Réf. : 1307-210483-ALT. Prix terrain : 145 000 €, hors frais d'agence à la charge de l'acquéreur. Ce terrain vous est proposé, par nos partenaires fonciers, dans le cadre d'un projet de construction avec nous. Les informations sur les risques auxquels ce bien est exposé sont disponibles sur le site Géorisques (www.georisques.gouv.fr). Prix maison : 317 943 €.
Le Minihic-sur-Rance
TERRAIN ET MAISONÀ vendre, terrain à bâtir viabilisé de 351 m², idéalement situé dans la charmante commune du Minihic-sur-Rance. Vous profiterez d’un environnement paisible, à proximité de la Rance, des commerces, des écoles et des services. Ce terrain offre un cadre de vie privilégié, entre mer et campagne, parfait pour la réalisation de votre projet de construction. Une maison qui a tout pour plaire !. Laissez-vous séduire par cette maison à l’architecture élégante, où chaque espace est conçu pour répondre à vos envies de lumière, de confort et de modernité. Son espace de vie généreux, baigné de lumière naturelle grâce à de larges ouvertures, invite à la convivialité et au bien-être. L’étage réserve un univers cosy avec deux grandes chambres, un dressing spacieux et une salle d’eau moderne, créant un véritable cocon d’intimité. Pratique et fonctionnelle, cette maison dispose aussi d’un garage intégré et d’un cellier pour un quotidien simplifié. Un cadre de vie unique, où élégance et praticité se rencontrent. Contactez-nous pour en savoir plus !. Pour un confort optimal et conforme à la RE2025, cette maison dispose d’une PAC avec plancher chauffant au rez-de-chaussée, radiateurs à l’étage et volets roulants électriques. À noter : Le prix indiqué exclut les revêtements de sol des chambres, la cuisine aménagée, la peinture, la décoration, les raccordements, les frais de notaire et l’assurance dommages-ouvrage. (Piscine non contractuelle, non comprise dans le prix). // Réf. : 1718-210483-ALT. Prix terrain : 145 000 €, hors frais d'agence à la charge de l'acquéreur. Ce terrain vous est proposé, par nos partenaires fonciers, dans le cadre d'un projet de construction avec nous. Les informations sur les risques auxquels ce bien est exposé sont disponibles sur le site Géorisques (www.georisques.gouv.fr). Prix maison : 272 146 €.
Le Minihic-sur-Rance
TERRAIN ET MAISONÀ vendre, terrain à bâtir viabilisé de 351 m², idéalement situé dans la charmante commune du Minihic-sur-Rance. Vous profiterez d’un environnement paisible, à proximité de la Rance, des commerces, des écoles et des services. Ce terrain offre un cadre de vie privilégié, entre mer et campagne, parfait pour la réalisation de votre projet de construction. Un cadre de vie pensé pour toute la famille. Confort, modernité et praticité se rencontrent dans cette maison à l’architecture affirmée. Ici, chaque espace est conçu pour s’adapter aux rythmes du quotidien : un vaste séjour baigné de lumière, une cuisine ouverte propice aux échanges et une belle harmonie entre pièces de vie et espaces privés. Avec 4 chambres, dont une suite parentale avec salle d’eau, cette maison offre à chacun son cocon tout en favorisant les moments de partage. Son aménagement astucieux, intégrant un garage et des rangements bien pensés, simplifie la vie et s’adapte à vos envies. Pour un confort optimal et conforme à la RE2025, cette maison dispose d’une PAC avec plancher chauffant au rez-de-chaussée, radiateurs à l’étage et volets roulants électriques. À noter : Le prix indiqué exclut les revêtements de sol des chambres, la cuisine aménagée, la peinture, la décoration, les raccordements, les frais de notaire et l’assurance dommages-ouvrage. // Réf. : 1309-210483-ALT. Prix terrain : 145 000 €, hors frais d'agence à la charge de l'acquéreur. Ce terrain vous est proposé, par nos partenaires fonciers, dans le cadre d'un projet de construction avec nous. Les informations sur les risques auxquels ce bien est exposé sont disponibles sur le site Géorisques (www.georisques.gouv.fr). Prix maison : 269 730 €.
Le Minihic-sur-Rance
TERRAINÀ vendre, terrain à bâtir viabilisé de 351 m², idéalement situé dans la charmante commune du Minihic-sur-Rance. Vous profiterez d’un environnement paisible, à proximité de la Rance, des commerces, des écoles et des services. Ce terrain offre un cadre de vie privilégié, entre mer et campagne, parfait pour la réalisation de votre projet de construction. // Réf. : T210483. Prix terrain : 145 000 €, hors frais d'agence et de notaire à la charge de l'acquéreur. Ce terrain vous est proposé, par nos partenaires fonciers, dans le cadre d'un projet de construction avec nous. Les informations sur les risques auxquels ce bien est exposé sont disponibles sur le site Géorisques (www.georisques.gouv.fr).
Châteauneuf-d'Ille-et-Vilaine
TERRAINChâteauneuf-d’Ille-et-Vilaine : terrain de 1 070 m² à vendreEMPLACEMENT PRIVILÉGIÉ – PROCHE DE SAINT-MALOGrand terrain à 7 km de la Manche et à deux pas de Saint-Malo. De 1 070 m², ce terrain se situe bénéficiant d’un emplacement privilégié dans Châteauneuf-d’Ille-et-Vilaine (35430). Dans un secteur prisé, le terrain est proche des commerces et des écoles. Des établissements scolaires (de la maternelle au lycée) sont implantés à moins de 10 minutes à pied. Côté transports, il y a la gare Dol-de-Bretagne à proximité. La nationale N176 est accessible à 1 km. On trouve un bassin de natation, des commerces, des boulangeries, un supermarché, deux épiceries et un bureau de poste dans les environs. Le marché Centre-Ville a lieu chaque samedi matin.Ce terrain est proposé à l’achat pour 150 000 €. N’hésitez pas à prendre contact avec Laetitia AMIRI ((Numéro supprimé)) pour tout renseignement sur le terrain.
Châteauneuf-d'Ille-et-Vilaine
TERRAIN ET MAISONChâteauneuf-d’Ille-et-Vilaine : maison de 5 pièces (102 m²) à vendreEMPLACEMENT PRIVILÉGIÉ – MAISON 5 PIÈCES NEUVEÀ vendre à 7 km de la Manche et à quelques kilomètres de Saint-Malo, nous vous proposons cette maison de 5 pièces de 102 m² bénéficiant d’un emplacement privilégié dans Châteauneuf-d’Ille-et-Vilaine (35430). Son intérieur offre quatre chambres, une cuisine et deux salles de bains.Le terrain de la propriété s’étend sur 1 070 m².C’est une maison de 2 niveaux. Elle est neuve.Cette maison se trouve dans un quartier attractif. Il y a des écoles de tous niveaux (de la maternelle au lycée) à moins de 10 minutes à pied. Niveau transports en commun, on trouve la gare Dol-de-Bretagne à quelques pas de la maison. Il y a un accès à la nationale N176 à 1 km. Il y a un bassin de natation, des commerces, des boulangeries, un supermarché, trois boucheries-charcuteries et deux épiceries dans les environs. Le marché Centre-Ville a lieu chaque samedi matin.Son prix de vente est de 331 500 €.Contactez Laetitia AMIRI ((Numéro supprimé)) pour obtenir de plus amples renseignements sur la maison, sur les modalités de vente ou sur les démarches à suivre.
Châteauneuf-d'Ille-et-Vilaine
TERRAIN ET MAISONVENTE d’une maison de 6 pièces (118 m²) à Châteauneuf-d’Ille-et-VilaineEMPLACEMENT PRIVILÉGIÉ – MAISON 6 PIÈCES NEUVEÀ vendre : située à 7 km de la Manche et à 10 km de Saint-Malo, bénéficiant d’un emplacement d’exception dans Châteauneuf-d’Ille-et-Vilaine (35430), laissez vous charmer par cette maison de 6 pièces de 118 m². Elle comporte cinq chambres, une cuisine et deux salles de bains.Le terrain du bien est de 1 070 m².C’est une maison de 2 niveaux. Elle est neuve.La maison se situe dans un secteur attractif. Des établissements scolaires (de la maternelle au lycée) sont implantés à moins de 10 minutes à pied. Niveau transports en commun, il y a la gare Dol-de-Bretagne dans les alentours. Il y a un accès à la nationale N176 à 1 km. On trouve un bassin de natation, des commerces, des boulangeries, un supermarché, trois boucheries-charcuteries et un bureau de poste à proximité du logement. Le marché Centre-Ville a lieu tous les samedis matin.Elle est à vendre pour la somme de 348 350 €.Contactez Laetitia AMIRI (tél : (Numéro supprimé)) pour plus de renseignements sur la maison, sur les démarches à suivre ou sur les modalités de vente. Maisons de l’Avenir Saint-Carné vous accompagne à toutes les étapes de l’achat et dans tous vos projets immobiliers.
Châteauneuf-d'Ille-et-Vilaine
TERRAIN ET MAISONVENTE : maison de 5 pièces (120 m²) à Châteauneuf-d’Ille-et-VilaineEMPLACEMENT PRIVILÉGIÉ – MAISON 5 PIÈCES NEUVEÀ vendre : à 7 km de la Manche et à 10 km de Saint-Malo, bénéficiant d’un emplacement privilégié dans Châteauneuf-d’Ille-et-Vilaine (35430), nous sommes heureux de vous présenter cette maison de 5 pièces de 120 m².C’est une maison de 2 niveaux. Elle compte quatre chambres, une cuisine et deux salles de bains. La maison est neuve.Le terrain du bien est de 1 070 m².La maison se trouve dans un secteur prisé. Il y a des établissements scolaires de tous types (de la maternelle au lycée) à moins de 10 minutes à pied. Niveau transports, on trouve la gare Dol-de-Bretagne dans un rayon de 1 km. On trouve un accès à la nationale N176 à 1 km. Il y a un bassin de natation, des commerces, des boulangeries, un supermarché, trois boucheries-charcuteries et une poissonnerie à proximité du logement. Ne manquez pas le marché Centre-Ville chaque samedi matin.Elle est à vendre pour la somme de 398 550 €.Prenez contact avec Laetitia AMIRI ((Numéro supprimé)) pour toute question sur la maison.
L’actualité immobilière à Saint-Guinoux
27/11/2023
02/11/2023
30/10/2023
20/10/2023
16/10/2023
16/10/2023