Maison à construire à Saint-Guinoux (35430)
Images
Description
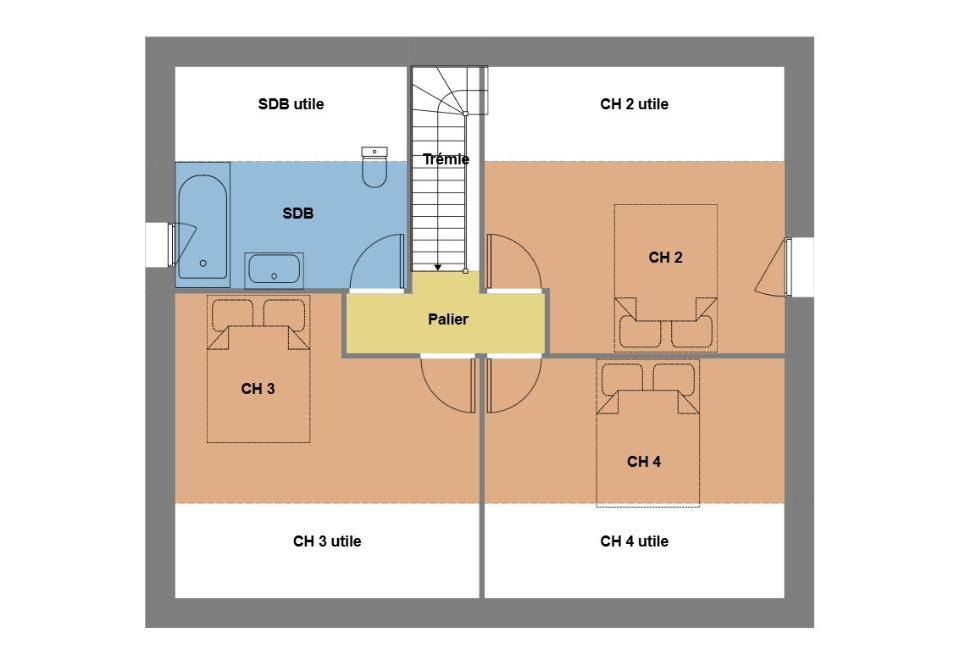
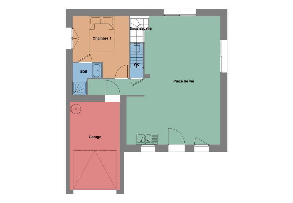
VENTE : maison T5 (102 m²) à Saint-Guinoux
EMPLACEMENT PRIVILÉGIÉ - Cette maison se trouve en second rideau lui donnant une belle exposition sans vis a vis et très au calme a deux pas des commodités du bourg.
MAISON 5 PIÈCES NEUVE
À vendre : localisée à 7 km de la Manche et à deux pas de Saint-Malo, votre agence Maisons de l'Avenir Saint-Carné est heureuse de vous proposer cette maison de 5 pièces de 102 m² bénéficiant d'un emplacement privilégié dans Saint-Guinoux (35430). Son intérieur inclut quatre chambres, une cuisine et deux salles de bains.
Le terrain de cette maison est de 360 m².
Cette maison comporte 2 niveaux. Elle est neuve.
La maison se trouve dans un secteur attractif. Il y a l'École Primaire Publique les Cèdres à moins de 10 minutes à pied. Côté transports, on trouve quatre gares à moins de 10 minutes en voiture. La nationale N176 est accessible à 4 km. Il y a une bibliothèque et une boulangerie à quelques minutes de la maison.
Elle est proposée à l'achat pour 264 900 €.
N'hésitez pas à prendre contact avec Laetitia AMIRI ((Numéro supprimé)) pour plus de renseignements sur la maison ou sur les modalités de vente. Concrétisez vos projets immobiliers avec Maisons de l'Avenir Saint-Carné.
Logement susceptibles de vous intéresser
Nous vous proposons de découvrir aussi cette sélection de logements situés à moins de 10km de Saint-Guinoux et qui seraient susceptibles de vous intéresser.
Saint-Guinoux
TERRAINTerrain de 360 m² en vente à Saint-GuinouxEMPLACEMENT PRIVILÉGIÉ – PROCHE DE SAINT-MALOCe terrain se trouve en second rideau lui donnant une belle exposition sans vis a vis et très au calme a deux pas des commodités du bourg.En vente à 7 km de la Manche et à deux pas de Saint-Malo à Saint-Guinoux (35430), terrain de 360 m². Il est prêt à accueillir votre projet immobilier pour toute la famille. Dans un quartier attractif, le terrain bénéficiant d’un emplacement privilégié est proche des commerces et des écoles. L’École Primaire Publique les Cèdres est implantée à moins de 10 minutes à pied. Côté transports en commun, il y a quatre gares à moins de 10 minutes en voiture. La nationale N176 est accessible à 4 km. On trouve une bibliothèque et une boulangerie à quelques minutes à peine.Ce terrain est à vendre pour la somme de 79 900 €. Contactez Laetitia AMIRI (tél : (Numéro supprimé)) pour tout renseignement sur le terrain.
Saint-Guinoux
TERRAIN ET MAISONSaint-Guinoux : maison de 5 pièces (113 m²) à vendreEMPLACEMENT PRIVILÉGIÉ – Cette maison se trouve en second rideau lui donnant une belle exposition sans vis a vis et très au calme a deux pas des commodités du bourg.MAISON BOIS QUALITATIVE, ECONOMIQUE ET DURABLE 5 PIÈCES NEUVEÀ 7 km de la Manche et à 10 km de Saint-Malo, Maisons de l’Avenir Saint-Carné vous propose cette maison de 5 pièces de plain-pied de 113 m² bénéficiant d’un emplacement d’exception dans Saint-Guinoux (35430). Elle comporte quatre chambres, une cuisine et deux salles de bains.Le terrain du bien s’étend sur 360 m².La maison est neuve.Cette maison est située dans un secteur prisé. Il y a l’École Primaire Publique les Cèdres à moins de 10 minutes à pied. Niveau transports en commun, on trouve quatre gares à moins de 10 minutes en voiture. Il y a un accès à la nationale N176 à 4 km. Il y a une bibliothèque et une boulangerie dans les environs.Elle est proposée à l’achat pour 351 100 €.N’hésitez pas à prendre contact avec Laetitia AMIRI (tél : (Numéro supprimé)) pour plus de renseignements sur la maison, sur les modalités de vente ou sur les démarches à suivre.
Saint-Guinoux
TERRAIN ET MAISONSaint-Guinoux : maison F4 (120 m²) en venteEMPLACEMENT PRIVILÉGIÉ – Cette maison se trouve en second rideau lui donnant une belle exposition sans vis a vis et très au calme a deux pas des commodités du bourg.MAISON 4 PIÈCES NEUVEÀ vendre : située à 7 km de la Manche et à deux pas de Saint-Malo, Maisons de l’Avenir Saint-Carné vous propose, bénéficiant d’un emplacement privilégié dans Saint-Guinoux (35430), cette maison de 4 pièces de 120 m².Cette maison possède 2 niveaux. Elle se divise en trois chambres, une cuisine et deux salles de bains. Cette maison est neuve.Le terrain de la propriété s’étend sur 360 m².Cette propriété se trouve dans un quartier attractif. Il y a l’École Primaire Publique les Cèdres à moins de 10 minutes à pied. Côté transports en commun, on trouve quatre gares à moins de 10 minutes en voiture. On trouve un accès à la nationale N176 à 4 km. Il y a une bibliothèque et une boulangerie à quelques minutes du logement.Elle est proposée à l’achat pour 374 400 €.N’hésitez pas à prendre contact avec Laetitia AMIRI ((Numéro supprimé)) pour toute question sur la maison ou sur les démarches à suivre.
Saint-Guinoux
TERRAIN ET MAISONVENTE d’une maison F3 (85 m²) à Saint-GuinouxEMPLACEMENT PRIVILÉGIÉ – Cette maison se trouve en second rideau lui donnant une belle exposition sans vis a vis et très au calme a deux pas des commodités du bourg.MAISON 3 PIÈCES NEUVEEn vente : localisée à 7 km de la Manche et à quelques kilomètres de Saint-Malo, bénéficiant d’un emplacement privilégié dans Saint-Guinoux (35430), ayez le coup de coeur pour cette maison de 3 pièces de plain-pied de 85 m². Son intérieur comporte deux chambres, une cuisine et une salle de bains.Le terrain de la propriété est de 360 m².La maison est neuve.Cette maison est située dans un secteur attractif. L’École Primaire Publique les Cèdres est implantée à moins de 10 minutes à pied. Côté transports en commun, on trouve quatre gares à moins de 10 minutes en voiture. La nationale N176 est accessible à 4 km. Il y a une bibliothèque et une boulangerie à quelques minutes à peine.Elle est à vendre pour la somme de 258 400 €.N’hésitez pas à prendre contact avec notre agence (Laetitia AMIRI : (Numéro supprimé)) pour toute information sur la maison.
Saint-Guinoux
TERRAIN ET MAISONVENTE : maison de 3 pièces (86 m²) à Saint-GuinouxEMPLACEMENT PRIVILÉGIÉ – Cette maison se trouve en second rideau lui donnant une belle exposition sans vis a vis et très au calme a deux pas des commodités du bourg.MAISON 3 PIÈCES NEUVEÀ vendre : à 7 km de la Manche et à 10 km de Saint-Malo, bénéficiant d’un emplacement privilégié dans Saint-Guinoux (35430), nous sommes ravis de vous proposer cette maison de 3 pièces de plain-pied de 86 m² et de 360 m² de terrain.Conçue de plain-pied, elle comporte trois chambres, une cuisine et une salle de bains. La maison est neuve.La maison se situe dans un quartier attractif. Il y a l’École Primaire Publique les Cèdres à moins de 10 minutes à pied. Côté transports en commun, on trouve quatre gares à moins de 10 minutes en voiture. On trouve un accès à la nationale N176 à 4 km. Il y a une bibliothèque et une boulangerie dans les environs.Elle est proposée à l’achat pour 275 200 €.Contactez notre agence (AMIRI Laetitia : (Numéro supprimé)) pour plus d’informations sur la maison, sur les modalités de vente ou sur les démarches à suivre. Maisons de l’Avenir Saint-Carné est là pour vous accompagner à toutes les étapes de l’achat.
Saint-Guinoux
TERRAIN ET MAISONVENTE : maison T5 (102 m²) à Saint-GuinouxEMPLACEMENT PRIVILÉGIÉ – Cette maison se trouve en second rideau lui donnant une belle exposition sans vis a vis et très au calme a deux pas des commodités du bourg.MAISON 5 PIÈCES NEUVEÀ vendre : localisée à 7 km de la Manche et à deux pas de Saint-Malo, votre agence Maisons de l’Avenir Saint-Carné est heureuse de vous proposer cette maison de 5 pièces de 102 m² bénéficiant d’un emplacement privilégié dans Saint-Guinoux (35430). Son intérieur inclut quatre chambres, une cuisine et deux salles de bains.Le terrain de cette maison est de 360 m².Cette maison comporte 2 niveaux. Elle est neuve.La maison se trouve dans un secteur attractif. Il y a l’École Primaire Publique les Cèdres à moins de 10 minutes à pied. Côté transports, on trouve quatre gares à moins de 10 minutes en voiture. La nationale N176 est accessible à 4 km. Il y a une bibliothèque et une boulangerie à quelques minutes de la maison.Elle est proposée à l’achat pour 264 900 €.N’hésitez pas à prendre contact avec Laetitia AMIRI ((Numéro supprimé)) pour plus de renseignements sur la maison ou sur les modalités de vente. Concrétisez vos projets immobiliers avec Maisons de l’Avenir Saint-Carné.
Saint-Guinoux
TERRAIN ET MAISONVENTE d’une maison de 4 pièces (88 m²) à Saint-GuinouxEMPLACEMENT PRIVILÉGIÉ – Cette maison se trouve en second rideau lui donnant une belle exposition sans vis a vis et très au calme a deux pas des commodités du bourg.MAISON 4 PIÈCES NEUVEEn vente à 7 km de la Manche et à quelques kilomètres de Saint-Malo, votre agence Maisons de l’Avenir Saint-Carné est heureuse de vous présenter, bénéficiant d’un emplacement d’exception dans Saint-Guinoux (35430), cette maison de 4 pièces de 88 m².Il s’agit d’une maison de 2 niveaux. Son intérieur dispose de trois chambres, d’une cuisine et d’une salle de bains. La maison est neuve.Le terrain du bien est de 360 m².Cette propriété se trouve dans un secteur attractif. L’École Primaire Publique les Cèdres est implantée à moins de 10 minutes à pied. Niveau transports, il y a quatre gares à moins de 10 minutes en voiture. La nationale N176 est accessible à 4 km. On trouve une bibliothèque et une boulangerie dans les environs.Elle est proposée à l’achat pour 231 900 €.N’hésitez pas à prendre contact avec Laetitia AMIRI ((Numéro supprimé)) pour tout renseignement sur la maison, sur les démarches à suivre et sur les modalités de vente. Maisons de l’Avenir Saint-Carné vous accompagne dans tous vos projets immobiliers et dans toutes vos démarches.
La Fresnais
TERRAINLa Fresnais : terrain de 345 m² en ventePROCHE DE SAINT-MALOA La Fresnais (35111), Concrétisez votre projet sur ce terrain de 345 m². Son prix de vente est de 63 000 €. Contactez notre agence (RENVAZE Cyril : (Numéro supprimé)) pour toute information sur le terrain ou sur les démarches à suivre.
La Fresnais
TERRAIN ET MAISONVENTE d’une maison F4 (70 m²) à La FresnaisPROCHE DE SAINT-MALO – MAISON 4 PIÈCES NEUVEEn vente : à côté de la gare, laissez vous charmer par cette maison de 4 pièces de 70 m² à La Fresnais (35111). Son intérieur inclut trois chambres, une cuisine et une salle de bains.Le terrain de la maison s’étend sur 345 m².Elle est proposée à l’achat pour 225 000 €.Contactez notre agence (RENVAZE Cyril : (Numéro supprimé)) pour obtenir de plus amples informations sur cette maison ou sur les démarches à suivre. Maisons de l’Avenir Cesson-Sévigné est là pour vous accompagner à toutes les étapes de votre projet.
L’actualité immobilière à Saint-Guinoux
27/11/2023
02/11/2023
30/10/2023
20/10/2023
16/10/2023
16/10/2023