Maison à construire à Saint-Malo (35400)
Images
Description
VENTE : maison de 6 pièces (119 m²) à Saint-Malo
EMPLACEMENT PRIVILÉGIÉ - MAISON 6 PIÈCES NEUVE
À vendre : localisée à 4 km de la Manche, nous sommes ravis de vous présenter, bénéficiant d'un emplacement privilégié dans Saint-Malo (35400), cette maison de 6 pièces de 119 m².
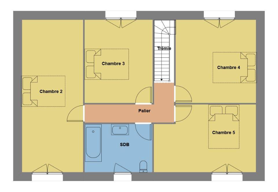
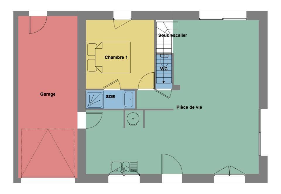
Cette maison compte 2 niveaux. Son intérieur propose cinq chambres, une cuisine et deux salles de bains. Cette maison est neuve.
Le terrain de la propriété s'étend sur 238 m².
La maison est située dans un secteur recherché. Tous les types d'établissements scolaires y sont implantés. Niveau transports, il y a deux gares (Saint-Malo et La Gouesnière-Cancale-Saint-Méloir-des-Ondes) à moins de 10 minutes en voiture. Il y a un accès à la nationale N176 à 11 km. On trouve une bibliothèque, des commerces, deux boulangeries, un bureau de poste et une épicerie à proximité.
Son prix de vente est de 450 000 €.
Prenez contact avec Dimitri MESAS ((Numéro supprimé)) pour obtenir de plus amples informations sur la maison ou sur les démarches à suivre.
Logement susceptibles de vous intéresser
Nous vous proposons de découvrir aussi cette sélection de logements situés à moins de 10km de Saint-Malo et qui seraient susceptibles de vous intéresser.
Le Minihic-sur-Rance
TERRAINVENTE : terrain de 291 m² au Minihic-sur-RanceEMPLACEMENT PRIVILÉGIÉ – PROCHE DE SAINT-MALOSitué rive gauche des bords de Rance, entre Dinan et Pleurtruit, ce village est une véritable terre maritime. D’ici, vous pouvez vous aventurer sur les sentiers côtiers, admirer les panoramas maritimes.En vente à 4 km de la Manche et à 8 km de Saint-Malo au Minihic-sur-Rance (35870), terrain de 291 m². Réalisez-y la maison de vos rêves. Dans un quartier attractif, le terrain bénéficiant d’un emplacement privilégié est proche des commerces et des écoles. L’École Primaire Publique du Minihic Sur Rance est implantée à moins de 10 minutes à pied. Niveau transports en commun, il y a cinq gares à moins de 10 minutes en voiture. La nationale N176 est accessible à 5 km. On trouve une bibliothèque, un commerce, une épicerie et un bureau de poste dans les environs.Son prix de vente est de 104 000 €. Contactez Laetitia AMIRI (tél : (Numéro supprimé)) pour plus de renseignements sur le terrain, sur les modalités de vente ou sur les démarches à suivre.
Le Minihic-sur-Rance
TERRAIN ET MAISONLe Minihic-sur-Rance : maison de 3 pièces (57 m²) en venteEMPLACEMENT PRIVILÉGIÉ – Situé rive gauche des bords de Rance, entre Dinan et Pleurtruit, ce village est une véritable terre maritime. D’ici, vous pouvez vous aventurer sur les sentiers côtiers, admirer les panoramas maritimes.MAISON 3 PIÈCES NEUVEÀ 4 km de la Manche et à 8 km de Saint-Malo, nous sommes heureux de vous proposer en vente, bénéficiant d’un emplacement privilégié dans Le Minihic-sur-Rance (35870), cette maison de 3 pièces de plain-pied de 57 m² et de 291 m² de terrain. Son intérieur offre deux chambres, une cuisine et une salle de bains.La maison est neuve.Cette maison se trouve dans un secteur prisé. Il y a l’École Primaire Publique du Minihic Sur Rance à moins de 10 minutes à pied. Niveau transports en commun, on trouve cinq gares à moins de 10 minutes en voiture. Il y a un accès à la nationale N176 à 5 km. Il y a une bibliothèque, un commerce, une épicerie et un bureau de poste dans les environs.Elle est proposée à l’achat pour 236 200 €.Prenez contact avec Laetitia AMIRI (tél : (Numéro supprimé)) pour tout renseignement sur la maison ou sur les démarches à suivre. Maisons de l’Avenir Saint-Carné vous accompagne à toutes les étapes de votre projet et dans tous vos projets immobiliers.
Le Minihic-sur-Rance
TERRAIN ET MAISONVENTE : maison F4 (63 m²) au Minihic-sur-RanceEMPLACEMENT PRIVILÉGIÉ – Situé rive gauche des bords de Rance, entre Dinan et Pleurtruit, ce village est une véritable terre maritime. D’ici, vous pouvez vous aventurer sur les sentiers côtiers, admirer les panoramas maritimes.MAISON 4 PIÈCES NEUVEÀ 4 km de la Manche et à 8 km de Saint-Malo, laissez vous charmer par cette maison de 4 pièces de 63 m² bénéficiant d’un emplacement d’exception dans Le Minihic-sur-Rance (35870).Cette maison comporte 2 niveaux. Son intérieur comporte trois chambres, une cuisine et une salle de bains. Cette maison est neuve.Le terrain du bien s’étend sur 291 m².Ce bien est situé dans un quartier prisé. Il y a l’École Primaire Publique du Minihic Sur Rance à moins de 10 minutes à pied. Côté transports en commun, on trouve cinq gares à moins de 10 minutes en voiture. On trouve un accès à la nationale N176 à 5 km. Il y a une bibliothèque, un commerce, une épicerie et un bureau de poste à quelques minutes à peine.Il est à vendre pour la somme de 255 600 €.Prenez contact avec Laetitia AMIRI ((Numéro supprimé)) pour tout renseignement sur la maison ou sur les démarches à suivre. Maisons de l’Avenir Saint-Carné vous accompagne dans tous vos projets immobiliers et dans toutes vos démarches.
Le Minihic-sur-Rance
TERRAIN ET MAISONMaison de 5 pièces (89 m²) en vente au Minihic-sur-RanceEMPLACEMENT PRIVILÉGIÉ – Situé rive gauche des bords de Rance, entre Dinan et Pleurtruit, ce village est une véritable terre maritime. D’ici, vous pouvez vous aventurer sur les sentiers côtiers, admirer les panoramas maritimes.MAISON 5 PIÈCES NEUVEEn vente : localisée à 4 km de la Manche et à deux pas de Saint-Malo, nous vous présentons cette maison de 5 pièces de 89 m² bénéficiant d’un emplacement d’exception dans Le Minihic-sur-Rance (35870). Son intérieur dispose de quatre chambres, d’une cuisine et de deux salles de bains.Le terrain de la propriété s’étend sur 291 m².Cette maison possède 2 niveaux. Elle est neuve.La propriété est située dans un quartier recherché. On trouve l’École Primaire Publique du Minihic Sur Rance à moins de 10 minutes à pied. Côté transports en commun, il y a cinq gares à moins de 10 minutes en voiture. On trouve un accès à la nationale N176 à 5 km. On trouve une bibliothèque, un commerce, une épicerie et un bureau de poste à quelques minutes.Elle est proposée à l’achat pour 280 750 €.Contactez notre agence (Laetitia AMIRI : (Numéro supprimé)) pour toute information sur la maison ou sur les modalités de vente. Maisons de l’Avenir Saint-Carné est là pour vous accompagner dans tous vos projets immobiliers.
Le Minihic-sur-Rance
TERRAIN ET MAISONVENTE : maison F4 (94 m²) au Minihic-sur-RanceEMPLACEMENT PRIVILÉGIÉ – Situé rive gauche des bords de Rance, entre Dinan et Pleurtruit, ce village est une véritable terre maritime. D’ici, vous pouvez vous aventurer sur les sentiers côtiers, admirer les panoramas maritimes.MAISON 4 PIÈCES NEUVEÀ vendre : à 4 km de la Manche et à 8 km de Saint-Malo, bénéficiant d’un emplacement privilégié dans Le Minihic-sur-Rance (35870), venez découvrir cette maison de 4 pièces de 94 m².Cette maison compte 2 niveaux. Elle se divise en trois chambres, une cuisine et deux salles de bains. Cette maison est neuve.Le terrain de la propriété est de 291 m².Cette propriété est située dans un quartier recherché. L’École Primaire Publique du Minihic Sur Rance se trouve à moins de 10 minutes à pied. Côté transports, il y a cinq gares à moins de 10 minutes en voiture. Il y a un accès à la nationale N176 à 5 km. On trouve une bibliothèque, un commerce, une épicerie et un bureau de poste à quelques minutes à peine.Elle est à vendre pour la somme de 298 750 €.Contactez Laetitia AMIRI ((Numéro supprimé)) pour tout renseignement sur la maison et sur les modalités de vente.
Le Minihic-sur-Rance
TERRAIN ET MAISONMaison T5 (100 m²) à vendre au Minihic-sur-RanceEMPLACEMENT PRIVILÉGIÉ – Situé rive gauche des bords de Rance, entre Dinan et Pleurtruit, ce village est une véritable terre maritime. D’ici, vous pouvez vous aventurer sur les sentiers côtiers, admirer les panoramas maritimes.MAISON 5 PIÈCES NEUVEÀ 4 km de la Manche et à quelques kilomètres de Saint-Malo, notre agence Maisons de l’Avenir Saint-Carné est ravie de vous proposer cette maison de 5 pièces de 100 m² bénéficiant d’un emplacement d’exception dans Le Minihic-sur-Rance (35870).C’est une maison de 2 niveaux. Elle dispose de quatre chambres, d’une cuisine et de deux salles de bains. La maison est neuve.Le terrain de la propriété est de 291 m².La maison se trouve dans un quartier prisé. Il y a l’École Primaire Publique du Minihic Sur Rance à moins de 10 minutes à pied. Côté transports en commun, on trouve cinq gares à moins de 10 minutes en voiture. Il y a un accès à la nationale N176 à 5 km. Il y a une bibliothèque, un commerce, une épicerie et un bureau de poste à quelques minutes du logement.Elle est à vendre pour la somme de 311 250 €.Prenez contact avec Laetitia AMIRI ((Numéro supprimé)) pour tout renseignement sur le bien, sur les modalités de vente ou sur les démarches à suivre. Faites de vos projets immobiliers une réalité avec Maisons de l’Avenir Saint-Carné.
Le Minihic-sur-Rance
TERRAIN ET MAISONVENTE d’une maison F4 (83 m²) au Minihic-sur-RanceEMPLACEMENT PRIVILÉGIÉ – Situé rive gauche des bords de Rance, entre Dinan et Pleurtruit, ce village est une véritable terre maritime. D’ici, vous pouvez vous aventurer sur les sentiers côtiers, admirer les panoramas maritimes.MAISON BOIS QUALITATIVE, ECONOMIQUE ET DURABLE 4 PIÈCES NEUVEÀ vendre : à 4 km de la Manche et à quelques kilomètres de Saint-Malo, nous sommes heureux de vous présenter cette maison de 4 pièces de plain-pied de 83 m², bénéficiant d’un emplacement d’exception dans Le Minihic-sur-Rance (35870). Conçue de plain-pied, elle inclut trois chambres, une cuisine et une salle de bains.Le terrain de la propriété est de 291 m².Cette maison est neuve.Le bien se situe dans un secteur prisé. On trouve l’École Primaire Publique du Minihic Sur Rance à moins de 10 minutes à pied. Niveau transports, il y a cinq gares à moins de 10 minutes en voiture. Il y a un accès à la nationale N176 à 5 km. On trouve une bibliothèque, un commerce, un bureau de poste et une épicerie à proximité du bien.Il est à vendre pour la somme de 303 200 €.N’hésitez pas à prendre contact avec notre agence (AMIRI Laetitia : (Numéro supprimé)) pour plus de renseignements sur la maison. Donnez vie à vos projets immobiliers avec Maisons de l’Avenir Saint-Carné.
Le Minihic-sur-Rance
TERRAINVENTE d’un terrain de 394 m² au Minihic-sur-RanceEMPLACEMENT PRIVILÉGIÉ – PROCHE DE SAINT-MALOSitué rive gauche des bords de Rance, entre Dinan et Pleurtruit, ce village est une véritable terre maritime. D’ici, vous pouvez vous aventurer sur les sentiers côtiers, admirer les panoramas maritimes.Terrain de 394 m² en vente à 4 km de la Manche et à quelques kilomètres de Saint-Malo. Ce terrain se situe bénéficiant d’un emplacement privilégié dans Le Minihic-sur-Rance (35870). Dans un quartier attractif, ce terrain est proche des commerces et des écoles. L’École Primaire Publique du Minihic Sur Rance est implantée à moins de 10 minutes à pied. Côté transports en commun, on trouve cinq gares à moins de 10 minutes en voiture. La nationale N176 est accessible à 5 km. Il y a une bibliothèque, un commerce, une épicerie et un bureau de poste à quelques minutes.Ce terrain est proposé à l’achat pour 145 000 €. Contactez notre agence (Laetitia AMIRI : (Numéro supprimé)) pour obtenir de plus amples renseignements sur le terrain. Maisons de l’Avenir Saint-Carné est là pour vous accompagner à toutes les étapes de votre projet.
Le Minihic-sur-Rance
TERRAIN ET MAISONLe Minihic-sur-Rance : maison T3 (56 m²) à vendreEMPLACEMENT PRIVILÉGIÉ – Situé rive gauche des bords de Rance, entre Dinan et Pleurtruit, ce village est une véritable terre maritime. D’ici, vous pouvez vous aventurer sur les sentiers côtiers, admirer les panoramas maritimes.MAISON 3 PIÈCES NEUVEEn vente à 4 km de la Manche et à 8 km de Saint-Malo, Maisons de l’Avenir Saint-Carné vous présente cette maison de 3 pièces de plain-pied de 56 m² et de 394 m² de terrain, bénéficiant d’un emplacement d’exception dans Le Minihic-sur-Rance (35870).Son intérieur comporte deux chambres, une cuisine et une salle de bains. Cette maison est neuve.La maison se trouve dans un secteur recherché. L’École Primaire Publique du Minihic Sur Rance est implantée à moins de 10 minutes à pied. Côté transports en commun, il y a cinq gares à moins de 10 minutes en voiture. La nationale N176 est accessible à 5 km. On trouve une bibliothèque, un commerce, un bureau de poste et une épicerie dans les environs.Elle est à vendre pour la somme de 281 000 €.Prenez contact avec notre agence (AMIRI Laetitia : (Numéro supprimé)) pour obtenir de plus amples renseignements sur la maison ou sur les modalités de vente. Maisons de l’Avenir Saint-Carné vous accompagne à toutes les étapes de l’achat et dans toutes vos démarches.
L’actualité immobilière à Saint-Malo
27/11/2023
02/11/2023
30/10/2023
20/10/2023
16/10/2023
16/10/2023