Maison à construire à Saint-Malo (35400)
Images
Description
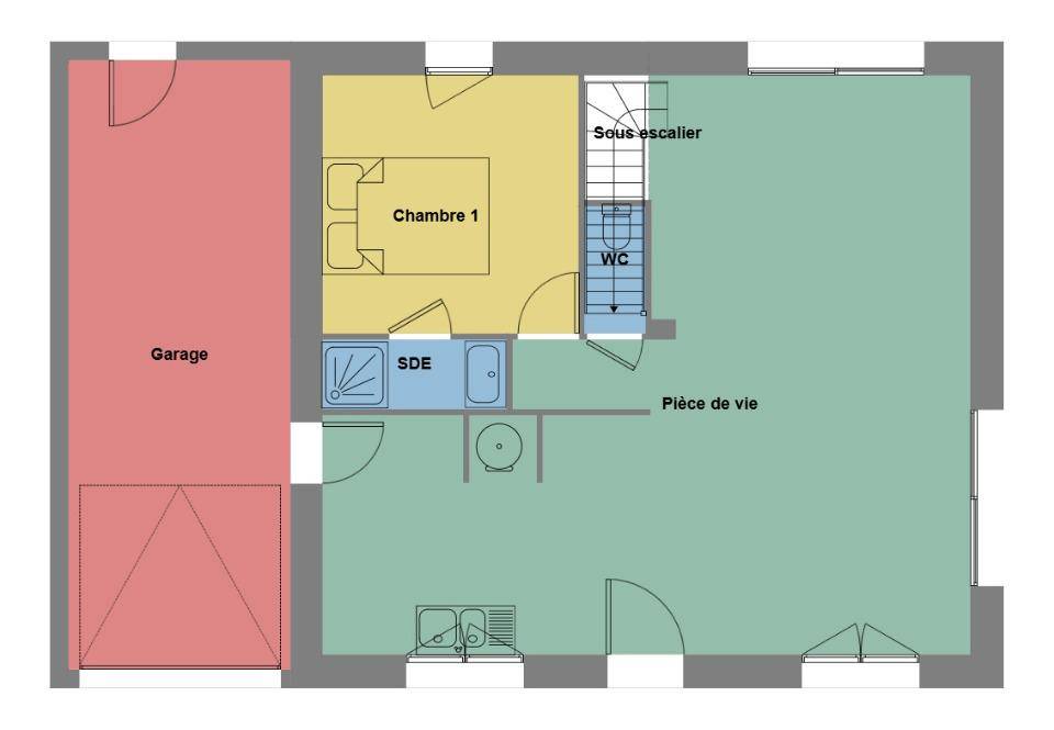
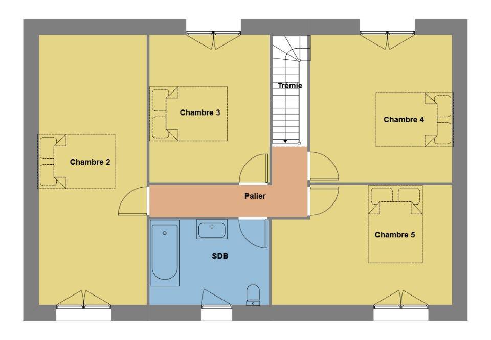
Maison de 6 pièces (119 m²) en vente à Saint-Malo
IDÉALEMENT SITUÉE - MAISON 6 PIÈCES NEUVE
En vente : à 4 km de la Manche, venez découvrir cette maison de 6 pièces de 119 m² et de 238 m² de terrain idéalement située dans Saint-Malo (35400).
Il s'agit d'une maison de 2 niveaux. Son intérieur offre cinq chambres, une cuisine et deux salles de bains. Cette maison est neuve.
La maison se trouve dans un secteur convoité. On y trouve tous les types d'établissements scolaires (maternelle, élémentaire et secondaire). Niveau transports, il y a deux gares (Saint-Malo et La Gouesnière-Cancale-Saint-Méloir-des-Ondes) à moins de 10 minutes en voiture. Il y a un accès à la nationale N176 à 11 km. On trouve une bibliothèque, des commerces, deux boulangeries, un bureau de poste et une épicerie dans les environs.
Elle est proposée à l'achat pour 450 000 €.
Contactez notre agence (MESAS Dimitri : (Numéro supprimé)) pour obtenir de plus amples renseignements sur la propriété, sur les modalités de vente ou sur les démarches à suivre. Faites de vos projets immobiliers une réalité avec Maisons de l'Avenir Cesson-Sévigné.
Logement susceptibles de vous intéresser
Nous vous proposons de découvrir aussi cette sélection de logements situés à moins de 10km de Saint-Malo et qui seraient susceptibles de vous intéresser.
Pleurtuit
TERRAIN ET MAISONPleurtuit : maison de 6 pièces (118 m²) en vente, hors lotissement dans un environnement très calme.EMPLACEMENT PRIVILÉGIÉ – MAISON 6 PIÈCES NEUVEÀ 3 km de la Manche et à 9 km de Saint-Malo, nous sommes heureux de vous proposer cette maison de 6 pièces de 118 m² en vente bénéficiant d’un emplacement privilégié dans Pleurtuit (35730).C’est une maison de 2 niveaux. Elle inclut cinq chambres, une cuisine et deux salles de bains. La maison est neuve.Le terrain de la propriété s’étend sur 753 m².La propriété se situe dans un quartier prisé. Des écoles maternelles et élémentaires sont implantées à moins de 10 minutes à pied, tout comme une crèche. Côté transports en commun, il y a la gare Saint-Malo à moins de 10 minutes en voiture. La nationale N176 est accessible à 6 km. On trouve une bibliothèque, un tennis, des commerces, un supermarché, trois boulangeries, une boucherie-charcuterie et un bureau de poste à quelques minutes à peine.Son prix de vente est de 417 800 €.Contactez notre agence (Laetitia AMIRI : (Numéro supprimé)) pour toute information sur la maison ou sur les modalités de vente. Concrétisez vos projets immobiliers avec Maisons de l’Avenir Saint-Carné.
Pleurtuit
TERRAIN ET MAISONVENTE : maison de 4 pièces (110 m²) à Pleurtuit, hors lotissement dans un environnement très calme.EMPLACEMENT PRIVILÉGIÉ – MAISON 4 PIÈCES NEUVEÀ vendre à 3 km de la Manche et à 9 km de Saint-Malo, nous sommes heureux de vous présenter cette maison de 4 pièces de 110 m² bénéficiant d’un emplacement d’exception dans Pleurtuit (35730).Cette maison comporte 2 niveaux. Son intérieur propose trois chambres, une cuisine et deux salles de bains. Cette maison est neuve.Le terrain de la propriété est de 753 m².La maison est située dans un secteur convoité. Il y a des écoles maternelles et élémentaires à moins de 10 minutes à pied et une crèche. Niveau transports en commun, on trouve la gare Saint-Malo à moins de 10 minutes en voiture. Il y a un accès à la nationale N176 à 6 km. Il y a une bibliothèque, un tennis, des commerces, un supermarché, trois boulangeries, une boucherie-charcuterie et un bureau de poste à quelques minutes.Elle est proposée à l’achat pour 447 350 €.Contactez notre agence (AMIRI Laetitia : (Numéro supprimé)) pour tout renseignement sur la maison, sur les modalités de vente ou sur les démarches à suivre. Maisons de l’Avenir Saint-Carné est là pour vous accompagner dans tous vos projets immobiliers.
Pleurtuit
TERRAIN ET MAISONMaison de 5 pièces (150 m²) en vente à Pleurtuit, hors lotissement dans un environnement très calme.EMPLACEMENT PRIVILÉGIÉ – MAISON 5 PIÈCES NEUVEÀ vendre à 3 km de la Manche et à 9 km de Saint-Malo, nous vous proposons, bénéficiant d’un emplacement privilégié dans Pleurtuit (35730), cette maison de 5 pièces de 150 m² et de 753 m² de terrain.Cette maison compte 2 niveaux. Elle propose quatre chambres, une cuisine et deux salles de bains. La maison est neuve.Cette maison se trouve dans un quartier attractif. Il y a des établissements scolaires maternelles et élémentaires à moins de 10 minutes à pied et une structure d’accueil pour les enfants en bas âge. Niveau transports, on trouve la gare Saint-Malo à moins de 10 minutes en voiture. Il y a un accès à la nationale N176 à 6 km. Il y a une bibliothèque, un tennis, des commerces, un supermarché, trois boulangeries, une boucherie-charcuterie et un bureau de poste dans les environs.Son prix de vente est de 545 200 €.Contactez Laetitia AMIRI (tél : (Numéro supprimé)) pour obtenir de plus amples informations sur la maison ou sur les modalités de vente. Maisons de l’Avenir Saint-Carné vous accompagne à toutes les étapes de votre projet et dans tous vos projets immobiliers.
Saint-Malo
TERRAIN ET MAISONMaison F5 (111 m²) en vente à Saint-MaloIDÉALEMENT SITUÉE – MAISON 5 PIÈCES NEUVEÀ vendre : localisée à 4 km de la Manche, ayez le coup de coeur pour, idéalement située dans Saint-Malo (35400), cette maison de 5 pièces de 111 m² et de 238 m² de terrain avec vue sur jardin.C’est une maison de 2 niveaux. Son intérieur propose quatre chambres, une cuisine et deux salles de bains. La maison est neuve.Cette maison se trouve dans un quartier prisé. Des établissements scolaires (de la maternelle au lycée) y sont implantés. Niveau transports, il y a deux gares (Saint-Malo et La Gouesnière-Cancale-Saint-Méloir-des-Ondes) à moins de 10 minutes en voiture. La nationale N176 est accessible à 11 km. On trouve une bibliothèque, des commerces, deux boulangeries, une épicerie et un bureau de poste à proximité de la maison.Elle est proposée à l’achat pour 474 000 €.Contactez Dimitri MESAS (tél : (Numéro supprimé)) pour tout renseignement sur la maison.
Saint-Malo
TERRAIN ET MAISONSaint-Malo : maison de 5 pièces (87 m²) en venteIDÉALEMENT SITUÉE – MAISON 5 PIÈCES NEUVEEn vente : à 4 km de la Manche, découvrez cette maison de 5 pièces de 87 m² et de 238 m² de terrain idéalement située dans Saint-Malo (35400).Cette maison possède 2 niveaux. Elle propose quatre chambres, une cuisine et une salle de bains. Cette maison est neuve.La propriété est située dans un quartier convoité. On y trouve tous les types d’établissements scolaires (de la maternelle au lycée). Côté transports en commun, il y a les gares Saint-Malo et La Gouesnière-Cancale-Saint-Méloir-des-Ondes à moins de 10 minutes en voiture. La nationale N176 est accessible à 11 km. On trouve une bibliothèque, des commerces, deux boulangeries, un bureau de poste et une épicerie à quelques minutes du bien.Elle est à vendre pour la somme de 430 000 €.N’hésitez pas à prendre contact avec Dimitri MESAS (tél : (Numéro supprimé)) pour plus d’informations sur la maison, sur les démarches à suivre ou sur les modalités de vente. Faites de vos projets immobiliers une réalité avec Maisons de l’Avenir Cesson-Sévigné.
La Richardais
TERRAIN ET MAISONLa Richardais : maison de 4 pièces (105 m²) à vendreEMPLACEMENT PRIVILÉGIÉ – MAISON 4 PIÈCES NEUVEÀ vendre : à 1 km de la Manche et à deux pas de Saint-Malo, ayez le coup de coeur pour, bénéficiant d’un emplacement privilégié dans La Richardais (35780), cette maison de 4 pièces de 105 m² et de 281 m² de terrain.Cette maison compte 2 niveaux. Son intérieur dispose de quatre chambres, d’une cuisine et de deux salles de bains. La maison est neuve.Cette maison est située dans un quartier convoité. L’École Élémentaire Publique Louis Bréhault, l’École Maternelle Publique Antoine Launay, l’École Primaire Privée Ste Anne et le Collège Privé Sainte-Marie sont implantés à moins de 10 minutes à pied, tout comme trois crèches. Côté transports, on trouve deux gares (Saint-Malo et La Gouesnière-Cancale-Saint-Méloir-des-Ondes) à moins de 10 minutes en voiture. Il y a un accès à la nationale N176 à 9 km. Il y a une bibliothèque, un tennis, une boulangerie, des commerces et un bureau de poste à proximité.Son prix de vente est de 377 600 €.Prenez contact avec notre agence (Laetitia AMIRI : (Numéro supprimé)) pour plus d’informations sur la maison, sur les démarches à suivre ou sur les modalités de vente. Faites de vos projets immobiliers une réalité avec Maisons de l’Avenir Saint-Carné.
La Richardais
TERRAIN ET MAISONVENTE : maison F4 (88 m²) à La RichardaisEMPLACEMENT PRIVILÉGIÉ – MAISON 4 PIÈCES NEUVEÀ vendre : à 1 km de la Manche et à quelques kilomètres de Saint-Malo, nous vous présentons cette maison de 4 pièces de 88 m² bénéficiant d’un emplacement d’exception dans La Richardais (35780). Elle propose trois chambres, une cuisine et une salle de bains.Le terrain de la maison s’étend sur 281 m².Cette maison possède 2 niveaux. Elle est neuve.La maison se trouve dans un quartier recherché. L’École Élémentaire Publique Louis Bréhault, l’École Maternelle Publique Antoine Launay, l’École Primaire Privée Ste Anne et le Collège Privé Sainte-Marie sont implantés à moins de 10 minutes à pied, tout comme trois structures d’accueil pour la petite enfance. Côté transports, il y a les gares Saint-Malo et La Gouesnière-Cancale-Saint-Méloir-des-Ondes à moins de 10 minutes en voiture. La nationale N176 est accessible à 9 km. On trouve une bibliothèque, un tennis, une boulangerie, des commerces et un bureau de poste à quelques minutes.Son prix de vente est de 297 000 €.Contactez notre agence (AMIRI Laetitia : (Numéro supprimé)) pour plus de renseignements sur la maison, sur les modalités de vente ou sur les démarches à suivre.
La Richardais
TERRAIN ET MAISONMaison de 4 pièces (110 m²) à vendre à La RichardaisEMPLACEMENT PRIVILÉGIÉ – MAISON 4 PIÈCES NEUVEÀ 1 km de la Manche et à 5 km de Saint-Malo, nous vous présentons cette maison de 4 pièces de 110 m² et de 281 m² de terrain bénéficiant d’un emplacement d’exception dans La Richardais (35780).Cette maison possède 2 niveaux. Elle dispose de trois chambres, d’une cuisine et de deux salles de bains. Cette maison est neuve.La maison est située dans un quartier recherché. On trouve l’École Élémentaire Publique Louis Bréhault, l’École Maternelle Publique Antoine Launay, l’École Primaire Privée Ste Anne et le Collège Privé Sainte-Marie à moins de 10 minutes à pied et trois structures d’accueil pour la petite enfance. Côté transports en commun, il y a deux gares (Saint-Malo et La Gouesnière-Cancale-Saint-Méloir-des-Ondes) à moins de 10 minutes en voiture. La nationale N176 est accessible à 9 km. On trouve une bibliothèque, un tennis, une boulangerie, des commerces et un bureau de poste à proximité.Elle est proposée à l’achat pour 372 800 €.Prenez contact avec notre agence (AMIRI Laetitia : (Numéro supprimé)) pour toute question sur le bien ou sur les démarches à suivre.
La Richardais
TERRAIN ET MAISONVENTE d’une maison de 5 pièces (102 m²) à La RichardaisEMPLACEMENT PRIVILÉGIÉ – MAISON 5 PIÈCES NEUVEÀ 1 km de la Manche et à deux pas de Saint-Malo, nous sommes ravis de vous présenter cette maison de 5 pièces de 102 m² et de 281 m² de terrain bénéficiant d’un emplacement privilégié dans La Richardais (35780). Elle est composée de quatre chambres, d’une cuisine et de deux salles de bains.C’est une maison de 2 niveaux. Elle est neuve.Cette maison est située dans un secteur prisé. L’École Élémentaire Publique Louis Bréhault, l’École Maternelle Publique Antoine Launay, l’École Primaire Privée Ste Anne et le Collège Privé Sainte-Marie se trouvent à moins de 10 minutes à pied, tout comme trois structures d’accueil pour les enfants en bas âge. Côté transports, il y a les gares Saint-Malo et La Gouesnière-Cancale-Saint-Méloir-des-Ondes à moins de 10 minutes en voiture. La nationale N176 est accessible à 9 km. On trouve une bibliothèque, un tennis, une boulangerie, des commerces et un bureau de poste dans les environs.Elle est à vendre pour la somme de 326 500 €.Contactez notre agence (Laetitia AMIRI : (Numéro supprimé)) pour tout renseignement sur la propriété, sur les démarches à suivre ou sur les modalités de vente.
L’actualité immobilière à Saint-Malo
27/11/2023
02/11/2023
30/10/2023
20/10/2023
16/10/2023
16/10/2023