Maison à construire à Talensac (35160)
Images
Description
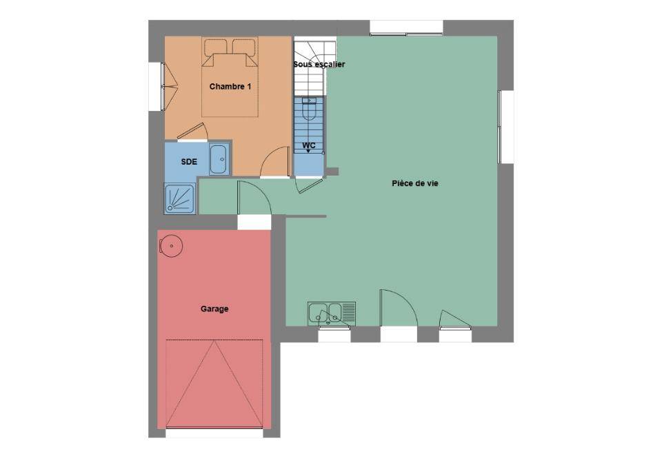
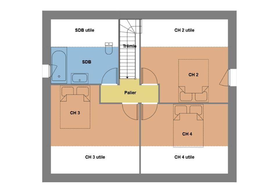
Maison F5 (111 m²) à vendre à Talensac
IDÉALEMENT SITUÉE - MAISON 5 PIÈCES NEUVE
En vente : à 45 km de la Manche et à quelques kilomètres de Rennes, idéalement située dans Talensac (35160), nous vous proposons cette maison de 5 pièces de 111 m².
Il s'agit d'une maison de 2 niveaux. Elle propose quatre chambres, une cuisine et deux salles de bains. Cette maison est neuve.
Le terrain du bien s'étend sur 271 m².
Ce bien est situé dans un quartier convoité. Il y a l'École Primaire Publique le Chat Perché à moins de 10 minutes à pied et deux structures d'accueil pour les enfants en bas âge. Niveau transports, on trouve trois gares (Montfort-sur-Meu, Breteil et L'Hermitage-Mordelles) à moins de 10 minutes en voiture. Les nationales N24 et N12 sont accessibles à moins de 8 km. Il y a un tennis, une boulangerie et une boucherie-charcuterie à proximité.
Il est à vendre pour la somme de 233 500 €.
Contactez Dimitri MESAS ((Numéro supprimé)) pour plus de renseignements sur la maison ou sur les modalités de vente. Maisons de l'Avenir Cesson-Sévigné est là pour vous accompagner à toutes les étapes de votre projet.
Logement susceptibles de vous intéresser
Nous vous proposons de découvrir aussi cette sélection de logements situés à moins de 10km de Talensac et qui seraient susceptibles de vous intéresser.
Saint-Thurial
TERRAINTerrain à bâtir hors lotissement, entièrement viabilisé (eau et électricité), d’une superficie de 551 m², situé au calme et proche du bourg. . Environnement paisible à moins de 20 minutes de Rennes, idéal pour réaliser votre projet de maison sur mesure, dans un cadre rural attrayant à proximité des commerces et écoles. . // Réf. : T210645. Prix terrain : 89 500 €, hors frais d'agence et de notaire à la charge de l'acquéreur. Ce terrain vous est proposé, par nos partenaires fonciers, dans le cadre d'un projet de construction avec nous. Les informations sur les risques auxquels ce bien est exposé sont disponibles sur le site Géorisques (www.georisques.gouv.fr).
Saint-Thurial
TERRAIN ET MAISONTerrain à bâtir hors lotissement, entièrement viabilisé (eau et électricité), d’une superficie de 551 m², situé au calme et proche du bourg. . Environnement paisible à moins de 20 minutes de Rennes, idéal pour réaliser votre projet de maison sur mesure, dans un cadre rural attrayant à proximité des commerces et écoles. . Cette maison au design soigné allie modernité et fonctionnalité pour s’adapter à votre mode de vie. Son architecture contemporaine et ses beaux volumes offrent un cadre lumineux et chaleureux, pensé pour le bien-être au quotidien. Avec 4 chambres, dont une suite parentale avec dressing et salle d’eau, elle conjugue espaces privatifs et lieux de partage. Un garage pratique, des rangements optimisés et une conception fluide font de cette maison un projet personnalisable, en parfaite harmonie avec vos envies. Faites le premier pas vers votre futur chez-vous. Contactez-nous !. Pour un confort optimal et conforme à la RE2025, cette maison dispose d’une PAC avec plancher chauffant au rez-de-chaussée, radiateurs à l’étage et volets roulants électriques. À noter : Le prix indiqué exclut les revêtements de sol des chambres, la cuisine aménagée, la peinture, la décoration, les raccordements, les frais de notaire et l’assurance dommages-ouvrage. // Réf. : 2451-210645-ALT. Prix terrain : 89 500 €, hors frais d'agence à la charge de l'acquéreur. Ce terrain vous est proposé, par nos partenaires fonciers, dans le cadre d'un projet de construction avec nous. Les informations sur les risques auxquels ce bien est exposé sont disponibles sur le site Géorisques (www.georisques.gouv.fr). Prix maison : 338 496 €.
Saint-Thurial
TERRAIN ET MAISONTerrain à bâtir hors lotissement, entièrement viabilisé (eau et électricité), d’une superficie de 551 m², situé au calme et proche du bourg. . Environnement paisible à moins de 20 minutes de Rennes, idéal pour réaliser votre projet de maison sur mesure, dans un cadre rural attrayant à proximité des commerces et écoles. . Une maison qui s’adapte à vos envies. Alliance parfaite entre modernité et confort, cette maison offre un espace de vie lumineux et fonctionnel, pensé pour répondre aux besoins d’aujourd’hui. Avec 4 chambres, dont une suite parentale avec dressing et salle d’eau, elle garantit à chacun son espace tout en préservant la convivialité familiale. L’étage, astucieusement agencé, complète cet équilibre avec trois belles chambres et une salle de bains. Son architecture contemporaine, associée à des volumes optimisés, en fait un cadre de vie agréable et évolutif, entièrement personnalisable selon vos besoins. Un projet à imaginer ensemble ! Contactez-nous pour plus d’informations. Pour un confort optimal et conforme à la RE2025, cette maison dispose d’une PAC avec plancher chauffant au rez-de-chaussée, radiateurs à l’étage et volets roulants électriques. À noter : Le prix indiqué exclut les revêtements de sol des chambres, la cuisine aménagée, la peinture, la décoration, les raccordements, les frais de notaire et l’assurance dommages-ouvrage. . // Réf. : 543-210645-ALT. Prix terrain : 89 500 €, hors frais d'agence à la charge de l'acquéreur. Ce terrain vous est proposé, par nos partenaires fonciers, dans le cadre d'un projet de construction avec nous. Les informations sur les risques auxquels ce bien est exposé sont disponibles sur le site Géorisques (www.georisques.gouv.fr). Prix maison : 223 976 €.
Saint-Thurial
TERRAIN ET MAISONTerrain à bâtir hors lotissement, entièrement viabilisé (eau et électricité), d’une superficie de 551 m², situé au calme et proche du bourg. . Environnement paisible à moins de 20 minutes de Rennes, idéal pour réaliser votre projet de maison sur mesure, dans un cadre rural attrayant à proximité des commerces et écoles. . Dès l’entrée, vous serez séduit par une pièce de vie spacieuse et baignée de lumière, où salon, salle à manger et cuisine ouverte créent un espace convivial et chaleureux. L’agencement fluide et fonctionnel vous permet de profiter pleinement de chaque instant en famille ou entre amis. Côté nuit, la maison offre trois belles chambres, pensées pour le confort et la tranquillité de chacun. La suite parentale, intime et élégante, devient un véritable refuge, tandis que les chambres supplémentaires s’adaptent parfaitement aux besoins des enfants ou d’un bureau. Une salle de bain moderne complète cet espace avec style et praticité. À l’extérieur, un jardin agréable prolonge l’espace de vie, idéal pour savourer des moments en plein air. Un intérieur harmonieux, lumineux et conçu pour votre quotidien – tout ce qu’il faut pour s’y sentir bien dès le premier jour !. Pour vous assurer un confort de vie et conformément à la RE2025, nous avons choisi un mode de chauffage par PAC + plancher chauffant, volets roulants électriques. Prix hors peinture, décoration, revêtements de sol dans les chambres, cuisine équipée, frais de notaire, raccordements, dommage ouvrage. // Réf. : 2651-210645-ALT. Prix terrain : 89 500 €, hors frais d'agence à la charge de l'acquéreur. Ce terrain vous est proposé, par nos partenaires fonciers, dans le cadre d'un projet de construction avec nous. Les informations sur les risques auxquels ce bien est exposé sont disponibles sur le site Géorisques (www.georisques.gouv.fr). Prix maison : 165 418 €.
Saint-Thurial
TERRAINTerrain à bâtir hors lotissement, entièrement viabilisé (eau et électricité), d’une superficie de 551 m², situé au calme et proche du bourg. . Environnement paisible à moins de 20 minutes de Rennes, idéal pour réaliser votre projet de maison sur mesure, dans un cadre rural attrayant à proximité des commerces et écoles. . // Réf. : T210645. Prix terrain : 89 500 €, hors frais d'agence et de notaire à la charge de l'acquéreur. Ce terrain vous est proposé, par nos partenaires fonciers, dans le cadre d'un projet de construction avec nous. Les informations sur les risques auxquels ce bien est exposé sont disponibles sur le site Géorisques (www.georisques.gouv.fr).
Saint-Thurial
TERRAIN ET MAISONSaint-Thurial, le choix du quotidien serein. À 25 minutes de Rennes, entre ville et nature. Commerces, écoles, services de proximité : une commune dynamique à taille humaine. Un projet d’avenir renforce aujourd’hui l’attractivité du territoire et le bien-être de ses habitants. Connectée, conviviale, tournée vers demain. Saint-Thurial, un village qui avance. Une maison spacieuse et bien pensée pour toute la famille ! Pensée pour allier confort et modernité, cette maison vous séduira par ses volumes optimisés et son agencement fonctionnel. Dès l’entrée, vous découvrez un vaste espace de vie, baigné de lumière, où le salon et la salle à manger offrent un cadre chaleureux pour des moments de partage. La cuisine ouverte, à la fois moderne et fonctionnelle, s’accompagne d’un cellier attenant, idéal pour faciliter le rangement et l’organisation du quotidien. Toujours au rez-de-chaussée, une suite parentale élégante avec salle d’eau privative offre un véritable espace de détente, parfait pour préserver son intimité. À l’étage, trois chambres confortables et bien agencées permettent à chacun d’avoir son espace personnel. Une spacieuse salle de bain vient compléter cet étage, assurant praticité et bien-être pour toute la famille. Pour vous assurer un confort de vie optimal et en conformité avec la RE2025, nous avons opté pour un système de chauffage par pompe à chaleur (PAC) avec plancher chauffant au rez-de-chaussée et radiateurs à l’étage. Le logement est également équipé de volets roulants électriques. Prix hors fourniture et pose : des appareils sanitaires (sauf système de chauffage et d'eau chaude sanitaire), du carrelage et de la faïence, des revêtements de sol dans les chambres. Hors décoration et aménagement intérieur et peinture. Hors raccordements, frais de notaire et dommage ouvrage. // Réf. : 2472-210297-CLM. Prix terrain : 55 000 €, hors frais d'agence à la charge de l'acquéreur. Ce terrain vous est proposé, par nos partenaires fonciers, dans le cadre d'un projet de construction avec nous. Les informations sur les risques auxquels ce bien est exposé sont disponibles sur le site Géorisques (www.georisques.gouv.fr). Prix maison : 168 859 €.
Saint-Thurial
TERRAIN ET MAISONSaint-Thurial, le choix du quotidien serein. À 25 minutes de Rennes, entre ville et nature. Commerces, écoles, services de proximité : une commune dynamique à taille humaine. Un projet d’avenir renforce aujourd’hui l’attractivité du territoire et le bien-être de ses habitants. Connectée, conviviale, tournée vers demain. Saint-Thurial, un village qui avance. Familiale et fonctionnelle cette maison de 106 m² habitables vous séduira par ses volumes et son aménagement. Son très bel espace de vie de 47 m² environ avec sa cuisine ouverte avec accès direct au jardin grâce à sa baie vitrée. L’espace nuit est composé d’une suite parentale avec dressing et salle d’eau privative, à l’opposé trois chambres avec rangements, une salle de bains indépendantePour vous assurer un confort de vie et conformément à la RE2025, nous avons choisi un mode de chauffage par PAC + plancher chauffant, volets roulants électriques. Prix hors fourniture et pose : des appareils sanitaires (sauf système de chauffage et d'eau chaude sanitaire), du carrelage et de la faïence, des revêtements de sol dans les chambres. Hors décoration et aménagement intérieur et peinture. Hors raccordements, frais de notaire et dommage ouvrage. // Réf. : 1249-210297-CLM. Prix terrain : 55 000 €, hors frais d'agence à la charge de l'acquéreur. Ce terrain vous est proposé, par nos partenaires fonciers, dans le cadre d'un projet de construction avec nous. Les informations sur les risques auxquels ce bien est exposé sont disponibles sur le site Géorisques (www.georisques.gouv.fr). Prix maison : 163 956 €.
Saint-Thurial
TERRAIN ET MAISONSaint-Thurial, le choix du quotidien serein. À 25 minutes de Rennes, entre ville et nature. Commerces, écoles, services de proximité : une commune dynamique à taille humaine. Un projet d’avenir renforce aujourd’hui l’attractivité du territoire et le bien-être de ses habitants. Connectée, conviviale, tournée vers demain. Saint-Thurial, un village qui avance. Traditionnelle et familiale, cette maison est idéalement agencée en deux volumes distincts, l'espace de vie et la zone de nuit. Son espace de vie traversant avec sa cuisine US bénéficie de deux orientations qui favorisent la luminosité. Son espace nuit est composé de 4 belles chambres avec rangements, d'une salle de bains, et des wc séparésPour vous assurer un confort de vie et conformément à la RE2025, nous avons choisi un mode de chauffage par PAC + plancher chauffant, volets roulants électriques. Prix hors fourniture et pose : des appareils sanitaires (sauf système de chauffage et d'eau chaude sanitaire), du carrelage et de la faïence, des revêtements de sol dans les chambres. Hors décoration et aménagement intérieur et peinture. Hors raccordements, frais de notaire et dommage ouvrage. // Réf. : 752-210297-CLM. Prix terrain : 55 000 €, hors frais d'agence à la charge de l'acquéreur. Ce terrain vous est proposé, par nos partenaires fonciers, dans le cadre d'un projet de construction avec nous. Les informations sur les risques auxquels ce bien est exposé sont disponibles sur le site Géorisques (www.georisques.gouv.fr). Prix maison : 138 571 €.
Bréal-sous-Montfort
TERRAIN ET MAISONBRÉAL-SOUS-MONTFORT — UN CADRE DE VIE PRIVILÉGIÉ, PROCHE DE RENNES. Des réalisations modernes, pensées pour votre confort, dans un environnement verdoyant et recherché. Situé à seulement 15 minutes de Rennes, Bréal-sous-Montfort vous offre le parfait équilibre entre nature et accessibilité. • Emplacement stratégique aux portes de Rennes• Environnement paisible et familial• Proximité immédiate des commerces et écoles• Architecture sur-mesure et prestations soignées. Ici, votre projet de construction devient une réalité dans un cadre qui allie qualité de vie et praticité. Bréal-sous-Montfort, une adresse idéale pour bâtir votre avenir. Contactez-nous pour découvrir nos réalisations et concrétiser vos envies !. Un espace de vie idéal pour toute la famille ! Cette maison moderne et fonctionnelle a été conçue pour s’adapter à votre quotidien tout en offrant confort et convivialité. Dès l’entrée, une grande pièce de vie ouverte vous invite à la détente avec son séjour lumineux et sa cuisine spacieuse, parfaite pour partager des moments en famille ou entre amis. Un cellier attenant vient compléter cet espace en apportant une solution de rangement astucieuse. Au rez-de-chaussée, une suite parentale intime et confortable vous offre un espace privé avec sa propre salle d’eau, garantissant tranquillité et bien-être. À l’étage, trois belles chambres lumineuses permettent à chacun de disposer de son propre cocon. Une grande salle de bain familiale et un palier bien agencé viennent compléter cet étage, offrant un confort optimal pour toute la famille. Avec son architecture contemporaine, ses espaces bien répartis et ses finitions soignées, cette maison est le cadre parfait pour construire votre avenir. Pour vous assurer un confort de vie optimal et en conformité avec la RE2025, nous avons opté pour un système de chauffage par pompe à chaleur (PAC) avec plancher chauffant au rez-de-chaussée et radiateurs à l’étage. Le logement est également équipé de volets roulants électriques. Prix hors fourniture et pose : des appareils sanitaires (sauf système de chauffage et d'eau chaude sanitaire), du carrelage et de la faïence, des revêtements de sol dans les chambres. Hors décoration et aménagement intérieur et peinture. Hors raccordements, frais de notaire et dommage ouvrage. // Réf. : 2469-210285-CLM. Prix terrain : 81 500 €, hors frais d'agence à la charge de l'acquéreur. Ce terrain vous est proposé, par nos partenaires fonciers, dans le cadre d'un projet de construction avec nous. Les informations sur les risques auxquels ce bien est exposé sont disponibles sur le site Géorisques (www.georisques.gouv.fr). Prix maison : 167 942 €.
L’actualité immobilière à Talensac
27/11/2023
02/11/2023
30/10/2023
20/10/2023
16/10/2023
16/10/2023