Maison à construire à Val-d'Izé (35450)
Images
Description
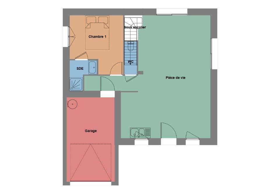
VENTE d'une maison T5 (111 m²) à Val-d'Izé
IDÉALEMENT SITUÉE - MAISON 5 PIÈCES NEUVE
À deux pas de Rennes, notre agence Maisons de l'Avenir Cesson-Sévigné est heureuse de vous présenter cette maison de 5 pièces de 111 m² à vendre idéalement située dans Val-d'Izé (35450). Elle est composée de quatre chambres, d'une cuisine et de deux salles de bains.
Le terrain de la propriété est de 177 m².
Il s'agit d'une maison de 2 niveaux. Elle est neuve.
Cette maison est située dans un secteur prisé. L'École Primaire Privée St Etienne des Eaux et l'École Primaire Publique Lucie Aubrac se trouvent à moins de 10 minutes à pied. Niveau transports en commun, il y a deux gares (Les Lacs et Vitré) à moins de 10 minutes en voiture. L'autoroute A84 et la nationale N157 sont accessibles à moins de 13 km. On trouve un tennis, une boulangerie, un supermarché et un commerce à proximité de la maison.
Son prix de vente est de 219 900 €.
Contactez notre constructeur (Dimitri MESAS : (Numéro supprimé)) pour plus de renseignements sur la propriété ou sur les démarches à suivre.
Logement susceptibles de vous intéresser
Nous vous proposons de découvrir aussi cette sélection de logements situés à moins de 10km de Val-d'Izé et qui seraient susceptibles de vous intéresser.
Saint-Aubin-des-Landes
TERRAINVENTE : terrain de 353 m² à Saint-Aubin-des-LandesIDÉALEMENT SITUÉ – PROCHE DE RENNESÀ Saint-Aubin-des-Landes (35500) à vendre à 29 km de Rennes, venez découvrir ce terrain de 353 m². Ce terrain, orienté sud, donne sur un jardin. Il se trouve dans un secteur recherché. L’École Primaire Privée St Joseph est implantée à moins de 10 minutes à pied. Côté transports en commun, il y a les gares Les Lacs, Vitré et Châteaubourg à moins de 10 minutes en voiture. La nationale N157 est accessible à 3 km. On trouve une bibliothèque à quelques minutes à peine.Son prix de vente est de 38 000 €. Prenez contact avec notre agence (Dimitri MESAS : (Numéro supprimé)) pour toute information sur ce terrain et sur les démarches à suivre. Maisons de l’Avenir Cesson-Sévigné vous accompagne dans tous vos projets immobiliers et à toutes les étapes de votre projet.
Saint-Aubin-des-Landes
TERRAIN ET MAISONVENTE d’une maison T5 (111 m²) à Saint-Aubin-des-LandesIDÉALEMENT SITUÉE – MAISON 5 PIÈCES NEUVEÀ vendre à deux pas de Rennes, idéalement située dans Saint-Aubin-des-Landes (35500), découvrez cette maison de 5 pièces de 111 m² avec vue sur jardin. Elle comporte quatre chambres, une cuisine et deux salles de bains.Le terrain de la maison s’étend sur 353 m².Il s’agit d’une maison de 2 niveaux. Elle est neuve.La maison se trouve dans un quartier attractif. L’École Primaire Privée St Joseph est implantée à moins de 10 minutes à pied. Niveau transports en commun, on trouve trois gares (Les Lacs, Vitré et Châteaubourg) à moins de 10 minutes en voiture. La nationale N157 est accessible à 3 km. Il y a une bibliothèque dans les environs.Son prix de vente est de 228 000 €.Contactez Dimitri MESAS ((Numéro supprimé)) pour toute information sur la maison.
Saint-Aubin-des-Landes
TERRAIN ET MAISONVENTE : maison de 4 pièces (80 m²) à Saint-Aubin-des-LandesIDÉALEMENT SITUÉE – MAISON 4 PIÈCES NEUVEEn vente à quelques kilomètres de Rennes, Maisons de l’Avenir Cesson-Sévigné vous présente cette maison de 4 pièces de plain-pied de 80 m² et de 353 m² de terrain, idéalement située dans Saint-Aubin-des-Landes (35500).Son intérieur compte trois chambres, une cuisine et une salle de bains. Cette maison est neuve.La maison est située dans un quartier recherché. L’École Primaire Privée St Joseph est implantée à moins de 10 minutes à pied. Niveau transports en commun, on trouve les gares Les Lacs, Vitré et Châteaubourg à moins de 10 minutes en voiture. Il y a un accès à la nationale N157 à 3 km. Il y a une bibliothèque dans les environs.Elle est à vendre pour la somme de 203 000 €.N’hésitez pas à prendre contact avec Dimitri MESAS ((Numéro supprimé)) pour toute question sur la maison. Maisons de l’Avenir Cesson-Sévigné est là pour vous accompagner dans tous vos projets immobiliers.
Saint-Aubin-des-Landes
TERRAIN ET MAISONVENTE : maison de 4 pièces (90 m²) à Saint-Aubin-des-LandesIDÉALEMENT SITUÉE – MAISON 4 PIÈCES NEUVEÀ vendre : à quelques kilomètres de Rennes, notre agence Maisons de l’Avenir Cesson-Sévigné est heureuse de vous présenter cette maison de 4 pièces de 90 m² et de 353 m² de terrain idéalement située dans Saint-Aubin-des-Landes (35500).Il s’agit d’une maison de 2 niveaux. Elle comporte quatre chambres, une cuisine et une salle de bains. Cette maison est neuve.La maison est située dans un quartier convoité. L’École Primaire Privée St Joseph se trouve à moins de 10 minutes à pied. Niveau transports, il y a trois gares (Les Lacs, Vitré et Châteaubourg) à moins de 10 minutes en voiture. On trouve un accès à la nationale N157 à 3 km. On trouve une bibliothèque dans les environs.Son prix de vente est de 217 000 €.Contactez Dimitri MESAS (tél : (Numéro supprimé)) pour tout renseignement sur la propriété. Maisons de l’Avenir Cesson-Sévigné vous accompagne dans tous vos projets immobiliers et à toutes les étapes de l’achat.
Saint-Aubin-des-Landes
TERRAIN ET MAISONSaint-Aubin-des-Landes : maison T5 (89 m²) en venteIDÉALEMENT SITUÉE – MAISON 5 PIÈCES NEUVEÀ vendre : à quelques kilomètres de Rennes, nous sommes ravis de vous proposer cette maison de 5 pièces de 89 m² et de 353 m² de terrain idéalement située dans Saint-Aubin-des-Landes (35500). Son intérieur est composé de quatre chambres, d’une cuisine et de deux salles de bains.Cette maison possède 2 niveaux. Elle est neuve.Cette maison se trouve dans un secteur attractif. Il y a l’École Primaire Privée St Joseph à moins de 10 minutes à pied. Côté transports, on trouve trois gares (Les Lacs, Vitré et Châteaubourg) à moins de 10 minutes en voiture. La nationale N157 est accessible à 3 km. Il y a une bibliothèque dans les environs.Elle est à vendre pour la somme de 236 000 €.Prenez contact avec Dimitri MESAS ((Numéro supprimé)) pour obtenir de plus amples renseignements sur la maison, sur les modalités de vente ou sur les démarches à suivre. Maisons de l’Avenir Cesson-Sévigné est là pour vous accompagner à toutes les étapes de votre projet.
Saint-Aubin-des-Landes
TERRAIN ET MAISONMAISON OSSATURE BOISSaint-Aubin-des-Landes : maison T4 (75 m²) en venteIDÉALEMENT SITUÉE – MAISON 4 PIÈCES NEUVEÀ 29 km de Rennes, en vente idéalement située dans Saint-Aubin-des-Landes (35500), nous sommes ravis de vous proposer cette maison de 4 pièces de plain-pied de 75 m² et de 353 m² de terrain. Elle compte trois chambres, une cuisine et une salle de bains.La maison est neuve.Cette maison se situe dans un quartier recherché. On trouve l’École Primaire Privée St Joseph à moins de 10 minutes à pied. Côté transports, il y a les gares Les Lacs, Vitré et Châteaubourg à moins de 10 minutes en voiture. La nationale N157 est accessible à 3 km. On trouve une bibliothèque à proximité.Son prix de vente est de 202 000 €.Prenez contact avec notre agence (Dimitri MESAS : (Numéro supprimé)) pour plus de renseignements sur la maison, sur les modalités de vente ou sur les démarches à suivre.
Livré-sur-Changeon
TERRAIN ET MAISONSuperbe projet de construction à Livré-sur-Changeon – Cadre verdoyant et bien exposé !. Vous rêvez de construire la maison de vos rêves dans un environnement calme et verdoyant ? Ce projet situé à Livré-sur-Changeon, une charmante commune d’Ille-et-Vilaine, est fait pour vous !. Découvrez EVOLIA, votre future maison évolutive ! Bienvenue dans l'avenir de l'habitat avec EVOLIA, une maison évolutive, modulable et transformable. Grâce à ses configurations flexibles et ses nombreuses options de personnalisation, EVOLIA vous offre un confort inégalé et une modernité à un prix abordable. Faites de vos rêves de propriété une réalité et commencez à bâtir votre futur dès aujourd'hui ! Votre avenir commence ici ! Contactez-nous dès maintenant pour plus d'informations. Prix hors fourniture et pose : des appareils sanitaires (sauf système de chauffage et d'eau chaude sanitaire), du carrelage, de la faïence, de la cuisine aménagée, des revêtements de sol dans les chambres. Hors décoration et aménagement intérieur et peinture. Hors raccordements, frais de notaire et dommage ouvrage. // Réf. : 2454-210312-CLM. Prix terrain : 36 000 €, hors frais d'agence à la charge de l'acquéreur. Ce terrain vous est proposé, par nos partenaires fonciers, dans le cadre d'un projet de construction avec nous. Les informations sur les risques auxquels ce bien est exposé sont disponibles sur le site Géorisques (www.georisques.gouv.fr). Prix maison : 79 597 €.
Livré-sur-Changeon
TERRAIN ET MAISONSuperbe projet de construction à Livré-sur-Changeon – Cadre verdoyant et bien exposé !. Vous rêvez de construire la maison de vos rêves dans un environnement calme et verdoyant ? Ce projet situé à Livré-sur-Changeon, une charmante commune d’Ille-et-Vilaine, est fait pour vous !. Idéale pour une première acquisition, cette charmante maison de plain-pied vous accueille dans un très bel espace de vie baigné de lumière grâce à sa baie vitrée. Elle vous offre également deux chambres, une salle de bains et des wc séparés. Le garage est intégré à la maison et communique avec le cellierPour vous assurer un confort de vie et conformément à la RE2025, nous avons choisi un mode de chauffage par PAC + plancher chauffant, volets roulants électriques. Prix hors fourniture et pose : des appareils sanitaires (sauf système de chauffage et d'eau chaude sanitaire), du carrelage et de la faïence, des revêtements de sol dans les chambres. Hors décoration et aménagement intérieur et peinture. Hors raccordements, frais de notaire et dommage ouvrage. // Réf. : 1123-210312-CLM. Prix terrain : 36 000 €, hors frais d'agence à la charge de l'acquéreur. Ce terrain vous est proposé, par nos partenaires fonciers, dans le cadre d'un projet de construction avec nous. Les informations sur les risques auxquels ce bien est exposé sont disponibles sur le site Géorisques (www.georisques.gouv.fr). Prix maison : 115 600 €.
Livré-sur-Changeon
TERRAIN ET MAISONSuperbe projet de construction à Livré-sur-Changeon – Cadre verdoyant et bien exposé !. Vous rêvez de construire la maison de vos rêves dans un environnement calme et verdoyant ? Ce projet situé à Livré-sur-Changeon, une charmante commune d’Ille-et-Vilaine, est fait pour vous !. Cette maison de plain-pied en L, fonctionnelle et spacieuse vous propose un bel espace de vie lumineux et traversant. Sa cuisine est ouverte sur le séjour et a un accès direct au cellier. Son espace nuit est composé de trois belles chambres dont une suite parentale avec dressing et salle de bain privative, une deuxième salle de bains équipé ainsi que des wc séparésPour vous assurer un confort de vie et conformément à la RE2025, nous avons choisi un mode de chauffage par PAC + plancher chauffant, volets roulants électriques. Prix hors fourniture et pose : des appareils sanitaires (sauf système de chauffage et d'eau chaude sanitaire), du carrelage et de la faïence, des revêtements de sol dans les chambres. Hors décoration et aménagement intérieur et peinture. Hors raccordements, frais de notaire et dommage ouvrage. // Réf. : 806-210312-CLM. Prix terrain : 36 000 €, hors frais d'agence à la charge de l'acquéreur. Ce terrain vous est proposé, par nos partenaires fonciers, dans le cadre d'un projet de construction avec nous. Les informations sur les risques auxquels ce bien est exposé sont disponibles sur le site Géorisques (www.georisques.gouv.fr). Prix maison : 144 193 €.
L’actualité immobilière à Val-d'Izé
27/11/2023
02/11/2023
30/10/2023
20/10/2023
16/10/2023
16/10/2023