Maison à construire à Ardentes (36120)
Images
Description
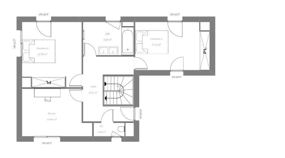
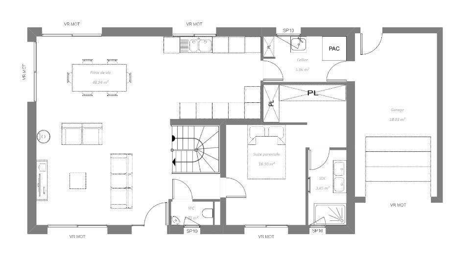
VENTE : maison T5 (120 m²) à Ardentes
En centre-ville - À découvrir à Ardentes (36120) : maison neuve 5 pièces en vente, 2 niveaux, 120 m² sur 650 m² de terrain. Son intérieur propose quatre chambres, une cuisine et deux salles de bains.
Proche établissements scolaires, bibliothèque, tennis, commerces, boulangerie, supermarché, épicerie et bureau de poste. Marché Place Saint Martin le jeudi matin. Autoroute A20 et nationale N151 à 15 km. Châteauroux à 12 km.
Cette maison de 5 pièces est proposée à l'achat pour 308 800 €.
N'hésitez pas à prendre contact avec Franck RUBIO (*6-30-49-64-43) pour plus d'informations sur la maison, sur les démarches à suivre ou sur les modalités de vente. Maisons Bruno Petit MJB Châteauroux vous accompagne dans tous vos projets immobiliers et dans toutes vos démarches.
Logement susceptibles de vous intéresser
Nous vous proposons de découvrir aussi cette sélection de logements situés à moins de 10km de Ardentes et qui seraient susceptibles de vous intéresser.
Le Poinçonnet
TERRAIN ET MAISONMaison F4 (90 m²) à vendre au PoinçonnetEmplacement privilégié – Au Poinçonnet (36330), maison neuve en vente de 4 pièces, 90 m² de surface sur 780 m² de terrain. Elle comporte trois chambres, une cuisine et une salle de bains.À proximité : gare (Châteauroux), écoles, tennis, boulangeries, commerces, épicerie, bureau de poste et boucheries-charcuteries. Autoroute A20 et nationale N151 accessibles à 8 km. Châteauroux à 6 km.Le prix de vente de cette maison de 4 pièces est de 203 950 €.Contactez notre agence (Franck RUBIO : (Numéro supprimé)) pour tout renseignement sur la maison. Maisons Bruno Petit MJB Châteauroux vous accompagne à toutes les étapes de l’achat et dans tous vos projets immobiliers.
Le Poinçonnet
TERRAIN ET MAISONLe Poinçonnet : maison de 4 pièces (95 m²) en venteEmplacement privilégié – À découvrir au Poinçonnet (36330) : maison neuve 4 pièces à vendre, 95 m² de surface et 780 m² de terrain. Elle compte trois chambres, une cuisine et deux salles de bains.À proximité : gare (Châteauroux), écoles, tennis, boulangeries, commerces, épicerie, boucheries-charcuteries et bureau de poste. Accès autoroute A20 et nationale N151 à 8 km. Châteauroux à 6 km.Le prix de vente de cette maison de 4 pièces est de 226 000 €.Contactez notre agence (RUBIO Franck : (Numéro supprimé)) pour toute information sur la maison, sur les modalités de vente ou sur les démarches à suivre.
Le Poinçonnet
TERRAIN ET MAISONVENTE : maison de 4 pièces (108 m²) au PoinçonnetEmplacement privilégié – À découvrir au Poinçonnet (36330) : maison neuve 4 pièces en vente, 108 m² sur 780 m² de terrain. Conçue de plain-pied, elle inclut quatre chambres, une cuisine et une salle de bains.À dix minutes : gare (Châteauroux), écoles, tennis, boulangeries, commerces, boucheries-charcuteries, bureau de poste et épicerie. Autoroute A20 et nationale N151 à 8 km. Châteauroux à 6 km.Le prix de vente de cette maison de 4 pièces est de 246 800 €.Contactez Franck RUBIO ((Numéro supprimé)) pour tout renseignement sur la maison de plain-pied. Maisons Bruno Petit MJB Châteauroux est là pour vous accompagner dans toutes vos démarches.
Le Poinçonnet
TERRAIN ET MAISONMaison de 6 pièces (176 m²) à vendre au PoinçonnetEmplacement privilégié – À découvrir au Poinçonnet (36330) : maison neuve 6 pièces en vente, 2 niveaux, 176 m² de surface et 761 m² de terrain. Son intérieur dispose de six chambres, d’une cuisine et de deux salles de bains.Proche gare (Châteauroux), écoles, tennis, boulangeries, commerces, épicerie, boucheries-charcuteries et bureau de poste. Autoroute A20 et nationale N151 accessibles à 8 km. Châteauroux à 6 km.Cette maison de 6 pièces est proposée à l’achat pour 408 350 €.Prenez contact avec Franck RUBIO (tél : *6-30-49-64-43) pour toute information sur la maison. Maisons Bruno Petit MJB Châteauroux est là pour vous accompagner à toutes les étapes de votre projet.
Le Poinçonnet
TERRAIN ET MAISONMaison de 5 pièces (123 m²) en vente au PoinçonnetEmplacement privilégié – À découvrir au Poinçonnet (36330) : maison neuve 5 pièces en vente. Surface de 123 m² et 780 m² de terrain. Elle se divise en trois chambres, une cuisine et deux salles de bains.À dix minutes : gare (Châteauroux), écoles, tennis, boulangeries, commerces, boucheries-charcuteries, bureau de poste et épicerie. Autoroute A20 et nationale N151 accessibles à 8 km. Châteauroux à 6 km.Cette maison de 5 pièces est à vendre pour la somme de 357 000 €.N’hésitez pas à prendre contact avec notre agence (Franck RUBIO : *6-30-49-64-43) pour tout renseignement sur la maison, sur les modalités de vente ou sur les démarches à suivre. Concrétisez vos projets immobiliers avec Maisons Bruno Petit MJB Châteauroux.
Le Poinçonnet
TERRAIN ET MAISONVENTE d’une maison de 3 pièces (92 m²) au PoinçonnetEmplacement privilégié – Au Poinçonnet (36330), maison neuve à vendre de 3 pièces, 92 m² sur 780 m² de terrain. Elle offre trois chambres, une cuisine et une salle de bains.À dix minutes : gare (Châteauroux), écoles, tennis, boulangeries, commerces, boucheries-charcuteries, bureau de poste et épicerie. Autoroute A20 et nationale N151 à 8 km. Châteauroux à 6 km.Le prix de vente de cette maison de 3 pièces est de 225 800 €.Contactez notre agence (RUBIO Franck : *6-30-49-64-43) pour toute information sur la maison.
Le Poinçonnet
TERRAIN ET MAISONVENTE : maison de 5 pièces (121 m²) au PoinçonnetEmplacement privilégié – Au Poinçonnet (36330), maison neuve en vente de 5 pièces, 121 m² de surface sur 761 m² de terrain. Conçue de plain-pied, elle inclut trois chambres, une cuisine et deux salles de bains.Proche gare (Châteauroux), écoles, tennis, boulangeries, commerces, épicerie, boucheries-charcuteries et bureau de poste. Accès autoroute A20 et nationale N151 à 8 km. Châteauroux à 6 km.Cette maison de 5 pièces est proposée à l’achat pour 282 800 €.Prenez contact avec notre agence (RUBIO Franck : *6-30-49-64-43) pour obtenir de plus amples renseignements sur la maison ou sur les démarches à suivre. Maisons Bruno Petit MJB Châteauroux est là pour vous accompagner à toutes les étapes de l’achat.
Le Poinçonnet
TERRAIN ET MAISONLe Poinçonnet : maison de 4 pièces (105 m²) en venteEmplacement privilégié – Au Poinçonnet (36330), maison neuve en vente de 4 pièces, 105 m² de surface et 780 m² de terrain. Son intérieur se divise en quatre chambres, une cuisine et deux salles de bains.À dix minutes : gare (Châteauroux), écoles, tennis, boulangeries, commerces, boucheries-charcuteries, épicerie et bureau de poste. Autoroute A20 et nationale N151 à 8 km. Châteauroux à 6 km.Le prix de vente de cette maison de 4 pièces est de 245 800 €.Contactez Franck RUBIO (*6-30-49-64-43) pour tout renseignement sur la maison ou sur les démarches à suivre. Maisons Bruno Petit MJB Châteauroux est là pour vous accompagner à toutes les étapes de l’achat.
Ardentes
TERRAIN ET MAISONArdentes : maison T3 (100 m²) en venteEn centre-ville – À Ardentes (36120), maison neuve à vendre de 3 pièces, 100 m² sur 650 m² de terrain. Son intérieur inclut deux chambres, une cuisine et deux salles de bains.À proximité : établissements scolaires, bibliothèque, tennis, commerces, boulangerie, supermarché, bureau de poste et épicerie. Marché Place Saint Martin le jeudi matin. Autoroute A20 et nationale N151 à 15 km. Châteauroux à 12 km.Le prix de vente de cette maison de 3 pièces est de 222 400 €.Contactez Franck RUBIO (tél : *6-30-49-64-43) pour toute information sur la maison. Maisons Bruno Petit MJB Châteauroux est là pour vous accompagner dans toutes vos démarches.
L’actualité immobilière à Ardentes
27/11/2023
02/11/2023
30/10/2023
20/10/2023
16/10/2023
16/10/2023