Maison à construire à Argenton-sur-Creuse (36200)
Images
Description
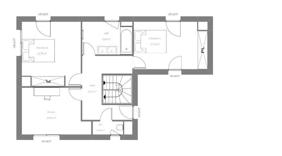
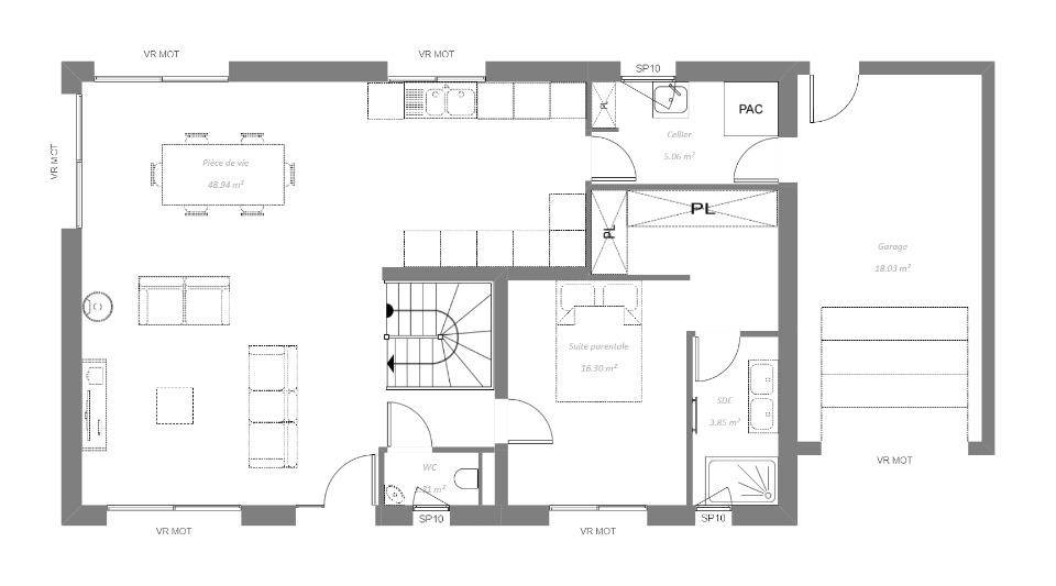
Maison F5 (120 m²) à vendre à Argenton-sur-Creuse
Idéalement située - À Argenton-sur-Creuse (36200), maison neuve en vente de 5 pièces, 2 niveaux, 120 m² de surface sur 570 m² de terrain. Elle inclut quatre chambres, une cuisine et deux salles de bains.
À proximité : gare (Argenton-sur-Creuse), établissements scolaires, bassin de natation, commerces, boulangeries, supermarchés, boucheries-charcuteries et épicerie. Marché Rue du Point du Jour le samedi matin. Autoroute A20 accessible à 3 km. Châteauroux à 29 km.
Cette maison de 5 pièces est à vendre pour la somme de 300 330 €.
Contactez notre agence (Kevin GRIMAUD : (Numéro supprimé)) pour toute information sur la maison ou sur les démarches à suivre. Maisons Bruno Petit MJB Châteauroux est là pour vous accompagner à toutes les étapes de l'achat.
Logement susceptibles de vous intéresser
Nous vous proposons de découvrir aussi cette sélection de logements situés à moins de 10km de Argenton-sur-Creuse et qui seraient susceptibles de vous intéresser.
Tendu
TERRAIN ET MAISONTendu : maison F4 (85 m²) en venteEmplacement privilégié – En vente à Tendu (36200) : maison neuve 4 pièces de 85 m² sur un terrain de 1 560 m². Elle offre trois chambres, une cuisine et une salle de bains.Proche gares (Chabenet, Lothiers et Argenton-sur-Creuse), écoles. Autoroute A20 accessible à 1 km. Châteauroux à 19 km.Cette maison de 4 pièces est à vendre pour la somme de 150 340 €.Prenez contact avec Kevin GRIMAUD ((Numéro supprimé)) pour tout renseignement sur la maison ou sur les démarches à suivre.
Tendu
TERRAIN ET MAISONVENTE : maison de 4 pièces (85 m²) à TenduEmplacement privilégié – À Tendu (36200), maison neuve en vente de 4 pièces, 85 m² de surface sur 1 560 m² de terrain. Son intérieur est composé de trois chambres, d’une cuisine et d’une salle de bains.À proximité : gares (Chabenet, Lothiers et Argenton-sur-Creuse), écoles. Accès autoroute A20 à 1 km. Châteauroux à 19 km.Cette maison de 4 pièces est proposée à l’achat pour 136 840 €.Prenez contact avec Kevin GRIMAUD (tél : (Numéro supprimé)) pour obtenir de plus amples renseignements sur la maison. Maisons Bruno Petit MJB Châteauroux est là pour vous accompagner dans toutes vos démarches.
Tendu
TERRAIN ET MAISONVENTE d’une maison de 5 pièces (83 m²) à TenduEmplacement privilégié – Maison neuve 5 pièces à vendre à Tendu (36200) avec une surface de 83 m² et de 1 560 m² de terrain. Son intérieur compte trois chambres, une cuisine et deux salles de bains.À proximité : gares (Chabenet, Lothiers et Argenton-sur-Creuse), écoles. Autoroute A20 à 1 km. Châteauroux à 19 km.Cette maison de 5 pièces est à vendre pour la somme de 188 740 €.N’hésitez pas à prendre contact avec Kevin GRIMAUD (tél : (Numéro supprimé)) pour tout renseignement sur la maison ou sur les démarches à suivre. Maisons Bruno Petit MJB Châteauroux vous accompagne dans tous vos projets immobiliers et dans toutes vos démarches.
Tendu
TERRAIN ET MAISONMaison de 6 pièces (110 m²) à vendre à TenduEmplacement privilégié – À découvrir à Tendu (36200) : maison neuve 6 pièces à vendre. Surface de 110 m² et 1 560 m² de terrain. Conçue de plain-pied, elle est composée de quatre chambres, d’une cuisine et de deux salles de bains.À proximité : gares (Chabenet, Lothiers et Argenton-sur-Creuse), écoles. Accès autoroute A20 à 1 km. Châteauroux à 19 km.Le prix de vente de cette maison de 6 pièces est de 204 490 €.Contactez notre agence (Kevin GRIMAUD : (Numéro supprimé)) pour obtenir de plus amples renseignements sur la maison de plain-pied.
Tendu
TERRAIN ET MAISONVENTE : maison de 6 pièces (140 m²) à TenduEmplacement privilégié – À Tendu (36200), maison neuve à vendre de 6 pièces, 140 m² sur 1 560 m² de terrain. Elle comporte quatre chambres, une cuisine et deux salles de bains.À dix minutes : gares (Chabenet, Lothiers et Argenton-sur-Creuse), écoles. Autoroute A20 à 1 km. Châteauroux à 19 km.Cette maison de 6 pièces est à vendre pour la somme de 321 240 €.Contactez notre agence (GRIMAUD Kevin : (Numéro supprimé)) pour tout renseignement sur la maison de plain-pied, sur les démarches à suivre ou sur les modalités de vente. Maisons Bruno Petit MJB Châteauroux est là pour vous accompagner dans tous vos projets immobiliers.
Tendu
TERRAINVENTE : terrain de 1 560 m² à TenduEmplacement privilégié – À vendre à Tendu (36200) : terrain de 1 560 m².À dix minutes : gares (Chabenet, Lothiers et Argenton-sur-Creuse), écoles. Accès autoroute A20 à 1 km. Châteauroux à 19 km.Il est proposé à l’achat pour 6 240 €. Prenez contact avec notre agence (GRIMAUD Kevin : (Numéro supprimé)) pour plus d’informations sur le terrain ou sur les démarches à suivre. Faites de vos projets immobiliers une réalité avec Maisons Bruno Petit MJB Châteauroux.
Tendu
TERRAIN ET MAISONVENTE d’une maison de 6 pièces (140 m²) à TenduEmplacement privilégié – À Tendu (36200), maison neuve en vente de 6 pièces, 2 niveaux, 140 m² de surface et 1 560 m² de terrain. Son intérieur dispose de cinq chambres, d’une cuisine et de deux salles de bains.Proche gares (Chabenet, Lothiers et Argenton-sur-Creuse), écoles. Autoroute A20 accessible à 1 km. Châteauroux à 19 km.Cette maison de 6 pièces est proposée à l’achat pour 356 840 €.Prenez contact avec Kevin GRIMAUD ((Numéro supprimé)) pour toute question sur la maison ou sur les modalités de vente. Maisons Bruno Petit MJB Châteauroux vous accompagne à toutes les étapes de l’achat et dans toutes vos démarches.
Tendu
TERRAIN ET MAISONMaison de 6 pièces (120 m²) en vente à TenduEmplacement privilégié – À Tendu (36200), maison neuve en vente de 6 pièces, 120 m² et 1 560 m² de terrain. Son intérieur dispose de quatre chambres, d’une cuisine et de deux salles de bains.Proche gares (Chabenet, Lothiers et Argenton-sur-Creuse), écoles. Autoroute A20 à 1 km. Châteauroux à 19 km.Le prix de vente de cette maison de 6 pièces est de 260 740 €.Contactez notre agence (GRIMAUD Kevin : (Numéro supprimé)) pour toute information sur la maison ou sur les démarches à suivre.
Argenton-sur-Creuse
TERRAIN ET MAISONVENTE d’une maison T4 (85 m²) à Argenton-sur-CreuseIdéalement située – À Argenton-sur-Creuse (36200), maison neuve en vente de 4 pièces, 85 m² sur 2 477 m² de terrain. Son intérieur dispose de trois chambres, d’une cuisine et d’une salle de bains.À proximité : gare (Argenton-sur-Creuse), établissements scolaires, bassin de natation, commerces, boulangeries, supermarchés, poissonnerie et boucheries-charcuteries. Marché Rue du Point du Jour le samedi matin. Autoroute A20 à 3 km. Châteauroux à 29 km.Le prix de vente de cette maison de 4 pièces est de 158 450 €.Contactez notre agence (RUBIO Franck : (Numéro supprimé)) pour toute information sur la maison de plain-pied.
L’actualité immobilière à Argenton-sur-Creuse
27/11/2023
02/11/2023
30/10/2023
20/10/2023
16/10/2023
16/10/2023