Maison à construire à Châteauroux (36000)
Images
Description
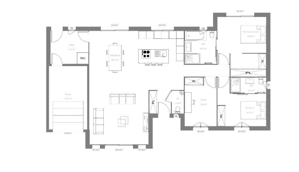
VENTE d'une maison F4 (110 m²) à Châteauroux
Quartier recherché -  Maison neuve 4 pièces en vente à Châteauroux (36000) avec une surface de 110 m² sur un terrain de 978 m². Elle offre trois chambres, une cuisine et deux salles de bains.
À proximité : gare (Châteauroux), établissements scolaires, crèche, bibliothèque, boulangeries, commerces, supermarchés, boucheries-charcuteries et épiceries. Accès autoroute A20 et nationale N151 à 5 km.
Cette maison de 4 pièces est à vendre pour la somme de 260 780 €.
Contactez notre agence (GRIMAUD Kevin : (Numéro supprimé)) pour toute information sur la maison, sur les démarches à suivre ou sur les modalités de vente. Concrétisez vos projets immobiliers avec Maisons Bruno Petit MJB Châteauroux.
Logement susceptibles de vous intéresser
Nous vous proposons de découvrir aussi cette sélection de logements situés à moins de 10km de Châteauroux et qui seraient susceptibles de vous intéresser.
 
  
 
 Le Poinçonnet
TERRAIN ET MAISONVENTE : maison F5 (200 m²) au PoinçonnetEmplacement privilégié – Maison neuve 5 pièces en vente au Poinçonnet (36330) avec 2 niveaux, une surface de 200 m² sur un terrain de 1 120 m². Son intérieur propose quatre chambres, une cuisine et deux salles de bains.À dix minutes : gare (Châteauroux), écoles, tennis, boulangeries, commerces, boucheries-charcuteries, bureau de poste et épicerie. Accès autoroute A20 et nationale N151 à 8 km. Châteauroux à 6 km.Le prix de vente de cette maison de 5 pièces est de 536 700 €.Prenez contact avec Thomas MANIERE ((Numéro supprimé)) pour plus d’informations sur la maison, sur les démarches à suivre ou sur les modalités de vente. Maisons Bruno Petit MJB Châteauroux est là pour vous accompagner à toutes les étapes de votre projet.
 
  
 
 Déols
TERRAIN ET MAISONDéols : maison T4 (85 m²) en venteProche de Châteauroux – À Déols (36130), maison neuve en vente de 4 pièces, 85 m² de surface sur 560 m² de terrain. Elle comporte trois chambres, une cuisine et une salle de bains.À dix minutes : gare (Châteauroux), établissements scolaires, tennis, bassin de natation, boulangeries, commerces, supermarché, boucheries-charcuteries et bureau de poste. Autoroute A20 et nationale N151 accessibles à 3 km.Cette maison de 4 pièces est proposée à l’achat pour 178 100 €.Prenez contact avec Thomas MANIERE ((Numéro supprimé)) pour plus de renseignements sur la maison ou sur les modalités de vente. Maisons Bruno Petit MJB Châteauroux est là pour vous accompagner à toutes les étapes de l’achat.
 
  
 
 Le Poinçonnet
TERRAIN ET MAISONMaison F4 (85 m²) à vendre au PoinçonnetEmplacement privilégié – À vendre au Poinçonnet (36330) : maison neuve 4 pièces de 85 m² sur un terrain de 1 120 m². Conçue de plain-pied, elle offre trois chambres, une cuisine et une salle de bains.À proximité : gare (Châteauroux), écoles, tennis, boulangeries, commerces, bureau de poste, épicerie et boucheries-charcuteries. Accès autoroute A20 et nationale N151 à 8 km. Châteauroux à 6 km.Le prix de vente de cette maison de 4 pièces est de 204 100 €.Contactez notre agence (Thomas MANIERE : (Numéro supprimé)) pour tout renseignement sur la maison ou sur les démarches à suivre.
 
  
 
 Diors
TERRAIN ET MAISONVENTE : maison de 4 pièces (85 m²) à DiorsEmplacement privilégié – Maison neuve 4 pièces en vente à Diors (36130) avec une surface de 85 m² et de 525 m² de terrain. Conçue de plain-pied, elle est composée de trois chambres, d’une cuisine et d’une salle de bains.À dix minutes : gares (Neuvy-Pailloux et Châteauroux), établissements scolaires, crèche, marchés, tennis, bibliothèques, bassins de natation, boulangeries, commerces, supermarchés, bureaux de poste et boucheries-charcuteries. Accès autoroute A20 et nationale N151 à 10 km. Châteauroux à 10 km.Le prix de vente de cette maison de 4 pièces est de 171 600 €.Contactez Thomas MANIERE (tél : (Numéro supprimé)) pour toute information sur la maison. Donnez vie à vos projets immobiliers avec Maisons Bruno Petit MJB Châteauroux.
 
  
 
 Déols
TERRAIN ET MAISONVENTE d’une maison T4 (85 m²) à DéolsProche de Châteauroux – Maison neuve 4 pièces à vendre à Déols (36130) avec une surface de 85 m² sur un terrain de 560 m². Son intérieur dispose de trois chambres, d’une cuisine et d’une salle de bains.Proche gare (Châteauroux), établissements scolaires, tennis, bassin de natation, boulangeries, commerces, supermarché, épicerie et boucheries-charcuteries. Accès autoroute A20 et nationale N151 à 3 km.Le prix de vente de cette maison de 4 pièces est de 175 950 €.Prenez contact avec Thomas MANIERE ((Numéro supprimé)) pour plus de renseignements sur la maison. Maisons Bruno Petit MJB Châteauroux est là pour vous accompagner à toutes les étapes de l’achat.
 
  
 
 Le Poinçonnet
TERRAIN ET MAISONLe Poinçonnet : maison T4 (85 m²) à vendreEmplacement privilégié – À découvrir au Poinçonnet (36330) : maison neuve 4 pièces à vendre. Surface de 85 m² et 1 120 m² de terrain. Conçue de plain-pied, elle se divise en trois chambres, une cuisine et une salle de bains.À proximité : gare (Châteauroux), écoles, tennis, boulangeries, commerces, bureau de poste, épicerie et boucheries-charcuteries. Accès autoroute A20 et nationale N151 à 8 km. Châteauroux à 6 km.Le prix de vente de cette maison de 4 pièces est de 201 950 €.N’hésitez pas à prendre contact avec notre agence (Thomas MANIERE : (Numéro supprimé)) pour toute question sur la maison. Donnez vie à vos projets immobiliers avec Maisons Bruno Petit MJB Châteauroux.
 
  
 
 Diors
TERRAIN ET MAISONDiors : maison T4 (85 m²) à vendreEmplacement privilégié – À découvrir à Diors (36130) : maison neuve 4 pièces à vendre, 85 m² de surface sur 525 m² de terrain. Elle offre trois chambres, une cuisine et une salle de bains.À dix minutes : gares (Neuvy-Pailloux et Châteauroux), établissements scolaires, crèche, marchés, tennis, bibliothèques, bassins de natation, boulangeries, commerces, supermarchés, épiceries et bureaux de poste. Accès autoroute A20 et nationale N151 à 10 km. Châteauroux à 10 km.Le prix de vente de cette maison de 4 pièces est de 169 450 €.Contactez notre agence (MANIERE Thomas : (Numéro supprimé)) pour tout renseignement sur la maison, sur les modalités de vente ou sur les démarches à suivre.
 
  
 
 Déols
TERRAIN ET MAISONMaison F4 (85 m²) en vente à DéolsProche de Châteauroux – À vendre à Déols (36130) : maison neuve 4 pièces de 85 m² et de 560 m² de terrain. Son intérieur offre trois chambres, une cuisine et une salle de bains.À proximité : gare (Châteauroux), établissements scolaires, tennis, bassin de natation, boulangeries, commerces, supermarché, boucheries-charcuteries et épicerie. Accès autoroute A20 et nationale N151 à 3 km.Cette maison de 4 pièces est proposée à l’achat pour 164 600 €.Contactez notre agence (Thomas MANIERE : (Numéro supprimé)) pour toute information sur la maison de plain-pied. Maisons Bruno Petit MJB Châteauroux est là pour vous accompagner dans tous vos projets immobiliers.
 
  
 
 Diors
TERRAIN ET MAISONVENTE d’une maison T4 (85 m²) à DiorsEmplacement privilégié – À Diors (36130), maison neuve en vente de 4 pièces, 85 m² sur 525 m² de terrain. Elle inclut trois chambres, une cuisine et une salle de bains.Proche gares (Neuvy-Pailloux et Châteauroux), établissements scolaires, crèche, marchés, tennis, bibliothèques, bassins de natation, boulangeries, commerces, supermarchés, épiceries et bureaux de poste. Accès autoroute A20 et nationale N151 à 10 km. Châteauroux à 10 km.Cette maison de 4 pièces est à vendre pour la somme de 158 100 €.Contactez Thomas MANIERE (tél : (Numéro supprimé)) pour tout renseignement sur la maison de plain-pied ou sur les démarches à suivre.
L’actualité immobilière à Châteauroux
 27/11/2023
 
 27/11/2023
 
  02/11/2023
 
 02/11/2023
 
  30/10/2023
 
 30/10/2023
 
  20/10/2023
 
 20/10/2023
 
  16/10/2023
 
 16/10/2023
 
  16/10/2023
 
 16/10/2023
 
  
 
 
 
 
 
  
  
  
  
 