Maison à construire à Châteauroux (36000)
Images
Description
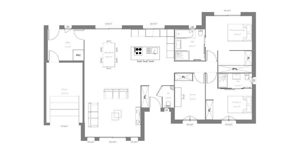
VENTE : maison F4 (110 m²) à Châteauroux
Emplacement privilégié - À découvrir à Châteauroux (36000) : maison neuve 4 pièces en vente. Surface de 110 m² et 2 300 m² de terrain. Son intérieur propose trois chambres, une cuisine et deux salles de bains.
À proximité : gare (Châteauroux), établissements scolaires, crèche, bibliothèque, boulangeries, commerces, supermarchés, bureau de poste et boucheries-charcuteries. Autoroute A20 et nationale N151 à 5 km.
Cette maison de 4 pièces est à vendre pour la somme de 267 100 €.
N'hésitez pas à prendre contact avec Franck RUBIO (tél : (Numéro supprimé)) pour plus de renseignements sur la maison ou sur les modalités de vente.
Logement susceptibles de vous intéresser
Nous vous proposons de découvrir aussi cette sélection de logements situés à moins de 10km de Châteauroux et qui seraient susceptibles de vous intéresser.
Le Poinçonnet
TERRAIN ET MAISONMaison F4 (90 m²) à vendre au PoinçonnetEmplacement privilégié – Au Poinçonnet (36330), maison neuve en vente de 4 pièces, 90 m² de surface sur 780 m² de terrain. Elle comporte trois chambres, une cuisine et une salle de bains.À proximité : gare (Châteauroux), écoles, tennis, boulangeries, commerces, épicerie, bureau de poste et boucheries-charcuteries. Autoroute A20 et nationale N151 accessibles à 8 km. Châteauroux à 6 km.Le prix de vente de cette maison de 4 pièces est de 203 950 €.Contactez notre agence (Franck RUBIO : (Numéro supprimé)) pour tout renseignement sur la maison. Maisons Bruno Petit MJB Châteauroux vous accompagne à toutes les étapes de l’achat et dans tous vos projets immobiliers.
Châteauroux
TERRAIN ET MAISONVENTE d’une maison T6 (176 m²) à ChâteaurouxEmplacement privilégié – À vendre à Châteauroux (36000) : maison neuve 6 pièces de 176 m² sur un terrain de 2 300 m². Elle inclut six chambres, une cuisine et deux salles de bains.Proche gare (Châteauroux), établissements scolaires, crèche, bibliothèque, boulangeries, commerces, supermarchés, boucheries-charcuteries et épiceries. Autoroute A20 et nationale N151 accessibles à 5 km.Cette maison de 6 pièces est à vendre pour la somme de 410 000 €.N’hésitez pas à prendre contact avec notre agence (RUBIO Franck : *6-30-49-64-43) pour toute question sur la maison, sur les modalités de vente ou sur les démarches à suivre. Maisons Bruno Petit MJB Châteauroux vous accompagne à toutes les étapes de votre projet et dans tous vos projets immobiliers.
Le Poinçonnet
TERRAIN ET MAISONLe Poinçonnet : maison de 4 pièces (95 m²) en venteEmplacement privilégié – À découvrir au Poinçonnet (36330) : maison neuve 4 pièces à vendre, 95 m² de surface et 780 m² de terrain. Elle compte trois chambres, une cuisine et deux salles de bains.À proximité : gare (Châteauroux), écoles, tennis, boulangeries, commerces, épicerie, boucheries-charcuteries et bureau de poste. Accès autoroute A20 et nationale N151 à 8 km. Châteauroux à 6 km.Le prix de vente de cette maison de 4 pièces est de 226 000 €.Contactez notre agence (RUBIO Franck : (Numéro supprimé)) pour toute information sur la maison, sur les modalités de vente ou sur les démarches à suivre.
Châteauroux
TERRAIN ET MAISONVENTE : maison T6 (176 m²) à ChâteaurouxIdéalement située – À Châteauroux (36000), maison neuve en vente de 6 pièces, 2 niveaux, 176 m² sur 780 m² de terrain. Elle offre six chambres, une cuisine et deux salles de bains.À proximité : gare (Châteauroux), établissements scolaires, crèche, bibliothèque, boulangeries, commerces, supermarchés, bureau de poste et boucheries-charcuteries. Autoroute A20 et nationale N151 accessibles à 5 km.Le prix de vente de cette maison de 6 pièces est de 390 000 €.N’hésitez pas à prendre contact avec Franck RUBIO (tél : *6-30-49-64-43) pour toute question sur la maison ou sur les modalités de vente. Faites de vos projets immobiliers une réalité avec Maisons Bruno Petit MJB Châteauroux.
Châteauroux
TERRAIN ET MAISONMaison F6 (176 m²) à vendre à ChâteaurouxEmplacement privilégié – À Châteauroux (36000), maison neuve en vente de 6 pièces, 2 niveaux, 176 m² et 890 m² de terrain. Elle dispose de six chambres, d’une cuisine et de deux salles de bains.À dix minutes : gare (Châteauroux), établissements scolaires, crèche, bibliothèque, boulangeries, commerces, supermarchés, épiceries et boucheries-charcuteries. Autoroute A20 et nationale N151 à 5 km.Le prix de vente de cette maison de 6 pièces est de 395 730 €.Contactez notre agence (RUBIO Franck : *6-30-49-64-43) pour tout renseignement sur la maison. Maisons Bruno Petit MJB Châteauroux vous accompagne dans tous vos projets immobiliers et à toutes les étapes de votre projet.
Le Poinçonnet
TERRAIN ET MAISONVENTE : maison de 4 pièces (108 m²) au PoinçonnetEmplacement privilégié – À découvrir au Poinçonnet (36330) : maison neuve 4 pièces en vente, 108 m² sur 780 m² de terrain. Conçue de plain-pied, elle inclut quatre chambres, une cuisine et une salle de bains.À dix minutes : gare (Châteauroux), écoles, tennis, boulangeries, commerces, boucheries-charcuteries, bureau de poste et épicerie. Autoroute A20 et nationale N151 à 8 km. Châteauroux à 6 km.Le prix de vente de cette maison de 4 pièces est de 246 800 €.Contactez Franck RUBIO ((Numéro supprimé)) pour tout renseignement sur la maison de plain-pied. Maisons Bruno Petit MJB Châteauroux est là pour vous accompagner dans toutes vos démarches.
Le Poinçonnet
TERRAIN ET MAISONMaison de 6 pièces (176 m²) à vendre au PoinçonnetEmplacement privilégié – À découvrir au Poinçonnet (36330) : maison neuve 6 pièces en vente, 2 niveaux, 176 m² de surface et 761 m² de terrain. Son intérieur dispose de six chambres, d’une cuisine et de deux salles de bains.Proche gare (Châteauroux), écoles, tennis, boulangeries, commerces, épicerie, boucheries-charcuteries et bureau de poste. Autoroute A20 et nationale N151 accessibles à 8 km. Châteauroux à 6 km.Cette maison de 6 pièces est proposée à l’achat pour 408 350 €.Prenez contact avec Franck RUBIO (tél : *6-30-49-64-43) pour toute information sur la maison. Maisons Bruno Petit MJB Châteauroux est là pour vous accompagner à toutes les étapes de votre projet.
Châteauroux
TERRAIN ET MAISONMaison de 6 pièces (176 m²) à vendre à ChâteaurouxIdéalement située – En vente à Châteauroux (36000) : maison neuve 6 pièces de 176 m² et de 971 m² de terrain. Elle propose six chambres, une cuisine et deux salles de bains.À proximité : gare (Châteauroux), établissements scolaires, crèche, bibliothèque, boulangeries, commerces, supermarchés, bureau de poste et boucheries-charcuteries. Accès autoroute A20 et nationale N151 à 5 km.Le prix de vente de cette maison de 6 pièces est de 408 115 €.N’hésitez pas à prendre contact avec notre agence (RUBIO Franck : *6-30-49-64-43) pour obtenir de plus amples informations sur la maison, sur les démarches à suivre ou sur les modalités de vente. Maisons Bruno Petit MJB Châteauroux vous accompagne dans tous vos projets immobiliers et à toutes les étapes de votre projet.
Châteauroux
TERRAIN ET MAISONMaison de 5 pièces (110 m²) à vendre à ChâteaurouxEmplacement privilégié – À vendre à Châteauroux (36000) : maison neuve 5 pièces de 110 m² et de 1 125 m² de terrain. Son intérieur offre quatre chambres, une cuisine et deux salles de bains.À proximité : gare (Châteauroux), établissements scolaires, crèche, bibliothèque, boulangeries, commerces, supermarchés, bureau de poste et épiceries. Autoroute A20 et nationale N151 à 5 km.Cette maison de 5 pièces est proposée à l’achat pour 299 500 €.N’hésitez pas à prendre contact avec Kevin GRIMAUD (*6-22-14-89-67) pour plus d’informations sur la maison. Faites de vos projets immobiliers une réalité avec Maisons Bruno Petit MJB Châteauroux.
L’actualité immobilière à Châteauroux
27/11/2023
02/11/2023
30/10/2023
20/10/2023
16/10/2023
16/10/2023