Maison à construire à Le Magny (36400)
Images
Description
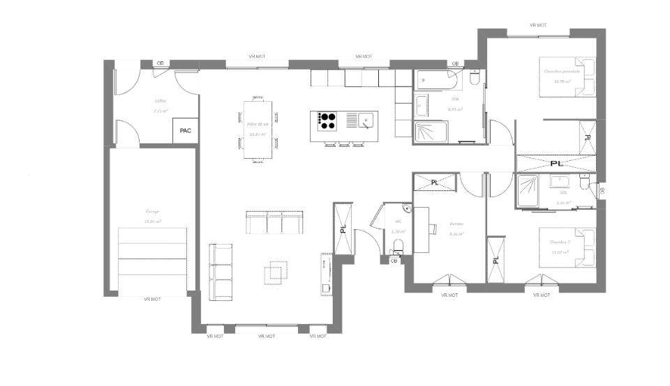
Le Magny : maison F4 (110 m²) à vendre
Quartier recherché - Au Magny (36400), maison neuve à vendre de 4 pièces, 110 m² sur 600 m² de terrain. Conçue de plain-pied, elle compte trois chambres, une cuisine et deux salles de bains.
Proche École Primaire Jean Moulin.
Cette maison de 4 pièces est à vendre pour la somme de 214 340 €.
Contactez Kevin GRIMAUD (tél : (Numéro supprimé)) pour toute information sur la maison de plain-pied ou sur les modalités de vente.
Logement susceptibles de vous intéresser
Nous vous proposons de découvrir aussi cette sélection de logements situés à moins de 10km de Le Magny et qui seraient susceptibles de vous intéresser.
La Châtre
TERRAINUn terrain de plus de trois hectares de surface prêt à être profité pour un amoureux de la nature et du calme.Le prix est de 15000euros charges vendeur comprises.Situé l’ensemble de 5 parcelles dont 3 parcelles sont à La Chatre (36400) de nature terre et deux à Nouziers (23350) de nature jardin. Faisons 3 hectares la totalité.Désignation : Parcelles en nature de pacage et terre, avec un ruisseau qui traverse le terrain et une parcelle en jardin, nature de terre « La foret du temple »Non soumis au DPE.Pour visiter et vous accompagner dans votre projet, contactez Lucia ESCOTO, au (Numéro supprimé) ou, par courriel à (Email supprimé).Selon l’article L.561.5 du Code Monétaire et Financier, pour l’organisation de la visite, la présentation d’une pièce d’identité vous sera demandée.Cette présente annonce a été rédigée sous la responsabilité éditoriale de Lucia ESCOTO agissant sous le statut d’agent commercial immatriculé au RSAC 983659418 auprès de SAS PROPRIETES PRIVEES, au capital de 44 920 euros, ZAC LE CHÊNE FERRÉ – 44 ALLÉE DES CINQ CONTINENTS 44120 VERTOU; SIRET 487 624 777 00040, RCS Nantes. Carte Professionnelle Transactions sur immeubles et fonds de commerce (T) et Gestion immobilière (G) n°CPI 4401 2016 000 010 388 délivrée par la CCI Nantes – Saint Nazaire. Compte séquestre n(Numéro supprimé)67 BPA SAINT-SEBASTIEN-SUR-LOIRE (44230). Garantie GALIAN-SMABTP – 89 rue de la Boétie, 75008 Paris – n°28137 J pour 2 000 000 euros pour T et 120 000 euros pour G. Assurance responsabilité civile professionnelle par GALIAN-SMABTP n° de police 28137.JMandat réf : 426879. – Le professionnel garantit et sécurise votre projet immobilier. Lucia ESCOTO (EI) Agent Commercial – Numéro RSAC : 983659418 – .
La Châtre
TERRAIN ET MAISONMaison T6 (120 m²) à vendre à La ChâtreIdéalement située – À découvrir à La Châtre (36400) : maison neuve 6 pièces en vente. Surface de 120 m² et 2 205 m² de terrain. Son intérieur est composé de quatre chambres, d’une cuisine et de deux salles de bains.À dix minutes : établissements scolaires, crèche, bassin de natation, tennis, bibliothèque, boulangeries, commerces, supermarchés, épicerie et boucheries-charcuteries.Cette maison de 6 pièces est à vendre pour la somme de 290 460 €.Prenez contact avec notre agence (RUBIO Franck : (Numéro supprimé)) pour toute information sur la maison de plain-pied.
La Châtre
TERRAIN ET MAISONVENTE d’une maison de 6 pièces (176 m²) à La ChâtreIdéalement située – Maison neuve 6 pièces à vendre à La Châtre (36400) avec 2 niveaux, une surface de 176 m² et de 2 103 m² de terrain. Son intérieur est composé de six chambres, d’une cuisine et de deux salles de bains.Proche établissements scolaires, crèche, bassin de natation, tennis, bibliothèque, boulangeries, commerces, supermarchés, bureau de poste et boucheries-charcuteries.Le prix de vente de cette maison de 6 pièces est de 380 960 €.Prenez contact avec Franck RUBIO (tél : *6-30-49-64-43) pour toute question sur la maison, sur les démarches à suivre ou sur les modalités de vente.
La Châtre
TERRAIN ET MAISONMaison F4 (110 m²) à vendre à La ChâtreIdéalement située – Maison neuve 4 pièces à vendre à La Châtre (36400) avec une surface de 110 m² et de 2 205 m² de terrain. Son intérieur est composé de trois chambres, d’une cuisine et de deux salles de bains. Vue sur un jardin.À proximité : établissements scolaires, crèche, bassin de natation, tennis, bibliothèque, boulangeries, commerces, supermarchés, boucheries-charcuteries et bureau de poste.Le prix de vente de cette maison de 4 pièces est de 242 360 €.Prenez contact avec notre agence (RUBIO Franck : (Numéro supprimé)) pour plus de renseignements sur la maison, sur les modalités de vente ou sur les démarches à suivre. Maisons Bruno Petit MJB Châteauroux est là pour vous accompagner à toutes les étapes de l’achat.
La Châtre
TERRAIN ET MAISONVENTE : maison T4 (110 m²) à La ChâtreIdéalement située – À vendre à La Châtre (36400) : maison neuve 4 pièces de 110 m² sur un terrain de 2 205 m². Elle compte trois chambres, une cuisine et deux salles de bains.À dix minutes : établissements scolaires, crèche, bassin de natation, tennis, bibliothèque, boulangeries, commerces, supermarchés, épicerie et boucheries-charcuteries.Cette maison de 4 pièces est proposée à l’achat pour 238 060 €.Prenez contact avec Franck RUBIO ((Numéro supprimé)) pour toute information sur la maison ou sur les modalités de vente. Maisons Bruno Petit MJB Châteauroux est là pour vous accompagner à toutes les étapes de l’achat.
La Châtre
TERRAINTerrain de 2 205 m² en vente à La ChâtreIdéalement situé – À La Châtre (36400) : réalisez votre projet sur ce terrain de 2 205 m².À proximité : établissements scolaires, crèche, bassin de natation, tennis, bibliothèque, boulangeries, commerces, supermarchés, épicerie et boucheries-charcuteries.Il est à vendre pour la somme de 35 960 €. N’hésitez pas à prendre contact avec notre agence (Franck RUBIO : (Numéro supprimé)) pour tout renseignement sur le terrain et sur les démarches à suivre.
La Châtre
TERRAIN ET MAISONVENTE d’une maison F4 (110 m²) à La ChâtreIdéalement située – À La Châtre (36400), maison neuve en vente de 4 pièces, 110 m² de surface et 2 205 m² de terrain. Elle compte trois chambres, une cuisine et deux salles de bains.À dix minutes : établissements scolaires, crèche, bassin de natation, tennis, bibliothèque, boulangeries, commerces, supermarchés, boucheries-charcuteries et bureau de poste.Le prix de vente de cette maison de 4 pièces est de 325 960 €.N’hésitez pas à prendre contact avec Franck RUBIO (tél : (Numéro supprimé)) pour plus d’informations sur la maison ou sur les démarches à suivre.
La Châtre
TERRAIN ET MAISONVENTE : maison de 6 pièces (120 m²) à La ChâtreIdéalement située – À La Châtre (36400), maison neuve à vendre de 6 pièces, 120 m² de surface et 2 205 m² de terrain. Son intérieur propose quatre chambres, une cuisine et deux salles de bains.À proximité : établissements scolaires, crèche, bassin de natation, tennis, bibliothèque, boulangeries, commerces, supermarchés, bureau de poste et boucheries-charcuteries.Le prix de vente de cette maison de 6 pièces est de 290 960 €.Prenez contact avec notre agence (Franck RUBIO : (Numéro supprimé)) pour tout renseignement sur la maison. Concrétisez vos projets immobiliers avec Maisons Bruno Petit MJB Châteauroux.
La Châtre
TERRAIN ET MAISONVENTE d’une maison de 4 pièces (95 m²) à La ChâtreIdéalement située – Maison neuve 4 pièces en vente à La Châtre (36400) avec une surface de 95 m² sur un terrain de 2 103 m². Conçue de plain-pied, elle dispose de trois chambres, d’une cuisine et de deux salles de bains. Vue dégagée.Proche établissements scolaires, crèche, bassin de natation, tennis, bibliothèque, boulangeries, commerces, supermarchés, bureau de poste et boucheries-charcuteries.Cette maison de 4 pièces est à vendre pour la somme de 199 960 €.N’hésitez pas à prendre contact avec Franck RUBIO (tél : (Numéro supprimé)) pour obtenir de plus amples informations sur la maison de plain-pied ou sur les modalités de vente.
L’actualité immobilière à Le Magny
27/11/2023
02/11/2023
30/10/2023
20/10/2023
16/10/2023
16/10/2023