Maison à construire à Le Magny (36400)
Images
Description
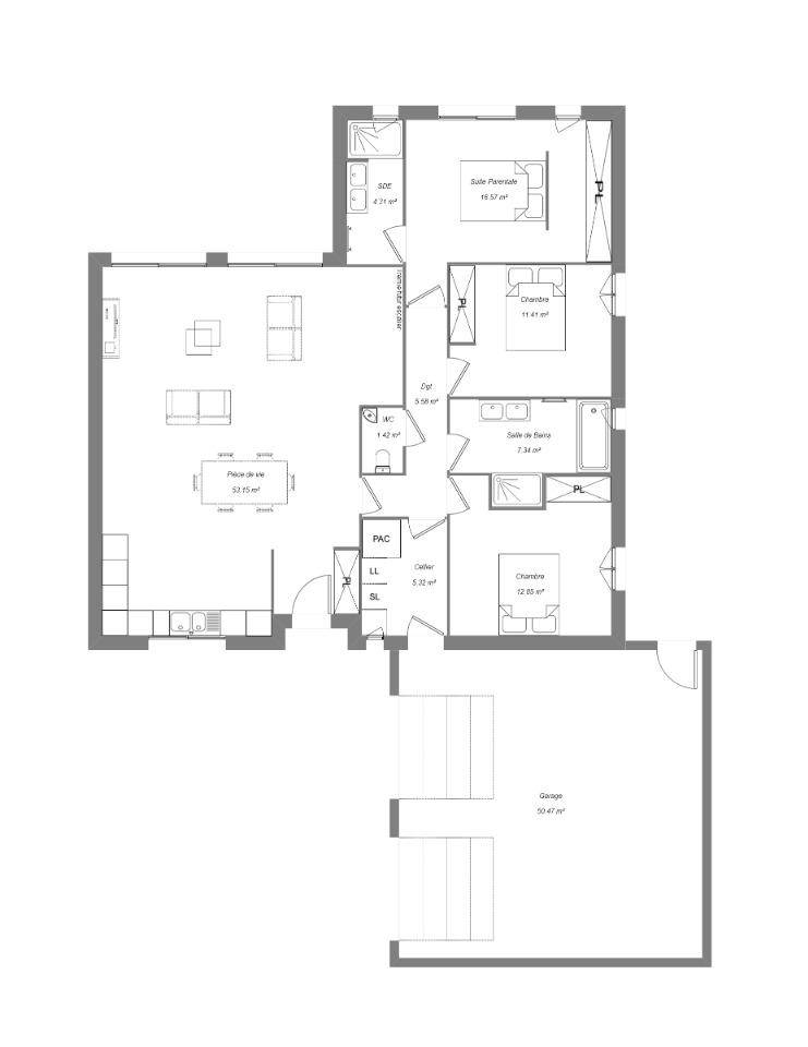
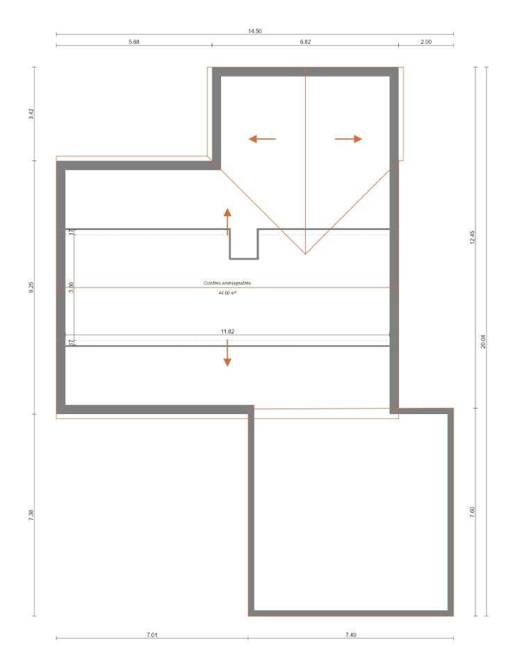
Maison de 4 pièces (110 m²) en vente au Magny
Maison neuve 4 pièces à vendre au Magny (36400) avec une surface de 110 m² sur un terrain de 1 004 m². Conçue de plain-pied, elle est composée de trois chambres, d'une cuisine et de deux salles de bains.
Proche École Primaire Jean Moulin.
Cette maison de 4 pièces est proposée à l'achat pour 317 600 €.
Prenez contact avec Franck RUBIO ((Numéro supprimé)) pour obtenir de plus amples informations sur la maison ou sur les modalités de vente. Maisons Bruno Petit MJB Châteauroux est là pour vous accompagner à toutes les étapes de l'achat.
Logement susceptibles de vous intéresser
Nous vous proposons de découvrir aussi cette sélection de logements situés à moins de 10km de Le Magny et qui seraient susceptibles de vous intéresser.
 
  
 
 Le Magny
TERRAIN ET MAISONMaison F4 (85 m²) en vente au MagnyIdéalement située – À découvrir au Magny (36400) : maison neuve 4 pièces en vente. Surface de 85 m² sur 1 230 m² de terrain. Conçue de plain-pied, elle est composée de trois chambres, d’une cuisine et d’une salle de bains.À dix minutes : École Primaire Jean Moulin.Le prix de vente de cette maison de 4 pièces est de 163 950 €.N’hésitez pas à prendre contact avec notre agence (Thomas MANIERE : (Numéro supprimé)) pour obtenir de plus amples renseignements sur la maison, sur les démarches à suivre ou sur les modalités de vente. Faites de vos projets immobiliers une réalité avec Maisons Bruno Petit MJB Châteauroux.
 
  
 
 Le Magny
TERRAIN ET MAISONVENTE : maison F4 (85 m²) au MagnyIdéalement située – En vente au Magny (36400) : maison neuve 4 pièces de 85 m² sur un terrain de 1 230 m². Conçue de plain-pied, elle se divise en trois chambres, une cuisine et une salle de bains.À proximité : École Primaire Jean Moulin.Cette maison de 4 pièces est à vendre pour la somme de 152 600 €.Prenez contact avec Thomas MANIERE ((Numéro supprimé)) pour toute question sur la maison. Maisons Bruno Petit MJB Châteauroux est là pour vous accompagner dans toutes vos démarches.
 
  
 
 Le Magny
TERRAIN ET MAISONVENTE : maison F5 (100 m²) au MagnyIdéalement située – En vente au Magny (36400) : maison neuve 5 pièces de 100 m² sur un terrain de 1 230 m². Elle comporte trois chambres, une cuisine et deux salles de bains.À dix minutes : École Primaire Jean Moulin.Le prix de vente de cette maison de 5 pièces est de 183 700 €.Prenez contact avec notre agence (MANIERE Thomas : (Numéro supprimé)) pour tout renseignement sur la maison. Donnez vie à vos projets immobiliers avec Maisons Bruno Petit MJB Châteauroux.
 
  
 
 Le Magny
TERRAINTerrain de 1 230 m² à vendre au MagnyIdéalement situé – Au Magny (36400) : projetez-vous sur ce terrain à vendre de 1 230 m².Proche École Primaire Jean Moulin.Il est à vendre pour la somme de 22 000 €. Contactez notre agence (Thomas MANIERE : (Numéro supprimé)) pour tout renseignement sur le terrain, sur les démarches à suivre ou sur les modalités de vente. Maisons Bruno Petit MJB Châteauroux vous accompagne dans tous vos projets immobiliers et à toutes les étapes de l’achat.
 
  
 
 Le Magny
TERRAIN ET MAISONVENTE d’une maison T1 (100 m²) au MagnyIdéalement située – Au Magny (36400), maison neuve à vendre de 1 pièce, 100 m² de surface sur 1 230 m² de terrain. Son intérieur compte une chambre, une cuisine et une salle de bains.Proche École Primaire Jean Moulin.Cette maison 1 pièce est proposée à l’achat pour 173 700 €.Contactez Thomas MANIERE ((Numéro supprimé)) pour tout renseignement sur la maison, sur les démarches à suivre ou sur les modalités de vente. Maisons Bruno Petit MJB Châteauroux est là pour vous accompagner à toutes les étapes de votre projet.
 
  
 
 Le Magny
TERRAIN ET MAISONVENTE d’une maison F3 (100 m²) au MagnyIdéalement située – Maison neuve 3 pièces à vendre au Magny (36400) avec une surface de 100 m² et de 1 230 m² de terrain. Conçue de plain-pied, elle inclut deux chambres, une cuisine et deux salles de bains.À dix minutes : École Primaire Jean Moulin.Le prix de vente de cette maison de 3 pièces est de 219 400 €.N’hésitez pas à prendre contact avec Thomas MANIERE ((Numéro supprimé)) pour obtenir de plus amples informations sur la maison, sur les démarches à suivre ou sur les modalités de vente. Maisons Bruno Petit MJB Châteauroux vous accompagne à toutes les étapes de l’achat et dans tous vos projets immobiliers.
 
  
 
 Le Magny
TERRAIN ET MAISONMaison T6 (160 m²) à vendre au MagnyIdéalement située – Maison neuve 6 pièces en vente au Magny (36400) avec 2 niveaux, une surface de 160 m² sur un terrain de 1 230 m². Elle offre trois chambres, une cuisine et deux salles de bains.Proche École Primaire Jean Moulin.Cette maison de 6 pièces est à vendre pour la somme de 363 700 €.Contactez notre agence (Thomas MANIERE : (Numéro supprimé)) pour plus d’informations sur la maison ou sur les modalités de vente. Faites de vos projets immobiliers une réalité avec Maisons Bruno Petit MJB Châteauroux.
 
  
 
 Saint-Denis-de-Jouhet
TERRAIN ET MAISONVENTE : maison de 4 pièces (118 m²) à Saint-Denis-de-JouhetIdéalement située – À vendre à Saint-Denis-de-Jouhet (36230) : maison neuve 4 pièces de 118 m² et de 895 m² de terrain. Conçue de plain-pied, elle offre quatre chambres, une cuisine et deux salles de bains.À dix minutes : écoles, tennis, boulangerie, boucherie-charcuterie et épicerie.Cette maison de 4 pièces est proposée à l’achat pour 242 470 €.Contactez Franck RUBIO ((Numéro supprimé)) pour obtenir de plus amples renseignements sur la maison ou sur les démarches à suivre.
 
  
 
 Saint-Denis-de-Jouhet
TERRAIN ET MAISONSaint-Denis-de-Jouhet : maison de 4 pièces (118 m²) à vendreIdéalement située – En vente à Saint-Denis-de-Jouhet (36230) : maison neuve 4 pièces de 118 m² et de 895 m² de terrain. Son intérieur dispose de quatre chambres, d’une cuisine et de deux salles de bains.À proximité : écoles, tennis, boulangerie, boucherie-charcuterie et épicerie.Le prix de vente de cette maison de 4 pièces est de 232 950 €.N’hésitez pas à prendre contact avec notre agence (RUBIO Franck : (Numéro supprimé)) pour toute information sur la maison, sur les démarches à suivre ou sur les modalités de vente.
L’actualité immobilière à Le Magny
 27/11/2023
 
 27/11/2023
 
  02/11/2023
 
 02/11/2023
 
  30/10/2023
 
 30/10/2023
 
  20/10/2023
 
 20/10/2023
 
  16/10/2023
 
 16/10/2023
 
  16/10/2023
 
 16/10/2023
 
  
 
 
 
 
 
  
  
  
  
 