Maison à construire à Le Menoux (36200)
Images
Description
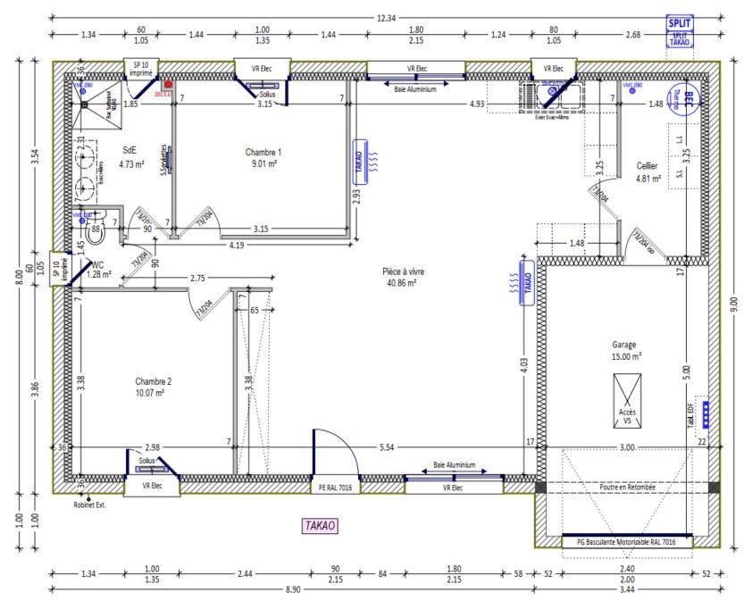
VENTE d'une maison de 3 pièces (70 m²) au Menoux
Proche de Châteauroux - À découvrir au Menoux (36200) : maison neuve 3 pièces en vente, 70 m² sur 1 382 m² de terrain. Elle comporte deux chambres, une cuisine et une salle de bains.
Proche gares (Argenton-sur-Creuse et Chabenet), École Élémentaire François Hervier, bibliothèque, boulangerie et bureau de poste. Autoroute A20 à 6 km.
Le prix de vente de cette maison de 3 pièces est de 139 400 €.
Contactez Franck RUBIO (tél : (Numéro supprimé)) pour toute question sur la maison, sur les démarches à suivre ou sur les modalités de vente. Maisons Bruno Petit MJB Châteauroux est là pour vous accompagner à toutes les étapes de votre projet.
Logement susceptibles de vous intéresser
Nous vous proposons de découvrir aussi cette sélection de logements situés à moins de 10km de Le Menoux et qui seraient susceptibles de vous intéresser.
Argenton-sur-Creuse
TERRAIN ET MAISONVENTE d’une maison T4 (85 m²) à Argenton-sur-CreuseIdéalement située – À Argenton-sur-Creuse (36200), maison neuve en vente de 4 pièces, 85 m² sur 2 477 m² de terrain. Son intérieur dispose de trois chambres, d’une cuisine et d’une salle de bains.À proximité : gare (Argenton-sur-Creuse), établissements scolaires, bassin de natation, commerces, boulangeries, supermarchés, poissonnerie et boucheries-charcuteries. Marché Rue du Point du Jour le samedi matin. Autoroute A20 à 3 km. Châteauroux à 29 km.Le prix de vente de cette maison de 4 pièces est de 158 450 €.Contactez notre agence (RUBIO Franck : (Numéro supprimé)) pour toute information sur la maison de plain-pied.
Argenton-sur-Creuse
TERRAIN ET MAISONVENTE d’une maison T4 (85 m²) à Argenton-sur-CreuseIdéalement située – À découvrir à Argenton-sur-Creuse (36200) : maison neuve 4 pièces en vente, 85 m² et 2 477 m² de terrain. Elle est composée de trois chambres, d’une cuisine et d’une salle de bains.Proche gare (Argenton-sur-Creuse), établissements scolaires, bassin de natation, commerces, boulangeries, supermarchés, bureau de poste et poissonnerie. Marché Rue du Point du Jour le samedi matin. Accès autoroute A20 à 3 km. Châteauroux à 29 km.Cette maison de 4 pièces est à vendre pour la somme de 147 100 €.Prenez contact avec notre agence (Franck RUBIO : (Numéro supprimé)) pour obtenir de plus amples renseignements sur la maison ou sur les modalités de vente. Faites de vos projets immobiliers une réalité avec Maisons Bruno Petit MJB Châteauroux.
Le Menoux
TERRAIN ET MAISONLe Menoux : maison F4 (85 m²) en venteProche de Châteauroux – En vente au Menoux (36200) : maison neuve 4 pièces de 85 m² et de 1 382 m² de terrain. Son intérieur se divise en trois chambres, une cuisine et une salle de bains.À proximité : gares (Argenton-sur-Creuse et Chabenet), École Élémentaire François Hervier, bibliothèque, boulangerie et bureau de poste. Autoroute A20 à 6 km.Le prix de vente de cette maison de 4 pièces est de 139 100 €.Contactez notre agence (Franck RUBIO : (Numéro supprimé)) pour toute question sur la maison, sur les démarches à suivre ou sur les modalités de vente.
Le Menoux
TERRAIN ET MAISONVENTE d’une maison de 3 pièces (70 m²) au MenouxProche de Châteauroux – À découvrir au Menoux (36200) : maison neuve 3 pièces en vente, 70 m² sur 1 382 m² de terrain. Elle comporte deux chambres, une cuisine et une salle de bains.Proche gares (Argenton-sur-Creuse et Chabenet), École Élémentaire François Hervier, bibliothèque, boulangerie et bureau de poste. Autoroute A20 à 6 km.Le prix de vente de cette maison de 3 pièces est de 139 400 €.Contactez Franck RUBIO (tél : (Numéro supprimé)) pour toute question sur la maison, sur les démarches à suivre ou sur les modalités de vente. Maisons Bruno Petit MJB Châteauroux est là pour vous accompagner à toutes les étapes de votre projet.
Argenton-sur-Creuse
TERRAIN ET MAISONArgenton-sur-Creuse : maison F5 (83 m²) à vendreIdéalement située – Maison neuve 5 pièces à vendre à Argenton-sur-Creuse (36200) avec une surface de 83 m² sur un terrain de 2 477 m². Conçue de plain-pied, elle dispose de trois chambres, d’une cuisine et de deux salles de bains.À dix minutes : gare (Argenton-sur-Creuse), établissements scolaires, bassin de natation, commerces, boulangeries, supermarchés, épicerie et bureau de poste. Marché Rue du Point du Jour le samedi matin. Autoroute A20 à 3 km. Châteauroux à 29 km.Cette maison de 5 pièces est proposée à l’achat pour 199 000 €.N’hésitez pas à prendre contact avec notre agence (Franck RUBIO : (Numéro supprimé)) pour toute question sur la maison de plain-pied ou sur les modalités de vente.
Argenton-sur-Creuse
TERRAIN ET MAISONArgenton-sur-Creuse : maison T6 (120 m²) en venteIdéalement située – À Argenton-sur-Creuse (36200), maison neuve à vendre de 6 pièces, 120 m² sur 2 477 m² de terrain. Conçue de plain-pied, elle est composée de quatre chambres, d’une cuisine et de deux salles de bains.À dix minutes : gare (Argenton-sur-Creuse), établissements scolaires, bassin de natation, commerces, boulangeries, supermarchés, épicerie et poissonnerie. Marché Rue du Point du Jour le samedi matin. Autoroute A20 à 3 km. Châteauroux à 29 km.Cette maison de 6 pièces est proposée à l’achat pour 271 500 €.Contactez notre agence (Franck RUBIO : (Numéro supprimé)) pour obtenir de plus amples renseignements sur la maison, sur les modalités de vente ou sur les démarches à suivre. Donnez vie à vos projets immobiliers avec Maisons Bruno Petit MJB Châteauroux.
Argenton-sur-Creuse
TERRAIN ET MAISONArgenton-sur-Creuse : maison F4 (110 m²) en venteIdéalement située – À découvrir à Argenton-sur-Creuse (36200) : maison neuve 4 pièces à vendre, 110 m² de surface sur 2 477 m² de terrain. Son intérieur comporte trois chambres, une cuisine et deux salles de bains.À dix minutes : gare (Argenton-sur-Creuse), établissements scolaires, bassin de natation, commerces, boulangeries, supermarchés, boucheries-charcuteries et bureau de poste. Marché Rue du Point du Jour le samedi matin. Accès autoroute A20 à 3 km. Châteauroux à 29 km.Cette maison de 4 pièces est à vendre pour la somme de 222 900 €.Prenez contact avec notre agence (Franck RUBIO : (Numéro supprimé)) pour obtenir de plus amples renseignements sur la maison ou sur les démarches à suivre. Maisons Bruno Petit MJB Châteauroux est là pour vous accompagner à toutes les étapes de votre projet.
Le Menoux
TERRAIN ET MAISONLe Menoux : maison de 4 pièces (110 m²) à vendreProche de Châteauroux – À découvrir au Menoux (36200) : maison neuve 4 pièces à vendre, 110 m² de surface et 1 382 m² de terrain. Elle propose trois chambres, une cuisine et deux salles de bains.Proche gares (Argenton-sur-Creuse et Chabenet), École Élémentaire François Hervier, bibliothèque, boulangerie et bureau de poste. Autoroute A20 accessible à 6 km.Cette maison de 4 pièces est proposée à l’achat pour 214 900 €.Prenez contact avec Franck RUBIO ((Numéro supprimé)) pour toute information sur la maison ou sur les modalités de vente. Faites de vos projets immobiliers une réalité avec Maisons Bruno Petit MJB Châteauroux.
Le Menoux
TERRAIN ET MAISONLe Menoux : maison F4 (110 m²) à vendreProche de Châteauroux – À découvrir au Menoux (36200) : maison neuve 4 pièces en vente. Surface de 110 m² et 1 382 m² de terrain. Conçue de plain-pied, elle inclut trois chambres, une cuisine et deux salles de bains.À proximité : gares (Argenton-sur-Creuse et Chabenet), École Élémentaire François Hervier, bibliothèque, boulangerie et bureau de poste. Autoroute A20 à 6 km.Le prix de vente de cette maison de 4 pièces est de 298 500 €.Contactez notre agence (RUBIO Franck : (Numéro supprimé)) pour toute question sur la maison ou sur les démarches à suivre.
L’actualité immobilière à Le Menoux
27/11/2023
02/11/2023
30/10/2023
20/10/2023
16/10/2023
16/10/2023