Maison à construire à Le Poinçonnet (36330)
Images
Description
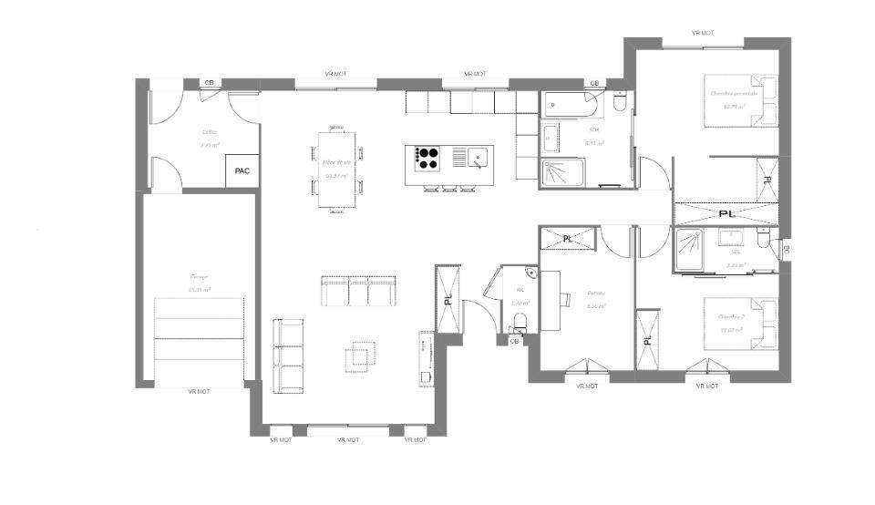
Maison T4 (110 m²) en vente au Poinçonnet
Idéalement située -  À découvrir au Poinçonnet (36330) : maison neuve 4 pièces en vente, 110 m² de surface sur 933 m² de terrain. Son intérieur comporte trois chambres, une cuisine et deux salles de bains.
À proximité : gare (Châteauroux), écoles, tennis, boulangeries, commerces, boucheries-charcuteries, épicerie et bureau de poste. Autoroute A20 et nationale N151 à 8 km. Châteauroux à 6 km.
Le prix de vente de cette maison de 4 pièces est de 253 415 €.
Contactez notre agence (GRIMAUD Kevin : (Numéro supprimé)) pour obtenir de plus amples renseignements sur la maison ou sur les modalités de vente.
Logement susceptibles de vous intéresser
Nous vous proposons de découvrir aussi cette sélection de logements situés à moins de 10km de Le Poinçonnet et qui seraient susceptibles de vous intéresser.
 
  
 
 Le Poinçonnet
TERRAIN ET MAISONVENTE : maison F5 (200 m²) au PoinçonnetEmplacement privilégié – Maison neuve 5 pièces en vente au Poinçonnet (36330) avec 2 niveaux, une surface de 200 m² sur un terrain de 1 120 m². Son intérieur propose quatre chambres, une cuisine et deux salles de bains.À dix minutes : gare (Châteauroux), écoles, tennis, boulangeries, commerces, boucheries-charcuteries, bureau de poste et épicerie. Accès autoroute A20 et nationale N151 à 8 km. Châteauroux à 6 km.Le prix de vente de cette maison de 5 pièces est de 536 700 €.Prenez contact avec Thomas MANIERE ((Numéro supprimé)) pour plus d’informations sur la maison, sur les démarches à suivre ou sur les modalités de vente. Maisons Bruno Petit MJB Châteauroux est là pour vous accompagner à toutes les étapes de votre projet.
 
  
 
 Déols
TERRAIN ET MAISONDéols : maison T4 (85 m²) en venteProche de Châteauroux – À Déols (36130), maison neuve en vente de 4 pièces, 85 m² de surface sur 560 m² de terrain. Elle comporte trois chambres, une cuisine et une salle de bains.À dix minutes : gare (Châteauroux), établissements scolaires, tennis, bassin de natation, boulangeries, commerces, supermarché, boucheries-charcuteries et bureau de poste. Autoroute A20 et nationale N151 accessibles à 3 km.Cette maison de 4 pièces est proposée à l’achat pour 178 100 €.Prenez contact avec Thomas MANIERE ((Numéro supprimé)) pour plus de renseignements sur la maison ou sur les modalités de vente. Maisons Bruno Petit MJB Châteauroux est là pour vous accompagner à toutes les étapes de l’achat.
 
  
 
 Le Poinçonnet
TERRAIN ET MAISONMaison F4 (85 m²) à vendre au PoinçonnetEmplacement privilégié – À vendre au Poinçonnet (36330) : maison neuve 4 pièces de 85 m² sur un terrain de 1 120 m². Conçue de plain-pied, elle offre trois chambres, une cuisine et une salle de bains.À proximité : gare (Châteauroux), écoles, tennis, boulangeries, commerces, bureau de poste, épicerie et boucheries-charcuteries. Accès autoroute A20 et nationale N151 à 8 km. Châteauroux à 6 km.Le prix de vente de cette maison de 4 pièces est de 204 100 €.Contactez notre agence (Thomas MANIERE : (Numéro supprimé)) pour tout renseignement sur la maison ou sur les démarches à suivre.
 
  
 
 Arthon
TERRAIN ET MAISONMaison T4 (85 m²) à vendre à ArthonProche de Châteauroux – En vente à Arthon (36330) : maison neuve 4 pièces de 85 m² et de 700 m² de terrain. Conçue de plain-pied, elle compte trois chambres, une cuisine et une salle de bains.À proximité : gare (Luant), écoles, tennis, bibliothèque, boulangerie, épicerie et boucherie-charcuterie. Autoroute A20 à 9 km.Cette maison de 4 pièces est proposée à l’achat pour 174 400 €.Contactez notre agence (MANIERE Thomas : (Numéro supprimé)) pour tout renseignement sur la maison de plain-pied.
 
  
 
 Déols
TERRAIN ET MAISONVENTE d’une maison T4 (85 m²) à DéolsProche de Châteauroux – Maison neuve 4 pièces à vendre à Déols (36130) avec une surface de 85 m² sur un terrain de 560 m². Son intérieur dispose de trois chambres, d’une cuisine et d’une salle de bains.Proche gare (Châteauroux), établissements scolaires, tennis, bassin de natation, boulangeries, commerces, supermarché, épicerie et boucheries-charcuteries. Accès autoroute A20 et nationale N151 à 3 km.Le prix de vente de cette maison de 4 pièces est de 175 950 €.Prenez contact avec Thomas MANIERE ((Numéro supprimé)) pour plus de renseignements sur la maison. Maisons Bruno Petit MJB Châteauroux est là pour vous accompagner à toutes les étapes de l’achat.
 
  
 
 Le Poinçonnet
TERRAIN ET MAISONLe Poinçonnet : maison T4 (85 m²) à vendreEmplacement privilégié – À découvrir au Poinçonnet (36330) : maison neuve 4 pièces à vendre. Surface de 85 m² et 1 120 m² de terrain. Conçue de plain-pied, elle se divise en trois chambres, une cuisine et une salle de bains.À proximité : gare (Châteauroux), écoles, tennis, boulangeries, commerces, bureau de poste, épicerie et boucheries-charcuteries. Accès autoroute A20 et nationale N151 à 8 km. Châteauroux à 6 km.Le prix de vente de cette maison de 4 pièces est de 201 950 €.N’hésitez pas à prendre contact avec notre agence (Thomas MANIERE : (Numéro supprimé)) pour toute question sur la maison. Donnez vie à vos projets immobiliers avec Maisons Bruno Petit MJB Châteauroux.
 
  
 
 Arthon
TERRAIN ET MAISONArthon : maison de 4 pièces (85 m²) à vendreProche de Châteauroux – À Arthon (36330), maison neuve en vente de 4 pièces, 85 m² et 700 m² de terrain. Conçue de plain-pied, elle compte trois chambres, une cuisine et une salle de bains.À dix minutes : gare (Luant), écoles, tennis, bibliothèque, boulangerie, boucherie-charcuterie et épicerie. Autoroute A20 accessible à 9 km.Cette maison de 4 pièces est à vendre pour la somme de 172 250 €.N’hésitez pas à prendre contact avec Thomas MANIERE ((Numéro supprimé)) pour obtenir de plus amples renseignements sur la maison de plain-pied ou sur les modalités de vente. Donnez vie à vos projets immobiliers avec Maisons Bruno Petit MJB Châteauroux.
 
  
 
 Déols
TERRAIN ET MAISONMaison F4 (85 m²) en vente à DéolsProche de Châteauroux – À vendre à Déols (36130) : maison neuve 4 pièces de 85 m² et de 560 m² de terrain. Son intérieur offre trois chambres, une cuisine et une salle de bains.À proximité : gare (Châteauroux), établissements scolaires, tennis, bassin de natation, boulangeries, commerces, supermarché, boucheries-charcuteries et épicerie. Accès autoroute A20 et nationale N151 à 3 km.Cette maison de 4 pièces est proposée à l’achat pour 164 600 €.Contactez notre agence (Thomas MANIERE : (Numéro supprimé)) pour toute information sur la maison de plain-pied. Maisons Bruno Petit MJB Châteauroux est là pour vous accompagner dans tous vos projets immobiliers.
 
  
 
 Arthon
TERRAIN ET MAISONMaison T4 (85 m²) en vente à ArthonProche de Châteauroux – À vendre à Arthon (36330) : maison neuve 4 pièces de 85 m² sur un terrain de 700 m². Son intérieur dispose de trois chambres, d’une cuisine et d’une salle de bains.Proche gare (Luant), écoles, tennis, bibliothèque, boulangerie, épicerie et boucherie-charcuterie. Autoroute A20 accessible à 9 km.Le prix de vente de cette maison de 4 pièces est de 160 900 €.N’hésitez pas à prendre contact avec Thomas MANIERE (tél : (Numéro supprimé)) pour toute information sur la maison, sur les modalités de vente ou sur les démarches à suivre.
L’actualité immobilière à Le Poinçonnet
 27/11/2023
 
 27/11/2023
 
  02/11/2023
 
 02/11/2023
 
  30/10/2023
 
 30/10/2023
 
  20/10/2023
 
 20/10/2023
 
  16/10/2023
 
 16/10/2023
 
  16/10/2023
 
 16/10/2023
 
  
 
 
 
 
 
  
  
  
 