Maison à construire à Luant (36350)
Images
Description
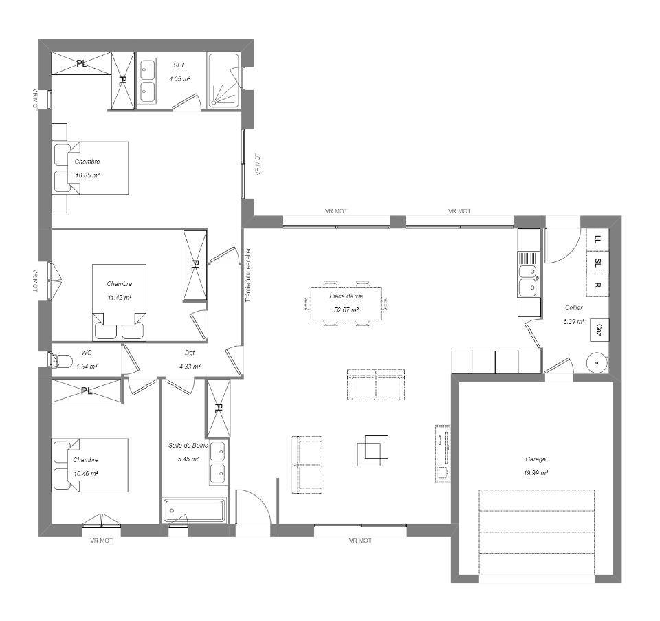
VENTE : maison T4 (110 m²) à Luant
En centre-ville - Maison neuve 4 pièces à vendre à Luant (36350) avec une surface de 110 m² et de 897 m² de terrain. Conçue de plain-pied, elle dispose de trois chambres, d'une cuisine et de deux salles de bains.
Proche gares (Luant et Lothiers), École Primaire Jeanne Dacquin, tennis, bibliothèque et boulangerie. Autoroute A20 à 5 km. Châteauroux à 13 km.
Cette maison de 4 pièces est à vendre pour la somme de 226 400 €.
Contactez notre agence (RUBIO Franck : (Numéro supprimé)) pour plus de renseignements sur la maison ou sur les démarches à suivre. Maisons Bruno Petit MJB Châteauroux est là pour vous accompagner à toutes les étapes de votre projet.
Logement susceptibles de vous intéresser
Nous vous proposons de découvrir aussi cette sélection de logements situés à moins de 10km de Luant et qui seraient susceptibles de vous intéresser.
Niherne
TERRAIN ET MAISONNiherne : maison de 4 pièces (85 m²) à vendreProche de Châteauroux – À découvrir à Niherne (36250) : maison neuve 4 pièces à vendre, 85 m² sur 700 m² de terrain. Elle dispose de trois chambres, d’une cuisine et d’une salle de bains.À dix minutes : École Primaire Geneviève Panis, bassin de natation, tennis, boulangerie et épicerie. Autoroute A20 à 6 km.Cette maison de 4 pièces est à vendre pour la somme de 176 950 €.Prenez contact avec Thomas MANIERE ((Numéro supprimé)) pour toute information sur la maison, sur les démarches à suivre ou sur les modalités de vente. Maisons Bruno Petit MJB Châteauroux est là pour vous accompagner à toutes les étapes de l’achat.
Niherne
TERRAIN ET MAISONVENTE d’une maison de 4 pièces (85 m²) à NiherneProche de Châteauroux – À découvrir à Niherne (36250) : maison neuve 4 pièces à vendre. Surface de 85 m² et 700 m² de terrain. Conçue de plain-pied, elle offre trois chambres, une cuisine et une salle de bains.Proche École Primaire Geneviève Panis, bassin de natation, tennis, boulangerie et épicerie. Accès autoroute A20 à 6 km.Cette maison de 4 pièces est à vendre pour la somme de 165 600 €.Contactez notre agence (Thomas MANIERE : (Numéro supprimé)) pour obtenir de plus amples renseignements sur la maison, sur les modalités de vente ou sur les démarches à suivre.
Niherne
TERRAIN ET MAISONVENTE d’une maison T3 (70 m²) à NiherneProche de Châteauroux – À découvrir à Niherne (36250) : maison neuve 3 pièces à vendre. Surface de 70 m² sur 700 m² de terrain. Elle compte deux chambres, une cuisine et une salle de bains.À dix minutes : École Primaire Geneviève Panis, bassin de natation, tennis, boulangerie et épicerie. Accès autoroute A20 à 6 km.Le prix de vente de cette maison de 3 pièces est de 165 900 €.Prenez contact avec Thomas MANIERE (tél : (Numéro supprimé)) pour tout renseignement sur la maison. Donnez vie à vos projets immobiliers avec Maisons Bruno Petit MJB Châteauroux.
Niherne
TERRAIN ET MAISONVENTE d’une maison T5 (100 m²) à NiherneProche de Châteauroux – À découvrir à Niherne (36250) : maison neuve 5 pièces en vente, 100 m² et 700 m² de terrain. Son intérieur inclut trois chambres, une cuisine et deux salles de bains.À proximité : École Primaire Geneviève Panis, bassin de natation, tennis, boulangerie et épicerie. Autoroute A20 accessible à 6 km.Le prix de vente de cette maison de 5 pièces est de 186 700 €.N’hésitez pas à prendre contact avec Thomas MANIERE (tél : (Numéro supprimé)) pour obtenir de plus amples informations sur la maison, sur les démarches à suivre ou sur les modalités de vente. Maisons Bruno Petit MJB Châteauroux est là pour vous accompagner à toutes les étapes de l’achat.
Niherne
TERRAIN ET MAISONVENTE d’une maison de 5 pièces (120 m²) à NiherneProche de Châteauroux – À découvrir à Niherne (36250) : maison neuve 5 pièces à vendre. 2 niveaux, surface de 120 m² sur 700 m² de terrain. Son intérieur offre quatre chambres, une cuisine et deux salles de bains.À dix minutes : École Primaire Geneviève Panis, bassin de natation, tennis, boulangerie et épicerie. Accès autoroute A20 à 6 km.Le prix de vente de cette maison de 5 pièces est de 318 800 €.Contactez notre agence (Thomas MANIERE : (Numéro supprimé)) pour toute question sur la maison ou sur les modalités de vente. Concrétisez vos projets immobiliers avec Maisons Bruno Petit MJB Châteauroux.
Niherne
TERRAINVENTE d’un terrain de 700 m² à NiherneProche de Châteauroux – À Niherne (36250) : réalisez votre projet sur ce terrain de 700 m².Proche École Primaire Geneviève Panis, bassin de natation, tennis, boulangerie et épicerie. Accès autoroute A20 à 6 km.Son prix de vente est de 35 000 €. Contactez notre agence (Thomas MANIERE : (Numéro supprimé)) pour plus de renseignements sur le terrain, sur les modalités de vente et sur les démarches à suivre. Concrétisez vos projets immobiliers avec Maisons Bruno Petit MJB Châteauroux.
Niherne
TERRAIN ET MAISONVENTE d’une maison de 3 pièces (100 m²) à NiherneProche de Châteauroux – Maison neuve 3 pièces en vente à Niherne (36250) avec une surface de 100 m² sur un terrain de 700 m². Son intérieur compte deux chambres, une cuisine et deux salles de bains.À dix minutes : École Primaire Geneviève Panis, bassin de natation, tennis, boulangerie et épicerie. Accès autoroute A20 à 6 km.Le prix de vente de cette maison de 3 pièces est de 232 400 €.N’hésitez pas à prendre contact avec Thomas MANIERE (tél : (Numéro supprimé)) pour toute question sur la maison.
Niherne
TERRAIN ET MAISONNiherne : maison de 4 pièces (85 m²) en venteEmplacement privilégié – À vendre à Niherne (36250) : maison neuve 4 pièces de 85 m² et de 662 m² de terrain. Elle dispose de trois chambres, d’une cuisine et d’une salle de bains.Proche École Primaire Geneviève Panis, bassin de natation, tennis, boulangerie et épicerie. Autoroute A20 à 6 km. Châteauroux à 10 km.Cette maison de 4 pièces est proposée à l’achat pour 176 538 €.Contactez Kevin GRIMAUD ((Numéro supprimé)) pour tout renseignement sur la maison ou sur les modalités de vente. Concrétisez vos projets immobiliers avec Maisons Bruno Petit MJB Châteauroux.
Tendu
TERRAIN ET MAISONTendu : maison F4 (85 m²) en venteEmplacement privilégié – En vente à Tendu (36200) : maison neuve 4 pièces de 85 m² sur un terrain de 1 560 m². Elle offre trois chambres, une cuisine et une salle de bains.Proche gares (Chabenet, Lothiers et Argenton-sur-Creuse), écoles. Autoroute A20 accessible à 1 km. Châteauroux à 19 km.Cette maison de 4 pièces est à vendre pour la somme de 150 340 €.Prenez contact avec Kevin GRIMAUD ((Numéro supprimé)) pour tout renseignement sur la maison ou sur les démarches à suivre.
L’actualité immobilière à Luant
27/11/2023
02/11/2023
30/10/2023
20/10/2023
16/10/2023
16/10/2023