Maison à construire à Lys-Saint-Georges (36230)
Images
Description
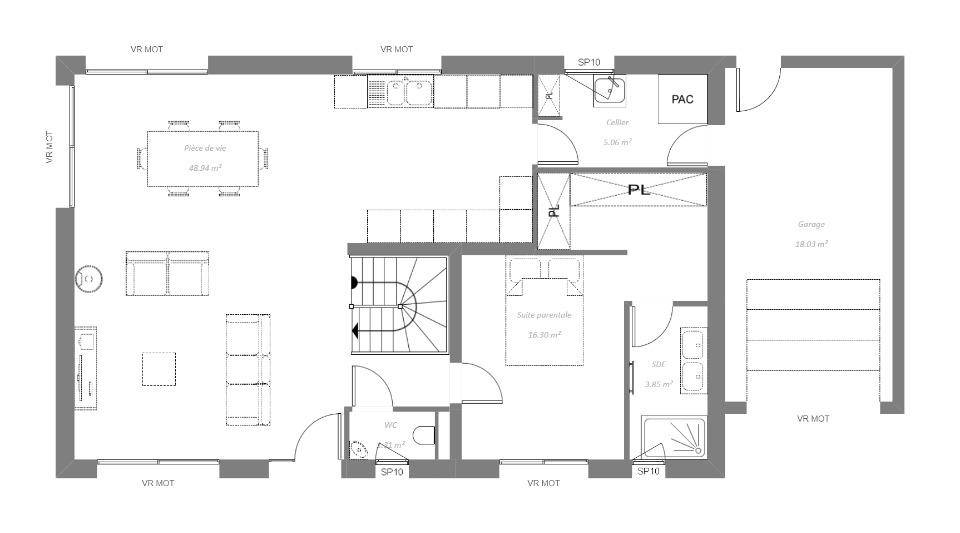
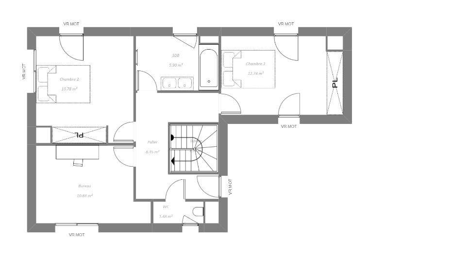
VENTE d'une maison T5 (120 m²) à Lys-Saint-Georges
Emplacement privilégié - Maison neuve 5 pièces à vendre à Lys-Saint-Georges (36230) avec 2 niveaux, une surface de 120 m² sur un terrain de 2 000 m². Elle est composée de quatre chambres, d'une cuisine et de deux salles de bains.
À dix minutes : établissements scolaires, tennis, bibliothèques, bassin de natation, boulangeries, commerces, supermarché, boucherie-charcuterie et épiceries. Châteauroux à 20 km.
Le prix de vente de cette maison de 5 pièces est de 294 300 €.
Contactez Kevin GRIMAUD ((Numéro supprimé)) pour toute information sur la maison ou sur les modalités de vente. Maisons Bruno Petit MJB Châteauroux vous accompagne à toutes les étapes de l'achat et dans toutes vos démarches.
Logement susceptibles de vous intéresser
Nous vous proposons de découvrir aussi cette sélection de logements situés à moins de 10km de Lys-Saint-Georges et qui seraient susceptibles de vous intéresser.
Arthon
TERRAIN ET MAISONMaison T4 (85 m²) à vendre à ArthonProche de Châteauroux – En vente à Arthon (36330) : maison neuve 4 pièces de 85 m² et de 700 m² de terrain. Conçue de plain-pied, elle compte trois chambres, une cuisine et une salle de bains.À proximité : gare (Luant), écoles, tennis, bibliothèque, boulangerie, épicerie et boucherie-charcuterie. Autoroute A20 à 9 km.Cette maison de 4 pièces est proposée à l’achat pour 174 400 €.Contactez notre agence (MANIERE Thomas : (Numéro supprimé)) pour tout renseignement sur la maison de plain-pied.
Arthon
TERRAIN ET MAISONArthon : maison de 4 pièces (85 m²) à vendreProche de Châteauroux – À Arthon (36330), maison neuve en vente de 4 pièces, 85 m² et 700 m² de terrain. Conçue de plain-pied, elle compte trois chambres, une cuisine et une salle de bains.À dix minutes : gare (Luant), écoles, tennis, bibliothèque, boulangerie, boucherie-charcuterie et épicerie. Autoroute A20 accessible à 9 km.Cette maison de 4 pièces est à vendre pour la somme de 172 250 €.N’hésitez pas à prendre contact avec Thomas MANIERE ((Numéro supprimé)) pour obtenir de plus amples renseignements sur la maison de plain-pied ou sur les modalités de vente. Donnez vie à vos projets immobiliers avec Maisons Bruno Petit MJB Châteauroux.
Arthon
TERRAIN ET MAISONMaison T4 (85 m²) en vente à ArthonProche de Châteauroux – À vendre à Arthon (36330) : maison neuve 4 pièces de 85 m² sur un terrain de 700 m². Son intérieur dispose de trois chambres, d’une cuisine et d’une salle de bains.Proche gare (Luant), écoles, tennis, bibliothèque, boulangerie, épicerie et boucherie-charcuterie. Autoroute A20 accessible à 9 km.Le prix de vente de cette maison de 4 pièces est de 160 900 €.N’hésitez pas à prendre contact avec Thomas MANIERE (tél : (Numéro supprimé)) pour toute information sur la maison, sur les modalités de vente ou sur les démarches à suivre.
Arthon
TERRAIN ET MAISONVENTE : maison F3 (70 m²) à ArthonProche de Châteauroux – À Arthon (36330), maison neuve à vendre de 3 pièces, 70 m² de surface et 700 m² de terrain. Conçue de plain-pied, elle compte deux chambres, une cuisine et une salle de bains.Proche gare (Luant), écoles, tennis, bibliothèque, boulangerie, épicerie et boucherie-charcuterie. Autoroute A20 à 9 km.Cette maison de 3 pièces est proposée à l’achat pour 161 200 €.Prenez contact avec Thomas MANIERE ((Numéro supprimé)) pour obtenir de plus amples renseignements sur la maison ou sur les démarches à suivre. Maisons Bruno Petit MJB Châteauroux vous accompagne à toutes les étapes de l’achat et dans tous vos projets immobiliers.
Arthon
TERRAINArthon : terrain de 700 m² en venteProche de Châteauroux – Construisez la maison de vos rêves sur ce terrain en vente de 700 m² à Arthon (36330).Proche gare (Luant), écoles, tennis, bibliothèque, boulangerie, épicerie et boucherie-charcuterie. Autoroute A20 accessible à 9 km.Son prix de vente est de 30 300 €. Prenez contact avec Thomas MANIERE (tél : (Numéro supprimé)) pour plus de renseignements sur le terrain.
Arthon
TERRAIN ET MAISONVENTE : maison T3 (91 m²) à ArthonProche de Châteauroux – À découvrir à Arthon (36330) : maison neuve 3 pièces à vendre, 91 m² sur 700 m² de terrain. Conçue de plain-pied, elle compte trois chambres, une cuisine et une salle de bains.À proximité : gare (Luant), écoles, tennis, bibliothèque, boulangerie, épicerie et boucherie-charcuterie. Accès autoroute A20 à 9 km.Cette maison de 3 pièces est à vendre pour la somme de 187 900 €.Prenez contact avec notre agence (MANIERE Thomas : (Numéro supprimé)) pour plus d’informations sur la maison.
Arthon
TERRAIN ET MAISONVENTE : maison de 2 pièces (65 m²) à ArthonProche de Châteauroux – En vente à Arthon (36330) : maison neuve 2 pièces de 65 m² et de 700 m² de terrain. Son intérieur compte deux chambres, une cuisine et une salle de bains.Proche gare (Luant), écoles, tennis, bibliothèque, boulangerie, épicerie et boucherie-charcuterie. Autoroute A20 accessible à 9 km.Le prix de vente de cette maison de 2 pièces est de 148 700 €.Contactez notre agence (MANIERE Thomas : (Numéro supprimé)) pour obtenir de plus amples renseignements sur la maison. Maisons Bruno Petit MJB Châteauroux est là pour vous accompagner dans tous vos projets immobiliers.
Jeu-les-Bois
TERRAINJeu-les-Bois (36120), à 20 minutes de Châteauroux, en Exclusivité, MonTerrainIdeal.com vous propose à la vente 81 Hectares de terres cultivées dont 27 sont en cultures Bio. Les fermages courent jusqu’en 2032. Idéal pour investisseurs. Vous souhaitez en savoir davantage ? Pour tout renseignement et visite, merci de contacter votre conseiller foncier Mickaël LEFEVRE au numéro de téléphone indiqué (SMS acceptés).
Lys-Saint-Georges
TERRAIN ET MAISONVENTE d’une maison de 4 pièces (85 m²) à Lys-Saint-GeorgesEmplacement privilégié – En vente à Lys-Saint-Georges (36230) : maison neuve 4 pièces de 85 m² sur un terrain de 2 000 m². Conçue de plain-pied, elle comporte trois chambres, une cuisine et une salle de bains.À dix minutes : établissements scolaires, tennis, bibliothèques, bassin de natation, boulangeries, commerces, supermarché, épiceries et bureau de poste. Châteauroux à 20 km.Cette maison de 4 pièces est à vendre pour la somme de 154 600 €.Contactez notre agence (Kevin GRIMAUD : (Numéro supprimé)) pour toute question sur la maison. Maisons Bruno Petit MJB Châteauroux est là pour vous accompagner dans toutes vos démarches.
L’actualité immobilière à Lys-Saint-Georges
27/11/2023
02/11/2023
30/10/2023
20/10/2023
16/10/2023
16/10/2023