Maison à construire à Niherne (36250)
Images
Description
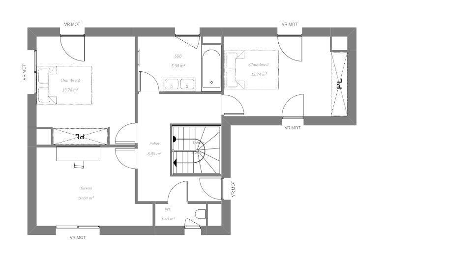
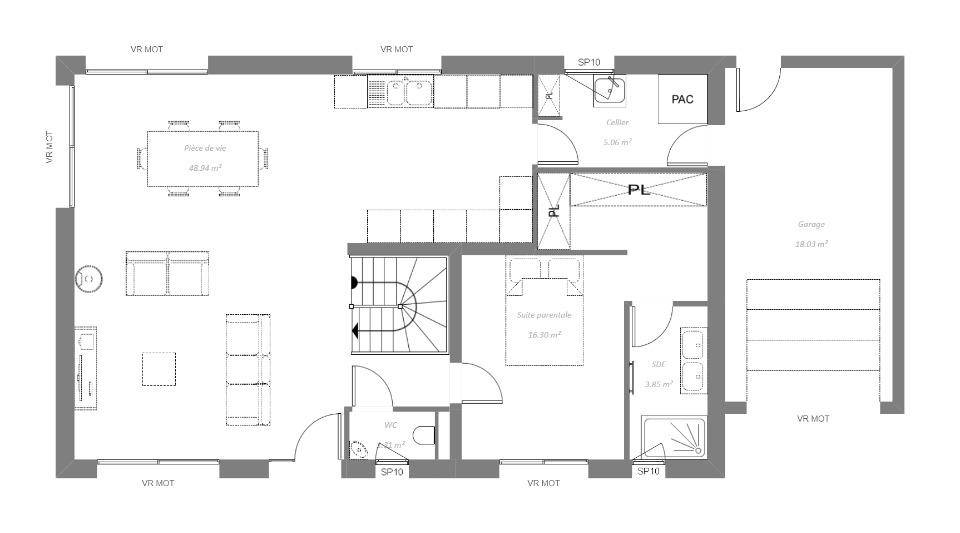
VENTE : maison F5 (120 m²) à Niherne
Proche de Châteauroux - À Niherne (36250), maison neuve à vendre de 5 pièces, 2 niveaux, 120 m² de surface et 658 m² de terrain. Elle est composée de quatre chambres, d'une cuisine et de deux salles de bains.
À proximité : École Primaire Geneviève Panis, bassin de natation, tennis, boulangerie et épicerie. Autoroute A20 accessible à 6 km.
Cette maison de 5 pièces est à vendre pour la somme de 316 045 €.
N'hésitez pas à prendre contact avec notre agence (GRIMAUD Kevin : (Numéro supprimé)) pour plus de renseignements sur la maison. Maisons Bruno Petit MJB Châteauroux est là pour vous accompagner dans toutes vos démarches.
Logement susceptibles de vous intéresser
Nous vous proposons de découvrir aussi cette sélection de logements situés à moins de 10km de Niherne et qui seraient susceptibles de vous intéresser.
Luant
TERRAIN ET MAISONMaison de 6 pièces (176 m²) en vente à LuantEn centre-ville – À Luant (36350), maison neuve en vente de 6 pièces, 2 niveaux, 176 m² de surface sur 897 m² de terrain. Elle compte six chambres, une cuisine et deux salles de bains.À dix minutes : gares (Luant et Lothiers), École Primaire Jeanne Dacquin, tennis, bibliothèque et boulangerie. Accès autoroute A20 à 5 km. Châteauroux à 13 km.Le prix de vente de cette maison de 6 pièces est de 365 000 €.Contactez notre agence (Franck RUBIO : *6-30-49-64-43) pour obtenir de plus amples renseignements sur la maison, sur les démarches à suivre ou sur les modalités de vente. Donnez vie à vos projets immobiliers avec Maisons Bruno Petit MJB Châteauroux.
Luant
TERRAIN ET MAISONVENTE d’une maison de 4 pièces (105 m²) à LuantEn centre-ville – À découvrir à Luant (36350) : maison neuve 4 pièces en vente, 105 m² de surface et 897 m² de terrain. Elle comporte quatre chambres, une cuisine et deux salles de bains.À dix minutes : gares (Luant et Lothiers), École Primaire Jeanne Dacquin, tennis, bibliothèque et boulangerie. Autoroute A20 accessible à 5 km. Châteauroux à 13 km.Le prix de vente de cette maison de 4 pièces est de 203 800 €.Contactez notre agence (Franck RUBIO : *6-30-49-64-43) pour tout renseignement sur la maison, sur les modalités de vente ou sur les démarches à suivre. Maisons Bruno Petit MJB Châteauroux vous accompagne dans tous vos projets immobiliers et à toutes les étapes de l’achat.
Saint-Maur
TERRAINSaint-Maur : terrain de 1 200 m² en venteEmplacement privilégié – Concrétisez votre projet sur ce terrain de 1 200 m² en vente à Saint-Maur (36250).À proximité : gares (Châteauroux et Luant), écoles, tennis, commerces, boulangerie et boucherie-charcuterie. Autoroute A20 et nationale N151 à 7 km. Châteauroux à 6 km.Son prix de vente est de 50 000 €. N’hésitez pas à prendre contact avec notre agence (Kevin GRIMAUD : *6-22-14-89-67) pour toute question sur le terrain.
Niherne
TERRAINVENTE d’un terrain de 770 m² à NiherneIdéalement situé – À Niherne (36250) : terrain orienté au sud de 770 m².À dix minutes : École Primaire Geneviève Panis, bassin de natation, tennis, boulangerie et épicerie. Autoroute A20 à 6 km. Châteauroux à 10 km.Il est à vendre pour la somme de 34 300 €. Prenez contact avec Kevin GRIMAUD (tél : *6-22-14-89-67) pour toute information sur le terrain.
Niherne
TERRAIN ET MAISONVENTE d’une maison de 5 pièces (120 m²) à NiherneIdéalement située – À Niherne (36250), maison neuve en vente de 5 pièces, 120 m² et 770 m² de terrain. Son intérieur comporte quatre chambres, une cuisine et une salle de bains.À dix minutes : École Primaire Geneviève Panis, bassin de natation, tennis, boulangerie et épicerie. Autoroute A20 à 6 km. Châteauroux à 10 km.Le prix de vente de cette maison de 5 pièces est de 242 000 €.N’hésitez pas à prendre contact avec Kevin GRIMAUD (tél : *6-22-14-89-67) pour toute question sur la maison, sur les modalités de vente ou sur les démarches à suivre.
Saint-Maur
TERRAIN ET MAISONMaison de 4 pièces (110 m²) en vente à Saint-MaurEmplacement privilégié – Maison neuve 4 pièces à vendre à Saint-Maur (36250) avec une surface de 110 m² sur un terrain de 1 200 m². Conçue de plain-pied, elle dispose de trois chambres, d’une cuisine et de deux salles de bains.À proximité : gares (Châteauroux et Luant), écoles, tennis, commerces, boulangerie et boucherie-charcuterie. Accès autoroute A20 et nationale N151 à 7 km. Châteauroux à 6 km.Cette maison de 4 pièces est à vendre pour la somme de 242 200 €.Contactez Kevin GRIMAUD (tél : *6-22-14-89-67) pour toute question sur la maison. Maisons Bruno Petit MJB Châteauroux est là pour vous accompagner dans toutes vos démarches.
Saint-Maur
TERRAIN ET MAISONMaison de 4 pièces (110 m²) en vente à Saint-MaurEmplacement privilégié – À découvrir à Saint-Maur (36250) : maison neuve 4 pièces en vente. 2 niveaux, surface de 110 m² sur 1 200 m² de terrain. Elle dispose de trois chambres, d’une cuisine et de deux salles de bains.À dix minutes : gares (Châteauroux et Luant), écoles, tennis, commerces, boulangerie et boucherie-charcuterie. Autoroute A20 et nationale N151 à 7 km. Châteauroux à 6 km.Le prix de vente de cette maison de 4 pièces est de 324 300 €.Contactez notre agence (GRIMAUD Kevin : *6-22-14-89-67) pour plus d’informations sur la maison ou sur les modalités de vente.
Niherne
TERRAIN ET MAISONMaison F6 (120 m²) en vente à NiherneIdéalement située – À découvrir à Niherne (36250) : maison neuve 6 pièces en vente. Surface de 120 m² sur 770 m² de terrain. Conçue de plain-pied, elle comporte quatre chambres, une cuisine et deux salles de bains.À dix minutes : École Primaire Geneviève Panis, bassin de natation, tennis, boulangerie et épicerie. Autoroute A20 accessible à 6 km. Châteauroux à 10 km.Cette maison de 6 pièces est à vendre pour la somme de 289 300 €.N’hésitez pas à prendre contact avec notre agence (Kevin GRIMAUD : *6-22-14-89-67) pour tout renseignement sur la maison, sur les démarches à suivre ou sur les modalités de vente. Maisons Bruno Petit MJB Châteauroux vous accompagne à toutes les étapes de l’achat et dans tous vos projets immobiliers.
Niherne
TERRAIN ET MAISONNiherne : maison de 4 pièces (110 m²) en venteIdéalement située – À Niherne (36250), maison neuve en vente de 4 pièces, 110 m² de surface et 770 m² de terrain. Son intérieur inclut trois chambres, une cuisine et deux salles de bains.À proximité : École Primaire Geneviève Panis, bassin de natation, tennis, boulangerie et épicerie. Accès autoroute A20 à 6 km. Châteauroux à 10 km.Cette maison de 4 pièces est proposée à l’achat pour 275 800 €.Prenez contact avec Kevin GRIMAUD (*6-22-14-89-67) pour tout renseignement sur la maison.
L’actualité immobilière à Niherne
27/11/2023
02/11/2023
30/10/2023
20/10/2023
16/10/2023
16/10/2023