Maison à construire à Niherne (36250)
Images
Description
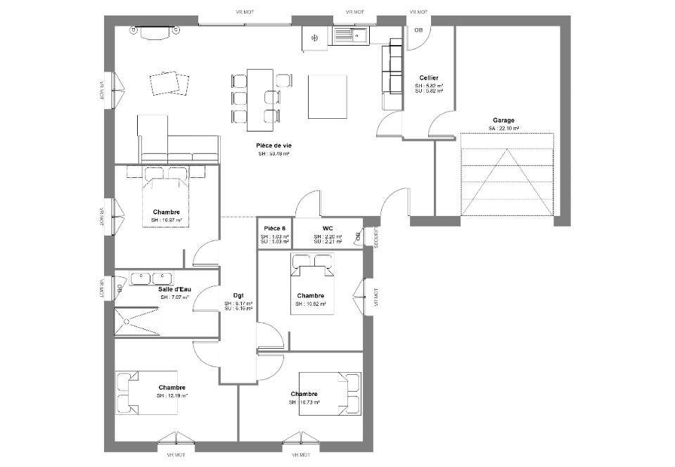
Maison de 5 pièces (120 m²) en vente à Niherne
Emplacement privilégié - À découvrir à Niherne (36250) : maison neuve 5 pièces à vendre, 120 m² de surface sur 860 m² de terrain. Conçue de plain-pied, elle dispose de quatre chambres, d'une cuisine et d'une salle de bains.
À proximité : École Primaire Geneviève Panis, bassin de natation, tennis, boulangerie et épicerie. Accès autoroute A20 à 6 km. Châteauroux à 10 km.
Le prix de vente de cette maison de 5 pièces est de 288 340 €.
Prenez contact avec notre agence (Kevin GRIMAUD : *6-22-14-89-67) pour tout renseignement sur la maison, sur les démarches à suivre ou sur les modalités de vente.
Logement susceptibles de vous intéresser
Nous vous proposons de découvrir aussi cette sélection de logements situés à moins de 10km de Niherne et qui seraient susceptibles de vous intéresser.
Luant
TERRAIN ET MAISONMaison de 6 pièces (176 m²) en vente à LuantEn centre-ville – À Luant (36350), maison neuve en vente de 6 pièces, 2 niveaux, 176 m² de surface sur 897 m² de terrain. Elle compte six chambres, une cuisine et deux salles de bains.À dix minutes : gares (Luant et Lothiers), École Primaire Jeanne Dacquin, tennis, bibliothèque et boulangerie. Accès autoroute A20 à 5 km. Châteauroux à 13 km.Le prix de vente de cette maison de 6 pièces est de 365 000 €.Contactez notre agence (Franck RUBIO : *6-30-49-64-43) pour obtenir de plus amples renseignements sur la maison, sur les démarches à suivre ou sur les modalités de vente. Donnez vie à vos projets immobiliers avec Maisons Bruno Petit MJB Châteauroux.
Luant
TERRAIN ET MAISONVENTE d’une maison de 4 pièces (105 m²) à LuantEn centre-ville – À découvrir à Luant (36350) : maison neuve 4 pièces en vente, 105 m² de surface et 897 m² de terrain. Elle comporte quatre chambres, une cuisine et deux salles de bains.À dix minutes : gares (Luant et Lothiers), École Primaire Jeanne Dacquin, tennis, bibliothèque et boulangerie. Autoroute A20 accessible à 5 km. Châteauroux à 13 km.Le prix de vente de cette maison de 4 pièces est de 203 800 €.Contactez notre agence (Franck RUBIO : *6-30-49-64-43) pour tout renseignement sur la maison, sur les modalités de vente ou sur les démarches à suivre. Maisons Bruno Petit MJB Châteauroux vous accompagne dans tous vos projets immobiliers et à toutes les étapes de l’achat.
Saint-Maur
TERRAINSaint-Maur : terrain de 1 200 m² en venteEmplacement privilégié – Concrétisez votre projet sur ce terrain de 1 200 m² en vente à Saint-Maur (36250).À proximité : gares (Châteauroux et Luant), écoles, tennis, commerces, boulangerie et boucherie-charcuterie. Autoroute A20 et nationale N151 à 7 km. Châteauroux à 6 km.Son prix de vente est de 50 000 €. N’hésitez pas à prendre contact avec notre agence (Kevin GRIMAUD : *6-22-14-89-67) pour toute question sur le terrain.
Niherne
TERRAINVENTE d’un terrain de 770 m² à NiherneIdéalement situé – À Niherne (36250) : terrain orienté au sud de 770 m².À dix minutes : École Primaire Geneviève Panis, bassin de natation, tennis, boulangerie et épicerie. Autoroute A20 à 6 km. Châteauroux à 10 km.Il est à vendre pour la somme de 34 300 €. Prenez contact avec Kevin GRIMAUD (tél : *6-22-14-89-67) pour toute information sur le terrain.
Niherne
TERRAIN ET MAISONVENTE d’une maison de 5 pièces (120 m²) à NiherneIdéalement située – À Niherne (36250), maison neuve en vente de 5 pièces, 120 m² et 770 m² de terrain. Son intérieur comporte quatre chambres, une cuisine et une salle de bains.À dix minutes : École Primaire Geneviève Panis, bassin de natation, tennis, boulangerie et épicerie. Autoroute A20 à 6 km. Châteauroux à 10 km.Le prix de vente de cette maison de 5 pièces est de 242 000 €.N’hésitez pas à prendre contact avec Kevin GRIMAUD (tél : *6-22-14-89-67) pour toute question sur la maison, sur les modalités de vente ou sur les démarches à suivre.
Saint-Maur
TERRAIN ET MAISONMaison de 4 pièces (110 m²) en vente à Saint-MaurEmplacement privilégié – Maison neuve 4 pièces à vendre à Saint-Maur (36250) avec une surface de 110 m² sur un terrain de 1 200 m². Conçue de plain-pied, elle dispose de trois chambres, d’une cuisine et de deux salles de bains.À proximité : gares (Châteauroux et Luant), écoles, tennis, commerces, boulangerie et boucherie-charcuterie. Accès autoroute A20 et nationale N151 à 7 km. Châteauroux à 6 km.Cette maison de 4 pièces est à vendre pour la somme de 242 200 €.Contactez Kevin GRIMAUD (tél : *6-22-14-89-67) pour toute question sur la maison. Maisons Bruno Petit MJB Châteauroux est là pour vous accompagner dans toutes vos démarches.
Saint-Maur
TERRAIN ET MAISONMaison de 4 pièces (110 m²) en vente à Saint-MaurEmplacement privilégié – À découvrir à Saint-Maur (36250) : maison neuve 4 pièces en vente. 2 niveaux, surface de 110 m² sur 1 200 m² de terrain. Elle dispose de trois chambres, d’une cuisine et de deux salles de bains.À dix minutes : gares (Châteauroux et Luant), écoles, tennis, commerces, boulangerie et boucherie-charcuterie. Autoroute A20 et nationale N151 à 7 km. Châteauroux à 6 km.Le prix de vente de cette maison de 4 pièces est de 324 300 €.Contactez notre agence (GRIMAUD Kevin : *6-22-14-89-67) pour plus d’informations sur la maison ou sur les modalités de vente.
Niherne
TERRAIN ET MAISONMaison F6 (120 m²) en vente à NiherneIdéalement située – À découvrir à Niherne (36250) : maison neuve 6 pièces en vente. Surface de 120 m² sur 770 m² de terrain. Conçue de plain-pied, elle comporte quatre chambres, une cuisine et deux salles de bains.À dix minutes : École Primaire Geneviève Panis, bassin de natation, tennis, boulangerie et épicerie. Autoroute A20 accessible à 6 km. Châteauroux à 10 km.Cette maison de 6 pièces est à vendre pour la somme de 289 300 €.N’hésitez pas à prendre contact avec notre agence (Kevin GRIMAUD : *6-22-14-89-67) pour tout renseignement sur la maison, sur les démarches à suivre ou sur les modalités de vente. Maisons Bruno Petit MJB Châteauroux vous accompagne à toutes les étapes de l’achat et dans tous vos projets immobiliers.
Niherne
TERRAIN ET MAISONNiherne : maison de 4 pièces (110 m²) en venteIdéalement située – À Niherne (36250), maison neuve en vente de 4 pièces, 110 m² de surface et 770 m² de terrain. Son intérieur inclut trois chambres, une cuisine et deux salles de bains.À proximité : École Primaire Geneviève Panis, bassin de natation, tennis, boulangerie et épicerie. Accès autoroute A20 à 6 km. Châteauroux à 10 km.Cette maison de 4 pièces est proposée à l’achat pour 275 800 €.Prenez contact avec Kevin GRIMAUD (*6-22-14-89-67) pour tout renseignement sur la maison.
L’actualité immobilière à Niherne
27/11/2023
02/11/2023
30/10/2023
20/10/2023
16/10/2023
16/10/2023