Maison à construire à Reuilly (36260)
Images
Description
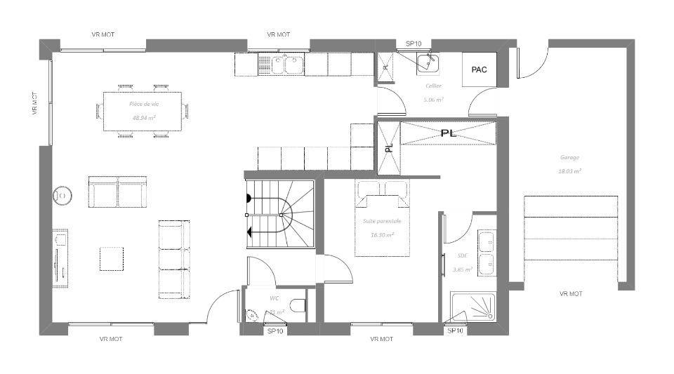
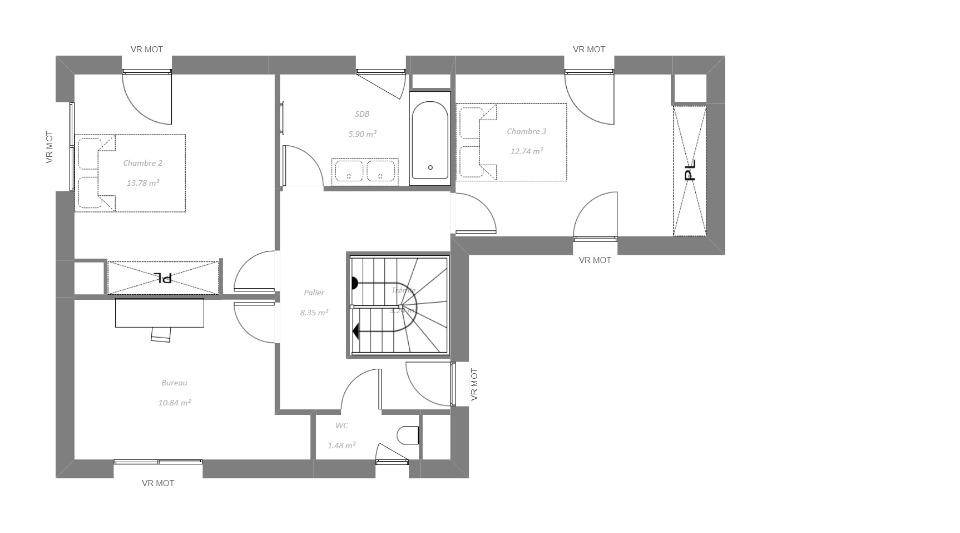
Reuilly : maison F5 (120 m²) à vendre
Emplacement privilégié - À découvrir à Reuilly (36260) : maison neuve 5 pièces en vente. 2 niveaux, surface de 120 m² sur 930 m² de terrain. Son intérieur offre quatre chambres, une cuisine et deux salles de bains.
À proximité : gare (Reuilly), écoles, tennis, boulangerie, commerces, supermarchés, bureau de poste et boucherie-charcuterie. Accès autoroute A20 à 9 km. Bourges à 30 km.
Cette maison de 5 pièces est à vendre pour la somme de 301 800 €.
Contactez Kevin GRIMAUD (tél : (Numéro supprimé)) pour toute information sur la maison ou sur les démarches à suivre. Concrétisez vos projets immobiliers avec Maisons Bruno Petit MJB Châteauroux.
Logement susceptibles de vous intéresser
Nous vous proposons de découvrir aussi cette sélection de logements situés à moins de 10km de Reuilly et qui seraient susceptibles de vous intéresser.
Reuilly
TERRAIN ET MAISONMaison de 4 pièces (85 m²) à vendre à ReuillyEmplacement privilégié – À Reuilly (36260), maison neuve à vendre de 4 pièces, 85 m² sur 930 m² de terrain. Elle compte trois chambres, une cuisine et une salle de bains.À dix minutes : gare (Reuilly), écoles, tennis, boulangerie, commerces, supermarchés, boucherie-charcuterie et bureau de poste. Autoroute A20 à 9 km. Bourges à 30 km.Cette maison de 4 pièces est proposée à l’achat pour 162 100 €.Contactez Kevin GRIMAUD ((Numéro supprimé)) pour toute question sur la maison ou sur les démarches à suivre. Concrétisez vos projets immobiliers avec Maisons Bruno Petit MJB Châteauroux.
Reuilly
TERRAIN ET MAISONVENTE d’une maison de 4 pièces (85 m²) à ReuillyEmplacement privilégié – En vente à Reuilly (36260) : maison neuve 4 pièces de 85 m² sur un terrain de 930 m². Conçue de plain-pied, elle est composée de trois chambres, d’une cuisine et d’une salle de bains.Proche gare (Reuilly), écoles, tennis, boulangerie, commerces, supermarchés, boucherie-charcuterie et bureau de poste. Autoroute A20 accessible à 9 km. Bourges à 30 km.Cette maison de 4 pièces est à vendre pour la somme de 148 600 €.N’hésitez pas à prendre contact avec Kevin GRIMAUD ((Numéro supprimé)) pour tout renseignement sur la maison ou sur les démarches à suivre. Faites de vos projets immobiliers une réalité avec Maisons Bruno Petit MJB Châteauroux.
Reuilly
TERRAIN ET MAISONReuilly : maison T5 (104 m²) à vendreEmplacement privilégié – À Reuilly (36260), maison neuve à vendre de 5 pièces, 104 m² de surface sur 930 m² de terrain. Elle comporte quatre chambres, une cuisine et deux salles de bains.À dix minutes : gare (Reuilly), écoles, tennis, boulangerie, commerces, supermarchés, bureau de poste et boucherie-charcuterie. Autoroute A20 accessible à 9 km. Bourges à 30 km.Le prix de vente de cette maison de 5 pièces est de 236 500 €.Contactez Kevin GRIMAUD (tél : (Numéro supprimé)) pour obtenir de plus amples renseignements sur la maison de plain-pied. Faites de vos projets immobiliers une réalité avec Maisons Bruno Petit MJB Châteauroux.
Reuilly
TERRAIN ET MAISONVENTE d’une maison de 4 pièces (100 m²) à ReuillyEmplacement privilégié – À découvrir à Reuilly (36260) : maison neuve 4 pièces en vente, 100 m² et 930 m² de terrain. Conçue de plain-pied, elle inclut trois chambres, une cuisine et une salle de bains.À dix minutes : gare (Reuilly), écoles, tennis, boulangerie, commerces, supermarchés, bureau de poste et boucherie-charcuterie. Autoroute A20 accessible à 9 km. Bourges à 30 km.Cette maison de 4 pièces est proposée à l’achat pour 201 120 €.Prenez contact avec Kevin GRIMAUD (tél : (Numéro supprimé)) pour obtenir de plus amples informations sur la maison. Maisons Bruno Petit MJB Châteauroux est là pour vous accompagner dans tous vos projets immobiliers.
Reuilly
TERRAIN ET MAISONReuilly : maison F5 (120 m²) à vendreEmplacement privilégié – À découvrir à Reuilly (36260) : maison neuve 5 pièces en vente. 2 niveaux, surface de 120 m² sur 930 m² de terrain. Son intérieur offre quatre chambres, une cuisine et deux salles de bains.À proximité : gare (Reuilly), écoles, tennis, boulangerie, commerces, supermarchés, bureau de poste et boucherie-charcuterie. Accès autoroute A20 à 9 km. Bourges à 30 km.Cette maison de 5 pièces est à vendre pour la somme de 301 800 €.Contactez Kevin GRIMAUD (tél : (Numéro supprimé)) pour toute information sur la maison ou sur les démarches à suivre. Concrétisez vos projets immobiliers avec Maisons Bruno Petit MJB Châteauroux.
Reuilly
TERRAINVENTE d’un terrain de 930 m² à ReuillyEmplacement privilégié – En vente : terrain de 930 m² à Reuilly (36260).À dix minutes : gare (Reuilly), écoles, tennis, boulangerie, commerces, supermarchés, boucherie-charcuterie et bureau de poste. Autoroute A20 accessible à 9 km. Bourges à 30 km.Son prix de vente est de 18 000 €. Prenez contact avec notre agence (GRIMAUD Kevin : (Numéro supprimé)) pour obtenir de plus amples renseignements sur le terrain ou sur les modalités de vente. Maisons Bruno Petit MJB Châteauroux est là pour vous accompagner à toutes les étapes de l’achat.
Reuilly
TERRAIN ET MAISONReuilly : maison T7 (170 m²) en venteEmplacement privilégié – À Reuilly (36260), maison neuve à vendre de 7 pièces, 2 niveaux, 170 m² de surface et 930 m² de terrain. Son intérieur inclut quatre chambres, une cuisine et trois salles de bains.À proximité : gare (Reuilly), écoles, tennis, boulangerie, commerces, supermarchés, boucherie-charcuterie et bureau de poste. Accès autoroute A20 à 9 km. Bourges à 30 km.Cette maison de 7 pièces est proposée à l’achat pour 365 500 €.Contactez notre agence (Kevin GRIMAUD : (Numéro supprimé)) pour obtenir de plus amples renseignements sur la maison ou sur les démarches à suivre. Maisons Bruno Petit MJB Châteauroux vous accompagne dans tous vos projets immobiliers et à toutes les étapes de l’achat.
Reuilly
TERRAIN ET MAISONVENTE : maison de 6 pièces (120 m²) à ReuillyEmplacement privilégié – À vendre à Reuilly (36260) : maison neuve 6 pièces de 120 m² sur un terrain de 930 m². Conçue de plain-pied, elle est composée de quatre chambres, d’une cuisine et de deux salles de bains.Proche gare (Reuilly), écoles, tennis, boulangerie, commerces, supermarchés, boucherie-charcuterie et bureau de poste. Accès autoroute A20 à 9 km. Bourges à 30 km.Cette maison de 6 pièces est à vendre pour la somme de 272 500 €.Contactez Kevin GRIMAUD ((Numéro supprimé)) pour obtenir de plus amples informations sur la maison de plain-pied.
Sainte-Lizaigne
TERRAINSainte-Lizaigne : terrain de 1 200 m² à vendreIdéalement situé – Terrain de 1 200 m² en vente à Sainte-Lizaigne (36260).À dix minutes : gare (Sainte-Lizaigne), École Primaire les Tournesols, tennis et boulangerie. Autoroute A20 accessible à 16 km. Vierzon à 26 km.Il est proposé à l’achat pour 24 000 €. N’hésitez pas à prendre contact avec notre agence (RUBIO Franck : (Numéro supprimé)) pour obtenir de plus amples renseignements sur le terrain ou sur les démarches à suivre. Maisons Bruno Petit MJB Châteauroux vous accompagne à toutes les étapes de l’achat et dans tous vos projets immobiliers.
L’actualité immobilière à Reuilly
27/11/2023
02/11/2023
30/10/2023
20/10/2023
16/10/2023
16/10/2023