Maison à construire à Saint-Maur (36250)
Images
Description
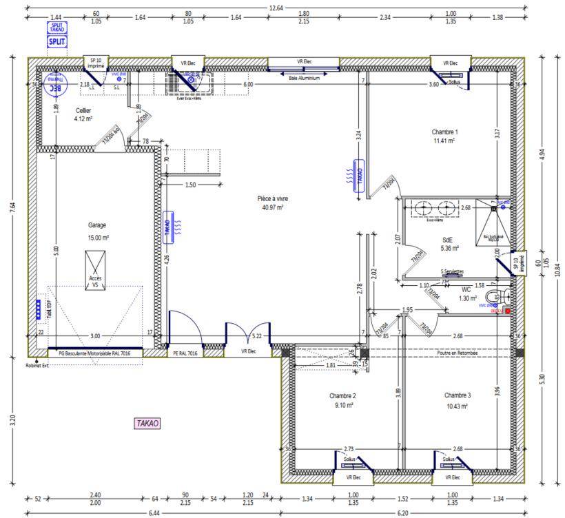
VENTE d'une maison F4 (85 m²) à Saint-Maur
Proche de Châteauroux - Maison neuve 4 pièces en vente à Saint-Maur (36250) avec une surface de 85 m² et de 831 m² de terrain. Elle inclut trois chambres, une cuisine et une salle de bains.
À dix minutes : gares (Châteauroux et Luant), écoles, tennis, commerces, boulangerie et boucherie-charcuterie. Accès autoroute A20 et nationale N151 à 7 km.
Cette maison de 4 pièces est proposée à l'achat pour 199 100 €.
Prenez contact avec Kevin GRIMAUD ((Numéro supprimé)) pour toute question sur la maison ou sur les démarches à suivre.
Logement susceptibles de vous intéresser
Nous vous proposons de découvrir aussi cette sélection de logements situés à moins de 10km de Saint-Maur et qui seraient susceptibles de vous intéresser.
Le Poinçonnet
TERRAIN ET MAISONVENTE : maison F5 (200 m²) au PoinçonnetEmplacement privilégié – Maison neuve 5 pièces en vente au Poinçonnet (36330) avec 2 niveaux, une surface de 200 m² sur un terrain de 1 120 m². Son intérieur propose quatre chambres, une cuisine et deux salles de bains.À dix minutes : gare (Châteauroux), écoles, tennis, boulangeries, commerces, boucheries-charcuteries, bureau de poste et épicerie. Accès autoroute A20 et nationale N151 à 8 km. Châteauroux à 6 km.Le prix de vente de cette maison de 5 pièces est de 536 700 €.Prenez contact avec Thomas MANIERE ((Numéro supprimé)) pour plus d’informations sur la maison, sur les démarches à suivre ou sur les modalités de vente. Maisons Bruno Petit MJB Châteauroux est là pour vous accompagner à toutes les étapes de votre projet.
Déols
TERRAIN ET MAISONDéols : maison T4 (85 m²) en venteProche de Châteauroux – À Déols (36130), maison neuve en vente de 4 pièces, 85 m² de surface sur 560 m² de terrain. Elle comporte trois chambres, une cuisine et une salle de bains.À dix minutes : gare (Châteauroux), établissements scolaires, tennis, bassin de natation, boulangeries, commerces, supermarché, boucheries-charcuteries et bureau de poste. Autoroute A20 et nationale N151 accessibles à 3 km.Cette maison de 4 pièces est proposée à l’achat pour 178 100 €.Prenez contact avec Thomas MANIERE ((Numéro supprimé)) pour plus de renseignements sur la maison ou sur les modalités de vente. Maisons Bruno Petit MJB Châteauroux est là pour vous accompagner à toutes les étapes de l’achat.
Le Poinçonnet
TERRAIN ET MAISONMaison F4 (85 m²) à vendre au PoinçonnetEmplacement privilégié – À vendre au Poinçonnet (36330) : maison neuve 4 pièces de 85 m² sur un terrain de 1 120 m². Conçue de plain-pied, elle offre trois chambres, une cuisine et une salle de bains.À proximité : gare (Châteauroux), écoles, tennis, boulangeries, commerces, bureau de poste, épicerie et boucheries-charcuteries. Accès autoroute A20 et nationale N151 à 8 km. Châteauroux à 6 km.Le prix de vente de cette maison de 4 pièces est de 204 100 €.Contactez notre agence (Thomas MANIERE : (Numéro supprimé)) pour tout renseignement sur la maison ou sur les démarches à suivre.
Déols
TERRAIN ET MAISONVENTE d’une maison T4 (85 m²) à DéolsProche de Châteauroux – Maison neuve 4 pièces à vendre à Déols (36130) avec une surface de 85 m² sur un terrain de 560 m². Son intérieur dispose de trois chambres, d’une cuisine et d’une salle de bains.Proche gare (Châteauroux), établissements scolaires, tennis, bassin de natation, boulangeries, commerces, supermarché, épicerie et boucheries-charcuteries. Accès autoroute A20 et nationale N151 à 3 km.Le prix de vente de cette maison de 4 pièces est de 175 950 €.Prenez contact avec Thomas MANIERE ((Numéro supprimé)) pour plus de renseignements sur la maison. Maisons Bruno Petit MJB Châteauroux est là pour vous accompagner à toutes les étapes de l’achat.
Le Poinçonnet
TERRAIN ET MAISONLe Poinçonnet : maison T4 (85 m²) à vendreEmplacement privilégié – À découvrir au Poinçonnet (36330) : maison neuve 4 pièces à vendre. Surface de 85 m² et 1 120 m² de terrain. Conçue de plain-pied, elle se divise en trois chambres, une cuisine et une salle de bains.À proximité : gare (Châteauroux), écoles, tennis, boulangeries, commerces, bureau de poste, épicerie et boucheries-charcuteries. Accès autoroute A20 et nationale N151 à 8 km. Châteauroux à 6 km.Le prix de vente de cette maison de 4 pièces est de 201 950 €.N’hésitez pas à prendre contact avec notre agence (Thomas MANIERE : (Numéro supprimé)) pour toute question sur la maison. Donnez vie à vos projets immobiliers avec Maisons Bruno Petit MJB Châteauroux.
Déols
TERRAIN ET MAISONMaison F4 (85 m²) en vente à DéolsProche de Châteauroux – À vendre à Déols (36130) : maison neuve 4 pièces de 85 m² et de 560 m² de terrain. Son intérieur offre trois chambres, une cuisine et une salle de bains.À proximité : gare (Châteauroux), établissements scolaires, tennis, bassin de natation, boulangeries, commerces, supermarché, boucheries-charcuteries et épicerie. Accès autoroute A20 et nationale N151 à 3 km.Cette maison de 4 pièces est proposée à l’achat pour 164 600 €.Contactez notre agence (Thomas MANIERE : (Numéro supprimé)) pour toute information sur la maison de plain-pied. Maisons Bruno Petit MJB Châteauroux est là pour vous accompagner dans tous vos projets immobiliers.
Déols
TERRAIN ET MAISONVENTE : maison de 3 pièces (70 m²) à DéolsProche de Châteauroux – Maison neuve 3 pièces en vente à Déols (36130) avec une surface de 70 m² sur un terrain de 560 m². Son intérieur est composé de deux chambres, d’une cuisine et d’une salle de bains.À proximité : gare (Châteauroux), établissements scolaires, tennis, bassin de natation, boulangeries, commerces, supermarché, boucheries-charcuteries et épicerie. Accès autoroute A20 et nationale N151 à 3 km.Le prix de vente de cette maison de 3 pièces est de 164 900 €.N’hésitez pas à prendre contact avec notre agence (Thomas MANIERE : (Numéro supprimé)) pour toute question sur la maison.
Déols
TERRAIN ET MAISONVENTE : maison T5 (100 m²) à DéolsProche de Châteauroux – À découvrir à Déols (36130) : maison neuve 5 pièces en vente, 100 m² de surface sur 560 m² de terrain. Conçue de plain-pied, elle compte trois chambres, une cuisine et deux salles de bains.À dix minutes : gare (Châteauroux), établissements scolaires, tennis, bassin de natation, boulangeries, commerces, supermarché, boucheries-charcuteries et épicerie. Autoroute A20 et nationale N151 à 3 km.Le prix de vente de cette maison de 5 pièces est de 185 700 €.Contactez notre agence (Thomas MANIERE : (Numéro supprimé)) pour toute information sur la maison de plain-pied ou sur les modalités de vente. Maisons Bruno Petit MJB Châteauroux vous accompagne dans tous vos projets immobiliers et à toutes les étapes de l’achat.
Le Poinçonnet
TERRAIN ET MAISONVENTE : maison de 4 pièces (110 m²) au PoinçonnetEmplacement privilégié – Maison neuve 4 pièces à vendre au Poinçonnet (36330) avec une surface de 110 m² et de 1 120 m² de terrain. Conçue de plain-pied, elle est composée de trois chambres, d’une cuisine et de deux salles de bains.À dix minutes : gare (Châteauroux), écoles, tennis, boulangeries, commerces, épicerie, boucheries-charcuteries et bureau de poste. Autoroute A20 et nationale N151 à 8 km. Châteauroux à 6 km.Le prix de vente de cette maison de 4 pièces est de 262 100 €.Contactez notre agence (Thomas MANIERE : (Numéro supprimé)) pour toute information sur la maison ou sur les modalités de vente. Maisons Bruno Petit MJB Châteauroux est là pour vous accompagner dans tous vos projets immobiliers.
L’actualité immobilière à Saint-Maur
27/11/2023
02/11/2023
30/10/2023
20/10/2023
16/10/2023
16/10/2023