Maison à construire à Sainte-Gemme (36500)
Images
Description
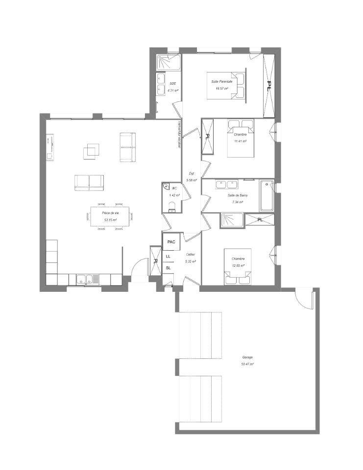
VENTE : maison T4 (110 m²) à Sainte-Gemme
Emplacement privilégié - À Sainte-Gemme (36500), maison neuve à vendre de 4 pièces, 110 m² de surface et 1 076 m² de terrain. Son intérieur propose trois chambres, une cuisine et deux salles de bains.
À dix minutes : commerce. Châteauroux à 28 km.
Le prix de vente de cette maison de 4 pièces est de 304 660 €.
Prenez contact avec notre agence (Kevin GRIMAUD : *6-22-14-89-67) pour obtenir de plus amples renseignements sur la maison, sur les modalités de vente ou sur les démarches à suivre. Concrétisez vos projets immobiliers avec Maisons Bruno Petit MJB Châteauroux.
Logement susceptibles de vous intéresser
Nous vous proposons de découvrir aussi cette sélection de logements situés à moins de 10km de Sainte-Gemme et qui seraient susceptibles de vous intéresser.
Sainte-Gemme
TERRAIN ET MAISONSainte-Gemme : maison de 5 pièces (145 m²) en venteIdéalement située – À découvrir à Sainte-Gemme (36500) : maison neuve 5 pièces en vente. Surface de 145 m² sur 1 952 m² de terrain. Conçue de plain-pied, elle se divise en quatre chambres, une cuisine et deux salles de bains.À proximité : commerce. Châteauroux à 28 km.Le prix de vente de cette maison de 5 pièces est de 284 000 €.Prenez contact avec notre agence (GRIMAUD Kevin : *6-22-14-89-67) pour plus de renseignements sur la maison. Donnez vie à vos projets immobiliers avec Maisons Bruno Petit MJB Châteauroux.
Buzançais
TERRAIN ET MAISONBuzançais : maison de 5 pièces (121 m²) à vendreProche de Châteauroux – À vendre à Buzançais (36500) : maison neuve 5 pièces de 121 m² et de 960 m² de terrain. Conçue de plain-pied, elle inclut trois chambres, une cuisine et deux salles de bains.À proximité : établissements scolaires, bassin de natation, tennis, bibliothèque, boulangeries, commerces, supermarché, bureau de poste et boucheries-charcuteries. Marché Place de Gaulle le vendredi matin. Accès autoroute A20 à 18 km.Cette maison de 5 pièces est à vendre pour la somme de 253 784 €.Contactez Franck RUBIO (tél : *6-30-49-64-43) pour toute question sur la maison ou sur les modalités de vente. Donnez vie à vos projets immobiliers avec Maisons Bruno Petit MJB Châteauroux.
Buzançais
TERRAIN ET MAISONBuzançais : maison de 4 pièces (105 m²) à vendreProche de Châteauroux – À Buzançais (36500), maison neuve en vente de 4 pièces, 105 m² et 960 m² de terrain. Elle offre quatre chambres, une cuisine et deux salles de bains.À dix minutes : établissements scolaires, bassin de natation, tennis, bibliothèque, boulangeries, commerces, supermarché, boucheries-charcuteries et bureau de poste. Marché Place de Gaulle le vendredi matin. Accès autoroute A20 à 18 km.Cette maison de 4 pièces est à vendre pour la somme de 217 784 €.Contactez notre agence (Franck RUBIO : *6-30-49-64-43) pour toute question sur la maison de plain-pied, sur les modalités de vente ou sur les démarches à suivre. Donnez vie à vos projets immobiliers avec Maisons Bruno Petit MJB Châteauroux.
Sainte-Gemme
TERRAINTerrain de 1 076 m² à vendre à Sainte-GemmeEmplacement privilégié – Terrain de 1 076 m² à Sainte-Gemme (36500).À dix minutes : commerce. Châteauroux à 28 km.Il est à vendre pour la somme de 14 660 €. Prenez contact avec Kevin GRIMAUD (*6-22-14-89-67) pour tout renseignement sur le terrain et sur les modalités de vente. Maisons Bruno Petit MJB Châteauroux est là pour vous accompagner dans tous vos projets immobiliers.
Buzançais
TERRAIN ET MAISONVENTE d’une maison F4 (95 m²) à BuzançaisIdéalement située – À découvrir à Buzançais (36500) : maison neuve 4 pièces à vendre, 95 m² sur 960 m² de terrain. Son intérieur compte trois chambres, une cuisine et deux salles de bains.À dix minutes : établissements scolaires, bassin de natation, tennis, bibliothèque, boulangeries, commerces, supermarché, boucheries-charcuteries et bureau de poste. Marché Place de Gaulle le vendredi matin. Autoroute A20 à 18 km. Châteauroux à 22 km.Le prix de vente de cette maison de 4 pièces est de 198 084 €.Contactez Kevin GRIMAUD (*6-22-14-89-67) pour toute information sur la maison, sur les modalités de vente ou sur les démarches à suivre. Maisons Bruno Petit MJB Châteauroux vous accompagne à toutes les étapes de votre projet et dans tous vos projets immobiliers.
Buzançais
TERRAIN ET MAISONVENTE : maison de 4 pièces (85 m²) à BuzançaisIdéalement située – En vente à Buzançais (36500) : maison neuve 4 pièces de 85 m² sur un terrain de 960 m². Son intérieur dispose de trois chambres, d’une cuisine et d’une salle de bains.À dix minutes : établissements scolaires, bassin de natation, tennis, bibliothèque, boulangeries, commerces, supermarché, boucheries-charcuteries et bureau de poste. Marché Place de Gaulle le vendredi matin. Accès autoroute A20 à 18 km. Châteauroux à 22 km.Cette maison de 4 pièces est à vendre pour la somme de 178 084 €.Contactez Kevin GRIMAUD (tél : *6-22-14-89-67) pour tout renseignement sur la maison, sur les modalités de vente ou sur les démarches à suivre. Maisons Bruno Petit MJB Châteauroux est là pour vous accompagner dans tous vos projets immobiliers.
Buzançais
TERRAIN ET MAISONVENTE d’une maison T4 (110 m²) à BuzançaisIdéalement située – À Buzançais (36500), maison neuve à vendre de 4 pièces, 110 m² et 960 m² de terrain. Conçue de plain-pied, elle inclut trois chambres, une cuisine et deux salles de bains.Proche établissements scolaires, bassin de natation, tennis, bibliothèque, boulangeries, commerces, supermarché, bureau de poste et boucheries-charcuteries. Marché Place de Gaulle le vendredi matin. Accès autoroute A20 à 18 km. Châteauroux à 22 km.Cette maison de 4 pièces est à vendre pour la somme de 236 085 €.N’hésitez pas à prendre contact avec Kevin GRIMAUD (tél : *6-22-14-89-67) pour tout renseignement sur la maison. Maisons Bruno Petit MJB Châteauroux est là pour vous accompagner dans tous vos projets immobiliers.
Sainte-Gemme
TERRAIN ET MAISONSainte-Gemme : maison F3 (100 m²) en venteEmplacement privilégié – À Sainte-Gemme (36500), maison neuve à vendre de 3 pièces, 100 m² et 1 076 m² de terrain. Elle offre deux chambres, une cuisine et deux salles de bains.À dix minutes : commerce. Châteauroux à 28 km.Le prix de vente de cette maison de 3 pièces est de 212 660 €.Contactez notre agence (GRIMAUD Kevin : *6-22-14-89-67) pour obtenir de plus amples informations sur la maison de plain-pied.
Buzançais
TERRAIN ET MAISONVENTE d’une maison F6 (140 m²) à BuzançaisIdéalement située – À découvrir à Buzançais (36500) : maison neuve 6 pièces à vendre, 140 m² sur 960 m² de terrain. Elle est composée de quatre chambres, d’une cuisine et de deux salles de bains.À dix minutes : établissements scolaires, bassin de natation, tennis, bibliothèque, boulangeries, commerces, supermarché, bureau de poste et boucheries-charcuteries. Marché Place de Gaulle le vendredi matin. Accès autoroute A20 à 18 km. Châteauroux à 22 km.Cette maison de 6 pièces est à vendre pour la somme de 348 985 €.Prenez contact avec notre agence (Kevin GRIMAUD : *6-22-14-89-67) pour plus d’informations sur la maison ou sur les modalités de vente. Maisons Bruno Petit MJB Châteauroux vous accompagne dans tous vos projets immobiliers et à toutes les étapes de votre projet.
L’actualité immobilière à Sainte-Gemme
27/11/2023
02/11/2023
30/10/2023
20/10/2023
16/10/2023
16/10/2023