Maison à construire à Sainte-Lizaigne (36260)
Images
Description
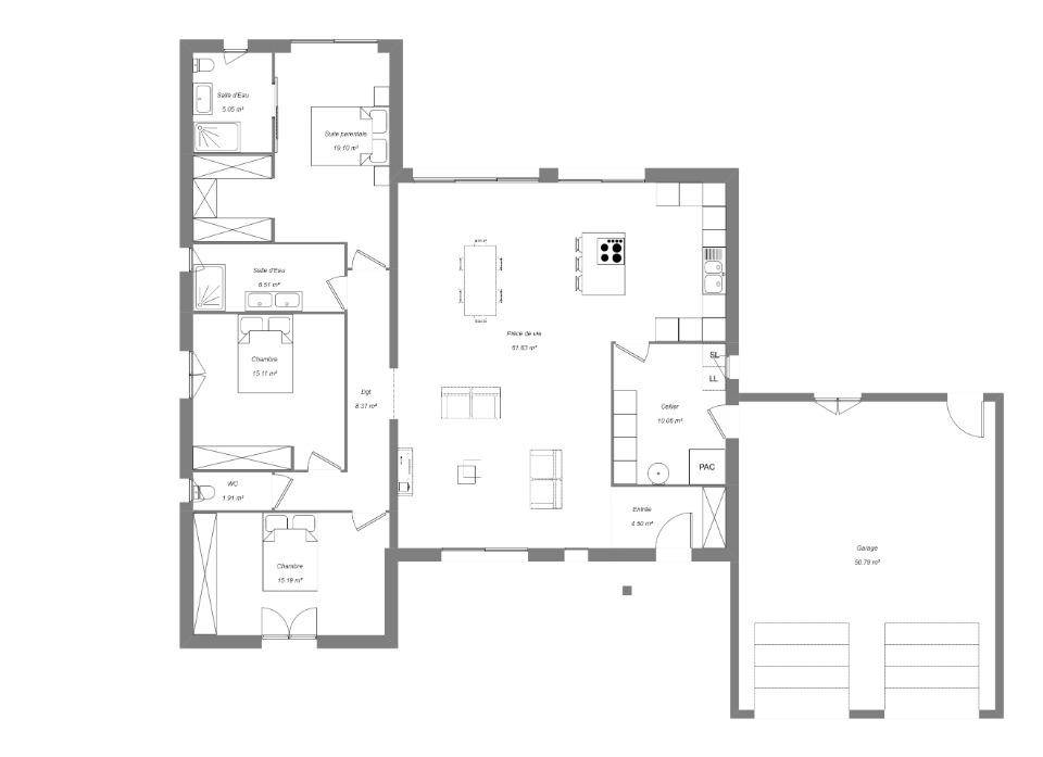
Sainte-Lizaigne : maison de 5 pièces (140 m²) à vendre
Idéalement située - En vente à Sainte-Lizaigne (36260) : maison neuve 5 pièces de 140 m² et de 1 200 m² de terrain. Son intérieur est composé de trois chambres, d'une cuisine et de deux salles de bains.
À dix minutes : gare (Sainte-Lizaigne), École Primaire les Tournesols, tennis et boulangerie. Accès autoroute A20 à 16 km. Vierzon à 26 km.
Cette maison de 5 pièces est proposée à l'achat pour 387 000 €.
Contactez Franck RUBIO ((Numéro supprimé)) pour plus d'informations sur la maison ou sur les modalités de vente. Maisons Bruno Petit MJB Châteauroux est là pour vous accompagner à toutes les étapes de l'achat.
Logement susceptibles de vous intéresser
Nous vous proposons de découvrir aussi cette sélection de logements situés à moins de 10km de Sainte-Lizaigne et qui seraient susceptibles de vous intéresser.
Issoudun
TERRAIN ET MAISONVENTE d’une maison T4 (85 m²) à IssoudunIdéalement située – À découvrir à Issoudun (36100) : maison neuve 4 pièces à vendre, 85 m² sur 556 m² de terrain. Elle inclut trois chambres, une cuisine et une salle de bains.À dix minutes : gare (Issoudun), établissements scolaires, bibliothèque, commerces, boulangeries, supermarché, boucheries-charcuteries et bureau de poste. Marché Centre-Ville le samedi. Autoroute A20 à 18 km. Châteauroux à 29 km.Cette maison de 4 pièces est proposée à l’achat pour 173 900 €.Contactez Thomas MANIERE ((Numéro supprimé)) pour toute information sur la maison ou sur les démarches à suivre. Concrétisez vos projets immobiliers avec Maisons Bruno Petit MJB Châteauroux.
Issoudun
TERRAIN ET MAISONIssoudun : maison T4 (85 m²) à vendreIdéalement située – À vendre à Issoudun (36100) : maison neuve 4 pièces de 85 m² et de 556 m² de terrain. Elle comporte trois chambres, une cuisine et une salle de bains.À proximité : gare (Issoudun), établissements scolaires, bibliothèque, commerces, boulangeries, supermarché, épiceries et bureau de poste. Marché Centre-Ville le samedi. Accès autoroute A20 à 18 km. Châteauroux à 29 km.Cette maison de 4 pièces est à vendre pour la somme de 171 750 €.Prenez contact avec notre agence (Thomas MANIERE : (Numéro supprimé)) pour tout renseignement sur la maison de plain-pied. Maisons Bruno Petit MJB Châteauroux est là pour vous accompagner dans toutes vos démarches.
Issoudun
TERRAIN ET MAISONVENTE d’une maison F4 (85 m²) à IssoudunIdéalement située – À Issoudun (36100), maison neuve en vente de 4 pièces, 85 m² et 556 m² de terrain. Conçue de plain-pied, elle dispose de trois chambres, d’une cuisine et d’une salle de bains.Proche gare (Issoudun), établissements scolaires, bibliothèque, commerces, boulangeries, supermarché, boucheries-charcuteries et épiceries. Marché Centre-Ville le samedi. Accès autoroute A20 à 18 km. Châteauroux à 29 km.Cette maison de 4 pièces est proposée à l’achat pour 160 400 €.Prenez contact avec notre agence (MANIERE Thomas : (Numéro supprimé)) pour tout renseignement sur la maison. Maisons Bruno Petit MJB Châteauroux vous accompagne dans toutes vos démarches et dans tous vos projets immobiliers.
Issoudun
TERRAIN ET MAISONMaison T3 (70 m²) à vendre à IssoudunIdéalement située – À découvrir à Issoudun (36100) : maison neuve 3 pièces en vente. Surface de 70 m² et 556 m² de terrain. Son intérieur propose deux chambres, une cuisine et une salle de bains.À dix minutes : gare (Issoudun), établissements scolaires, bibliothèque, commerces, boulangeries, supermarché, bureau de poste et épiceries. Marché Centre-Ville le samedi. Autoroute A20 à 18 km. Châteauroux à 29 km.Cette maison de 3 pièces est proposée à l’achat pour 160 700 €.N’hésitez pas à prendre contact avec Thomas MANIERE ((Numéro supprimé)) pour plus de renseignements sur la maison ou sur les modalités de vente.
Issoudun
TERRAIN ET MAISONIssoudun : maison F5 (90 m²) à vendreIdéalement située – À découvrir à Issoudun (36100) : maison neuve 5 pièces en vente, 90 m² et 556 m² de terrain. Son intérieur propose quatre chambres, une cuisine et une salle de bains.À proximité : gare (Issoudun), établissements scolaires, bibliothèque, commerces, boulangeries, supermarché, boucheries-charcuteries et bureau de poste. Marché Centre-Ville le samedi. Accès autoroute A20 à 18 km. Châteauroux à 29 km.Cette maison de 5 pièces est à vendre pour la somme de 191 500 €.N’hésitez pas à prendre contact avec Thomas MANIERE (tél : (Numéro supprimé)) pour toute question sur la maison. Concrétisez vos projets immobiliers avec Maisons Bruno Petit MJB Châteauroux.
Issoudun
TERRAINTerrain de 556 m² à vendre à IssoudunIdéalement situé – Terrain de 556 m² à Issoudun (36100).Proche gare (Issoudun), établissements scolaires, bibliothèque, commerces, boulangeries, supermarché, épiceries et boucheries-charcuteries. Marché Centre-Ville le samedi. Accès autoroute A20 à 18 km. Châteauroux à 29 km.Il est à vendre pour la somme de 29 800 €. Contactez notre agence (MANIERE Thomas : (Numéro supprimé)) pour tout renseignement sur le terrain ou sur les modalités de vente.
Issoudun
TERRAIN ET MAISONMaison de 4 pièces (85 m²) à vendre à IssoudunEmplacement privilégié – À découvrir à Issoudun (36100) : maison neuve 4 pièces en vente. Surface de 85 m² sur 600 m² de terrain. Elle comporte trois chambres, une cuisine et une salle de bains.À proximité : gare (Issoudun), établissements scolaires, bibliothèque, commerces, boulangeries, supermarché, épiceries et bureau de poste. Marché Centre-Ville le samedi. Accès autoroute A20 à 18 km. Châteauroux à 29 km.Cette maison de 4 pièces est à vendre pour la somme de 180 100 €.Contactez notre agence (GRIMAUD Kevin : (Numéro supprimé)) pour toute question sur la maison, sur les modalités de vente ou sur les démarches à suivre. Maisons Bruno Petit MJB Châteauroux vous accompagne à toutes les étapes de l’achat et dans tous vos projets immobiliers.
Reuilly
TERRAIN ET MAISONMaison de 4 pièces (85 m²) à vendre à ReuillyEmplacement privilégié – À Reuilly (36260), maison neuve à vendre de 4 pièces, 85 m² sur 930 m² de terrain. Elle compte trois chambres, une cuisine et une salle de bains.À dix minutes : gare (Reuilly), écoles, tennis, boulangerie, commerces, supermarchés, boucherie-charcuterie et bureau de poste. Autoroute A20 à 9 km. Bourges à 30 km.Cette maison de 4 pièces est proposée à l’achat pour 162 100 €.Contactez Kevin GRIMAUD ((Numéro supprimé)) pour toute question sur la maison ou sur les démarches à suivre. Concrétisez vos projets immobiliers avec Maisons Bruno Petit MJB Châteauroux.
Issoudun
TERRAIN ET MAISONVENTE d’une maison de 4 pièces (85 m²) à IssoudunEmplacement privilégié – À découvrir à Issoudun (36100) : maison neuve 4 pièces en vente. Surface de 85 m² sur 600 m² de terrain. Conçue de plain-pied, elle inclut trois chambres, une cuisine et une salle de bains.À dix minutes : gare (Issoudun), établissements scolaires, bibliothèque, commerces, boulangeries, supermarché, épiceries et bureau de poste. Marché Centre-Ville le samedi. Autoroute A20 accessible à 18 km. Châteauroux à 29 km.Cette maison de 4 pièces est à vendre pour la somme de 166 600 €.N’hésitez pas à prendre contact avec Kevin GRIMAUD ((Numéro supprimé)) pour obtenir de plus amples informations sur la maison ou sur les démarches à suivre. Maisons Bruno Petit MJB Châteauroux vous accompagne à toutes les étapes de l’achat et dans tous vos projets immobiliers.
L’actualité immobilière à Sainte-Lizaigne
27/11/2023
02/11/2023
30/10/2023
20/10/2023
16/10/2023
16/10/2023