Maison à construire à Velles (36330)
Images
Description
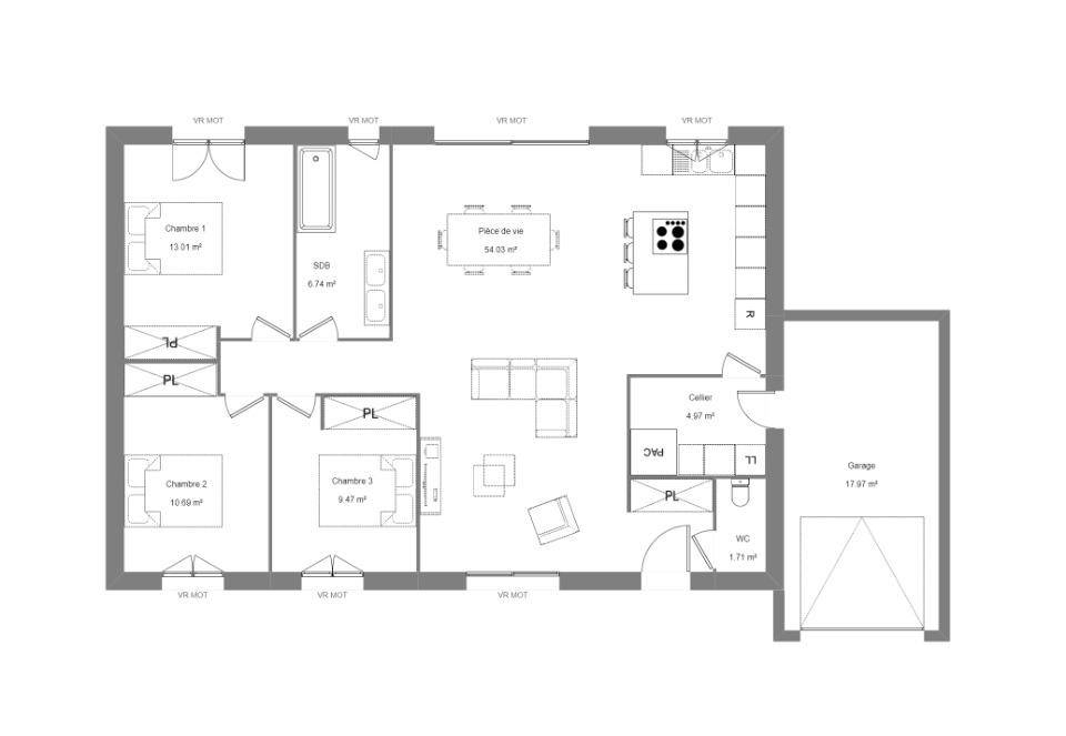
VENTE : maison de 4 pièces (90 m²) à Velles
Emplacement privilégié -  À Velles (36330), maison neuve en vente de 4 pièces, 90 m² et 1 200 m² de terrain. Son intérieur est composé de trois chambres, d'une cuisine et d'une salle de bains.
Proche gares (Lothiers et Luant), École Primaire Simone Veil, tennis, boulangerie et bureau de poste. Accès autoroute A20 à 6 km. Châteauroux à 12 km.
Le prix de vente de cette maison de 4 pièces est de 216 440 €.
N'hésitez pas à prendre contact avec notre agence (GRIMAUD Kevin : (Numéro supprimé)) pour tout renseignement sur la maison ou sur les modalités de vente. Maisons Bruno Petit MJB Châteauroux vous accompagne à toutes les étapes de l'achat et dans toutes vos démarches.
Logement susceptibles de vous intéresser
Nous vous proposons de découvrir aussi cette sélection de logements situés à moins de 10km de Velles et qui seraient susceptibles de vous intéresser.
 
  
 
 Le Poinçonnet
TERRAIN ET MAISONVENTE : maison F5 (200 m²) au PoinçonnetEmplacement privilégié – Maison neuve 5 pièces en vente au Poinçonnet (36330) avec 2 niveaux, une surface de 200 m² sur un terrain de 1 120 m². Son intérieur propose quatre chambres, une cuisine et deux salles de bains.À dix minutes : gare (Châteauroux), écoles, tennis, boulangeries, commerces, boucheries-charcuteries, bureau de poste et épicerie. Accès autoroute A20 et nationale N151 à 8 km. Châteauroux à 6 km.Le prix de vente de cette maison de 5 pièces est de 536 700 €.Prenez contact avec Thomas MANIERE ((Numéro supprimé)) pour plus d’informations sur la maison, sur les démarches à suivre ou sur les modalités de vente. Maisons Bruno Petit MJB Châteauroux est là pour vous accompagner à toutes les étapes de votre projet.
 
  
 
 Le Poinçonnet
TERRAIN ET MAISONMaison F4 (85 m²) à vendre au PoinçonnetEmplacement privilégié – À vendre au Poinçonnet (36330) : maison neuve 4 pièces de 85 m² sur un terrain de 1 120 m². Conçue de plain-pied, elle offre trois chambres, une cuisine et une salle de bains.À proximité : gare (Châteauroux), écoles, tennis, boulangeries, commerces, bureau de poste, épicerie et boucheries-charcuteries. Accès autoroute A20 et nationale N151 à 8 km. Châteauroux à 6 km.Le prix de vente de cette maison de 4 pièces est de 204 100 €.Contactez notre agence (Thomas MANIERE : (Numéro supprimé)) pour tout renseignement sur la maison ou sur les démarches à suivre.
 
  
 
 Arthon
TERRAIN ET MAISONMaison T4 (85 m²) à vendre à ArthonProche de Châteauroux – En vente à Arthon (36330) : maison neuve 4 pièces de 85 m² et de 700 m² de terrain. Conçue de plain-pied, elle compte trois chambres, une cuisine et une salle de bains.À proximité : gare (Luant), écoles, tennis, bibliothèque, boulangerie, épicerie et boucherie-charcuterie. Autoroute A20 à 9 km.Cette maison de 4 pièces est proposée à l’achat pour 174 400 €.Contactez notre agence (MANIERE Thomas : (Numéro supprimé)) pour tout renseignement sur la maison de plain-pied.
 
  
 
 Le Poinçonnet
TERRAIN ET MAISONLe Poinçonnet : maison T4 (85 m²) à vendreEmplacement privilégié – À découvrir au Poinçonnet (36330) : maison neuve 4 pièces à vendre. Surface de 85 m² et 1 120 m² de terrain. Conçue de plain-pied, elle se divise en trois chambres, une cuisine et une salle de bains.À proximité : gare (Châteauroux), écoles, tennis, boulangeries, commerces, bureau de poste, épicerie et boucheries-charcuteries. Accès autoroute A20 et nationale N151 à 8 km. Châteauroux à 6 km.Le prix de vente de cette maison de 4 pièces est de 201 950 €.N’hésitez pas à prendre contact avec notre agence (Thomas MANIERE : (Numéro supprimé)) pour toute question sur la maison. Donnez vie à vos projets immobiliers avec Maisons Bruno Petit MJB Châteauroux.
 
  
 
 Arthon
TERRAIN ET MAISONArthon : maison de 4 pièces (85 m²) à vendreProche de Châteauroux – À Arthon (36330), maison neuve en vente de 4 pièces, 85 m² et 700 m² de terrain. Conçue de plain-pied, elle compte trois chambres, une cuisine et une salle de bains.À dix minutes : gare (Luant), écoles, tennis, bibliothèque, boulangerie, boucherie-charcuterie et épicerie. Autoroute A20 accessible à 9 km.Cette maison de 4 pièces est à vendre pour la somme de 172 250 €.N’hésitez pas à prendre contact avec Thomas MANIERE ((Numéro supprimé)) pour obtenir de plus amples renseignements sur la maison de plain-pied ou sur les modalités de vente. Donnez vie à vos projets immobiliers avec Maisons Bruno Petit MJB Châteauroux.
 
  
 
 Arthon
TERRAIN ET MAISONMaison T4 (85 m²) en vente à ArthonProche de Châteauroux – À vendre à Arthon (36330) : maison neuve 4 pièces de 85 m² sur un terrain de 700 m². Son intérieur dispose de trois chambres, d’une cuisine et d’une salle de bains.Proche gare (Luant), écoles, tennis, bibliothèque, boulangerie, épicerie et boucherie-charcuterie. Autoroute A20 accessible à 9 km.Le prix de vente de cette maison de 4 pièces est de 160 900 €.N’hésitez pas à prendre contact avec Thomas MANIERE (tél : (Numéro supprimé)) pour toute information sur la maison, sur les modalités de vente ou sur les démarches à suivre.
 
  
 
 Arthon
TERRAIN ET MAISONVENTE : maison F3 (70 m²) à ArthonProche de Châteauroux – À Arthon (36330), maison neuve à vendre de 3 pièces, 70 m² de surface et 700 m² de terrain. Conçue de plain-pied, elle compte deux chambres, une cuisine et une salle de bains.Proche gare (Luant), écoles, tennis, bibliothèque, boulangerie, épicerie et boucherie-charcuterie. Autoroute A20 à 9 km.Cette maison de 3 pièces est proposée à l’achat pour 161 200 €.Prenez contact avec Thomas MANIERE ((Numéro supprimé)) pour obtenir de plus amples renseignements sur la maison ou sur les démarches à suivre. Maisons Bruno Petit MJB Châteauroux vous accompagne à toutes les étapes de l’achat et dans tous vos projets immobiliers.
 
  
 
 Le Poinçonnet
TERRAIN ET MAISONVENTE : maison de 4 pièces (110 m²) au PoinçonnetEmplacement privilégié – Maison neuve 4 pièces à vendre au Poinçonnet (36330) avec une surface de 110 m² et de 1 120 m² de terrain. Conçue de plain-pied, elle est composée de trois chambres, d’une cuisine et de deux salles de bains.À dix minutes : gare (Châteauroux), écoles, tennis, boulangeries, commerces, épicerie, boucheries-charcuteries et bureau de poste. Autoroute A20 et nationale N151 à 8 km. Châteauroux à 6 km.Le prix de vente de cette maison de 4 pièces est de 262 100 €.Contactez notre agence (Thomas MANIERE : (Numéro supprimé)) pour toute information sur la maison ou sur les modalités de vente. Maisons Bruno Petit MJB Châteauroux est là pour vous accompagner dans tous vos projets immobiliers.
 
  
 
 Le Poinçonnet
TERRAIN ET MAISONVENTE d’une maison T5 (140 m²) au PoinçonnetEmplacement privilégié – Maison neuve 5 pièces en vente au Poinçonnet (36330) avec une surface de 140 m² sur un terrain de 1 120 m². Conçue de plain-pied, elle se divise en trois chambres, une cuisine et deux salles de bains.À proximité : gare (Châteauroux), écoles, tennis, boulangeries, commerces, boucheries-charcuteries, épicerie et bureau de poste. Autoroute A20 et nationale N151 accessibles à 8 km. Châteauroux à 6 km.Le prix de vente de cette maison de 5 pièces est de 423 000 €.Contactez notre agence (Thomas MANIERE : (Numéro supprimé)) pour toute information sur la maison ou sur les démarches à suivre. Maisons Bruno Petit MJB Châteauroux vous accompagne à toutes les étapes de l’achat et dans tous vos projets immobiliers.
L’actualité immobilière à Velles
 30/10/2023
 
 30/10/2023
 
  16/10/2023
 
 16/10/2023
 
  
 
 
 
 
 
  
  
  
 