Maison à construire à Ambillou (37340)
Images
Description
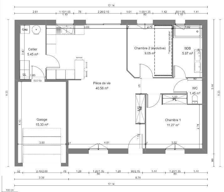
Charmante maison de 74m² de plain-pied offrant 2 chambres dont une évolutive de façon à agrandir la pièce à vivre une fois les combles aménagés.
Ce projet comprend également un garage de 15m² attenant au cellier, une salle de bain et des WC séparé.
CONSTRUCTIONS IDEALE DEMEURE a sélectionné avec un partenaire foncier un terrain pour construire cette maison.
Je reste disponible pour toutes demandes de renseignements, n'hésitez pas me contacter : Stéphane Digneton : (Numéro supprimé).
Logement susceptibles de vous intéresser
Nous vous proposons de découvrir aussi cette sélection de logements situés à moins de 10km de Ambillou et qui seraient susceptibles de vous intéresser.
Pernay
TERRAIN ET MAISONBeau terrain en lotissement. Proche des commerces. Environnement calme. Une maison qui se façonne à votre image ! Ici, pas de limites, juste des possibilités ! Un espace de vie lumineux et ouvert, idéal pour créer une ambiance conviviale et chaleureuse. Quatre chambres bien pensées, un garage attenant et un cellier discret, pour une organisation au cordeau. Besoin d’un coin lecture, d’un atelier créatif ou d’un bureau indépendant ? Chaque mètre carré s’adapte à votre mode de vie !. Imaginez, personnalisez, créez… Cette maison n’attend que votre touche !. Pour un confort optimal et conforme à la RE2025, cette maison dispose d’une PAC avec plancher chauffant et volets roulants électriques. À noter : Le prix indiqué exclut les revêtements de sol des chambres, la cuisine aménagée, la peinture, la décoration, les raccordements, les frais de notaire et l’assurance dommages-ouvrage. . // Réf. : 58-213524-YAL. Prix terrain : 77 500 €, hors frais d'agence à la charge de l'acquéreur. Ce terrain vous est proposé, par nos partenaires fonciers, dans le cadre d'un projet de construction avec nous. Les informations sur les risques auxquels ce bien est exposé sont disponibles sur le site Géorisques (www.georisques.gouv.fr). Prix maison : 170 157 €.
Pernay
TERRAIN ET MAISONBeau terrain en lotissement. Proche des commerces. Environnement calme. Une maison qui s’adapte à vous, et non l’inverse ! Oubliez les plans figés, ici c’est vous qui donnez le ton ! Un vaste espace de vie de près de 50 m², baigné de lumière et pensé pour des moments de convivialité. Une chambre au rez-de-chaussée avec salle d’eau attenante, idéale pour votre confort ou celui de vos invités. À l’étage, trois chambres spacieuses et une salle de bain vous offrent un cocon parfait. Ajoutez à cela un garage pratique et un cellier malin, et vous obtenez une maison qui évolue avec vous. Design, confort et flexibilité. Il ne manque que votre touche ! . Pour un confort optimal et conforme à la RE2025, cette maison dispose d’une PAC avec plancher chauffant, radiateurs à l’étage et volets roulants électriques. À noter : Le prix indiqué exclut les revêtements de sol des chambres, la cuisine aménagée, la peinture, la décoration, les raccordements, les frais de notaire et l’assurance dommages-ouvrage. . // Réf. : 113-213524-YAL. Prix terrain : 77 500 €, hors frais d'agence à la charge de l'acquéreur. Ce terrain vous est proposé, par nos partenaires fonciers, dans le cadre d'un projet de construction avec nous. Les informations sur les risques auxquels ce bien est exposé sont disponibles sur le site Géorisques (www.georisques.gouv.fr). Prix maison : 224 402 €.
Pernay
TERRAIN ET MAISONBeau terrain en lotissement. Proche des commerces. Environnement calme. Une maison à votre image, prête à évoluer ! Ici, tout est pensé pour s’adapter à vos envies. Un vaste espace de vie lumineux, une suite parentale avec dressing et salle d’eau, un bureau inspirant et un cellier pratique pour un quotidien fluide et organisé. À l’étage, deux belles chambres et une grande mezzanine, idéale pour un coin détente, une salle de jeux ou un espace télétravail. Personnalisez chaque mètre carré et créez un intérieur qui vous ressemble !. Ici, tout est modulable… et si vous lui donniez votre touche ?. . Pour un confort optimal et conforme à la RE2025, cette maison dispose d’une PAC avec plancher chauffant, radiateurs à l’étage et volets roulants électriques. À noter : Le prix indiqué exclut les revêtements de sol des chambres, la cuisine aménagée, la peinture, la décoration, les raccordements, les frais de notaire et l’assurance dommages-ouvrage. . // Réf. : 108-213524-YAL. Prix terrain : 77 500 €, hors frais d'agence à la charge de l'acquéreur. Ce terrain vous est proposé, par nos partenaires fonciers, dans le cadre d'un projet de construction avec nous. Les informations sur les risques auxquels ce bien est exposé sont disponibles sur le site Géorisques (www.georisques.gouv.fr). Prix maison : 228 343 €.
Pernay
TERRAINBeau terrain en lotissement. Proche des commerces. Environnement calme. // Réf. : T213524. Prix terrain : 77 500 €, hors frais d'agence et de notaire à la charge de l'acquéreur. Ce terrain vous est proposé, par nos partenaires fonciers, dans le cadre d'un projet de construction avec nous. Les informations sur les risques auxquels ce bien est exposé sont disponibles sur le site Géorisques (www.georisques.gouv.fr).
Luynes
TERRAIN ET MAISONOPPORTUNITE A SAISIR – DEVENEZ PROPRIÉTAIRE DE VOTRE MAISON SUR-MESUREDécouvrez cette demeure conçue et bâtie avec tout le savoir-faire des Maisons de Stéphanie, constructeur reconnu pour ses 30 années d’expérience et son exigence de qualité.Chaque détail est pensé pour votre confort et vos envies : une architecture élégante, des espaces lumineux et fonctionnels, et la possibilité d’adapter les plans selon votre mode de vie.Saisissez dès maintenant l’opportunité de faire de cette maison votre nouveau lieu de vie !📞 Contactez dès maintenant votre conseillère Tiphanie DUMOND des Maisons Stéphanie pour plus d’informations ou pour planifier une visite.(Numéro supprimé)N’attendez plus pour démarrer votre projet de construction, rencontrons-nous !
Luynes
TERRAIN ET MAISONOPPORTUNITE A SAISIR – DEVENEZ PROPRIÉTAIRE DE VOTRE MAISON SUR-MESUREDécouvrez cette demeure conçue et bâtie avec tout le savoir-faire des Maisons de Stéphanie, constructeur reconnu pour ses 30 années d’expérience et son exigence de qualité.Chaque détail est pensé pour votre confort et vos envies : une architecture élégante, des espaces lumineux et fonctionnels, et la possibilité d’adapter les plans selon votre mode de vie.Saisissez dès maintenant l’opportunité de faire de cette maison votre nouveau lieu de vie !📞 Contactez dès maintenant votre conseillère Tiphanie DUMOND des Maisons Stéphanie pour plus d’informations ou pour planifier une visite.(Numéro supprimé)N’attendez plus pour démarrer votre projet de construction, rencontrons-nous !
Mazières-de-Touraine
TERRAIN ET MAISONDEVENEZ PROPRIÉTAIRE DE VOTRE MAISON SUR-MESURE – OPPORTUNITE A SAISIR Découvrez cette demeure conçue et bâtie avec tout le savoir-faire des Maisons de Stéphanie, constructeur reconnu pour ses 30 années d’expérience et son exigence de qualité.Chaque détail est pensé pour votre confort et vos envies : une architecture élégante, des espaces lumineux et fonctionnels, et la possibilité d’adapter les plans selon votre mode de vie.Saisissez dès maintenant l’opportunité de faire de cette maison votre nouveau lieu de vie !Contactez Maëlle VECHTE dès maintenant au *2 47 48 09 30 pour plus d’informations et concrétiser votre projet.
Mazières-de-Touraine
TERRAIN ET MAISONDEVENEZ PROPRIÉTAIRE DE VOTRE MAISON SUR-MESURE – OPPORTUNITE A SAISIR Découvrez cette demeure conçue et bâtie avec tout le savoir-faire des Maisons de Stéphanie, constructeur reconnu pour ses 30 années d’expérience et son exigence de qualité.Chaque détail est pensé pour votre confort et vos envies : une architecture élégante, des espaces lumineux et fonctionnels, et la possibilité d’adapter les plans selon votre mode de vie.Saisissez dès maintenant l’opportunité de faire de cette maison votre nouveau lieu de vie !Contactez Maëlle VECHTE dès maintenant au *2 47 48 09 30 pour plus d’informations et concrétiser votre projet.
Luynes
TERRAIN ET MAISONOPPORTUNITE A SAISIR – DEVENEZ PROPRIÉTAIRE DE VOTRE MAISON SUR-MESUREDécouvrez cette demeure conçue et bâtie avec tout le savoir-faire des Maisons de Stéphanie, constructeur reconnu pour ses 30 années d’expérience et son exigence de qualité.Chaque détail est pensé pour votre confort et vos envies : une architecture élégante, des espaces lumineux et fonctionnels, et la possibilité d’adapter les plans selon votre mode de vie.Saisissez dès maintenant l’opportunité de faire de cette maison votre nouveau lieu de vie !📞 Contactez dès maintenant votre conseillère Tiphanie DUMOND des Maisons Stéphanie pour plus d’informations ou pour planifier une visite.(Numéro supprimé)N’attendez plus pour démarrer votre projet de construction, rencontrons-nous !
L’actualité immobilière à Ambillou
27/11/2023
02/11/2023
30/10/2023
20/10/2023
16/10/2023
16/10/2023