Images
Description
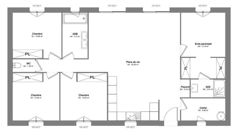
Nous vous proposons cette maison neuve, baptisée Univoque, une création qui allie avec brio le design épuré des maisons contemporaines à la chaleur et au confort des constructions traditionnelles. Conçue spécifiquement pour s'adapter aux terrains étroits, Univoque déploie ses 96 m² de surface habitable dans un agencement astucieux en forme de U, optimisant chaque espace disponible.
Cette maison de plain-pied se distingue par son clin en bois, qui lui confère un cachet et un raffinement sans pareil, soulignant l'élégance de son architecture moderne. L'intégration d'un garage, non seulement pratique mais également pensé pour s'harmoniser avec l'ensemble de la construction, ajoute une valeur indéniable à ce bien.
Univoque offre trois chambres spacieuses, promettant un confort inégalé pour toute la famille. La pièce de vie, cœur battant de la maison, est conçue pour être un espace de partage et de convivialité, baigné de lumière grâce aux baies coulissantes, une des options les plus plébiscitées par nos clients. Ces dernières permettent une transition fluide entre l'intérieur cosy et un extérieur invitant à la détente.
Construite dans le respect des normes les plus exigeantes, cette maison est un modèle de basse consommation, conforme à la réglementation environnementale RE2020. Ce choix garantit non seulement un respect de l'environnement mais aussi des économies d'énergie significatives pour ses occupants.
Univoque est donc bien plus qu'une maison ; c'est un foyer pensé pour ceux qui rêvent d'un habitat alliant esthétique moderne, fonctionnalité et engagement écologique. Ne laissez pas passer l'opportunité de construire la maison de vos rêves, adaptée à votre style de vie et respectueuse de la planète.
Logement susceptibles de vous intéresser
Nous vous proposons de découvrir aussi cette sélection de logements situés à moins de 10km de Amboise et qui seraient susceptibles de vous intéresser.
Bléré
TERRAIN ET MAISONTerrain 631 m² BLERE. Dans un joli hameau : Beau terrain à bâtir de 631m2 . Cette maison familiale moderne séduit par son architecture équilibrée et sa toiture à quatre pans, qui lui confèrent à la fois élégance et caractère. Au rez-de-chaussée, elle offre une vaste pièce de vie lumineuse ouverte sur la terrasse, idéale pour les moments de convivialité. On y trouve également une chambre avec dressing et salle d'eau privative, une cuisine fonctionnelle avec cellier, ainsi qu'un garage attenant. L'étage accueille trois chambres spacieuses, une salle de bains et un WC indépendant, offrant à chacun son espace de confort. Ce projet, entièrement personnalisable, allie modernité, praticité et bien-être familial, pour une maison aussi belle à vivre qu'à regarder. Pour vous assurer un confort de vie et conformément à la RE2025, nous avons choisi un mode de chauffage par PAC + plancher chauffant, volets roulants électriques. Prix hors décoration, revêtement de sol dans les chambres, frais de notaire, raccordements, dommage ouvrage. (Piscine non contractuelle et non comprise dans le prix. ). // Réf. : 2679-210821-JCT. Prix terrain : 70 100 €, hors frais d'agence à la charge de l'acquéreur. Ce terrain vous est proposé, par nos partenaires fonciers, dans le cadre d'un projet de construction avec nous. Les informations sur les risques auxquels ce bien est exposé sont disponibles sur le site Géorisques (www.georisques.gouv.fr). Prix maison : 300 000 €.
Bléré
TERRAIN ET MAISONTerrain 631 m² BLERE. Dans un joli hameau : Beau terrain à bâtir de 631m2 . Laissez-vous séduire par cette maison familiale contemporaine au style élégant, mise en valeur par sa toiture à pans multiples qui lui confère un charme authentique. Parfaitement pensée pour le confort de toute la famille, elle offre une grande pièce de vie lumineuse, idéale pour se retrouver, ainsi que trois chambres dont une suite parentale avec dressing et salle d'eau privative et un bureau. Son garage intégré et son cellier attenant ajoutent une touche de praticité au quotidien. Cette maison allie modernité, espace et convivialité pour un cadre de vie chaleureux et harmonieux. Pour vous assurer un confort de vie et conformément à la RE2025, nous avons choisi un mode de chauffage par PAC + plancher chauffant, volets roulants électriques. Prix hors décoration, hors revêtement de sol dans les chambres, frais de notaire, raccordements, dommage ouvrage. (Piscine non contractuelle et non comprise dans le prix. ). // Réf. : 2678-210821-JCT. Prix terrain : 70 100 €, hors frais d'agence à la charge de l'acquéreur. Ce terrain vous est proposé, par nos partenaires fonciers, dans le cadre d'un projet de construction avec nous. Les informations sur les risques auxquels ce bien est exposé sont disponibles sur le site Géorisques (www.georisques.gouv.fr). Prix maison : 268 000 €.
Bléré
TERRAIN ET MAISONTerrain 631 m² BLERE. Dans un joli hameau : Beau terrain à bâtir de 631m2 . Le modèle Islette séduit par son élégance intemporelle et son agencement en L parfaitement pensé. Avec ses 122 m² de plain-pied, cette maison contemporaine allie confort, fonctionnalité et luminosité, pour un cadre de vie à la fois convivial et apaisant. La pièce de vie centrale, baignée de lumière naturelle, devient le cœur de la maison, idéale pour partager des moments en famille ou entre amis. L’espace nuit, bien séparé, comprend 3 chambres, dont une suite parentale avec salle d’eau privative, ainsi qu’une seconde salle de bain pour encore plus de confort. Un cellier attenant à la cuisine, deux garages pratiques et une ouverture fluide sur le jardin complètent ce modèle au design soigné. Le modèle Islette se distingue par sa configuration astucieuse, son style modulable et ses prestations de qualité, pensées pour offrir un bien-être durable au quotidien. Pour vous assurer un confort de vie et conformément à la RE2025, nous avons choisi un mode de chauffage par PAC + plancher chauffant et volets roulants électriques. Prix hors décoration, frais de notaire, raccordements, dommage ouvrage. (Piscine non contractuelle et non comprise dans le prix. ). // Réf. : 2657-210821-JCT. Prix terrain : 70 100 €, hors frais d'agence à la charge de l'acquéreur. Ce terrain vous est proposé, par nos partenaires fonciers, dans le cadre d'un projet de construction avec nous. Les informations sur les risques auxquels ce bien est exposé sont disponibles sur le site Géorisques (www.georisques.gouv.fr). Prix maison : 304 000 €.
Bléré
TERRAINTerrain 631 m² BLERE. Dans un joli hameau : Beau terrain à bâtir de 631m2 . // Réf. : T210821. Prix terrain : 70 100 €, hors frais d'agence et de notaire à la charge de l'acquéreur. Ce terrain vous est proposé, par nos partenaires fonciers, dans le cadre d'un projet de construction avec nous. Les informations sur les risques auxquels ce bien est exposé sont disponibles sur le site Géorisques (www.georisques.gouv.fr).
La Croix-en-Touraine
TERRAINDécouvrez ce terrain d’une superficie généreuse de 1658 m², situé à La Croix-en-Touraine, une charmante commune du département d’Indre-et-Loire. Ce terrain, plat et non viabilisé, est l’opportunité rêvée pour concrétiser votre projet de construction de maison sur mesure. Son environnement paisible, combiné à sa situation idéale, en fait un lieu parfait pour ériger votre futur foyer, où le confort et l’harmonie seront au rendez-vous. La Croix-en-Touraine, nichée au cœur de la région Centre-Val de Loire, bénéficie d’une position stratégique à proximité d’axes routiers importants facilitant l’accès aux grandes villes avoisinantes. La commune est entourée d’une multitude d’attractions et de commodités, allant des commerces aux écoles, sans oublier la richesse du patrimoine local et des paysages pittoresques. C’est un quartier recherché, empreint de tranquillité, qui saura séduire les amoureux de la nature et ceux désireux de profiter des charmes de la vie en campagne tout en restant connectés aux commodités urbaines. Ce terrain représente une opportunité rare, à saisir pour ceux qui souhaitent réaliser leur projet de rêve dans un cadre exceptionnel. N’hésitez pas à envisager cette chance unique d’acquérir un bien au potentiel certain. À noter qu’en tant que constructeur, nous ne sommes pas mandatés pour réaliser la vente de ce terrain. Eligible au prêt à taux 0 en zone B2.
La Croix-en-Touraine
TERRAIN ET MAISONNous vous proposons cette maison neuve, baptisée « »Élégance » », un modèle qui se distingue par sa forme en L, offrant à la fois style et fonctionnalité. Avec une surface habitable de 93 m², cette maison de plain-pied est conçue pour maximiser l’espace et le confort de ses résidents. Elle comprend un grand salon-séjour lumineux, ouvert sur une cuisine moderne, idéale pour partager des moments conviviaux en famille ou entre amis. L’architecture en L permet une séparation naturelle entre l’espace de vie et l’espace nuit, ce dernier étant composé de 3 chambres spacieuses, garantissant intimité et tranquillité. La maison dispose également d’un garage intégré, pratique pour sécuriser votre véhicule ou pour du stockage supplémentaire, ainsi qu’un cellier adjacent à la cuisine, parfait pour organiser vos provisions et ustensiles de cuisine.L’une des caractéristiques les plus appréciées de ce modèle est son enduit bi-ton, qui ajoute une touche d’élégance et de modernité à l’extérieur de la maison, la faisant ressortir dans n’importe quel environnement. Construite dans le respect des normes de la RE2020, cette maison basse consommation est un choix judicieux pour ceux qui cherchent à réduire leur empreinte écologique tout en bénéficiant d’un confort optimal. Elle est personnalisable selon vos besoins et vos envies, vous permettant de créer un foyer qui vous ressemble, adapté à votre mode de vie. » »Élégance » » est plus qu’une maison, c’est un lieu de vie pensé pour votre bien-être et celui de votre famille, où chaque détail a été conçu pour répondre à vos attentes les plus élevées. Ne manquez pas l’opportunité de construire la maison de vos rêves, un espace où chaque jour sera empreint de confort, de style et d’efficacité énergétique.
La Croix-en-Touraine
TERRAINÀ vendre, un beau terrain à bâtir de 479m² situé à La Croix-en-Touraine. Plat et entièrement viabilisé, il bénéficie d’une exposition favorable. Une opportunité idéale pour réaliser votre projet de construction dans un cadre agréable.Je reste disponible pour toutes demandes de renseignements, n’hésitez pas me contacter : Stéphane Digneton : (Numéro supprimé)
La Croix-en-Touraine
TERRAIN ET MAISONVoici une belle maison à construire de 101m², comprenant quatre chambres dont une suite parentale. Elle dispose de deux salles de bain pour plus de confort. La grande pièce de vie de plus de 40m² est lumineuse grâce à ses deux baies vitrées. Cette maison allie espace et fonctionnalité pour toute la famille.Je reste disponible pour toutes demandes de renseignements, n’hésitez pas me contacter : Stéphane Digneton : (Numéro supprimé).CONSTRUCTIONS IDEALE DEMEURE a sélectionné avec un partenaire foncier un terrain pour construire cette maison.
La Croix-en-Touraine
TERRAIN ET MAISONBelle maison traditionnelle de plain pied de 71m² comprenant une grande pièce de vie de 40m², 2 chambres, une salle de bain ainsi qu’un cellier et un WC.Parfait pour un premier achat ou un investissement locatif!Le combles aménageables saura suivre l’évolution de votre famille et celle de vos envies.CONSTRUCTIONS IDEALE DEMEURE a sélectionné avec un partenaire foncier un terrain pour construire cette maison. Je reste disponible pour toutes demandes de renseignements, n’hésitez pas me contacter : Stéphane Digneton : (Numéro supprimé)
L’actualité immobilière à Amboise
27/11/2023
02/11/2023
30/10/2023
20/10/2023
16/10/2023
16/10/2023